Gebouw met vergunning voor 3 appartementen en een handelspand
€ 389.000
Een pand van Nina Bruno Vastgoed
Overzicht
- 420 m² bewoonbaar
- 1300 m² grond
- 7 Slaapkamer(s)
- 5 Garage(s)
Beschrijving
Dit investeringspand ligt op een perceel van 13 are op de verbindingsweg tussen Bilzen en Zutendaal, in het centrum van Munsterbilzen, met tal van handelszaken in de onmiddellijke omgeving.
Momenteel bestaat het gebouw uit 7 appartementen, maar deze huidige toestand is niet vergund. Daarom zijn er slechts 3 van de 7 entiteiten verhuurd. Er werd een vergunning aangevraagd en verkregen voor het ombouwen van de 7 entiteiten naar 3 grote appartementen en 1 handelspand. De planning kan je in bijlage terugvinden. Achter het gebouw bevinden zich nog 5 afgesloten garageboxen.
De oppervlaktes van de vergunde eenheden zijn:
Handelspand : 75 m²
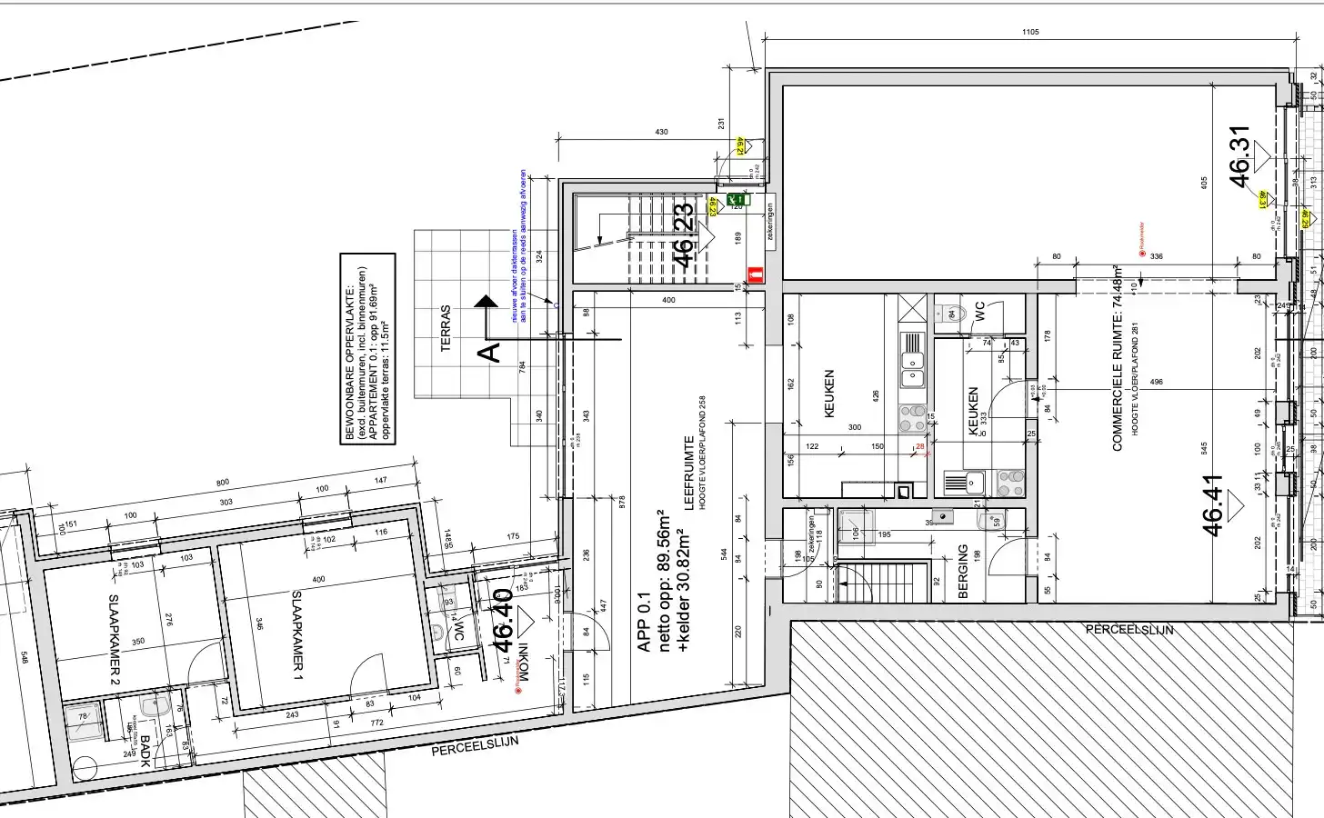
Appartement gelijkvloers : 90 m²
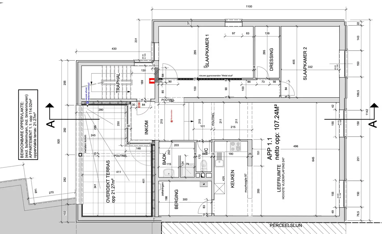
Appartement 1ste verdieping : 107 m²
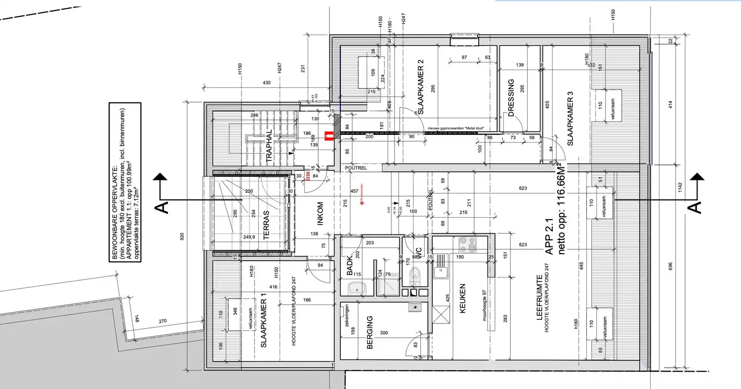
Appartement 2de verdieping : 117 m²
De huidige maandelijkse huuropbrengst is 1840 euro.
Wenst u meer informatie? Wij zijn bereikbaar op het nummer : 089/203434 of per mail : info@ninabrunovastgoed.be
Momenteel bestaat het gebouw uit 7 appartementen, maar deze huidige toestand is niet vergund. Daarom zijn er slechts 3 van de 7 entiteiten verhuurd. Er werd een vergunning aangevraagd en verkregen voor het ombouwen van de 7 entiteiten naar 3 grote appartementen en 1 handelspand. De planning kan je in bijlage terugvinden. Achter het gebouw bevinden zich nog 5 afgesloten garageboxen.
De oppervlaktes van de vergunde eenheden zijn:
Handelspand : 75 m²
Appartement gelijkvloers : 90 m²
Appartement 1ste verdieping : 107 m²
Appartement 2de verdieping : 117 m²
De huidige maandelijkse huuropbrengst is 1840 euro.
Wenst u meer informatie? Wij zijn bereikbaar op het nummer : 089/203434 of per mail : info@ninabrunovastgoed.be
Dit investeringspand ligt op een perceel van 13 are op de verbindingsweg tussen Bilzen en Zutendaal, in het centrum van Munsterbilzen, met tal van handelszaken in de onmiddellijke omgeving.
Momenteel bestaat het gebouw uit 7 appartementen, maar deze huidige toestand is niet vergund. Daarom zijn er slechts 3 van de 7 entiteiten verhuurd. Er werd een vergunning aangevraagd en verkregen voor het ombouwen van de 7 entiteiten naar 3 grote appartementen en 1 handelspand. De plannen kan je in bijlage terugvinden. Achter het gebouw bevinden zich nog 5 afgesloten garageboxen en een private tuin van meer dan 7 are.
De oppervlaktes van de vergunde eenheden zijn:
Handelspand : 75 m²
Appartement gelijkvloers : 90 m²
Appartement 1ste verdieping : 107 m²
Appartement 2de verdieping : 117 m²
De huidige maandelijkse huuropbrengst is 1840 euro. In een niet vergunde toestand behaal je al een goed rendement. De vergunde plannen vragen een beperkte investering om een aanzienlijke verhoging van het rendement te verkrijgen.
De verschillende entiteiten zijn in een verzorgde staat. Voor elk appartement (ook degene die niet verhuurd zijn) werd er een conforme elektriciteitskeuring afgeleverd.
Wenst u meer informatie? Wij zijn bereikbaar op het nummer 089/203434 of per mail : info@ninabrunovastgoed.be
Momenteel bestaat het gebouw uit 7 appartementen, maar deze huidige toestand is niet vergund. Daarom zijn er slechts 3 van de 7 entiteiten verhuurd. Er werd een vergunning aangevraagd en verkregen voor het ombouwen van de 7 entiteiten naar 3 grote appartementen en 1 handelspand. De plannen kan je in bijlage terugvinden. Achter het gebouw bevinden zich nog 5 afgesloten garageboxen en een private tuin van meer dan 7 are.
De oppervlaktes van de vergunde eenheden zijn:
Handelspand : 75 m²
Appartement gelijkvloers : 90 m²
Appartement 1ste verdieping : 107 m²
Appartement 2de verdieping : 117 m²
De huidige maandelijkse huuropbrengst is 1840 euro. In een niet vergunde toestand behaal je al een goed rendement. De vergunde plannen vragen een beperkte investering om een aanzienlijke verhoging van het rendement te verkrijgen.
De verschillende entiteiten zijn in een verzorgde staat. Voor elk appartement (ook degene die niet verhuurd zijn) werd er een conforme elektriciteitskeuring afgeleverd.
Wenst u meer informatie? Wij zijn bereikbaar op het nummer 089/203434 of per mail : info@ninabrunovastgoed.be
Energie
![]() |
- E-peil: E0
- Verwarming: Gas
- Beglazing: Standaard dubbel
Op de kaart

Financieel
| Prijs | |
|---|---|
| Kadastraal inkomen (niet geïndexeerd) | € 4.443 |
Berekening kosten
Je aankoopkosten? Die heb je snel berekent via de knop hieronder.
Bijkomende info
Gebouw
| Bouwjaar | 1989 |
|---|---|
| Bewoonbaar (m²) | 420 |
| Gevelbreedte | 115 |
| Badkamers | 0 |
| Slaapkamers | 7 |
| Verdiepingen | 0 |
| Garages | 5 |
| Parkeerplaatsen | 0 |
| Toiletten | 0 |
Faciliteiten
| Beglazing | Standaard dubbel |
|---|---|
| Brandstof primaire verwarming | Gas |
| Septische tank | Nee |
Perceel
| Overstromingsgevoelig | Geen |
|---|---|
| P-score | A |
| G-score | A |
| Totale oppervlakte (m²) | 1300 |
| Bebouwde oppervlakte (m²) | 0 |
| Oriëntatie tuin | Oost |
Vergunning
| Verkavelingsvergunning | Geen beschikbaar |
|---|
Uitrusting
| Investeringspand | Nee |
|---|---|
| Parking | Nee |
| Garage | Ja |
| Kelder | Ja |
| Lift | Nee |
| Rioolaansluiting | Ja |
| Gasaansluiting | Ja |
| Wateraansluiting | Ja |
| Elektriciteitsaansluiting | Ja |
| Internetaansluiting | Ja |
| Telefoonaansluiting | Ja |
| Zonnepanelen | Nee |
| Zonneboiler | Nee |
| Alarm | Nee |
| Videofoon | Nee |
| Grondwaterput | Nee |
Appartementsblok
| Lift | Nee |
|---|---|
| Intercom | Nee |
Een pand van
Nina Bruno Vastgoed
Nina Bruno Vastgoed - Uw (T)huis is onze zorg
Hulp nodig bij de zoektocht naar een nieuwe woning? Of zoek je begeleiding bij de verkoop van je woning? Het Nina Bruno Vastgoed team begeleidt jou met uitgebreide kennis van zaken in de complexe wereld van het vastgoed. Als kandidaat koper of verkoper staan we je graag met professioneel advies bij.
Graag meer informatie over al onze diensten?
BW60
Leer meer over vastgoed
24 November 2025
Uitgezocht voor jouw gemeente: Hoeveel stijgt de waarde van je woning door een renovatie?
22 October 2025
Hoeveel kan ik lenen om een huis te kopen?
11 June 2025
Huis kopen met bouwovertreding? Dit moet je weten
11 May 2025
