Gerenoveerde gezinswoning met 5 slaapkamers
€ 287.000
Een pand van Immovadis
Favoriet
Jouw zoektocht
Jouw scoretabel voor dit pand
Aan het laden...
Jouw geplande bezichtigingen
Aan het laden...
Overzicht
- 206 m² bewoonbaar
- 287 m² grond
- 5 Slaapkamer(s)
Beschrijving
Deze gerenoveerde gezinswoning telt vier slaapkamers, twee moderne badkamers en een grote, vrij in te richten zolder.
Een terras en lange, zuidgerichte tuin zorgen ook voor een ruim buitengevoel.
De woning is instapklaar en rustig en gelegen in de Groenkloosterstraat 25 in Munsterbilzen met scholen, winkels en openbaar vervoer en ontspanningsmogelijkheden binnen handbereik. Het handelscentrum ligt op wandelafstand en de E313 op minder dan 5 km.
Mogelijkheid tot aankoop van naastliggende woning: Groenkloosterstraat 23.
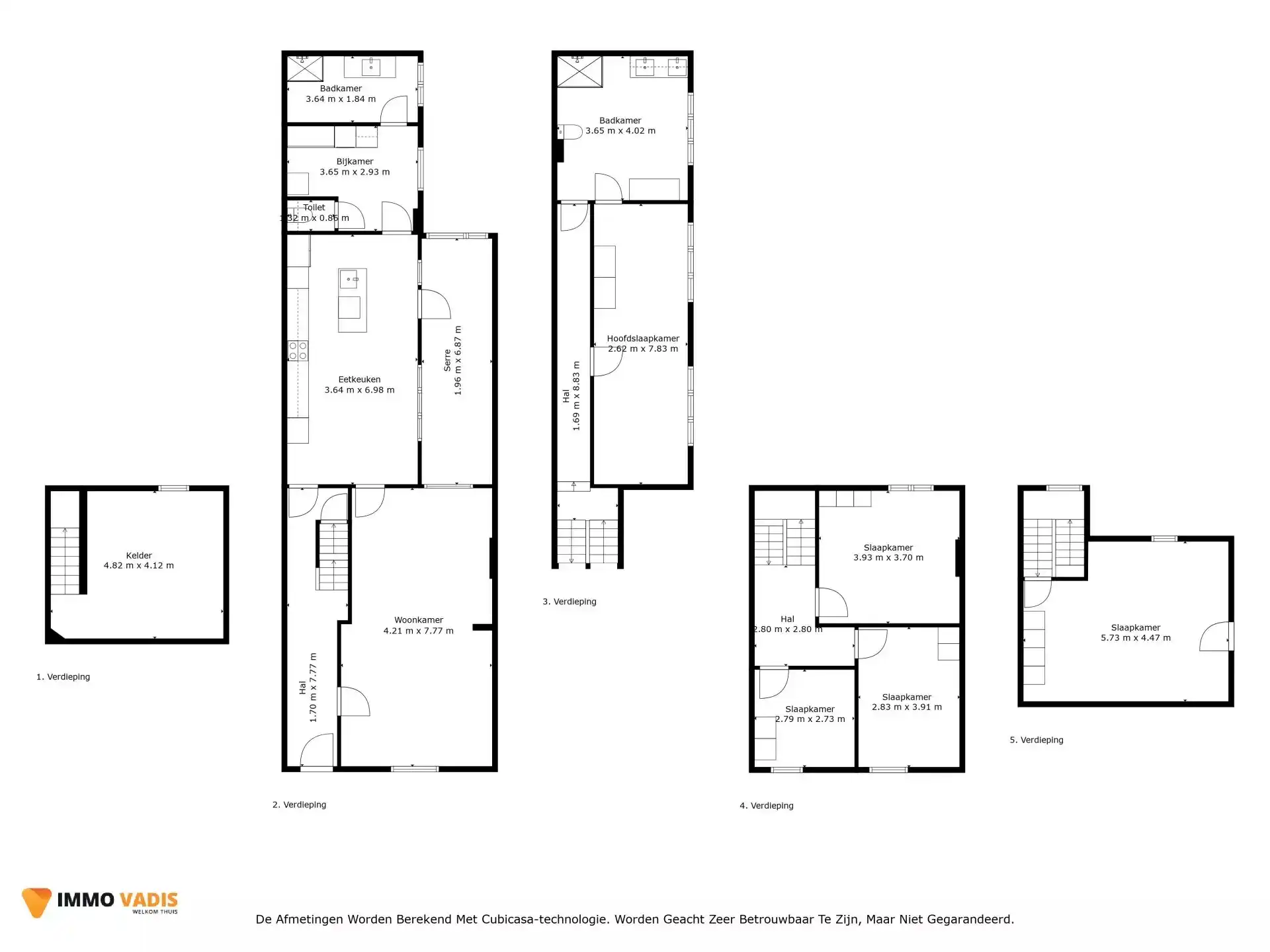
Gelijkvloers:
- Inkomhal (11 m²) met houten trap naar verdieping
- Woonkamer (32 m²)
- Inbouwkeuken (24 m²) met inductiekookplaat en afzuigkap, combi-oven en vaatwasser
- Veranda (16 m²) met pelletkachel
- Keukenberging/stookruimte (10 m²) inclusief aansluiting voor wasmachine en droogkast
- Toilet
- Badkamer (6 m²) met inloopdouche, wastafel, volledig betegeld
Eerste verdieping:
- Overloop (8 m²)
- Slaapkamer 1 (15 m²)
- Slaapkamer 2 (10 m²)
- Nachthal (6 m²)
- Slaapkamer 3 (8 m²)
- Slaapkamer 4 (21 m²) met ensuite badkamer (15 m²) met inloopdouche, dubbele wastafel, badkamermeubel en toilet
Tweede verdieping:
- Ruime zolderkamer/slaapkamer 5 (23 m²), afgewerkt met laminaat, berging die als dressing kan worden ingericht.
- Buitenterras
- Tuinberging (17 m²) met mazouttank
Gerenoveerd in 2021
PVC ramen met dubbel glas
Centrale verwarming op stookolie
6a46ca
Netto woonoppervlakte: 206 m²
Neem gerust contact met ons op voor meer info of een bezoekje via moyra@immovadis.be of bel naar 0469 19 51 61.
Een terras en lange, zuidgerichte tuin zorgen ook voor een ruim buitengevoel.
De woning is instapklaar en rustig en gelegen in de Groenkloosterstraat 25 in Munsterbilzen met scholen, winkels en openbaar vervoer en ontspanningsmogelijkheden binnen handbereik. Het handelscentrum ligt op wandelafstand en de E313 op minder dan 5 km.
Mogelijkheid tot aankoop van naastliggende woning: Groenkloosterstraat 23.
Gelijkvloers:
- Inkomhal (11 m²) met houten trap naar verdieping
- Woonkamer (32 m²)
- Inbouwkeuken (24 m²) met inductiekookplaat en afzuigkap, combi-oven en vaatwasser
- Veranda (16 m²) met pelletkachel
- Keukenberging/stookruimte (10 m²) inclusief aansluiting voor wasmachine en droogkast
- Toilet
- Badkamer (6 m²) met inloopdouche, wastafel, volledig betegeld
Eerste verdieping:
- Overloop (8 m²)
- Slaapkamer 1 (15 m²)
- Slaapkamer 2 (10 m²)
- Nachthal (6 m²)
- Slaapkamer 3 (8 m²)
- Slaapkamer 4 (21 m²) met ensuite badkamer (15 m²) met inloopdouche, dubbele wastafel, badkamermeubel en toilet
Tweede verdieping:
- Ruime zolderkamer/slaapkamer 5 (23 m²), afgewerkt met laminaat, berging die als dressing kan worden ingericht.
- Buitenterras
- Tuinberging (17 m²) met mazouttank
Gerenoveerd in 2021
PVC ramen met dubbel glas
Centrale verwarming op stookolie
6a46ca
Netto woonoppervlakte: 206 m²
Neem gerust contact met ons op voor meer info of een bezoekje via moyra@immovadis.be of bel naar 0469 19 51 61.
Energie
![]() |
- EPC Certificaat: 20200623-0002285687-RES-1
- Energieverbruik: 466 kWh/m²/jaar
- Verwarming: Butaangas
- Beglazing: Enkel
Let op, de renovatieverplichting in Vlaanderen verplicht de koper om deze woning na aankoop te renoveren tot een betere energieprestatie. Lees er alles over in dit artikel
Extra budget nodig voor je renovatie?
De overheid helpt je dit pand energetisch te renoveren! Hieronder zie je het premiebedrag dat je mogelijks van de overheid krijgt.
Het huidige EPC-label is:

Op de kaart

Financieel
| Prijs | |
|---|---|
| Kadastraal inkomen (niet geïndexeerd) | € 545 |
Berekening kosten
Je aankoopkosten? Die heb je snel berekend via de knop hieronder.
Bijkomende info
Gebouw
| Bouwjaar | 1941 |
|---|---|
| Renovatie jaar | 2021 |
| Staat | Op te frissen |
| Is beschermd | Nee |
| Bouwcertificaat | Nee |
| Bewoonbaar (m²) | 206 |
| Verdieping | 0 |
| Gevels | 2 |
| Slaapkamers | 5 |
| Verdiepingen | 3 |
Ruimtes
| Slaapkamer | 92 m² |
|---|
Faciliteiten
| Beglazing | Enkel |
|---|---|
| Luiken | Nee |
| Primaire verwarmingsbron | Warmtenet |
| Brandstof primaire verwarming | Butaangas |
| Warm water type | Decentrale verwarming |
| Elektrisch keuringsattest | Nee |
| Septische tank | Nee |
| Beerput | Nee |
Perceel
| Overstromingsgevoelig | Geen |
|---|---|
| Voorkeurrecht | Nee |
| Totale oppervlakte (m²) | 287 |
| Bebouwde oppervlakte (m²) | 206 |
| Oriëntatie voorgevel | Zuid |
Vergunning
| Vergunning | Vergunning beschikbaar |
|---|---|
| Verkavelingsvergunning | Geen beschikbaar |
Uitrusting
| Investeringspand | Nee |
|---|---|
| Geschikt als kangoeroewoning | Nee |
| Geschikt voor rolstoelgebruikers | Nee |
| Parking | Nee |
| Garage | Nee |
| Thuiskantoor | Nee |
| Kelder | Nee |
| Zolder | Nee |
| Opslagruimte | Nee |
| Tuin | Nee |
| Terras | Nee |
| Lift | Nee |
| Rioolaansluiting | Nee |
| Gasaansluiting | Ja |
| Wateraansluiting | Ja |
| Elektriciteitsaansluiting | Ja |
| TV aansluiting | Nee |
| Internetaansluiting | Nee |
| Zonnepanelen | Nee |
| Zonneboiler | Nee |
| Thuisbatterij | Nee |
| Alarm | Nee |
| Zwembad | Nee |
| Sauna | Nee |
| Jacuzzi | Nee |
| Videofoon | Nee |
| Domotica | Nee |
| Grondwaterput | Nee |
| Ventilatie | Nee |
Een pand van
Immovadis
Welkom Thuis
Geen alledaagse standaard makelaar!
ImmoVadis staat voor anders durven zijn, maar wel binnen de professionele kaders.
Wij pakken uw vastgoed professioneel, duidelijk (helder) en tijdgericht aan, waarbij u als klant ten allen tijde centraal staat en zich WELKOM THUIS voelt!
ImmoVadis gelooft in 'anders durven denken', samen met een realistische, no-nonsense aanpak. Daarnaast is vertrouwen, passie en een goede relatie met de klant van zeer groot belang.
Wij streven ernaar om onze klanten altijd tevreden te houden. ImmoVadis is dan ook een klantgericht kantoor met een hoogwaardig dienstverleningsniveau.
Team
Immovadis bestaat uit een team van medewerkers en partners, onder leiding van een vat vol ervaring op niveau van makelaardij, Guy Clerinx in samenwerking met een bouwkundig aannemer, Wim Lambrechts (ProMaCon BV).
Door deze samenwerking kunnen we op het vlak van bouwkundigheid een meerwaarde toevoegen aan het gebruikelijk takenpakket van een standaard makelaar.
Als klant krijgt u deze deskundige meerwaarde automatisch mee inbegrepen in onze dienstverlening.
86492104
Leer meer over vastgoed
23 March 2026
Op Spotto zoeken als een pro: 10 slimme tips
21 March 2026
Hoeveel kan ik lenen om een huis te kopen?
01 March 2026
Wanneer heb ik een bouwvergunning of omgevingsvergunning nodig?
17 February 2026



