Bouwgrond (HOB) van 4a56ca in Bilzen - Ribus
€ 139.000
Een pand van Vestio
Favoriet
Jouw zoektocht
Jouw scoretabel voor dit pand
Aan het laden...
Jouw geplande bezichtigingen
Aan het laden...
Overzicht
- 456 m² grond
Beschrijving
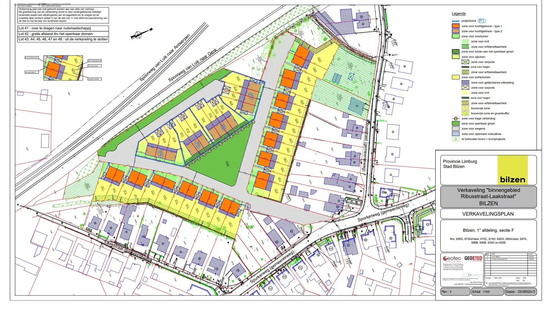
Bouwgrond LOT 25 betreft een bouwperceel van 4a 56ca, bestemd voor halfopen bebouwing. Dit lot is gelegen in een bosrijk binnengebied aan de Ribusstraat.
De afmetingen van het perceel: zie verkavelingsplan.
Dit lot heeft geen bouwverplichting.
Verkavelingsplan en verkavelingsvoorschriften kunnen hieronder gedownload worden.
Interesse? Neem gerust contact op met ons kantoor voor bijkomende inlichtingen op het nummer 011 80 00 00 of via info@vestio.com
De afmetingen van het perceel: zie verkavelingsplan.
Dit lot heeft geen bouwverplichting.
Verkavelingsplan en verkavelingsvoorschriften kunnen hieronder gedownload worden.
Interesse? Neem gerust contact op met ons kantoor voor bijkomende inlichtingen op het nummer 011 80 00 00 of via info@vestio.com
Energie
- E-peil: E0
- Beglazing: Onbekend
Op de kaart

Financieel
| Prijs |
|---|
Berekening kosten
Je aankoopkosten? Die heb je snel berekend via de knop hieronder.
Bijkomende info
Perceel
| Totale oppervlakte (m²) | 456 |
|---|
Vergunning
| Verkavelingsvergunning | Vergunning beschikbaar |
|---|
Uitrusting
| Investeringspand | Nee |
|---|---|
| Rioolaansluiting | Nee |
| Gasaansluiting | Nee |
| Wateraansluiting | Nee |
| Elektriciteitsaansluiting | Nee |
| Internetaansluiting | Nee |
| Telefoonaansluiting | Nee |
Een pand van
Vestio
Vangronsveld & Somers, thuis in ontwikkeling
Vestio staat voor 'Vangronsveld & Somers, thuis in ontwikkeling'. Vestio is actief in de realisatie van residentiële vastgoedprojecten op toplocaties in het binnenland en aan de Belgische kust in Knokke. Daarbij hecht de vastgoedspecialist veel belang aan een goede begeleiding. Vestio biedt ook assistentie bij de projectontwikkeling van woningen, appartementen, retail, verkavelingen, woon- en zorgcentra en de koop en verkoop van bestaand vastgoed. Een totaalaanpak die al meer dan 20 jaar werkt en tot heel wat exclusieve woonprojecten heeft geleid.
NWB - Ribus - LOT25
Leer meer over vastgoed
23 March 2026
Op Spotto zoeken als een pro: 10 slimme tips
21 March 2026
Hoeveel kan ik lenen om een huis te kopen?
01 March 2026
Wanneer heb ik een bouwvergunning of omgevingsvergunning nodig?
17 February 2026