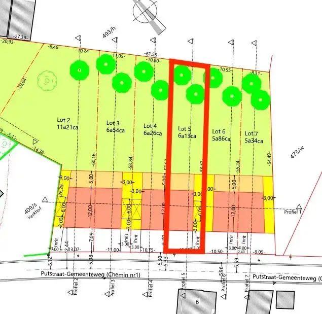
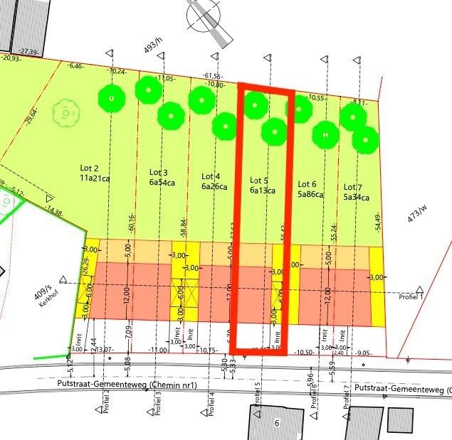
HALFOPEN BOUWGROND VAN 6A 13CA OP EEN TOPLOCATIE TE RIEMST !
€ 104.000
Overzicht
- 613 m² grond
- 1 Tuin
Beschrijving
HALFOPEN BOUWGROND VAN 6A 13CA OP EEN TOPLOCATIE TE RIEMST !
We vinden deze halfopen bouwgrond van 6a 13ca terug te Riemst.
Voor meer informatie, neem zeker een kijkje op onze website via de volgende link:
https://www.sterkvastgoedmakelaars.be/detail/te-koop-grond-riemst/7373657?dosearch=True&flowstatus=ForSale,ForSaleReserved,ForSaleWithBid,ToCompleteForSale,SoldUnderReserve,Sold&pageindex=1&pagesize=12&searchpage=ForSale&sortdirection=DESC&sortfield=pub_flowstatus&transactiontype=Sale
We vinden deze halfopen bouwgrond van 6a 13ca terug te Riemst.
Voor meer informatie, neem zeker een kijkje op onze website via de volgende link:
https://www.sterkvastgoedmakelaars.be/detail/te-koop-grond-riemst/7373657?dosearch=True&flowstatus=ForSale,ForSaleReserved,ForSaleWithBid,ToCompleteForSale,SoldUnderReserve,Sold&pageindex=1&pagesize=12&searchpage=ForSale&sortdirection=DESC&sortfield=pub_flowstatus&transactiontype=Sale
Energie
- Verwarming: Geen
- Beglazing: Onbekend
Op de kaart

Financieel
| Prijs | |
|---|---|
| Kadastraal inkomen (niet geïndexeerd) | € 6 |
Berekening kosten
Je aankoopkosten? Die heb je snel berekent via de knop hieronder.
Bijkomende info
Gebouw
| Is beschermd | Nee |
|---|
Perceel
| P-score | A |
|---|---|
| Voorkeurrecht | Nee |
| Totale oppervlakte (m²) | 613 |
| Oriëntatie tuin | Noordoost |
Vergunning
| Vergunning | Geen beschikbaar |
|---|---|
| Verkavelingsvergunning | Vergunning beschikbaar |
| Bouwovertreding dagvaardiging | Geen |
| Type gebied | Stedelijk |
Uitrusting
| Meerdere eigenaars | Nee |
|---|---|
| Rioolaansluiting | Nee |
| Gasaansluiting | Nee |
| Wateraansluiting | Nee |
| Elektriciteitsaansluiting | Nee |
| TV aansluiting | Nee |
| Internetaansluiting | Nee |
Leer meer over vastgoed
24 November 2025
Uitgezocht voor jouw gemeente: Hoeveel stijgt de waarde van je woning door een renovatie?
22 October 2025
Hoeveel kan ik lenen om een huis te kopen?
11 June 2025
Huis kopen met bouwovertreding? Dit moet je weten
11 May 2025