Bouwgrond op perceel van 6a 03ca (Lot 2)
 € 129.000  
Een pand van ImmoClee
Overzicht
- 603 m² grond
 Overstromingsgevaar gebouw Overstromingsgevaar gebouw
 Overstromingsgevaar perceel Overstromingsgevaar perceel
Beschrijving
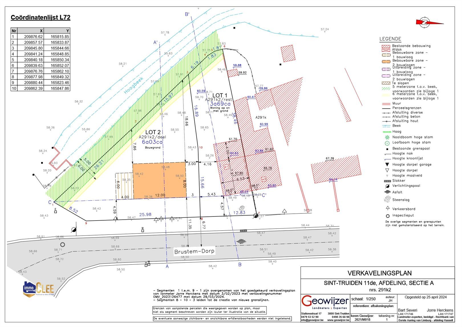
De bouwgrond (lot 2) is gelegen in Brustem-Dorp, 3800 Sint-Truiden langs het nummer 41. Het is een perceel van 603 m² geschikt voor een open bebouwing. De bouwgrond ligt in een groene en rustige omgeving maat toch bevinden zich op korte afstand alle nodige faciliteiten. Supermarkten, winkels, scholen en openbaar vervoer zijn allemaal vlot bereikbaar. Met een oppervlakte van 603 m² biedt dit perceel voldoende ruimte om een ruim en comfortabel huis te bouwen met een mooie tuin.
Voor meer informatie kan u contact met ons opnemen via 011 70 29 70 of via simon@immoclee.be
Energie
- E-peil: E0
- Beglazing: Onbekend
Op de kaart

Downloads
Financieel
| Prijs | |
|---|---|
| Kadastraal inkomen (niet geïndexeerd) | € 0 | 
| Kadastraal inkomen (geïndexeerd) | € 0 | 
Berekening kosten
Je aankoopkosten? Die heb je snel berekent via de knop hieronder.
Bijkomende info
Gebouw
| Bouwcertificaat | Nee | 
|---|
Perceel
| Diepte (m) | 25 | 
|---|---|
| Breedte (m) | 25 | 
| Overstromingsgevoelig | Bepaald overstromingsgebied | 
| P-score | D | 
| Voorkeurrecht | Nee | 
| Totale oppervlakte (m²) | 603 | 
| Oriëntatie tuin | West | 
Vergunning
| Vergunning | Geen beschikbaar | 
|---|---|
| Verkavelingsvergunning | Vergunning beschikbaar | 
Uitrusting
| Investeringspand | Nee | 
|---|---|
| Rioolaansluiting | Nee | 
| Gasaansluiting | Nee | 
| Wateraansluiting | Nee | 
| Elektriciteitsaansluiting | Nee | 
| TV aansluiting | Nee | 
| Internetaansluiting | Nee | 
| Telefoonaansluiting | Nee | 
Een pand van
ImmoClee
 ImmoClee 
 ImmoClee is als gevestigde waarde dé referentie in alle aspecten van het vastgoed.
Het is onze missie om als gedreven vastgoedkantoor de ambities van onze klanten te realiseren door een doelgerichte aanpak op maat. We streven naar een optimale dienstverlening waarbij klantentevredenheid hoog in het vaandel staat.
Via onze persoonlijke begeleiding wordt elke klant op een professionele manier geadviseerd in hun vastgoedverhaal. Wij hechten enorm veel belang aan het verschaffen van de juiste informatie en communicatie.
Onze vastgoedmakelaars onderscheiden zich door hun professionalisme, transparantie, flexibiliteit, enthousiasme en uiterst deskundige aanpak om aan de noden van de klant te voldoen. 
 BRUSTEM-DORP BRUSTEM 
Leer meer over vastgoed
 Nieuw 
 22 October 2025 
Hoeveel kan ik lenen om een huis te kopen?
 11 June 2025 
Huis kopen met bouwovertreding? Dit moet je weten
 11 May 2025 
Renoveren? Vraag je Mijn VerbouwPremie aan
 22 April 2025