Instapklaar appartement in het centrum
Een pand van Immo Vesta
Favoriet
Jouw zoektocht
Jouw scoretabel voor dit pand
Aan het laden...
Jouw geplande bezichtigingen
Aan het laden...
Overzicht
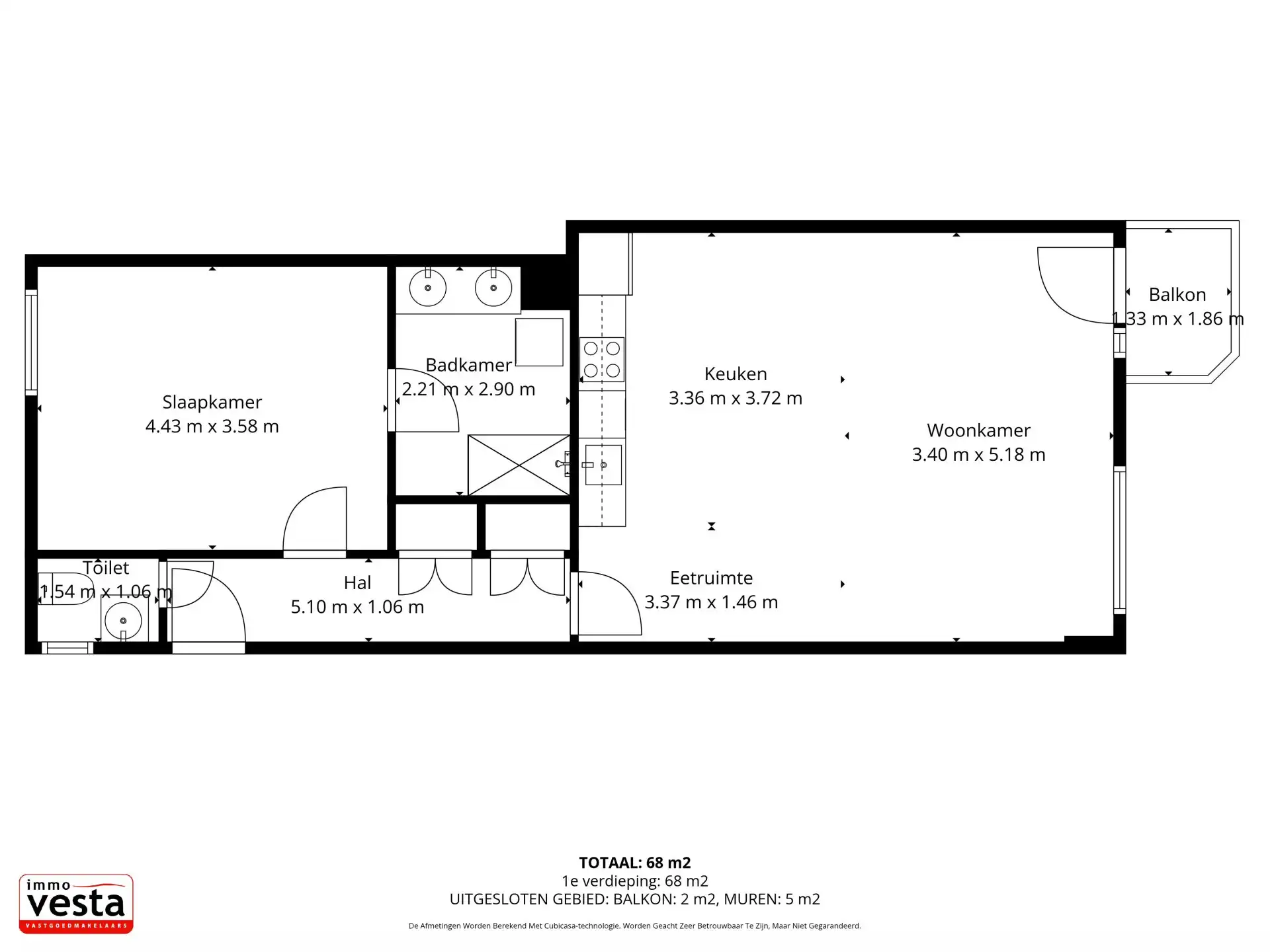
- 68 m² bewoonbaar
- 1 Slaapkamer(s)
- 1 Badkamer(s)
- 1 Toilet(ten)
- 1 Living(s)
Beschrijving
Nabij de Grote markt ligt dit instapklaar appartement.
Naast een lichtrijke woonkamer vind je er een degelijke ingerichte keuken en een ruime slaapkamer. Het terras biedt de mogelijkheid om terrasmeubilair te plaatsen. Vanaf dit terras heb je uitzicht op het binnenplein van het winkelcentrum.
Dit verzorgde appartement is momenteel verhuurd, wat het ook interessant maakt als investering. Uiteraard zullen starters en alleenstaanden zich aangetrokken voelen door de interessante prijs.
Dit gebouw beschikt over een lift. Parkeren is mogelijk in de onmiddellijke omgeving.
Naast een lichtrijke woonkamer vind je er een degelijke ingerichte keuken en een ruime slaapkamer. Het terras biedt de mogelijkheid om terrasmeubilair te plaatsen. Vanaf dit terras heb je uitzicht op het binnenplein van het winkelcentrum.
Dit verzorgde appartement is momenteel verhuurd, wat het ook interessant maakt als investering. Uiteraard zullen starters en alleenstaanden zich aangetrokken voelen door de interessante prijs.
Dit gebouw beschikt over een lift. Parkeren is mogelijk in de onmiddellijke omgeving.
Energie
![]() |
- EPC Certificaat: 202601270003780778-RES-1
- Energieverbruik: 246 kWh/m²/jaar
- Verwarming: Gas
- Beglazing: Standaard dubbel
Op de kaart

Financieel
| Prijs |
|---|
Berekening kosten
Je aankoopkosten? Die heb je snel berekend via de knop hieronder.
Bijkomende info
Gebouw
| Bouwjaar | 1975 |
|---|---|
| Staat | Goed onderhouden |
| Is beschermd | Nee |
| Bouwcertificaat | Nee |
| Bewoonbaar (m²) | 68 |
| Verdieping | 1 |
| Badkamers | 1 |
| Slaapkamers | 1 |
| Verdiepingen | 0 |
| Leefruimtes | 1 |
| Opslagruimtes | 1 |
| Toiletten | 1 |
Ruimtes
| Slaapkamer | 19 m² |
|---|---|
| Leefruimte | 17.6 m² |
| Kamer 1 | 6.5 m² |
| Kamer 2 | 5 m² |
| Kamer 3 | 1.5 m² |
| EXTRA_INFO.SPACEDETAILS.KEY.DININGROOM | 5 m² |
| Kamer 4 | 2.5 m² |
Faciliteiten
| Beglazing | Standaard dubbel |
|---|---|
| Luiken | Nee |
| Primair verwarmingstype | Centrale verwarming |
| Primaire verwarmingsbron | Warmtenet |
| Brandstof primaire verwarming | Gas |
| Warm water type | Decentrale verwarming |
| Warmwaterbron | Waterboiler |
| Elektrisch keuringsattest | Ja |
| Septische tank | Nee |
| Beerput | Nee |
Perceel
| Voorkeurrecht | Nee |
|---|---|
| Bebouwde oppervlakte (m²) | 68 |
| Oriëntatie voorgevel | Noord |
Vergunning
| Vergunning | Vergunning beschikbaar |
|---|
Uitrusting
| Investeringspand | Nee |
|---|---|
| Geschikt als kangoeroewoning | Nee |
| Geschikt voor rolstoelgebruikers | Nee |
| Parking | Nee |
| Garage | Nee |
| Thuiskantoor | Nee |
| Kelder | Nee |
| Zolder | Nee |
| Opslagruimte | Ja |
| Tuin | Nee |
| Terras | Nee |
| Lift | Ja |
| Rioolaansluiting | Nee |
| Gasaansluiting | Ja |
| Wateraansluiting | Ja |
| Elektriciteitsaansluiting | Nee |
| TV aansluiting | Ja |
| Internetaansluiting | Nee |
| Zonnepanelen | Nee |
| Zonneboiler | Nee |
| Thuisbatterij | Nee |
| Alarm | Nee |
| Zwembad | Nee |
| Sauna | Nee |
| Jacuzzi | Nee |
| Videofoon | Nee |
| Domotica | Nee |
| Grondwaterput | Nee |
| Ventilatie | Nee |
Een pand van
Immo Vesta
De verkoop van uw woning, onze zorg.
Al sinds 2001 is Immo Vesta uw partner in de verkoop en verhuur van uw vastgoed.
Als gevestigde waarde in en rond Sint-Truiden staan wij steeds tot uw dienst.
Stefaan Hombrouckx kent als ervaren kwaliteitsmakelaar de lokale markt als geen ander.
Sinds 2024 voegde Immo Vesta zich bij de ImmoVadis groep, waardoor de werking binnen het kantoor gemoderniseerd werd om een nóg betere service te kunnen (blijven) bieden.
De dagelijkse leiding gebeurt vanuit het hoofdkantoor in Bilzen, waar Guy Clerinx, een vat vol ervaring op niveau van makelaardij, in samenwerking met een bouwkundig aannemer, Wim Lambrechts (ProMaCon BV) het kantoor leidt.
Verder werd ook Ben Moermans aangetrokken binnen het kantoor. Als energie- en asbest deskundige maakt hij het totaalplaatje van het kantoor compleet.
Door deze samenwerking kunnen we op het vlak van bouwkundigheid een meerwaarde toevoegen aan het gebruikelijk takenpakket van een standaard makelaar.
Als klant krijgt u deze deskundige meerwaarde automatisch mee inbegrepen in onze dienstverlening.
86764649
Leer meer over vastgoed
24 April 2026
Duurzaam gelegen woning? Check je Mobiscore
23 March 2026
Op Spotto zoeken als een pro: 10 slimme tips
21 March 2026
Hoeveel kan ik lenen om een huis te kopen?
01 March 2026
