ICONISCH HANDELSPAND MET LUXUEUZE WOONST OP DE GROTE MARKT VAN SINT-TRUIDEN
€ 1.599.000
Een pand van De woonmakers
Favoriet
Jouw zoektocht
Jouw scoretabel voor dit pand
Aan het laden...
Jouw geplande bezichtigingen
Aan het laden...
Overzicht
- 750 m² bewoonbaar
- 395 m² grond
- 3 Slaapkamer(s)
- 2 Badkamer(s)
Beschrijving
Op een absolute toplocatie, op de Grote Markt (nr 20) in Sint-Truiden, bevindt zich dit uitzonderlijke en prestigieuze pand dat wonen en ondernemen op het hoogste niveau combineert. Deze eigendom vormt al jarenlang een vaste commerciële waarde in de stad en biedt vandaag een unieke investerings- en woonopportuniteit.
Het volledige gelijkvloers is ingericht als handelszaak en deed jarenlang dienst als bekende schoenwinkel, een begrip in Sint-Truiden. Met een indrukwekkende handelsoppervlakte van maar liefst 320 m² biedt dit pand uitzonderlijk veel mogelijkheden voor uiteenlopende uitbatingen (onder voorbehoud van de geldende voorschriften).
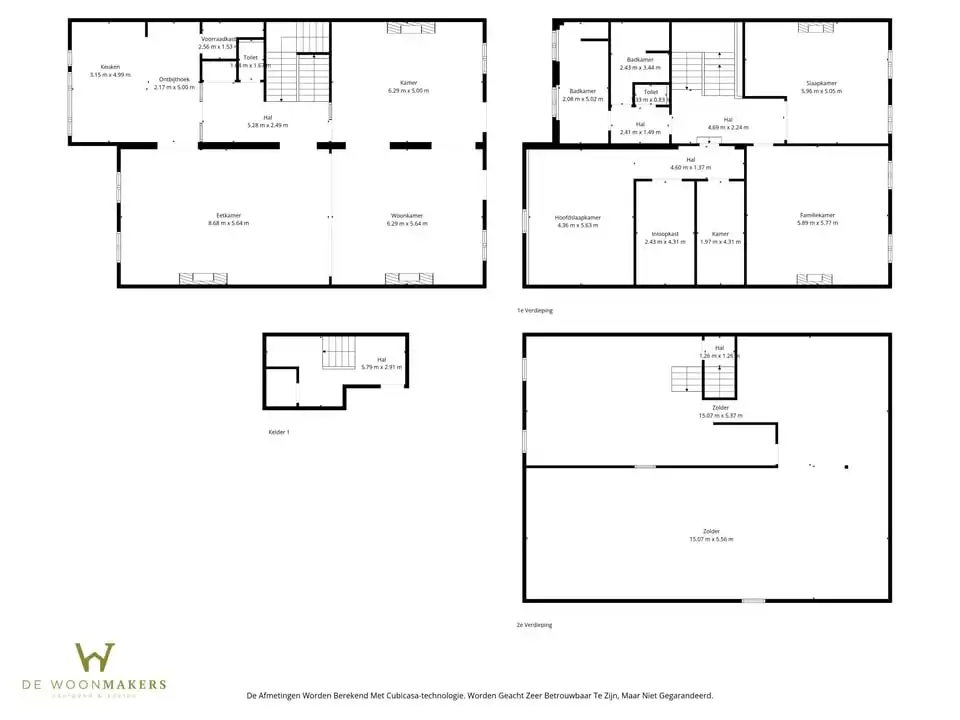
Boven de handelsruimte bevindt zich een prachtige en luxueuze woonst. Op de eerste verdieping betreedt u een indrukwekkende, volledig open leefruimte waar licht, ruimte en elegantie centraal staan. De statige houten trap, vissengraatparket, hoge raampartijen en de open indeling creëren een bijzonder stijlvolle woonbeleving. De leefruimte sluit naadloos aan op de moderne keuken met kookeiland. Bijkomend treffen we op dit verdiep eveneens een apart toilet.
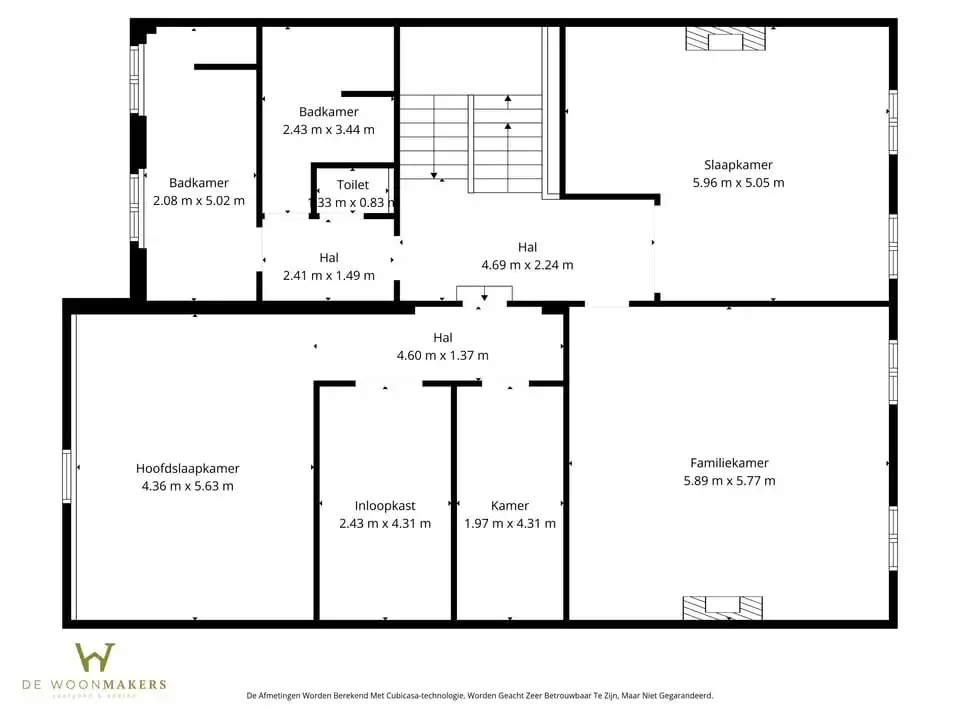
De tweede verdieping omvat drie zeer ruime slaapkamers, een dressing, een berging en een royale badkamer uitgerust met twee douches, een ligbad en een toilet.
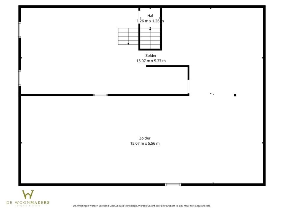
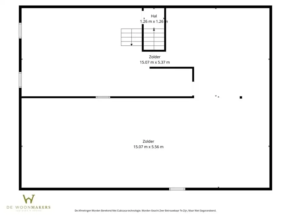
Daarnaast beschikt het pand over een zeer ruime zolderverdieping van circa 150 m², die tal van mogelijkheden biedt.
Maak dan snel een afspraak via het nummer 011/98.88.98 of info@dewoonmakers.be
Het volledige gelijkvloers is ingericht als handelszaak en deed jarenlang dienst als bekende schoenwinkel, een begrip in Sint-Truiden. Met een indrukwekkende handelsoppervlakte van maar liefst 320 m² biedt dit pand uitzonderlijk veel mogelijkheden voor uiteenlopende uitbatingen (onder voorbehoud van de geldende voorschriften).
Boven de handelsruimte bevindt zich een prachtige en luxueuze woonst. Op de eerste verdieping betreedt u een indrukwekkende, volledig open leefruimte waar licht, ruimte en elegantie centraal staan. De statige houten trap, vissengraatparket, hoge raampartijen en de open indeling creëren een bijzonder stijlvolle woonbeleving. De leefruimte sluit naadloos aan op de moderne keuken met kookeiland. Bijkomend treffen we op dit verdiep eveneens een apart toilet.
De tweede verdieping omvat drie zeer ruime slaapkamers, een dressing, een berging en een royale badkamer uitgerust met twee douches, een ligbad en een toilet.
Daarnaast beschikt het pand over een zeer ruime zolderverdieping van circa 150 m², die tal van mogelijkheden biedt.
Maak dan snel een afspraak via het nummer 011/98.88.98 of info@dewoonmakers.be
Op een absolute toplocatie, op de Grote Markt (nr 20) in Sint-Truiden, bevindt zich dit uitzonderlijke en prestigieuze pand dat wonen en ondernemen op het hoogste niveau combineert. Deze eigendom vormt al jarenlang een vaste commerciële waarde in de stad en biedt vandaag een unieke investerings- en woonopportuniteit.
Het volledige gelijkvloers is ingericht als handelszaak en deed jarenlang dienst als bekende schoenwinkel, een begrip in Sint-Truiden. Met een indrukwekkende handelsoppervlakte van maar liefst 320 m² biedt dit pand uitzonderlijk veel mogelijkheden voor uiteenlopende uitbatingen: retail, showroom, conceptstore, horeca, praktijk of andere commerciële invullingen (onder voorbehoud van de geldende voorschriften).
Boven de handelsruimte bevindt zich een prachtige en luxueuze woonst, afgewerkt met hoogwaardige materialen en oog voor detail. Op de eerste verdieping betreedt u een indrukwekkende, volledig open leefruimte waar licht, ruimte en elegantie centraal staan. De statige houten trap, vissengraatparket, hoge raampartijen, verfijnde moulures en de open indeling creëren een bijzonder stijlvolle woonbeleving. De leefruimte sluit naadloos aan op de moderne keuken met kookeiland, ideaal voor wie houdt van comfort en gastvrijheid. Bijkomend treffen we op dit verdiep eveneens een apart toilet.
De tweede verdieping omvat drie zeer ruime slaapkamers, een dressing, een berging en een royale badkamer (opgedeeld in twee) uitgerust met twee douches, een ligbad en een toilet. Ook hier wordt het gevoel van ruimte en luxe consequent doorgetrokken.
Daarnaast beschikt het pand over een zeer ruime zolderverdieping van circa 150 m², die tal van mogelijkheden biedt: extra woonruimte, bureau, opslag of verdere afwerking naar eigen wens.
Troeven op een rij:
• Absolute topligging op de Grote Markt van Sint-Truiden
• Handelsruimte van 320 m² met sterke commerciële historiek
• Luxueuze woonst met hoogwaardige afwerking
• Prachtige open leefruimte met veel lichtinval
• 3 ruime slaapkamers, dressing en dubbele badkamer
• Zolder van ca. 150 m²
• Ideaal voor wonen en werken, investering of herbestemming
Dit pand richt zich tot een select publiek dat op zoek is naar een iconische eigendom met uitstraling, rendement en woonkwaliteit, op een van de meest gegeerde locaties van Sint-Truiden.
Hebben wij uw interesse kunnen wekken? Maak dan snel een afspraak via het nummer 011/98.88.98 of info@dewoonmakers.be
De vermelde oppervlaktes zijn indicatief. De Woonmakers kan niet verantwoordelijk gesteld worden voor de juistheid van de door zijn verstrekte gegevens.
Het volledige gelijkvloers is ingericht als handelszaak en deed jarenlang dienst als bekende schoenwinkel, een begrip in Sint-Truiden. Met een indrukwekkende handelsoppervlakte van maar liefst 320 m² biedt dit pand uitzonderlijk veel mogelijkheden voor uiteenlopende uitbatingen: retail, showroom, conceptstore, horeca, praktijk of andere commerciële invullingen (onder voorbehoud van de geldende voorschriften).
Boven de handelsruimte bevindt zich een prachtige en luxueuze woonst, afgewerkt met hoogwaardige materialen en oog voor detail. Op de eerste verdieping betreedt u een indrukwekkende, volledig open leefruimte waar licht, ruimte en elegantie centraal staan. De statige houten trap, vissengraatparket, hoge raampartijen, verfijnde moulures en de open indeling creëren een bijzonder stijlvolle woonbeleving. De leefruimte sluit naadloos aan op de moderne keuken met kookeiland, ideaal voor wie houdt van comfort en gastvrijheid. Bijkomend treffen we op dit verdiep eveneens een apart toilet.
De tweede verdieping omvat drie zeer ruime slaapkamers, een dressing, een berging en een royale badkamer (opgedeeld in twee) uitgerust met twee douches, een ligbad en een toilet. Ook hier wordt het gevoel van ruimte en luxe consequent doorgetrokken.
Daarnaast beschikt het pand over een zeer ruime zolderverdieping van circa 150 m², die tal van mogelijkheden biedt: extra woonruimte, bureau, opslag of verdere afwerking naar eigen wens.
Troeven op een rij:
• Absolute topligging op de Grote Markt van Sint-Truiden
• Handelsruimte van 320 m² met sterke commerciële historiek
• Luxueuze woonst met hoogwaardige afwerking
• Prachtige open leefruimte met veel lichtinval
• 3 ruime slaapkamers, dressing en dubbele badkamer
• Zolder van ca. 150 m²
• Ideaal voor wonen en werken, investering of herbestemming
Dit pand richt zich tot een select publiek dat op zoek is naar een iconische eigendom met uitstraling, rendement en woonkwaliteit, op een van de meest gegeerde locaties van Sint-Truiden.
Hebben wij uw interesse kunnen wekken? Maak dan snel een afspraak via het nummer 011/98.88.98 of info@dewoonmakers.be
De vermelde oppervlaktes zijn indicatief. De Woonmakers kan niet verantwoordelijk gesteld worden voor de juistheid van de door zijn verstrekte gegevens.
Energie
![]() |
- EPC Certificaat: 20250731-0003656621-KNR-1
- E-peil: E0
- Verwarming: Gas
- Beglazing: Standaard dubbel
Op de kaart

Financieel
| Prijs | |
|---|---|
| Kadastraal inkomen (niet geïndexeerd) | € 7.317 |
Berekening kosten
Je aankoopkosten? Die heb je snel berekend via de knop hieronder.
Bijkomende info
Gebouw
| Bouwjaar | 1850 |
|---|---|
| Bouwcertificaat | Nee |
| Bewoonbaar (m²) | 750 |
| Verdieping | 1 |
| Badkamers | 2 |
| Slaapkamers | 3 |
| Verdiepingen | 0 |
| Garages | 0 |
| Parkeerplaatsen | 0 |
| Toiletten | 0 |
Faciliteiten
| Beglazing | Standaard dubbel |
|---|---|
| Brandstof primaire verwarming | Gas |
| Septische tank | Nee |
Perceel
| Overstromingsgevoelig | Geen |
|---|---|
| P-score | A |
| G-score | A |
| Totale oppervlakte (m²) | 395 |
| Bebouwde oppervlakte (m²) | 0 |
Vergunning
| Verkavelingsvergunning | Geen beschikbaar |
|---|
Uitrusting
| Investeringspand | Nee |
|---|---|
| Parking | Nee |
| Garage | Nee |
| Zolder | Ja |
| Lift | Nee |
| Rioolaansluiting | Nee |
| Gasaansluiting | Nee |
| Wateraansluiting | Nee |
| Elektriciteitsaansluiting | Nee |
| Internetaansluiting | Nee |
| Telefoonaansluiting | Nee |
| Zonnepanelen | Nee |
| Zonneboiler | Nee |
| Alarm | Nee |
| Videofoon | Nee |
| Grondwaterput | Nee |
Appartementsblok
| Lift | Nee |
|---|---|
| Intercom | Nee |
Een pand van
De woonmakers
De Woonmakers Win-win in vastgoed
Bij De Woonmakers staat ervaring centraal. Sinds onze oprichting in 2020 hebben we ons voortdurend ontwikkeld als toonaangevend bedrijf in de vastgoedsector. Gedurende deze periode hebben we waardevolle inzichten verzameld en ons vakmanschap verfijnd om onze klanten een ongeëvenaarde dienstverlening te bieden.
Onze missie is om de perfecte match te creëren tussen individuen en vastgoed, en dit streven we na door onze diepgaande kennis van de markt te combineren met een innovatieve benadering van klantinteractie. Door te luisteren naar uw woonvoorkeuren en -behoeften, zijn we in staat om op maat gemaakte oplossingen te presenteren die naadloos aansluiten op uw levensstijl.
De drijvende krachten achter De Woonmakers, Jan en Krisja, delen een passie voor vastgoed en een toewijding om de klanten te voorzien van een ongeëvenaarde ervaring. Met jarenlange expertise in verschillende facetten van de vastgoedmarkt streven zij ernaar om een service te bieden die verder gaat dan alleen transacties. “Onze klanten kunnen rekenen op een persoonlijke aanpak die gericht is op het creëren van langdurige relaties en het leveren van op maat gemaakte oplossingen die voldoen aan hun specifieke behoeften.”
Grote Markt 20C
Leer meer over vastgoed
Nieuw
23 March 2026
Op Spotto zoeken als een pro: 10 slimme tips
21 March 2026
Hoeveel kan ik lenen om een huis te kopen?
01 March 2026
Wanneer heb ik een bouwvergunning of omgevingsvergunning nodig?
17 February 2026
