HANDELSPAND IN HET CENTRUM VAN SINT-TRUIDEN
€ 229.000
Een pand van De woonmakers
Favoriet
Jouw zoektocht
Jouw scoretabel voor dit pand
Aan het laden...
Jouw geplande bezichtigingen
Aan het laden...
Overzicht
- 141 m² bewoonbaar
- 93 m² grond
- 2 Slaapkamer(s)
- 1 Toilet(ten)
Overstromingsgevaar gebouw
Overstromingsgevaar perceel
Beschrijving
In de Beekstraat kan men dit knap handelshuis terugvinden. Dankzij de centrale positie tussen de Grote Markt en het station heeft het pand niet alleen een uitstekende zichtbaarheid, maar ook een bijzonder gunstige ligging.
Zo bevinden alle faciliteiten zich op wandelafstand (winkels, scholen, restaurants, supermarkt, ...). Eveneens het openbaar vervoer en de belangrijke invalswegen richting Hasselt, Tienen en Gingelom zijn vlakbij gelegen.
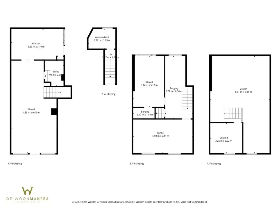
Al meer dan 10 jaar wordt dit pand ingekleed als kledingszaak en zorgt al jarenlang voor een vaste waarde in Sint-Truiden en omstreken! De handelsruimte beschikt over ruim 141m² aan bruikbare vloeroppervlakte.
De handelsruimte is voorzien van etalages, een mooie winkelruimte en een bijkamer. Naast de eigenlijke handelsruimte omvat het gelijkvloers nog een kantoorruimte en een toilet. leefruimte, een keuken, een apart toilet en een gezellige veranda met zicht op de ruime koer.
Op de eerste verdieping kan men nog bijkomende stockage ruimte en berging terugvinden.
Via de trap bereiken we eveneens de tweede verdieping. Hier treffen we nog een ruime zolderruimte aan.
PLUSPUNTEN:
- gunstige ligging residentieel en commercieel
- op wandelafstand van het station en de Grote Markt
Contacteer ons dan snel op het nummer 011/98.88.98 of via info@dewoonmakers.be
Zo bevinden alle faciliteiten zich op wandelafstand (winkels, scholen, restaurants, supermarkt, ...). Eveneens het openbaar vervoer en de belangrijke invalswegen richting Hasselt, Tienen en Gingelom zijn vlakbij gelegen.
Al meer dan 10 jaar wordt dit pand ingekleed als kledingszaak en zorgt al jarenlang voor een vaste waarde in Sint-Truiden en omstreken! De handelsruimte beschikt over ruim 141m² aan bruikbare vloeroppervlakte.
De handelsruimte is voorzien van etalages, een mooie winkelruimte en een bijkamer. Naast de eigenlijke handelsruimte omvat het gelijkvloers nog een kantoorruimte en een toilet. leefruimte, een keuken, een apart toilet en een gezellige veranda met zicht op de ruime koer.
Op de eerste verdieping kan men nog bijkomende stockage ruimte en berging terugvinden.
Via de trap bereiken we eveneens de tweede verdieping. Hier treffen we nog een ruime zolderruimte aan.
PLUSPUNTEN:
- gunstige ligging residentieel en commercieel
- op wandelafstand van het station en de Grote Markt
Contacteer ons dan snel op het nummer 011/98.88.98 of via info@dewoonmakers.be
In de Beekstraat kan men dit knap handelshuis terugvinden. Dankzij de centrale positie tussen de Grote Markt en het station heeft het pand niet alleen een uitstekende zichtbaarheid, maar ook een bijzonder gunstige ligging.
Zo bevinden alle faciliteiten zich op wandelafstand (winkels, scholen, restaurants, supermarkt, ...). Eveneens het openbaar vervoer en de belangrijke invalswegen richting Hasselt, Tienen en Gingelom zijn vlakbij gelegen.
Al meer dan 10 jaar wordt dit pand ingekleed als kledingszaak en zorgt al jarenlang voor een vaste waarde in Sint-Truiden en omstreken! De handelsruimte beschikt over ruim 141m² aan bruikbare vloeroppervlakte.
De handelsruimte is voorzien van etalages, een mooie winkelruimte en een bijkamer. Naast de eigenlijke handelsruimte omvat het gelijkvloers nog een kantoorruimte en een toilet. leefruimte, een keuken, een apart toilet en een gezellige veranda met zicht op de ruime koer.
Op de eerste verdieping kan men nog bijkomende stockage ruimte en berging terugvinden.
Via de trap bereiken we eveneens de tweede verdieping. Hier treffen we nog een ruime zolderruimte aan.
PLUSPUNTEN:
- gunstige ligging residentieel en commercieel
- op wandelafstand van het station en de Grote Markt
Bent u opzoek naar een nieuwe uitdaging met een zee aan mogelijkheden? Contacteer ons dan snel op het nummer 011/98.88.98 of via info@dewoonmakers.be
De vermelde oppervlaktes zijn indicatief. De Woonmakers kan niet verantwoordelijk gesteld worden voor de juistheid van de door zijn verstrekte gegevens.
Zo bevinden alle faciliteiten zich op wandelafstand (winkels, scholen, restaurants, supermarkt, ...). Eveneens het openbaar vervoer en de belangrijke invalswegen richting Hasselt, Tienen en Gingelom zijn vlakbij gelegen.
Al meer dan 10 jaar wordt dit pand ingekleed als kledingszaak en zorgt al jarenlang voor een vaste waarde in Sint-Truiden en omstreken! De handelsruimte beschikt over ruim 141m² aan bruikbare vloeroppervlakte.
De handelsruimte is voorzien van etalages, een mooie winkelruimte en een bijkamer. Naast de eigenlijke handelsruimte omvat het gelijkvloers nog een kantoorruimte en een toilet. leefruimte, een keuken, een apart toilet en een gezellige veranda met zicht op de ruime koer.
Op de eerste verdieping kan men nog bijkomende stockage ruimte en berging terugvinden.
Via de trap bereiken we eveneens de tweede verdieping. Hier treffen we nog een ruime zolderruimte aan.
PLUSPUNTEN:
- gunstige ligging residentieel en commercieel
- op wandelafstand van het station en de Grote Markt
Bent u opzoek naar een nieuwe uitdaging met een zee aan mogelijkheden? Contacteer ons dan snel op het nummer 011/98.88.98 of via info@dewoonmakers.be
De vermelde oppervlaktes zijn indicatief. De Woonmakers kan niet verantwoordelijk gesteld worden voor de juistheid van de door zijn verstrekte gegevens.
Energie
![]() |
- EPC Certificaat: 20250901-0003676056-KNR-1
- Energieverbruik: 141 kWh/m²/jaar
- E-peil: E0
- Beglazing: Enkel
Op de kaart

Financieel
| Prijs |
|---|
Berekening kosten
Je aankoopkosten? Die heb je snel berekend via de knop hieronder.
Bijkomende info
Gebouw
| Bouwjaar | 1874 |
|---|---|
| Bouwcertificaat | Nee |
| Bewoonbaar (m²) | 141 |
| Badkamers | 0 |
| Slaapkamers | 2 |
| Verdiepingen | 0 |
| Garages | 0 |
| Parkeerplaatsen | 0 |
| Toiletten | 1 |
Faciliteiten
| Beglazing | Enkel |
|---|---|
| Septische tank | Nee |
Perceel
| Overstromingsgevoelig | Geen |
|---|---|
| P-score | D |
| G-score | D |
| Totale oppervlakte (m²) | 93 |
| Bebouwde oppervlakte (m²) | 0 |
Vergunning
| Verkavelingsvergunning | Geen beschikbaar |
|---|
Uitrusting
| Investeringspand | Nee |
|---|---|
| Parking | Nee |
| Garage | Nee |
| Lift | Nee |
| Rioolaansluiting | Nee |
| Gasaansluiting | Nee |
| Wateraansluiting | Nee |
| Elektriciteitsaansluiting | Nee |
| Internetaansluiting | Nee |
| Telefoonaansluiting | Nee |
| Zonnepanelen | Nee |
| Zonneboiler | Nee |
| Alarm | Nee |
| Videofoon | Nee |
| Grondwaterput | Nee |
Appartementsblok
| Lift | Nee |
|---|---|
| Intercom | Nee |
Een pand van
De woonmakers
De Woonmakers Win-win in vastgoed
Bij De Woonmakers staat ervaring centraal. Sinds onze oprichting in 2020 hebben we ons voortdurend ontwikkeld als toonaangevend bedrijf in de vastgoedsector. Gedurende deze periode hebben we waardevolle inzichten verzameld en ons vakmanschap verfijnd om onze klanten een ongeëvenaarde dienstverlening te bieden.
Onze missie is om de perfecte match te creëren tussen individuen en vastgoed, en dit streven we na door onze diepgaande kennis van de markt te combineren met een innovatieve benadering van klantinteractie. Door te luisteren naar uw woonvoorkeuren en -behoeften, zijn we in staat om op maat gemaakte oplossingen te presenteren die naadloos aansluiten op uw levensstijl.
De drijvende krachten achter De Woonmakers, Jan en Krisja, delen een passie voor vastgoed en een toewijding om de klanten te voorzien van een ongeëvenaarde ervaring. Met jarenlange expertise in verschillende facetten van de vastgoedmarkt streven zij ernaar om een service te bieden die verder gaat dan alleen transacties. “Onze klanten kunnen rekenen op een persoonlijke aanpak die gericht is op het creëren van langdurige relaties en het leveren van op maat gemaakte oplossingen die voldoen aan hun specifieke behoeften.”
Beekstraat 6
Leer meer over vastgoed
04 January 2026
Zoek je een kantoor, een magazijn of… iets ertussenin? Bedrijfsvastgoed uitgelegd
05 November 2024
Bedrijfsvastgoed in transitie: ontdek de toekomst van werkplekken
16 October 2024
Opbrengsteigendom: een slim pad naar passief inkomen en vermogensgroei
09 September 2024
