INSTAPKLARE HANDELSRUIMTE MET KANTOOR, VERGADERRUIMTE EN KELDER OP TOPLOCATIE IN SINT-TRUIDEN
Een pand van De woonmakers
Overzicht
- 114 m² bewoonbaar
Beschrijving
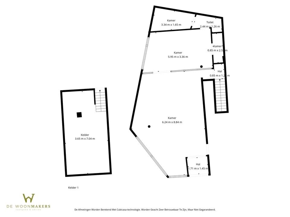
In de Clement Cartuyvelstraat 39 in Sint-Truiden bevindt zich deze instapklare handelsruimte, perfect geschikt voor wie op zoek is naar een kwalitatieve en verzorgde plek om een zaak of kantoor te vestigen. Dankzij de praktische indeling en het verzorgde interieur is dit pand ideaal voor zelfstandigen, vrije beroepen, dienstenverleners of kleine ondernemingen.
De ruimte werd ingericht als kantoor/bureel met een professioneel, verzorgd voorkomen. Er is een afzonderlijke vergaderruimte, ideaal voor overlegmomenten, klantenontvangst of rustige werkplekken.
Verder beschikt het pand over een apart toilet, een handige berging en een kelder, wat zorgt voor extra stockage- en archiefruimte—een absolute troef voor iedere beroepsactiviteit.
De ligging is vlot bereikbaar en bevindt zich op korte afstand van het centrum, winkels, openbaar vervoer en belangrijke invalswegen. Hierdoor is zowel zichtbaarheid als toegankelijkheid gegarandeerd.
Hebben wij uw interesse kunnen wekken? Maak dan snel een afspraak op 011/98.88.98 of via info@dewoonmakers.be
De vermelde oppervlaktes zijn indicatief. De Woonmakers kan niet verantwoordelijk gesteld worden voor de juistheid van de door zijn verstrekte gegevens.
De ruimte werd ingericht als kantoor/bureel met een professioneel, verzorgd voorkomen. Er is een afzonderlijke vergaderruimte, ideaal voor overlegmomenten, klantenontvangst of rustige werkplekken.
Verder beschikt het pand over een apart toilet, een handige berging en een kelder, wat zorgt voor extra stockage- en archiefruimte—een absolute troef voor iedere beroepsactiviteit.
De ligging is vlot bereikbaar en bevindt zich op korte afstand van het centrum, winkels, openbaar vervoer en belangrijke invalswegen. Hierdoor is zowel zichtbaarheid als toegankelijkheid gegarandeerd.
Hebben wij uw interesse kunnen wekken? Maak dan snel een afspraak op 011/98.88.98 of via info@dewoonmakers.be
De vermelde oppervlaktes zijn indicatief. De Woonmakers kan niet verantwoordelijk gesteld worden voor de juistheid van de door zijn verstrekte gegevens.
In de Clement Cartuyvelstraat 39 in Sint-Truiden bevindt zich deze instapklare handelsruimte, perfect geschikt voor wie op zoek is naar een kwalitatieve en verzorgde plek om een zaak of kantoor te vestigen. Dankzij de praktische indeling en het verzorgde interieur is dit pand ideaal voor zelfstandigen, vrije beroepen, dienstenverleners of kleine ondernemingen.
De ruimte werd ingericht als kantoor/bureel met een professioneel, verzorgd voorkomen. Er is een afzonderlijke vergaderruimte, ideaal voor overlegmomenten, klantenontvangst of rustige werkplekken.
Verder beschikt het pand over een apart toilet, een handige berging en een kelder, wat zorgt voor extra stockage- en archiefruimte—een absolute troef voor iedere beroepsactiviteit.
De ligging is vlot bereikbaar en bevindt zich op korte afstand van het centrum, winkels, openbaar vervoer en belangrijke invalswegen. Hierdoor is zowel zichtbaarheid als toegankelijkheid gegarandeerd.
Hebben wij uw interesse kunnen wekken? Maak dan snel een afspraak op 011/98.88.98 of via info@dewoonmakers.be
De vermelde oppervlaktes zijn indicatief. De Woonmakers kan niet verantwoordelijk gesteld worden voor de juistheid van de door zijn verstrekte gegevens.
De ruimte werd ingericht als kantoor/bureel met een professioneel, verzorgd voorkomen. Er is een afzonderlijke vergaderruimte, ideaal voor overlegmomenten, klantenontvangst of rustige werkplekken.
Verder beschikt het pand over een apart toilet, een handige berging en een kelder, wat zorgt voor extra stockage- en archiefruimte—een absolute troef voor iedere beroepsactiviteit.
De ligging is vlot bereikbaar en bevindt zich op korte afstand van het centrum, winkels, openbaar vervoer en belangrijke invalswegen. Hierdoor is zowel zichtbaarheid als toegankelijkheid gegarandeerd.
Hebben wij uw interesse kunnen wekken? Maak dan snel een afspraak op 011/98.88.98 of via info@dewoonmakers.be
De vermelde oppervlaktes zijn indicatief. De Woonmakers kan niet verantwoordelijk gesteld worden voor de juistheid van de door zijn verstrekte gegevens.
Energie
![]() |
- EPC Certificaat: 20240228-0003158522-KNR-1
- E-peil: E0
- Verwarming: Elektriciteit
- Beglazing: Standaard dubbel
Op de kaart

Financieel
| Prijs | |
|---|---|
| Kadastraal inkomen (niet geïndexeerd) | € 630 |
Berekening kosten
Je aankoopkosten? Die heb je snel berekend via de knop hieronder.
Bijkomende info
Gebouw
| Bouwjaar | 1995 |
|---|---|
| Bouwcertificaat | Nee |
| Bewoonbaar (m²) | 114 |
| Badkamers | 0 |
| Slaapkamers | 0 |
| Verdiepingen | 0 |
| Garages | 0 |
| Parkeerplaatsen | 0 |
| Toiletten | 0 |
Faciliteiten
| Beglazing | Standaard dubbel |
|---|---|
| Brandstof primaire verwarming | Elektriciteit |
| Septische tank | Nee |
Perceel
| Overstromingsgevoelig | Geen |
|---|---|
| P-score | A |
| G-score | A |
| Bebouwde oppervlakte (m²) | 0 |
Vergunning
| Verkavelingsvergunning | Geen beschikbaar |
|---|
Uitrusting
| Investeringspand | Nee |
|---|---|
| Parking | Nee |
| Garage | Nee |
| Lift | Nee |
| Rioolaansluiting | Nee |
| Gasaansluiting | Nee |
| Wateraansluiting | Nee |
| Elektriciteitsaansluiting | Nee |
| Internetaansluiting | Nee |
| Telefoonaansluiting | Nee |
| Zonnepanelen | Nee |
| Zonneboiler | Nee |
| Alarm | Nee |
| Videofoon | Nee |
| Grondwaterput | Nee |
Appartementsblok
| Lift | Nee |
|---|---|
| Intercom | Nee |
Een pand van
De woonmakers
De Woonmakers Win-win in vastgoed
Bij De Woonmakers staat ervaring centraal. Sinds onze oprichting in 2020 hebben we ons voortdurend ontwikkeld als toonaangevend bedrijf in de vastgoedsector. Gedurende deze periode hebben we waardevolle inzichten verzameld en ons vakmanschap verfijnd om onze klanten een ongeëvenaarde dienstverlening te bieden.
Onze missie is om de perfecte match te creëren tussen individuen en vastgoed, en dit streven we na door onze diepgaande kennis van de markt te combineren met een innovatieve benadering van klantinteractie. Door te luisteren naar uw woonvoorkeuren en -behoeften, zijn we in staat om op maat gemaakte oplossingen te presenteren die naadloos aansluiten op uw levensstijl.
De drijvende krachten achter De Woonmakers, Jan en Krisja, delen een passie voor vastgoed en een toewijding om de klanten te voorzien van een ongeëvenaarde ervaring. Met jarenlange expertise in verschillende facetten van de vastgoedmarkt streven zij ernaar om een service te bieden die verder gaat dan alleen transacties. “Onze klanten kunnen rekenen op een persoonlijke aanpak die gericht is op het creëren van langdurige relaties en het leveren van op maat gemaakte oplossingen die voldoen aan hun specifieke behoeften.”
Clement Cartuyvelstraat 39
Leer meer over vastgoed
04 January 2026
Zoek je een kantoor, een magazijn of… iets ertussenin? Bedrijfsvastgoed uitgelegd
05 November 2024
Bedrijfsvastgoed in transitie: ontdek de toekomst van werkplekken
16 October 2024
Opbrengsteigendom: een slim pad naar passief inkomen en vermogensgroei
09 September 2024
