Nieuw
HALFOPEN BEBOUWING MET 3 SLKS EN EEN GARAGE VLAKBIJ HET CENTRUM
€ 295.000
Een pand van De woonmakers
Overzicht
- 161 m² bewoonbaar
- 326 m² grond
- 3 Slaapkamer(s)
- 1 Badkamer(s)
- 1 Toilet(ten)
- 1 Garage(s)
Beschrijving
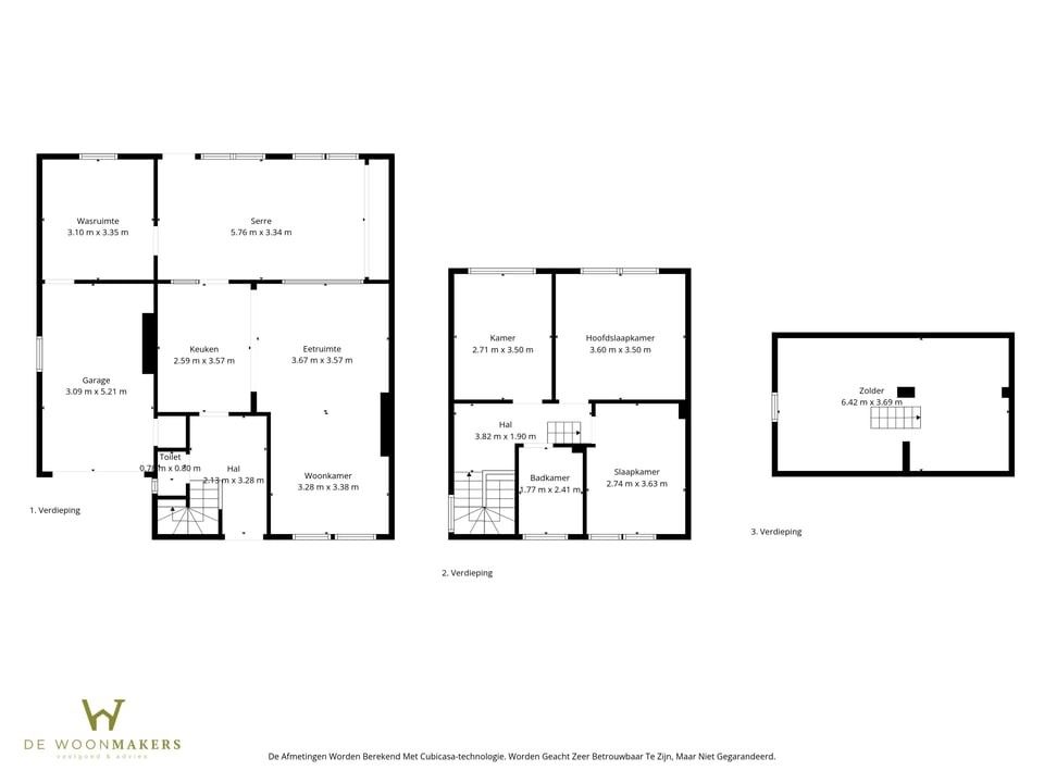
Langs de Lupinestraat ter hoogte van nummer 3 vinden we deze gezinswoning terug. Grote troef is hier is ongetwijfeld de ligging! Het bruisende stadscentrum van Sint-Truiden vinden we terug op wandelafstand, daar treffen we tevens alle nodige faciliteiten aan. Eveneens het openbaar vervoer en de belangrijke invalswegen richting Hasselt, Tienen en Gingelom zijn vlakbij gelegen.
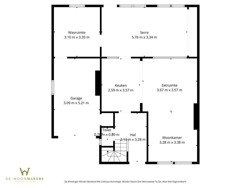
Bij het betreden van de woning komen we terecht in de inkomhal. Deze leidt ons naar de open keuken en leefruimte en bergt reeds een gastentoilet. In de gezellige leefruimte is er meer dan voldoende ruimte om zowel een living als een eetkamer in onder te brengen.
Deze nodigt uit om heerlijk te vertoeven na een drukke werkdag.
Verder treffen we op het gelijkvloers nog een praktische berging en ruime zithoek of polyvalente ruimte.
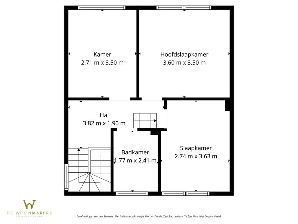
Via de trap in de inkomhal bereikt men het verdiep. De nachthal leidt ons naar de drie ruime slaapkamers en de badkamer. Deze laatste is voorzien van een bad en een badkamermeubel met lavabo.
De woning is tevens voorzien van een zolder!
Voor wie graag de frisse buitenlucht opzoekt kan je terecht in de volledig omheinde tuin!
De woning is eveneens voorzien van 18 zonnepanelen.
Maak dan snel een afspraak op het nummer 011/98.88.98 of via info@dewoonmakers.be
De vermelde oppervlaktes zijn indicatief. De Woonmakers kan niet verantwoordelijk gesteld worden voor de juistheid van de door zijn verstrekte gegevens.
Bij het betreden van de woning komen we terecht in de inkomhal. Deze leidt ons naar de open keuken en leefruimte en bergt reeds een gastentoilet. In de gezellige leefruimte is er meer dan voldoende ruimte om zowel een living als een eetkamer in onder te brengen.
Deze nodigt uit om heerlijk te vertoeven na een drukke werkdag.
Verder treffen we op het gelijkvloers nog een praktische berging en ruime zithoek of polyvalente ruimte.
Via de trap in de inkomhal bereikt men het verdiep. De nachthal leidt ons naar de drie ruime slaapkamers en de badkamer. Deze laatste is voorzien van een bad en een badkamermeubel met lavabo.
De woning is tevens voorzien van een zolder!
Voor wie graag de frisse buitenlucht opzoekt kan je terecht in de volledig omheinde tuin!
De woning is eveneens voorzien van 18 zonnepanelen.
Maak dan snel een afspraak op het nummer 011/98.88.98 of via info@dewoonmakers.be
De vermelde oppervlaktes zijn indicatief. De Woonmakers kan niet verantwoordelijk gesteld worden voor de juistheid van de door zijn verstrekte gegevens.
Langs de Lupinestraat ter hoogte van nummer 3 vinden we deze gezinswoning terug. Grote troef is hier is ongetwijfeld de ligging! Het bruisende stadscentrum van Sint-Truiden vinden we terug op wandelafstand, daar treffen we tevens alle nodige faciliteiten aan. Eveneens het openbaar vervoer en de belangrijke invalswegen richting Hasselt, Tienen en Gingelom zijn vlakbij gelegen.
Bij het betreden van de woning komen we terecht in de inkomhal. Deze leidt ons naar de open keuken en leefruimte en bergt reeds een gastentoilet. In de gezellige leefruimte is er meer dan voldoende ruimte om zowel een living als een eetkamer in onder te brengen.
Deze nodigt uit om heerlijk te vertoeven na een drukke werkdag.
Verder treffen we op het gelijkvloers nog een praktische berging en ruime zithoek of polyvalente ruimte.
Via de trap in de inkomhal bereikt men het verdiep. De nachthal leidt ons naar de drie ruime slaapkamers en de badkamer. Deze laatste is voorzien van een bad en een badkamermeubel met lavabo.
De woning is tevens voorzien van een zolder! Aan opbergruimte geen gebrek!
Voor wie graag de frisse buitenlucht opzoekt kan je terecht in de volledig omheinde tuin!
Als kers op de taart is deze woning nog voorzien van 18 zonnepanelen (5.400 Wp) om te voorzien in jouw gebruik!
Hebben wij uw interesse kunnen wekken voor deze gezellige gezinswoning? Maak dan snel een afspraak op het nummer 011/98.88.98 of via info@dewoonmakers.be
De vermelde oppervlaktes zijn indicatief. De Woonmakers kan niet verantwoordelijk gesteld worden voor de juistheid van de door zijn verstrekte gegevens.
Bij het betreden van de woning komen we terecht in de inkomhal. Deze leidt ons naar de open keuken en leefruimte en bergt reeds een gastentoilet. In de gezellige leefruimte is er meer dan voldoende ruimte om zowel een living als een eetkamer in onder te brengen.
Deze nodigt uit om heerlijk te vertoeven na een drukke werkdag.
Verder treffen we op het gelijkvloers nog een praktische berging en ruime zithoek of polyvalente ruimte.
Via de trap in de inkomhal bereikt men het verdiep. De nachthal leidt ons naar de drie ruime slaapkamers en de badkamer. Deze laatste is voorzien van een bad en een badkamermeubel met lavabo.
De woning is tevens voorzien van een zolder! Aan opbergruimte geen gebrek!
Voor wie graag de frisse buitenlucht opzoekt kan je terecht in de volledig omheinde tuin!
Als kers op de taart is deze woning nog voorzien van 18 zonnepanelen (5.400 Wp) om te voorzien in jouw gebruik!
Hebben wij uw interesse kunnen wekken voor deze gezellige gezinswoning? Maak dan snel een afspraak op het nummer 011/98.88.98 of via info@dewoonmakers.be
De vermelde oppervlaktes zijn indicatief. De Woonmakers kan niet verantwoordelijk gesteld worden voor de juistheid van de door zijn verstrekte gegevens.
Energie
![]() |
- EPC Certificaat: 20190321-00021143656-res-1
- Energieverbruik: 164 kWh/m²/jaar
- E-peil: E0
- Verwarming: Gas
- Beglazing: Standaard dubbel
Op de kaart

Financieel
Prijs | |
---|---|
Kadastraal inkomen (niet geïndexeerd) | € 713 |
Berekening kosten
Je aankoopkosten? Die heb je snel berekent via de knop hieronder.
Bijkomende info
Gebouw
Bouwjaar | 1971 |
---|---|
Staat | Goed onderhouden |
Bouwcertificaat | Nee |
Bewoonbaar (m²) | 161 |
Badkamers | 1 |
Slaapkamers | 3 |
Verdiepingen | 0 |
Garages | 1 |
Parkeerplaatsen | 0 |
Toiletten | 1 |
Faciliteiten
Beglazing | Standaard dubbel |
---|---|
Brandstof primaire verwarming | Gas |
Septische tank | Nee |
Perceel
Overstromingsgevoelig | Geen |
---|---|
P-score | B |
G-score | B |
Totale oppervlakte (m²) | 326 |
Bebouwde oppervlakte (m²) | 0 |
Vergunning
Verkavelingsvergunning | Geen beschikbaar |
---|
Uitrusting
Investeringspand | Nee |
---|---|
Parking | Nee |
Garage | Ja |
Zolder | Ja |
Opslagruimte | Ja |
Lift | Nee |
Rioolaansluiting | Nee |
Gasaansluiting | Nee |
Wateraansluiting | Nee |
Elektriciteitsaansluiting | Nee |
Internetaansluiting | Nee |
Telefoonaansluiting | Nee |
Zonnepanelen | Ja |
Zonneboiler | Nee |
Alarm | Nee |
Videofoon | Nee |
Grondwaterput | Nee |
Een pand van
De woonmakers
De Woonmakers Win-win in vastgoed
Bij De Woonmakers staat ervaring centraal. Sinds onze oprichting in 2020 hebben we ons voortdurend ontwikkeld als toonaangevend bedrijf in de vastgoedsector. Gedurende deze periode hebben we waardevolle inzichten verzameld en ons vakmanschap verfijnd om onze klanten een ongeëvenaarde dienstverlening te bieden.
Onze missie is om de perfecte match te creëren tussen individuen en vastgoed, en dit streven we na door onze diepgaande kennis van de markt te combineren met een innovatieve benadering van klantinteractie. Door te luisteren naar uw woonvoorkeuren en -behoeften, zijn we in staat om op maat gemaakte oplossingen te presenteren die naadloos aansluiten op uw levensstijl.
De drijvende krachten achter De Woonmakers, Jan en Krisja, delen een passie voor vastgoed en een toewijding om de klanten te voorzien van een ongeëvenaarde ervaring. Met jarenlange expertise in verschillende facetten van de vastgoedmarkt streven zij ernaar om een service te bieden die verder gaat dan alleen transacties. “Onze klanten kunnen rekenen op een persoonlijke aanpak die gericht is op het creëren van langdurige relaties en het leveren van op maat gemaakte oplossingen die voldoen aan hun specifieke behoeften.”
Lupinestraat 3
Leer meer over vastgoed
11 June 2025
Huis kopen met bouwovertreding? Dit moet je weten
11 May 2025
Renoveren? Vraag je Mijn VerbouwPremie aan
22 April 2025
Je allereerste renovatieproject selecteren én budgetteren: met de praktische hulp van Spotto
17 February 2025