HEDENDAAGSE WONING NABIJ HET CENTRUM
€ 398.000
Een pand van Canius Real Estate
Overzicht
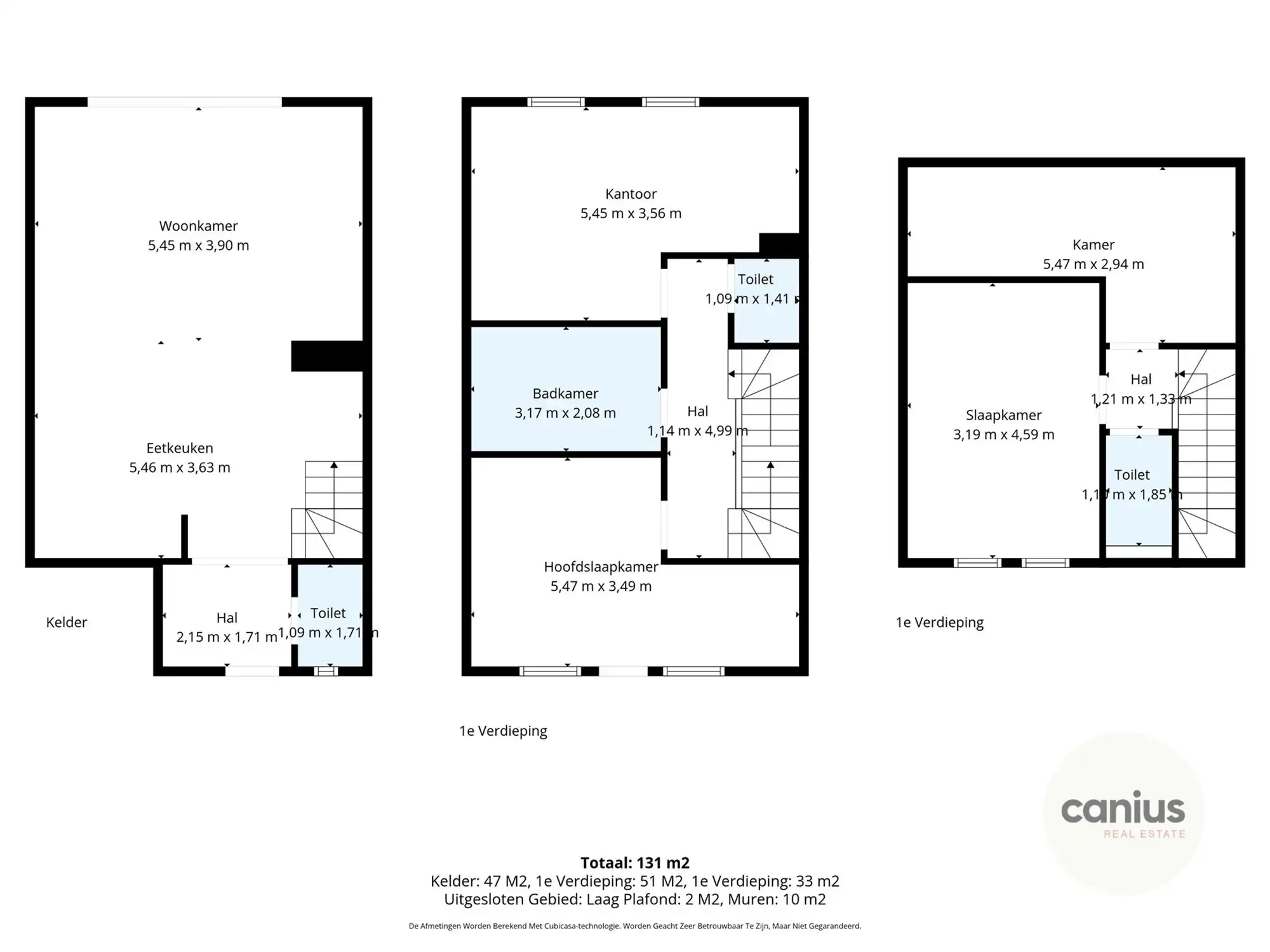
- 145 m² bewoonbaar
- 3 Slaapkamer(s)
- 1 Badkamer(s)
- 3 Toilet(ten)
Beschrijving
HEDENDAAGSE WONING NABIJ HET CENTRUM
Sint-Agneshof 8 te Sint-Truiden is de thuisbasis van deze hedendaagse woning.
We bevinden ons op wandelafstand van het bruisende centrum en vlakbij de ingang van natuurdomein Het Speelhof.
Eveneens het openbaar vervoer en de belangrijke invalswegen richting Hasselt, Tienen en Gingelom zijn vlakbij gelegen.
Bij het betreden van de woning ontdekken we een inkomhal, een apart gastentoilet, een ruime leefruimte met open keuken en een berging.
De eerste verdieping biedt een nachthal, een apart toilet, een badkamer en twee slaapkamers met mogelijkheid tot dressing.
De zolderverdieping werd netjes afgewerkt, hier vinden we een derde slaapkamer, een apart toilet en de technische ruimte terug.
Bijkomend beschikt deze woning over een aangenaam terras en voldoende parkeergelegenheid op de gratis parking van het Begijnhof.
Momenteel is deze woning verhuurd, ideaal als investering of voor eigen bewoning.
KORT SAMENGEVAT:
Vraagprijs: € 398.000,00
Verkoop onder registratierechten (2% of 12%)
Nieuwsgierig naar deze woning?
Maak snel een afspraak en kom ze ontdekken 078 78 30 39 info@canius.be
*Deze gegevens zijn louter ter informatieve titel. De vermelde oppervlaktes zijn slechts indicatie. Canius Real Estate kan niet verantwoordelijk gesteld worden voor de juistheid van de aan haar verstrekte gegevens.
Energie
![]() |
- EPC Certificaat: 71053-G-DBA_2017031655/EP02527/W005/D01/SD001
- Energieverbruik: 48 kWh/m²/jaar
- E-peil: E0
- Beglazing: Standaard dubbel
Op de kaart

Financieel
| Prijs | |
|---|---|
| Kadastraal inkomen (niet geïndexeerd) | € 702 |
| Kadastraal inkomen (geïndexeerd) | € 0 |
Berekening kosten
Je aankoopkosten? Die heb je snel berekend via de knop hieronder.
Bijkomende info
Gebouw
| Bouwjaar | 2021 |
|---|---|
| Bouwcertificaat | Ja |
| Bewoonbaar (m²) | 145 |
| Verdieping | 0 |
| Badkamers | 1 |
| Slaapkamers | 3 |
| Verdiepingen | 0 |
| Garages | 0 |
| Parkeerplaatsen | 0 |
| Doucheruimtes | 0 |
| Toiletten | 3 |
Faciliteiten
| Keuken uitrusting | Luxueus uitgerust |
|---|---|
| Materiaal ramenomlijstingen | Aluminium |
| Beglazing | Standaard dubbel |
| Elektrisch keuringsattest | Ja |
Perceel
| Overstromingsgevoelig | Geen |
|---|---|
| P-score | A |
| G-score | A |
| Voorkeurrecht | Nee |
| Bebouwde oppervlakte (m²) | 88 |
| Tuin oppervlakte (m²) | 0 |
| Oppervlakte terras (m²) | 0 |
| Oriëntatie tuin | Zuid |
Vergunning
| Vergunning | Vergunning beschikbaar |
|---|
Uitrusting
| Investeringspand | Nee |
|---|---|
| Geschikt voor praktijk | Nee |
| Parking | Nee |
| Garage | Nee |
| Thuiskantoor | Nee |
| Kelder | Nee |
| Zolder | Nee |
| Tuin | Nee |
| Terras | Nee |
| Lift | Nee |
| Rioolaansluiting | Nee |
| Gasaansluiting | Nee |
| Wateraansluiting | Nee |
| Elektriciteitsaansluiting | Nee |
| TV aansluiting | Nee |
| Internetaansluiting | Nee |
| Telefoonaansluiting | Nee |
