GEZELLIGE OPEN BEBOUWING MET LANDELIJKE CHARME OP EEN MOOI PERCEEL
€ 415.000
Een pand van De woonmakers
Overzicht
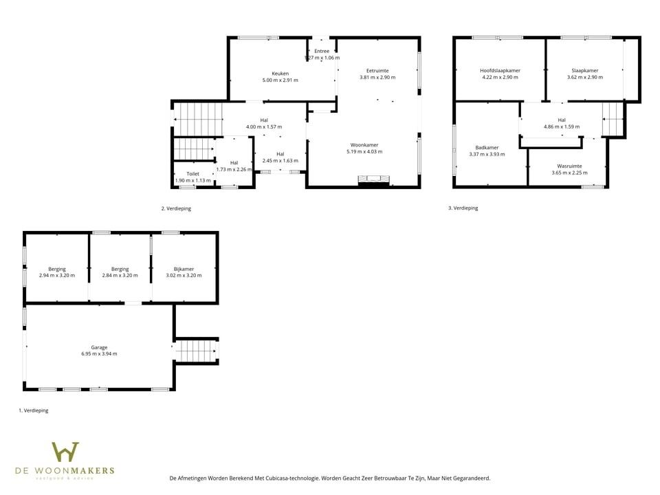
- 200 m² bewoonbaar
- 946 m² grond
- 2 Slaapkamer(s)
- 1 Badkamer(s)
Beschrijving
Welkom in deze warme en karaktervolle woning, gelegen in een rustige en groene omgeving aan de Zonneveldweg 5 in Wellen. Deze open bebouwing combineert landelijke charme met hedendaags wooncomfort, en dat op een ruim perceel van 9a46ca met een bewoonbare oppervlakte van 200m².
Binnenin ademt de woning warmte en gezelligheid. De inrichting is landelijk en stijlvol, met oog voor detail en gebruik van mooie, degelijke materialen. De leefruimtes vormen een harmonieus geheel, ideaal voor wie houdt van een warme thuis met een tijdloze uitstraling.
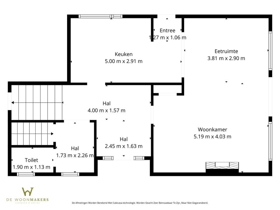
De volledig ingerichte keuken sluit perfect aan bij de leefruimte en nodigt uit tot koken en tafelen met familie of vrienden.
De woning beschikt over twee ruime slaapkamers, elk met voldoende lichtinval, airco en opbergruimte. De badkamer is een echte blikvanger: een combinatie van stijl en comfort, voorzien van zowel een ligbad als een inloopdouche – de ideale plek om te ontspannen na een lange dag. Mogelijkheid tot creëren 2 à 3 extra slaapkamers mits afwerking zolderverdiep.
De tuin is een waar rustoord. Dankzij de natuurlijke begroeiing en de strategische ligging van de bomen geniet je hier van voldoende privacy. Het gezellige terras is perfect voor zomerse diners of rustige momenten met een boek, terwijl het zwembad uitnodigt om te verfrissen op warme dagen.
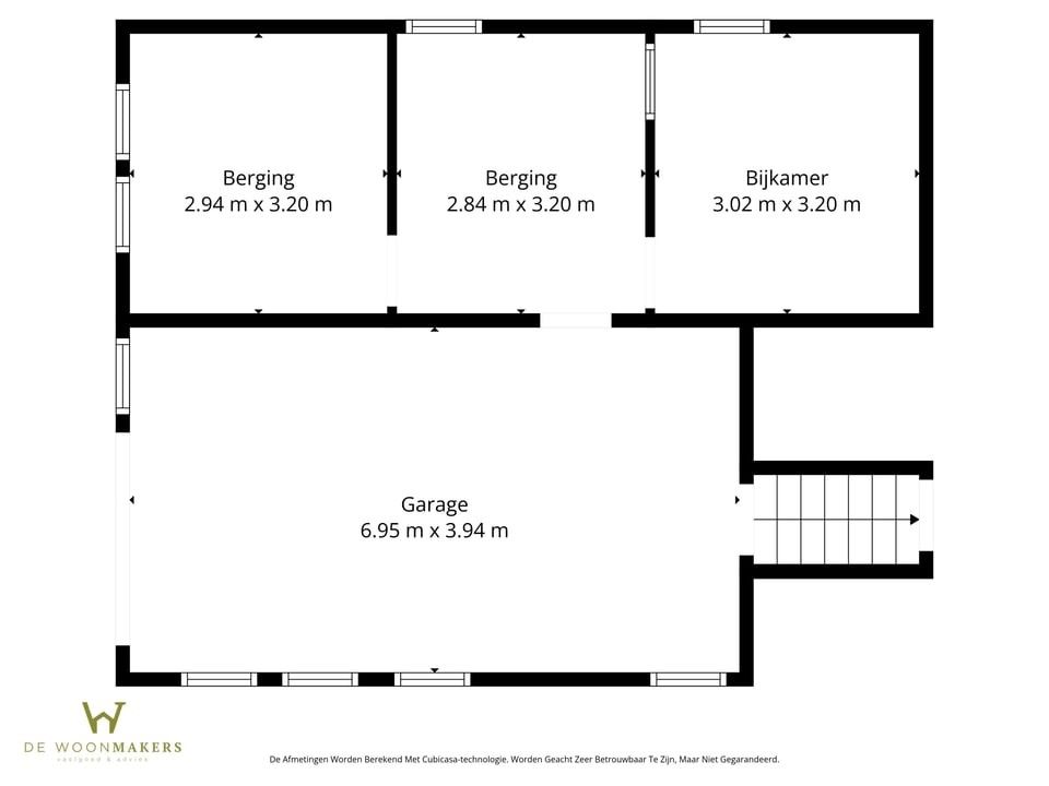
De woning beschikt over een ruime garage en een laadpaal.
Hebben wij uw interesse kunnen wekken voor deze karaktervolle woonst? Neem dan snel contact op met ons op het nummer 011/98.88.98 of via info@dewoonmakers.be
Binnenin ademt de woning warmte en gezelligheid. De inrichting is landelijk en stijlvol, met oog voor detail en gebruik van mooie, degelijke materialen. De leefruimtes vormen een harmonieus geheel, ideaal voor wie houdt van een warme thuis met een tijdloze uitstraling.
De volledig ingerichte keuken sluit perfect aan bij de leefruimte en nodigt uit tot koken en tafelen met familie of vrienden.
De woning beschikt over twee ruime slaapkamers, elk met voldoende lichtinval, airco en opbergruimte. De badkamer is een echte blikvanger: een combinatie van stijl en comfort, voorzien van zowel een ligbad als een inloopdouche – de ideale plek om te ontspannen na een lange dag. Mogelijkheid tot creëren 2 à 3 extra slaapkamers mits afwerking zolderverdiep.
De tuin is een waar rustoord. Dankzij de natuurlijke begroeiing en de strategische ligging van de bomen geniet je hier van voldoende privacy. Het gezellige terras is perfect voor zomerse diners of rustige momenten met een boek, terwijl het zwembad uitnodigt om te verfrissen op warme dagen.
De woning beschikt over een ruime garage en een laadpaal.
Hebben wij uw interesse kunnen wekken voor deze karaktervolle woonst? Neem dan snel contact op met ons op het nummer 011/98.88.98 of via info@dewoonmakers.be
Welkom in deze warme en karaktervolle woning, gelegen in een rustige en groene omgeving aan de Zonneveldweg 5 in Wellen. Deze open bebouwing combineert landelijke charme met hedendaags wooncomfort, en dat op een ruim perceel van 9a46ca met een bewoonbare oppervlakte van 200m².
Vanaf het eerste moment voel je de rust die deze plek uitstraalt. De woning is omgeven door bomen en groen, waardoor je hier elke dag kan genieten van een heerlijk gevoel van privacy en ontspanning.
Binnenin ademt de woning warmte en gezelligheid. De inrichting is landelijk en stijlvol, met oog voor detail en gebruik van mooie, degelijke materialen. De leefruimtes vormen een harmonieus geheel, ideaal voor wie houdt van een warme thuis met een tijdloze uitstraling.
De volledig ingerichte keuken sluit perfect aan bij de leefruimte en nodigt uit tot koken en tafelen met familie of vrienden.
De woning beschikt over twee ruime slaapkamers, elk met voldoende lichtinval, airco's en opbergruimte. De badkamer is een echte blikvanger: een combinatie van stijl en comfort, voorzien van zowel een ligbad als een inloopdouche – de ideale plek om te ontspannen na een lange dag.
Mogelijkheid tot creëren 2 à 3 extra slaapkamers mits afwerking zolderverdiep.
De tuin is een waar rustoord. Dankzij de natuurlijke begroeiing en de strategische ligging van de bomen geniet je hier van voldoende privacy. Het gezellige terras is perfect voor zomerse diners of rustige momenten met een boek, terwijl het zwembad uitnodigt om te verfrissen op warme dagen. De zuidgerichte tuin zorgt de hele dag voor zon, en dankzij de zonneluifel geniet je ook van aangename schaduw wanneer je dat wil.
Naast charme en comfort is er ook aan functionaliteit gedacht. De woning beschikt over een ruime garage, ideaal voor het stallen van een wagen, fietsen of extra opslagruimte.
Bovendien is de woning ook nog voorzien van een laadpaal.
Hebben wij uw interesse kunnen wekken voor deze karaktervolle woonst? Neem dan snel contact op met ons op het nummer 011/98.88.98 of via info@dewoonmakers.be
De vermelde oppervlaktes zijn indicatief. De Woonmakers kan niet verantwoordelijk gesteld worden voor de juistheid van de door zijn verstrekte gegevens.
Vanaf het eerste moment voel je de rust die deze plek uitstraalt. De woning is omgeven door bomen en groen, waardoor je hier elke dag kan genieten van een heerlijk gevoel van privacy en ontspanning.
Binnenin ademt de woning warmte en gezelligheid. De inrichting is landelijk en stijlvol, met oog voor detail en gebruik van mooie, degelijke materialen. De leefruimtes vormen een harmonieus geheel, ideaal voor wie houdt van een warme thuis met een tijdloze uitstraling.
De volledig ingerichte keuken sluit perfect aan bij de leefruimte en nodigt uit tot koken en tafelen met familie of vrienden.
De woning beschikt over twee ruime slaapkamers, elk met voldoende lichtinval, airco's en opbergruimte. De badkamer is een echte blikvanger: een combinatie van stijl en comfort, voorzien van zowel een ligbad als een inloopdouche – de ideale plek om te ontspannen na een lange dag.
Mogelijkheid tot creëren 2 à 3 extra slaapkamers mits afwerking zolderverdiep.
De tuin is een waar rustoord. Dankzij de natuurlijke begroeiing en de strategische ligging van de bomen geniet je hier van voldoende privacy. Het gezellige terras is perfect voor zomerse diners of rustige momenten met een boek, terwijl het zwembad uitnodigt om te verfrissen op warme dagen. De zuidgerichte tuin zorgt de hele dag voor zon, en dankzij de zonneluifel geniet je ook van aangename schaduw wanneer je dat wil.
Naast charme en comfort is er ook aan functionaliteit gedacht. De woning beschikt over een ruime garage, ideaal voor het stallen van een wagen, fietsen of extra opslagruimte.
Bovendien is de woning ook nog voorzien van een laadpaal.
Hebben wij uw interesse kunnen wekken voor deze karaktervolle woonst? Neem dan snel contact op met ons op het nummer 011/98.88.98 of via info@dewoonmakers.be
De vermelde oppervlaktes zijn indicatief. De Woonmakers kan niet verantwoordelijk gesteld worden voor de juistheid van de door zijn verstrekte gegevens.
Energie
![]() |
- EPC Certificaat: 20210415-0002402059-RES-1
- Energieverbruik: 345 kWh/m²/jaar
- E-peil: E0
- Verwarming: Gas
- Beglazing: Standaard dubbel
Extra budget nodig voor je renovatie?
De overheid helpt je dit pand energetisch te renoveren! Hieronder zie je het premiebedrag dat je mogelijks van de overheid krijgt.
Het huidige EPC-label is:

Op de kaart

Financieel
| Prijs | |
|---|---|
| Kadastraal inkomen (niet geïndexeerd) | € 773 |
Berekening kosten
Je aankoopkosten? Die heb je snel berekent via de knop hieronder.
Bijkomende info
Gebouw
| Bouwjaar | 1970 |
|---|---|
| Bouwcertificaat | Nee |
| Bewoonbaar (m²) | 200 |
| Badkamers | 1 |
| Slaapkamers | 2 |
| Verdiepingen | 0 |
| Garages | 0 |
| Parkeerplaatsen | 0 |
| Toiletten | 0 |
Faciliteiten
| Beglazing | Standaard dubbel |
|---|---|
| Brandstof primaire verwarming | Gas |
| Septische tank | Nee |
Perceel
| Overstromingsgevoelig | Geen |
|---|---|
| P-score | A |
| G-score | B |
| Totale oppervlakte (m²) | 946 |
| Bebouwde oppervlakte (m²) | 0 |
Vergunning
| Verkavelingsvergunning | Geen beschikbaar |
|---|
Uitrusting
| Investeringspand | Nee |
|---|---|
| Parking | Nee |
| Garage | Nee |
| Lift | Nee |
| Rioolaansluiting | Nee |
| Gasaansluiting | Nee |
| Wateraansluiting | Nee |
| Elektriciteitsaansluiting | Nee |
| Internetaansluiting | Nee |
| Telefoonaansluiting | Nee |
| Zonnepanelen | Nee |
| Zonneboiler | Nee |
| Alarm | Nee |
| Videofoon | Nee |
| Grondwaterput | Nee |
Een pand van
De woonmakers
De Woonmakers Win-win in vastgoed
Bij De Woonmakers staat ervaring centraal. Sinds onze oprichting in 2020 hebben we ons voortdurend ontwikkeld als toonaangevend bedrijf in de vastgoedsector. Gedurende deze periode hebben we waardevolle inzichten verzameld en ons vakmanschap verfijnd om onze klanten een ongeëvenaarde dienstverlening te bieden.
Onze missie is om de perfecte match te creëren tussen individuen en vastgoed, en dit streven we na door onze diepgaande kennis van de markt te combineren met een innovatieve benadering van klantinteractie. Door te luisteren naar uw woonvoorkeuren en -behoeften, zijn we in staat om op maat gemaakte oplossingen te presenteren die naadloos aansluiten op uw levensstijl.
De drijvende krachten achter De Woonmakers, Jan en Krisja, delen een passie voor vastgoed en een toewijding om de klanten te voorzien van een ongeëvenaarde ervaring. Met jarenlange expertise in verschillende facetten van de vastgoedmarkt streven zij ernaar om een service te bieden die verder gaat dan alleen transacties. “Onze klanten kunnen rekenen op een persoonlijke aanpak die gericht is op het creëren van langdurige relaties en het leveren van op maat gemaakte oplossingen die voldoen aan hun specifieke behoeften.”
Zonneveldweg 5
Leer meer over vastgoed
24 November 2025
Uitgezocht voor jouw gemeente: Hoeveel stijgt de waarde van je woning door een renovatie?
22 October 2025
Hoeveel kan ik lenen om een huis te kopen?
11 June 2025
Huis kopen met bouwovertreding? Dit moet je weten
11 May 2025


