INTERESSANTE OPBRENGSTEIGENDOM MET HANDELSRUIMTE EN APPARTEMENT
Een pand van De woonmakers
Overzicht
- 257 m² grond
- 1 Slaapkamer(s)
Beschrijving
We bevinden ons hier op een zeer gunstige locatie met een vlotte verbinding naar het centrum van Hasselt en Sint-Truiden waardoor alle nodige faciliteiten binnen handbereik zijn.
De maandelijkse huuropbrengst van het handelspand en het 1-slaapkamer appartement bedraagt hier €2.222,67.
Indeling:
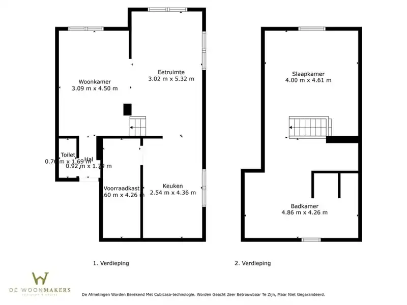
Gelijkvloers: naast de eigenlijke handelsruimte omvat het gelijkvloers nog meerdere werkruimtes en een ruime en net afgewerkte keuken alsook een kelder.
Verdieping: via de vaste trap bereikt men het verdiep. Hier bevindt zich nog een knap appartement.
EPC is in aanvraag.
Bent u opzoek naar een nieuwe uitdaging met zee aan mogelijkheden? Contacteer ons dan snel op het nummer 011/98.88.98 of via info@dewoonmakers.be
Ben jij opzoek naar een goed gelegen handelspand met woonst vlakbij het centrum van Nieuwerkerken? Dan is dit pand op de Diestersteenweg jouw kans!
We bevinden ons hier op een zeer gunstige locatie met een vlotte verbinding naar het centrum van Hasselt en Sint-Truiden waardoor alle nodige faciliteiten binnen handbereik zijn.
De maandelijkse huuropbrengst van het handelspand en het 1-slaapkamer appartement bedraagt hier €2.222,67.
Indeling:
Gelijkvloers: naast de eigenlijke handelsruimte omvat het gelijkvloers nog meerdere werkruimtes en een ruime en net afgewerkte keuken alsook een kelder.
Verdieping: via de vaste trap bereikt men het verdiep. Hier bevindt zich nog een knap appartement.
EPC is in aanvraag.
Bent u opzoek naar een nieuwe uitdaging met zee aan mogelijkheden? Contacteer ons dan snel op het nummer 011/98.88.98 of via info@dewoonmakers.be
Energie
![]() |
- EPC Certificaat: 20250813-0003663555-RES-1
- Energieverbruik: 356 kWh/m²/jaar
- E-peil: E0
- Verwarming: Gas
- Beglazing: Standaard dubbel
Extra budget nodig voor je renovatie?

Op de kaart

Financieel
| Prijs | |
|---|---|
| Kadastraal inkomen (niet geïndexeerd) | € 836 |
Berekening kosten
Je aankoopkosten? Die heb je snel berekent via de knop hieronder.
Bijkomende info
Gebouw
| Staat | Goed onderhouden |
|---|---|
| Verdieping | 0 |
| Badkamers | 0 |
| Slaapkamers | 1 |
| Verdiepingen | 0 |
| Garages | 0 |
| Parkeerplaatsen | 0 |
| Toiletten | 0 |
Faciliteiten
| Keuken uitrusting | Goed uitgerust |
|---|---|
| Beglazing | Standaard dubbel |
| Brandstof primaire verwarming | Gas |
| Septische tank | Nee |
Perceel
| Overstromingsgevoelig | Geen |
|---|---|
| P-score | A |
| G-score | A |
| Totale oppervlakte (m²) | 257 |
| Bebouwde oppervlakte (m²) | 0 |
Vergunning
| Verkavelingsvergunning | Geen beschikbaar |
|---|
Uitrusting
| Investeringspand | Nee |
|---|---|
| Parking | Nee |
| Garage | Nee |
| Lift | Nee |
| Rioolaansluiting | Nee |
| Gasaansluiting | Nee |
| Wateraansluiting | Nee |
| Elektriciteitsaansluiting | Nee |
| Internetaansluiting | Nee |
| Telefoonaansluiting | Nee |
| Zonnepanelen | Nee |
| Zonneboiler | Nee |
| Alarm | Nee |
| Videofoon | Nee |
| Grondwaterput | Nee |


