Nieuw
GEZELLIGE INSTAPKLARE GEZINSWONING MET 3 SLAAPKAMERS EN GARAGE IN KOZEN
Een pand van De woonmakers
Overzicht
- 210 m² bewoonbaar
- 430 m² grond
- 3 Slaapkamer(s)
- 1 Badkamer(s)
- 1 Tuin
- 1 Garage(s)
Beschrijving
Deze knusse gezinswoning vinden we terug op de Streekveldveldstraat ter hoogte van nummer 7. We bevinden ons hier in Kozen. Rustig gelegen, omgeven door groen en toch de ideale uitvalsbasis. Op slechts 5 minuten rijden van diverse scholen, ontspanningsactiviteiten, apotheek, bakker, frituur, ...
Het centrum van Sint-Truiden bevindt zich eveneens op slechts 10 minuten rijden.
Deze knusse gezinswoning met oprit voor meerdere wagens werd gebouwd in het jaar 2012. Er werd bij de opbouw enkel gewerkt met kwalitatieve materialen en is door de eigenaars steeds met veel liefde en zorg onderhouden.
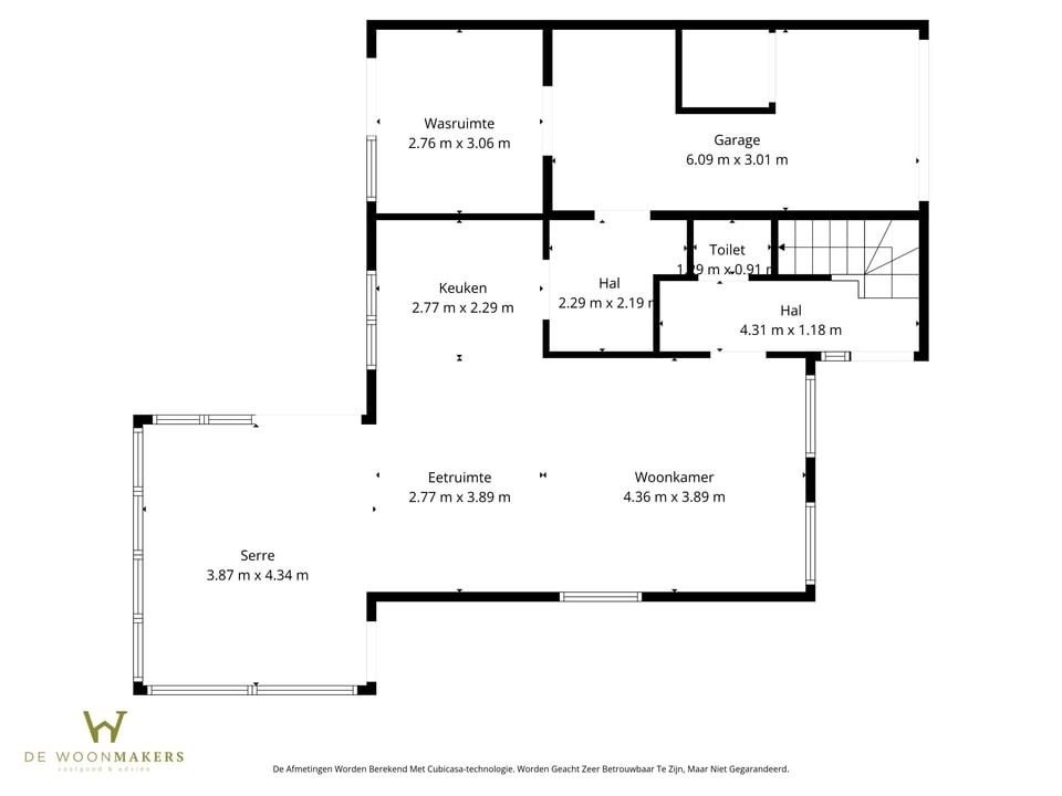
Wanneer we de woning betreden, komen we terecht in de inkomhal. Deze leidt ons alvast naar een apart gastentoilet en de gezellige leefruimte. Deze is voorzien van voldoende daglicht dankzij de vele raampartijen.
De eetruimte en de keuken vormen samen een open ruimte en creëren hier een openlijk gevoel. Tot slot kan men op het gelijkvloers nog een praktische berging terugvinden.
De veranda is hier ook zeker een grote troef!
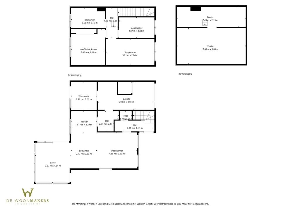
Op de bovenverdieping heeft de woning ons nog drie mooie slaapkamers te bieden. Ook de badkamer kan men terugvinden op dit verdiep.
Bovendien is er ook nog een ruime zolder voorzien.
Groot pluspunt aan de woning is de carport. Ideaal voor er je wagen te plaatsen of fietsen.
Maak dan snel een afspraak op het nummer 011/98.88.98 of via info@dewoonmakers.be
Het centrum van Sint-Truiden bevindt zich eveneens op slechts 10 minuten rijden.
Deze knusse gezinswoning met oprit voor meerdere wagens werd gebouwd in het jaar 2012. Er werd bij de opbouw enkel gewerkt met kwalitatieve materialen en is door de eigenaars steeds met veel liefde en zorg onderhouden.
Wanneer we de woning betreden, komen we terecht in de inkomhal. Deze leidt ons alvast naar een apart gastentoilet en de gezellige leefruimte. Deze is voorzien van voldoende daglicht dankzij de vele raampartijen.
De eetruimte en de keuken vormen samen een open ruimte en creëren hier een openlijk gevoel. Tot slot kan men op het gelijkvloers nog een praktische berging terugvinden.
De veranda is hier ook zeker een grote troef!
Op de bovenverdieping heeft de woning ons nog drie mooie slaapkamers te bieden. Ook de badkamer kan men terugvinden op dit verdiep.
Bovendien is er ook nog een ruime zolder voorzien.
Groot pluspunt aan de woning is de carport. Ideaal voor er je wagen te plaatsen of fietsen.
Maak dan snel een afspraak op het nummer 011/98.88.98 of via info@dewoonmakers.be
Deze knusse gezinswoning vinden we terug op de Streekveldveldstraat ter hoogte van nummer 7. We bevinden ons hier in Kozen. Rustig gelegen, omgeven door groen en toch de ideale uitvalsbasis. Op slechts 5 minuten rijden van diverse scholen, ontspanningsactiviteiten, apotheek, bakker, frituur, ...
Het centrum van Sint-Truiden bevindt zich eveneens op slechts 10 minuten rijden.
Deze knusse gezinswoning met oprit voor meerdere wagens werd gebouwd in het jaar 2012. Er werd bij de opbouw enkel gewerkt met kwalitatieve materialen en is door de eigenaars steeds met veel liefde en zorg onderhouden.
Wanneer we de woning betreden, komen we terecht in de inkomhal. Deze leidt ons alvast naar een apart gastentoilet en de gezellige leefruimte. Deze is voorzien van voldoende daglicht dankzij de vele raampartijen.
De eetruimte en de keuken vormen samen een open ruimte en creëren hier een openlijk gevoel. Tot slot kan men op het gelijkvloers nog een praktische berging terugvinden waar eveneens de aansluiting voor je wasmachine en droogkast voorzien zijn.
De veranda, geplaatst in 2017, is hier ook zeker een grote troef!
Op de bovenverdieping heeft de woning ons nog drie mooie slaapkamers te bieden. Iedere kamer is voorzien van voldoende daglicht, elektrische rolluiken en ruimte voor een bed en kleerkast. Ook de badkamer kan men terugvinden op dit verdiep. Deze beschikt over een badkamermeubel met dubbele lavabo, een toilet en een ligbad en een douche.
Bovendien is er ook nog een ruime zolder voorzien. Aan opbergruimte alvast geen gebrek!
Niet enkel binnen maar ook buiten kent dit pand tal van troeven. Zo vinden we aansluitend aan de woning een aangelegd terras waar het heerlijk vertoeven is met familie en vrienden. Genieten van een heerlijke barbecue met uitzicht op de prachtige tuin, dat kan hier.
Achteraan werd er eveneens tuinberging voorzien en nog een gezellige zithoek gecreëerd.
Groot pluspunt aan de woning is de garage. Ideaal voor er je wagen te plaatsen of fietsen.
Hebben wij uw interesse kunnen wekken voor deze knappe en instapklare gezinswoning? Maak dan snel een afspraak op het nummer 011/98.88.98 of via info@dewoonmakers.be
De vermelde oppervlaktes zijn indicatief. De Woonmakers kan niet verantwoordelijk gesteld worden voor de juistheid van de door zijn verstrekte gegevens.
Het centrum van Sint-Truiden bevindt zich eveneens op slechts 10 minuten rijden.
Deze knusse gezinswoning met oprit voor meerdere wagens werd gebouwd in het jaar 2012. Er werd bij de opbouw enkel gewerkt met kwalitatieve materialen en is door de eigenaars steeds met veel liefde en zorg onderhouden.
Wanneer we de woning betreden, komen we terecht in de inkomhal. Deze leidt ons alvast naar een apart gastentoilet en de gezellige leefruimte. Deze is voorzien van voldoende daglicht dankzij de vele raampartijen.
De eetruimte en de keuken vormen samen een open ruimte en creëren hier een openlijk gevoel. Tot slot kan men op het gelijkvloers nog een praktische berging terugvinden waar eveneens de aansluiting voor je wasmachine en droogkast voorzien zijn.
De veranda, geplaatst in 2017, is hier ook zeker een grote troef!
Op de bovenverdieping heeft de woning ons nog drie mooie slaapkamers te bieden. Iedere kamer is voorzien van voldoende daglicht, elektrische rolluiken en ruimte voor een bed en kleerkast. Ook de badkamer kan men terugvinden op dit verdiep. Deze beschikt over een badkamermeubel met dubbele lavabo, een toilet en een ligbad en een douche.
Bovendien is er ook nog een ruime zolder voorzien. Aan opbergruimte alvast geen gebrek!
Niet enkel binnen maar ook buiten kent dit pand tal van troeven. Zo vinden we aansluitend aan de woning een aangelegd terras waar het heerlijk vertoeven is met familie en vrienden. Genieten van een heerlijke barbecue met uitzicht op de prachtige tuin, dat kan hier.
Achteraan werd er eveneens tuinberging voorzien en nog een gezellige zithoek gecreëerd.
Groot pluspunt aan de woning is de garage. Ideaal voor er je wagen te plaatsen of fietsen.
Hebben wij uw interesse kunnen wekken voor deze knappe en instapklare gezinswoning? Maak dan snel een afspraak op het nummer 011/98.88.98 of via info@dewoonmakers.be
De vermelde oppervlaktes zijn indicatief. De Woonmakers kan niet verantwoordelijk gesteld worden voor de juistheid van de door zijn verstrekte gegevens.
Energie
![]() |
- EPC Certificaat: 20251201-0003746513-RES-1
- Energieverbruik: 160 kWh/m²/jaar
- E-peil: E0
- Verwarming: Gas
- Beglazing: Standaard dubbel
Op de kaart

Financieel
| Prijs | |
|---|---|
| Kadastraal inkomen (niet geïndexeerd) | € 686 |
Berekening kosten
Je aankoopkosten? Die heb je snel berekent via de knop hieronder.
Bijkomende info
Gebouw
| Bouwjaar | 2012 |
|---|---|
| Staat | Goed onderhouden |
| Bouwcertificaat | Nee |
| Bewoonbaar (m²) | 210 |
| Badkamers | 1 |
| Slaapkamers | 3 |
| Verdiepingen | 0 |
| Garages | 1 |
| Parkeerplaatsen | 0 |
| Toiletten | 0 |
Faciliteiten
| Beglazing | Standaard dubbel |
|---|---|
| Brandstof primaire verwarming | Gas |
| Septische tank | Nee |
Perceel
| Overstromingsgevoelig | Geen |
|---|---|
| P-score | A |
| G-score | A |
| Totale oppervlakte (m²) | 430 |
| Bebouwde oppervlakte (m²) | 0 |
| Tuin oppervlakte (m²) | 0 |
Vergunning
| Verkavelingsvergunning | Geen beschikbaar |
|---|
Uitrusting
| Investeringspand | Nee |
|---|---|
| Parking | Nee |
| Garage | Ja |
| Tuin | Ja |
| Lift | Nee |
| Rioolaansluiting | Nee |
| Gasaansluiting | Nee |
| Wateraansluiting | Nee |
| Elektriciteitsaansluiting | Nee |
| Internetaansluiting | Nee |
| Telefoonaansluiting | Nee |
| Zonnepanelen | Nee |
| Zonneboiler | Nee |
| Alarm | Nee |
| Videofoon | Nee |
| Grondwaterput | Ja |
Een pand van
De woonmakers
De Woonmakers Win-win in vastgoed
Bij De Woonmakers staat ervaring centraal. Sinds onze oprichting in 2020 hebben we ons voortdurend ontwikkeld als toonaangevend bedrijf in de vastgoedsector. Gedurende deze periode hebben we waardevolle inzichten verzameld en ons vakmanschap verfijnd om onze klanten een ongeëvenaarde dienstverlening te bieden.
Onze missie is om de perfecte match te creëren tussen individuen en vastgoed, en dit streven we na door onze diepgaande kennis van de markt te combineren met een innovatieve benadering van klantinteractie. Door te luisteren naar uw woonvoorkeuren en -behoeften, zijn we in staat om op maat gemaakte oplossingen te presenteren die naadloos aansluiten op uw levensstijl.
De drijvende krachten achter De Woonmakers, Jan en Krisja, delen een passie voor vastgoed en een toewijding om de klanten te voorzien van een ongeëvenaarde ervaring. Met jarenlange expertise in verschillende facetten van de vastgoedmarkt streven zij ernaar om een service te bieden die verder gaat dan alleen transacties. “Onze klanten kunnen rekenen op een persoonlijke aanpak die gericht is op het creëren van langdurige relaties en het leveren van op maat gemaakte oplossingen die voldoen aan hun specifieke behoeften.”
Streekveldstraat 7
Leer meer over vastgoed
24 November 2025
Uitgezocht voor jouw gemeente: Hoeveel stijgt de waarde van je woning door een renovatie?
22 October 2025
Hoeveel kan ik lenen om een huis te kopen?
11 June 2025
Huis kopen met bouwovertreding? Dit moet je weten
11 May 2025
