Nieuw
INSTAPKLARE GEZINSWONING MET 3 SLKS IN GINGELOM
€ 259.000
Een pand van De woonmakers
Overzicht
- 180 m² bewoonbaar
- 240 m² grond
- 3 Slaapkamer(s)
- 2 Badkamer(s)
Beschrijving
In het landelijke Boekhout, een deelgemeente van Gingelom, vinden we langs de Boekhoutstraat ter hoogte van nummer 13 deze gezellige instapklare gezinswoning terug.
We bevinden ons op een rustige locatie maar toch is er een vlotte verbinding naar het centrum van Gingelom waardoor alle faciliteiten binnen handbereik zijn. Ook zijn omliggende gemeenten zoals Landen en Sint-Truiden vlot bereikbaar!
Deze knusse gezinswoning werd gebouwd begin 20ste eeuw. Doorheen de jaren onderging de woning een aantal opfrissingswerken. Zo werd er een nieuwe keuken voorzien, kreeg de bovenverdieping nieuwe vloeren, er werd een volledig nieuwe badkamer geplaatst, ...
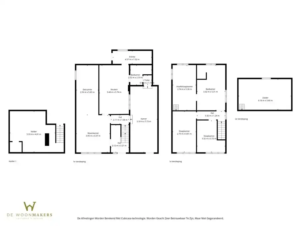
Wanneer we de woning betreden, komen we terecht in de inkomhal. Deze leidt ons alvast naar de gezellige leefruimte. Deze werd hier onderverdeeld in een knusse zit- en eethoek.
Aansluitend treffen we de keuken. Deze nodigt alvast uit om nieuwe gerechten uit te proberen. Tot slot kan men op het gelijkvloers nog een eerste badkamer terugvinden alsook een ruime berging.
Op de bovenverdieping heeft de woning ons nog drie mooie slaapkamers te bieden. Iedere kamer is voorzien van voldoende daglicht en ruimte voor een bed en kleerkast. Ook de ruime badkamer kan men terugvinden op dit verdiep. Deze beschikt over een ligbad, een inloopdouche, een toilet en een badkamermeubel met dubbele lavabo.
Maak dan snel een afspraak op het nummer 011/98.88.98 of via info@dewoonmakers.be
We bevinden ons op een rustige locatie maar toch is er een vlotte verbinding naar het centrum van Gingelom waardoor alle faciliteiten binnen handbereik zijn. Ook zijn omliggende gemeenten zoals Landen en Sint-Truiden vlot bereikbaar!
Deze knusse gezinswoning werd gebouwd begin 20ste eeuw. Doorheen de jaren onderging de woning een aantal opfrissingswerken. Zo werd er een nieuwe keuken voorzien, kreeg de bovenverdieping nieuwe vloeren, er werd een volledig nieuwe badkamer geplaatst, ...
Wanneer we de woning betreden, komen we terecht in de inkomhal. Deze leidt ons alvast naar de gezellige leefruimte. Deze werd hier onderverdeeld in een knusse zit- en eethoek.
Aansluitend treffen we de keuken. Deze nodigt alvast uit om nieuwe gerechten uit te proberen. Tot slot kan men op het gelijkvloers nog een eerste badkamer terugvinden alsook een ruime berging.
Op de bovenverdieping heeft de woning ons nog drie mooie slaapkamers te bieden. Iedere kamer is voorzien van voldoende daglicht en ruimte voor een bed en kleerkast. Ook de ruime badkamer kan men terugvinden op dit verdiep. Deze beschikt over een ligbad, een inloopdouche, een toilet en een badkamermeubel met dubbele lavabo.
Maak dan snel een afspraak op het nummer 011/98.88.98 of via info@dewoonmakers.be
In het landelijke Boekhout, een deelgemeente van Gingelom, vinden we langs de Boekhoutstraat ter hoogte van nummer 13 deze gezellige instapklare gezinswoning terug.
We bevinden ons op een rustige locatie maar toch is er een vlotte verbinding naar het centrum van Gingelom waardoor alle faciliteiten binnen handbereik zijn. Ook zijn omliggende gemeenten zoals Landen en Sint-Truiden vlot bereikbaar!
Winkels, scholen en openbaar vervoer zijn hier op een oogwenk vandaan. Gingelom kenmerkt zich eveneens door de talrijke fiets- en wandelroutes.
Deze knusse gezinswoning werd gebouwd begin 20ste eeuw. Doorheen de jaren onderging de woning een aantal opfrissingswerken. Zo werd er een nieuwe keuken voorzien, kreeg de bovenverdieping nieuwe vloeren, er werd een volledig nieuwe badkamer geplaatst, ...
Wanneer we de woning betreden, komen we terecht in de inkomhal. Deze leidt ons alvast naar de gezellige leefruimte. Deze werd hier onderverdeeld in een knusse zit- en eethoek.
Aansluitend treffen we de keuken. Deze nodigt alvast uit om nieuwe gerechten uit te proberen. Tot slot kan men op het gelijkvloers nog een eerste badkamer terugvinden alsook een ruime berging.
Op de bovenverdieping heeft de woning ons nog drie mooie slaapkamers te bieden. Iedere kamer is voorzien van voldoende daglicht en ruimte voor een bed en kleerkast. Ook de ruime badkamer kan men terugvinden op dit verdiep. Deze beschikt over een ligbad, een inloopdouche, een toilet en een badkamermeubel met dubbele lavabo.
Tot slot zorgt de tuin voor het nodige groen. Ideaal voor de zomerse maanden te spenderen met vrienden en familie.
Hebben wij uw interesse kunnen wekken voor deze instapklare gezinswoning? Maak dan snel een afspraak op het nummer 011/98.88.98 of via info@dewoonmakers.be
De vermelde oppervlaktes zijn indicatief. De Woonmakers kan niet verantwoordelijk gesteld worden voor de juistheid van de door zijn verstrekte gegevens.
We bevinden ons op een rustige locatie maar toch is er een vlotte verbinding naar het centrum van Gingelom waardoor alle faciliteiten binnen handbereik zijn. Ook zijn omliggende gemeenten zoals Landen en Sint-Truiden vlot bereikbaar!
Winkels, scholen en openbaar vervoer zijn hier op een oogwenk vandaan. Gingelom kenmerkt zich eveneens door de talrijke fiets- en wandelroutes.
Deze knusse gezinswoning werd gebouwd begin 20ste eeuw. Doorheen de jaren onderging de woning een aantal opfrissingswerken. Zo werd er een nieuwe keuken voorzien, kreeg de bovenverdieping nieuwe vloeren, er werd een volledig nieuwe badkamer geplaatst, ...
Wanneer we de woning betreden, komen we terecht in de inkomhal. Deze leidt ons alvast naar de gezellige leefruimte. Deze werd hier onderverdeeld in een knusse zit- en eethoek.
Aansluitend treffen we de keuken. Deze nodigt alvast uit om nieuwe gerechten uit te proberen. Tot slot kan men op het gelijkvloers nog een eerste badkamer terugvinden alsook een ruime berging.
Op de bovenverdieping heeft de woning ons nog drie mooie slaapkamers te bieden. Iedere kamer is voorzien van voldoende daglicht en ruimte voor een bed en kleerkast. Ook de ruime badkamer kan men terugvinden op dit verdiep. Deze beschikt over een ligbad, een inloopdouche, een toilet en een badkamermeubel met dubbele lavabo.
Tot slot zorgt de tuin voor het nodige groen. Ideaal voor de zomerse maanden te spenderen met vrienden en familie.
Hebben wij uw interesse kunnen wekken voor deze instapklare gezinswoning? Maak dan snel een afspraak op het nummer 011/98.88.98 of via info@dewoonmakers.be
De vermelde oppervlaktes zijn indicatief. De Woonmakers kan niet verantwoordelijk gesteld worden voor de juistheid van de door zijn verstrekte gegevens.
Energie
![]() |
- EPC Certificaat: 20260206-0003793530-res-1
- Energieverbruik: 336 kWh/m²/jaar
- E-peil: E0
- Beglazing: Standaard dubbel
Extra budget nodig voor je renovatie?
De overheid helpt je dit pand energetisch te renoveren! Hieronder zie je het premiebedrag dat je mogelijks van de overheid krijgt.
Het huidige EPC-label is:

Op de kaart

Financieel
| Prijs | |
|---|---|
| Kadastraal inkomen (niet geïndexeerd) | € 428 |
Berekening kosten
Je aankoopkosten? Die heb je snel berekent via de knop hieronder.
Bijkomende info
Gebouw
| Bouwjaar | 1930 |
|---|---|
| Bouwcertificaat | Nee |
| Bewoonbaar (m²) | 180 |
| Badkamers | 2 |
| Slaapkamers | 3 |
| Verdiepingen | 0 |
| Garages | 0 |
| Parkeerplaatsen | 0 |
| Toiletten | 0 |
Faciliteiten
| Beglazing | Standaard dubbel |
|---|---|
| Septische tank | Nee |
Perceel
| Overstromingsgevoelig | Geen |
|---|---|
| P-score | A |
| G-score | A |
| Totale oppervlakte (m²) | 240 |
| Bebouwde oppervlakte (m²) | 0 |
Vergunning
| Verkavelingsvergunning | Geen beschikbaar |
|---|
Uitrusting
| Investeringspand | Nee |
|---|---|
| Parking | Nee |
| Garage | Nee |
| Lift | Nee |
| Rioolaansluiting | Nee |
| Gasaansluiting | Nee |
| Wateraansluiting | Nee |
| Elektriciteitsaansluiting | Nee |
| Internetaansluiting | Nee |
| Telefoonaansluiting | Nee |
| Zonnepanelen | Nee |
| Zonneboiler | Nee |
| Alarm | Nee |
| Videofoon | Nee |
| Grondwaterput | Nee |
Een pand van
De woonmakers
De Woonmakers Win-win in vastgoed
Bij De Woonmakers staat ervaring centraal. Sinds onze oprichting in 2020 hebben we ons voortdurend ontwikkeld als toonaangevend bedrijf in de vastgoedsector. Gedurende deze periode hebben we waardevolle inzichten verzameld en ons vakmanschap verfijnd om onze klanten een ongeëvenaarde dienstverlening te bieden.
Onze missie is om de perfecte match te creëren tussen individuen en vastgoed, en dit streven we na door onze diepgaande kennis van de markt te combineren met een innovatieve benadering van klantinteractie. Door te luisteren naar uw woonvoorkeuren en -behoeften, zijn we in staat om op maat gemaakte oplossingen te presenteren die naadloos aansluiten op uw levensstijl.
De drijvende krachten achter De Woonmakers, Jan en Krisja, delen een passie voor vastgoed en een toewijding om de klanten te voorzien van een ongeëvenaarde ervaring. Met jarenlange expertise in verschillende facetten van de vastgoedmarkt streven zij ernaar om een service te bieden die verder gaat dan alleen transacties. “Onze klanten kunnen rekenen op een persoonlijke aanpak die gericht is op het creëren van langdurige relaties en het leveren van op maat gemaakte oplossingen die voldoen aan hun specifieke behoeften.”
Boekhoutstraat 13
Leer meer over vastgoed
24 November 2025
Uitgezocht voor jouw gemeente: Hoeveel stijgt de waarde van je woning door een renovatie?
22 October 2025
Hoeveel kan ik lenen om een huis te kopen?
11 June 2025
Huis kopen met bouwovertreding? Dit moet je weten
11 May 2025


