KNUSSE GEZINSWONING MET 4 SLKS EN EEN GARAGE IN BOEKHOUT
€ 259.000
Een pand van De woonmakers
Favoriet
Jouw zoektocht
Jouw scoretabel voor dit pand
Aan het laden...
Jouw geplande bezichtigingen
Aan het laden...
Overzicht
- 216 m² bewoonbaar
- 993 m² grond
- 4 Slaapkamer(s)
- 1 Badkamer(s)
- 1 Tuin
- 1 Garage(s)
Overstromingsgevaar gebouw
Overstromingsgevaar perceel
Beschrijving
In het landelijke Boekhout, een deelgemeente van Gingelom, vinden we langs de Mechelsestraat ter hoogte van nummer 43 deze gezellige gezinswoning terug.
We bevinden ons op een rustige locatie maar toch is er een vlotte verbinding naar het centrum van Gingelom waardoor alle faciliteiten binnen handbereik zijn. Ook zijn omliggende gemeenten zoals Landen en Sint-Truiden vlot bereikbaar!
De woning dateert oorspronkelijk van het jaar 1964. Mits de nodige opfriswerken kan je deze omvormen tot een ware parel. Ideaal voor wie zelf de handen uit de mouwen wil steken en zijn eigen stempel op deze leuke woning wil drukken.
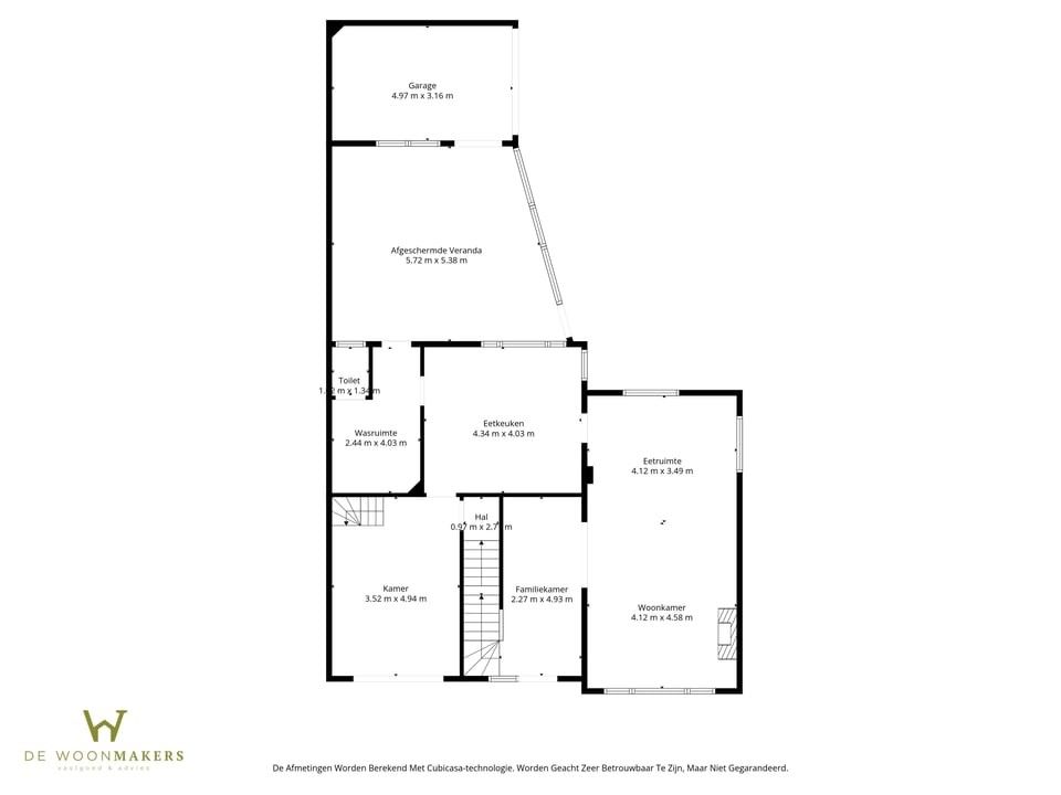
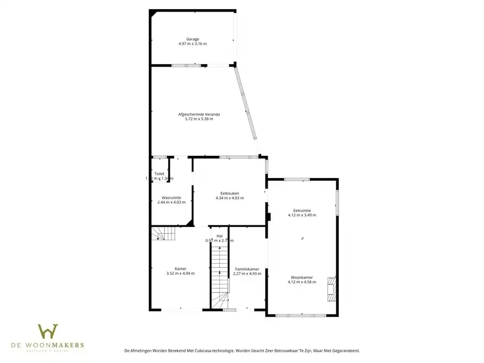
De omvangrijke inkomhal leidt ons in eerste instantie naar de ruime, lichtrijke leefruimte. Deze is voldoende ruim om er zowel een living en een eetkamer in onder te brengen. Aansluitend bereikt men eveneens de ruime keuken.
Achteraan de woning kan men nog een grote berging en de veranda terugvinden. Hier bevindt zich ook het apart toilet.
Tot slot kan men op het gelijkvloers nog een polyvalente ruimte terugvinden.
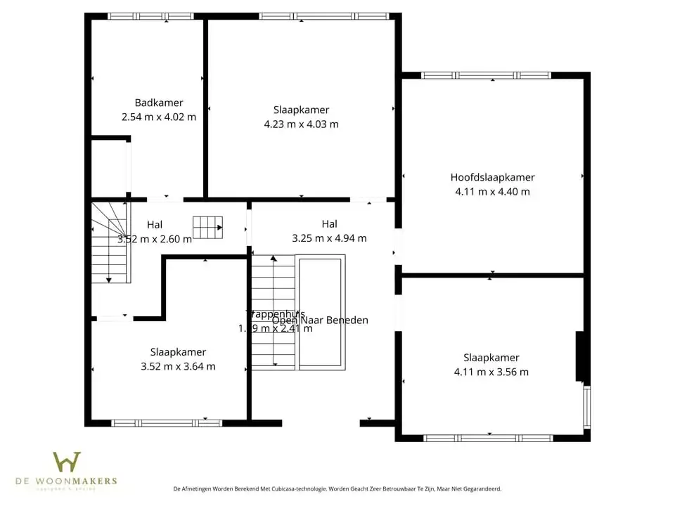
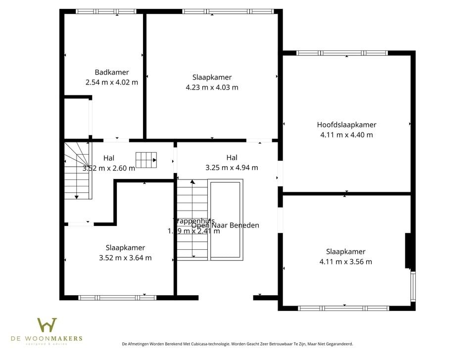
Op de eerste verdieping biedt de woning ons vier slaapkamers en de badkamer.
Bijkomend is de woning voorzien van een ruime zolder dewelke een oppervlakte heeft van +/-60m².
Groot pluspunt is dat de woning voorzien is van een garage.
Maak dan snel een afspraak op het nummer 011/98.88.98 of via info@dewoonmakers.be
We bevinden ons op een rustige locatie maar toch is er een vlotte verbinding naar het centrum van Gingelom waardoor alle faciliteiten binnen handbereik zijn. Ook zijn omliggende gemeenten zoals Landen en Sint-Truiden vlot bereikbaar!
De woning dateert oorspronkelijk van het jaar 1964. Mits de nodige opfriswerken kan je deze omvormen tot een ware parel. Ideaal voor wie zelf de handen uit de mouwen wil steken en zijn eigen stempel op deze leuke woning wil drukken.
De omvangrijke inkomhal leidt ons in eerste instantie naar de ruime, lichtrijke leefruimte. Deze is voldoende ruim om er zowel een living en een eetkamer in onder te brengen. Aansluitend bereikt men eveneens de ruime keuken.
Achteraan de woning kan men nog een grote berging en de veranda terugvinden. Hier bevindt zich ook het apart toilet.
Tot slot kan men op het gelijkvloers nog een polyvalente ruimte terugvinden.
Op de eerste verdieping biedt de woning ons vier slaapkamers en de badkamer.
Bijkomend is de woning voorzien van een ruime zolder dewelke een oppervlakte heeft van +/-60m².
Groot pluspunt is dat de woning voorzien is van een garage.
Maak dan snel een afspraak op het nummer 011/98.88.98 of via info@dewoonmakers.be
In het landelijke Boekhout, een deelgemeente van Gingelom, vinden we langs de Mechelsestraat ter hoogte van nummer 43 deze gezellige gezinswoning terug.
We bevinden ons op een rustige locatie maar toch is er een vlotte verbinding naar het centrum van Gingelom waardoor alle faciliteiten binnen handbereik zijn. Ook zijn omliggende gemeenten zoals Landen en Sint-Truiden vlot bereikbaar!
Winkels, scholen en openbaar vervoer zijn hier op een oogwenk vandaan. Gingelom kenmerkt zich eveneens door de talrijke fiets- en wandelroutes.
De woning dateert oorspronkelijk van het jaar 1964. Mits de nodige opfriswerken kan je deze omvormen tot een ware parel. Ideaal voor wie zelf de handen uit de mouwen wil steken en zijn eigen stempel op deze leuke woning wil drukken.
De omvangrijke inkomhal leidt ons in eerste instantie naar de ruime, lichtrijke leefruimte. Deze is voldoende ruim om er zowel een living en een eetkamer in onder te brengen. Aansluitend bereikt men eveneens de ruime keuken. Er is hier voldoende ruimte voor het plaatsen van een eettafel om deze om te toveren tot een echte leefkeuken.
Achteraan de woning kan men nog een grote berging en de veranda terugvinden. Hier bevindt zich ook het apart toilet.
Tot slot kan men op het gelijkvloers nog een polyvalente ruimte terugvinden.
Op de eerste verdieping biedt de woning ons vier slaapkamers en de badkamer. Deze laatste is voorzien van een ligbad, een toilet en een badkamermeubel met lavabo.
Bijkomend is de woning voorzien van een ruime zolder dewelke een oppervlakte heeft van +/-60m². Hier kan men zeker nog een bijkomende slaapkamer en een polyvalente ruimte creëren.
Buiten vind je de grote tuin terug. Hier kan je in alle rust genieten van het buitenleven. De tuin zorgt eveneens voor voldoende speelruimte voor ravottende kinderen of viervoeters.
Groot pluspunt is dat de woning voorzien is van een garage. Ideaal voor er je wagen te parkeren alsook extra opbergruimte!
Hebben wij uw interesse kunnen wekken voor deze gezellige gezinswoning? Maak dan snel een afspraak op het nummer 011/98.88.98 of via info@dewoonmakers.be
De vermelde oppervlaktes zijn indicatief. De Woonmakers kan niet verantwoordelijk gesteld worden voor de juistheid van de door zijn verstrekte gegevens.
We bevinden ons op een rustige locatie maar toch is er een vlotte verbinding naar het centrum van Gingelom waardoor alle faciliteiten binnen handbereik zijn. Ook zijn omliggende gemeenten zoals Landen en Sint-Truiden vlot bereikbaar!
Winkels, scholen en openbaar vervoer zijn hier op een oogwenk vandaan. Gingelom kenmerkt zich eveneens door de talrijke fiets- en wandelroutes.
De woning dateert oorspronkelijk van het jaar 1964. Mits de nodige opfriswerken kan je deze omvormen tot een ware parel. Ideaal voor wie zelf de handen uit de mouwen wil steken en zijn eigen stempel op deze leuke woning wil drukken.
De omvangrijke inkomhal leidt ons in eerste instantie naar de ruime, lichtrijke leefruimte. Deze is voldoende ruim om er zowel een living en een eetkamer in onder te brengen. Aansluitend bereikt men eveneens de ruime keuken. Er is hier voldoende ruimte voor het plaatsen van een eettafel om deze om te toveren tot een echte leefkeuken.
Achteraan de woning kan men nog een grote berging en de veranda terugvinden. Hier bevindt zich ook het apart toilet.
Tot slot kan men op het gelijkvloers nog een polyvalente ruimte terugvinden.
Op de eerste verdieping biedt de woning ons vier slaapkamers en de badkamer. Deze laatste is voorzien van een ligbad, een toilet en een badkamermeubel met lavabo.
Bijkomend is de woning voorzien van een ruime zolder dewelke een oppervlakte heeft van +/-60m². Hier kan men zeker nog een bijkomende slaapkamer en een polyvalente ruimte creëren.
Buiten vind je de grote tuin terug. Hier kan je in alle rust genieten van het buitenleven. De tuin zorgt eveneens voor voldoende speelruimte voor ravottende kinderen of viervoeters.
Groot pluspunt is dat de woning voorzien is van een garage. Ideaal voor er je wagen te parkeren alsook extra opbergruimte!
Hebben wij uw interesse kunnen wekken voor deze gezellige gezinswoning? Maak dan snel een afspraak op het nummer 011/98.88.98 of via info@dewoonmakers.be
De vermelde oppervlaktes zijn indicatief. De Woonmakers kan niet verantwoordelijk gesteld worden voor de juistheid van de door zijn verstrekte gegevens.
Energie
![]() |
- EPC Certificaat: 20260109-0003772157-RES-1
- Energieverbruik: 495 kWh/m²/jaar
- E-peil: E0
- Beglazing: Enkel
Let op, de renovatieverplichting in Vlaanderen verplicht de koper om deze woning na aankoop te renoveren tot een betere energieprestatie. Lees er alles over in dit artikel
Extra budget nodig voor je renovatie?
De overheid helpt je dit pand energetisch te renoveren! Hieronder zie je het premiebedrag dat je mogelijks van de overheid krijgt.
Het huidige EPC-label is:

Op de kaart

Financieel
| Prijs | |
|---|---|
| Kadastraal inkomen (niet geïndexeerd) | € 535 |
Berekening kosten
Je aankoopkosten? Die heb je snel berekend via de knop hieronder.
Bijkomende info
Gebouw
| Bouwjaar | 1964 |
|---|---|
| Bouwcertificaat | Nee |
| Bewoonbaar (m²) | 216 |
| Badkamers | 1 |
| Slaapkamers | 4 |
| Verdiepingen | 0 |
| Garages | 1 |
| Parkeerplaatsen | 0 |
| Toiletten | 0 |
Faciliteiten
| Beglazing | Enkel |
|---|---|
| Septische tank | Nee |
Perceel
| Overstromingsgevoelig | Geen |
|---|---|
| P-score | D |
| G-score | D |
| Totale oppervlakte (m²) | 993 |
| Bebouwde oppervlakte (m²) | 0 |
| Tuin oppervlakte (m²) | 0 |
Vergunning
| Verkavelingsvergunning | Geen beschikbaar |
|---|
Uitrusting
| Investeringspand | Nee |
|---|---|
| Parking | Nee |
| Garage | Ja |
| Tuin | Ja |
| Lift | Nee |
| Rioolaansluiting | Nee |
| Gasaansluiting | Nee |
| Wateraansluiting | Nee |
| Elektriciteitsaansluiting | Nee |
| Internetaansluiting | Nee |
| Telefoonaansluiting | Nee |
| Zonnepanelen | Nee |
| Zonneboiler | Nee |
| Alarm | Nee |
| Videofoon | Nee |
| Grondwaterput | Nee |
Een pand van
De woonmakers
De Woonmakers Win-win in vastgoed
Bij De Woonmakers staat ervaring centraal. Sinds onze oprichting in 2020 hebben we ons voortdurend ontwikkeld als toonaangevend bedrijf in de vastgoedsector. Gedurende deze periode hebben we waardevolle inzichten verzameld en ons vakmanschap verfijnd om onze klanten een ongeëvenaarde dienstverlening te bieden.
Onze missie is om de perfecte match te creëren tussen individuen en vastgoed, en dit streven we na door onze diepgaande kennis van de markt te combineren met een innovatieve benadering van klantinteractie. Door te luisteren naar uw woonvoorkeuren en -behoeften, zijn we in staat om op maat gemaakte oplossingen te presenteren die naadloos aansluiten op uw levensstijl.
De drijvende krachten achter De Woonmakers, Jan en Krisja, delen een passie voor vastgoed en een toewijding om de klanten te voorzien van een ongeëvenaarde ervaring. Met jarenlange expertise in verschillende facetten van de vastgoedmarkt streven zij ernaar om een service te bieden die verder gaat dan alleen transacties. “Onze klanten kunnen rekenen op een persoonlijke aanpak die gericht is op het creëren van langdurige relaties en het leveren van op maat gemaakte oplossingen die voldoen aan hun specifieke behoeften.”
Mechelsestraat 43
Leer meer over vastgoed
23 March 2026
Op Spotto zoeken als een pro: 10 slimme tips
21 March 2026
Hoeveel kan ik lenen om een huis te kopen?
01 March 2026
Wanneer heb ik een bouwvergunning of omgevingsvergunning nodig?
17 February 2026



