In optie
CHARMANTE GEZINSWONING MET 2 SLKS + MOGELIJKHEID TOT 3 SLKS IN HET LANDELIJKE GINGELOM
€ 210.000
Een pand van De woonmakers
Overzicht
- 143 m² bewoonbaar
- 70 m² grond
- 2 Slaapkamer(s)
- 1 Badkamer(s)
- 2 Toilet(ten)
Beschrijving
In Gingelom houden we halt bij deze woning gelegen op de Statiestraat ter hoogte van nummer 2. We bevinden ons op een rustige locatie maar toch is er een vlotte verbinding naar het centrum van Gingelom waardoor alle faciliteiten binnen handbereik zijn. Ook zijn omliggende gemeenten zoals Landen en St-Truiden vlot bereikbaar wat maakt dat dit de ultieme gezinswoning bij uitstek is.
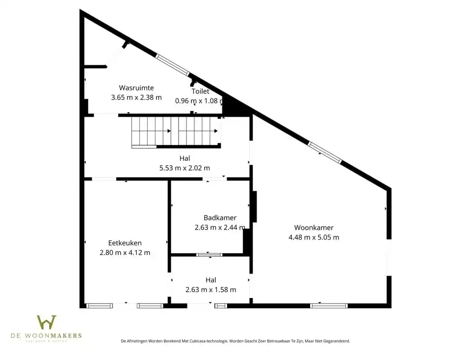
De inkomhal geeft toegang tot de gezellige leefruimte waar we nog de prachtige, originele tegelvloer kunnen terugvinden.Deze vloer zorgt alvast voor de nodige charme.
De inkomhal leidt ons eveneens naar de keuken. Deze is voorzien van alle nodige toestellen voor het bereiden van een maaltijd. Men kan hier ook een eettafel plaatsen om deze om te vormen tot een gezellige leefkeuken.
Verder kan men op het gelijkvloers nog een apart toilet terugvinden, een wasruimte alsook de badkamer. Deze laatste is niet enkel voorzien van een douche maar ook van een bad!
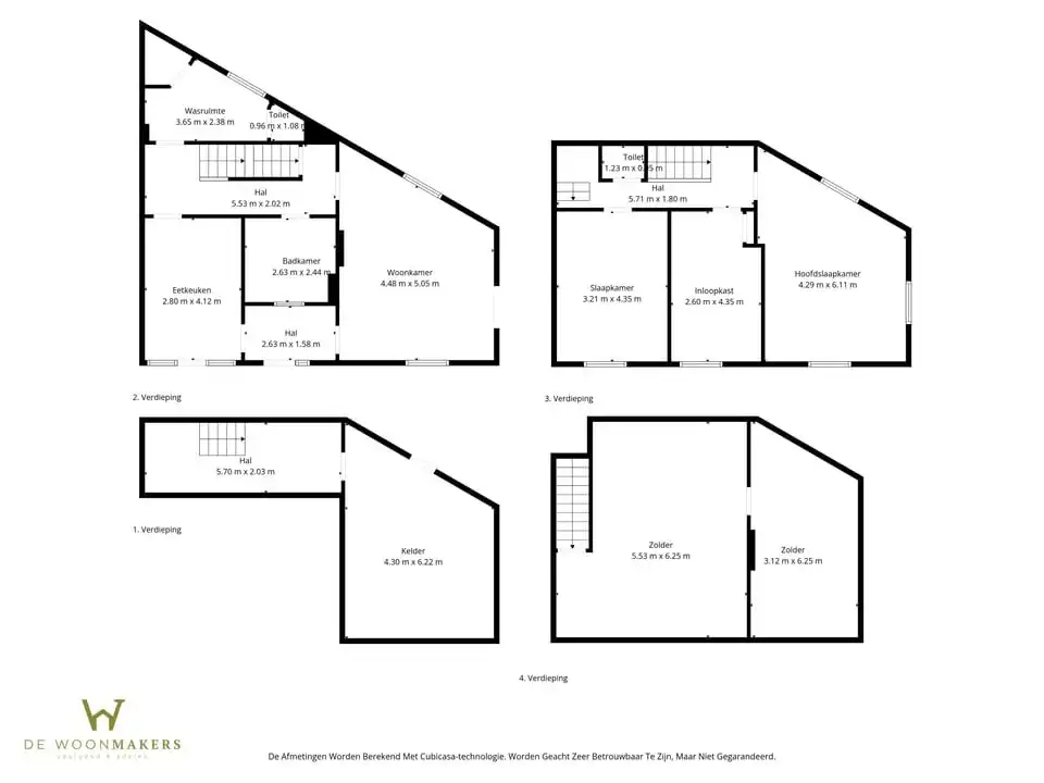
Via de houten trap bereiken we de eerste verdieping waar de nachthal ons naar de twee ruime slaapkamers brengt. De woning is ook voorzien van een ruime en zeer mooie dressing.
Groot pluspunt aan de woning is de mogelijkheid om op de zolderverdieping mits de nodige afwerking nog 1 ruime slaapkamer te voorzien.
De woning is eveneens voorzien van een kelder.
maak dan snel een afspraak via het nummer 011/98.88.98 of info@dewoonmakers.be.
De inkomhal geeft toegang tot de gezellige leefruimte waar we nog de prachtige, originele tegelvloer kunnen terugvinden.Deze vloer zorgt alvast voor de nodige charme.
De inkomhal leidt ons eveneens naar de keuken. Deze is voorzien van alle nodige toestellen voor het bereiden van een maaltijd. Men kan hier ook een eettafel plaatsen om deze om te vormen tot een gezellige leefkeuken.
Verder kan men op het gelijkvloers nog een apart toilet terugvinden, een wasruimte alsook de badkamer. Deze laatste is niet enkel voorzien van een douche maar ook van een bad!
Via de houten trap bereiken we de eerste verdieping waar de nachthal ons naar de twee ruime slaapkamers brengt. De woning is ook voorzien van een ruime en zeer mooie dressing.
Groot pluspunt aan de woning is de mogelijkheid om op de zolderverdieping mits de nodige afwerking nog 1 ruime slaapkamer te voorzien.
De woning is eveneens voorzien van een kelder.
maak dan snel een afspraak via het nummer 011/98.88.98 of info@dewoonmakers.be.
In Gingelom houden we halt bij deze woning gelegen op de Statiestraat ter hoogte van nummer 2. We bevinden ons op een rustige locatie maar toch is er een vlotte verbinding naar het centrum van Gingelom waardoor alle faciliteiten binnen handbereik zijn. Ook zijn omliggende gemeenten zoals Landen en St-Truiden vlot bereikbaar wat maakt dat dit de ultieme gezinswoning bij uitstek is.
De inkomhal geeft toegang tot de gezellige leefruimte waar we nog de prachtige, originele tegelvloer kunnen terugvinden.Deze vloer zorgt alvast voor de nodige charme.
De inkomhal leidt ons eveneens naar de keuken. Deze is voorzien van alle nodige toestellen voor het bereiden van een maaltijd. Men kan hier ook een eettafel plaatsen om deze om te vormen tot een gezellige leefkeuken.
Verder kan men op het gelijkvloers nog een apart toilet terugvinden, een wasruimte alsook de badkamer. Deze laatste is niet enkel voorzien van een douche maar ook van een bad!
Via de houten trap bereiken we de eerste verdieping waar de nachthal ons naar de twee ruime slaapkamers brengt. De woning is ook voorzien van een ruime en zeer mooie dressing.
Groot pluspunt aan de woning is de mogelijkheid om op de zolderverdieping mits de nodige afwerking nog 1 ruime slaapkamer te voorzien. Aan ruimte dus zeker geen gebrek!
De woning is eveneens voorzien van een kelder.
Hebben wij uw interesse kunnen wekken met deze gezellige en volledig instapklare gezinswoning, maak dan snel een afspraak via het nummer 011/98.88.98 of info@dewoonmakers.be.
De inkomhal geeft toegang tot de gezellige leefruimte waar we nog de prachtige, originele tegelvloer kunnen terugvinden.Deze vloer zorgt alvast voor de nodige charme.
De inkomhal leidt ons eveneens naar de keuken. Deze is voorzien van alle nodige toestellen voor het bereiden van een maaltijd. Men kan hier ook een eettafel plaatsen om deze om te vormen tot een gezellige leefkeuken.
Verder kan men op het gelijkvloers nog een apart toilet terugvinden, een wasruimte alsook de badkamer. Deze laatste is niet enkel voorzien van een douche maar ook van een bad!
Via de houten trap bereiken we de eerste verdieping waar de nachthal ons naar de twee ruime slaapkamers brengt. De woning is ook voorzien van een ruime en zeer mooie dressing.
Groot pluspunt aan de woning is de mogelijkheid om op de zolderverdieping mits de nodige afwerking nog 1 ruime slaapkamer te voorzien. Aan ruimte dus zeker geen gebrek!
De woning is eveneens voorzien van een kelder.
Hebben wij uw interesse kunnen wekken met deze gezellige en volledig instapklare gezinswoning, maak dan snel een afspraak via het nummer 011/98.88.98 of info@dewoonmakers.be.
Energie
![]() |
- EPC Certificaat: 20250708-0003642827-RES-1
- Energieverbruik: 382 kWh/m²/jaar
- E-peil: E0
- Verwarming: Gas
- Beglazing: Standaard dubbel
Extra budget nodig voor je renovatie?
De overheid helpt je dit pand energetisch te renoveren! Hieronder zie je het premiebedrag dat je mogelijks van de overheid krijgt.
Het huidige EPC-label is:

Op de kaart

Financieel
| Prijs | |
|---|---|
| Kadastraal inkomen (niet geïndexeerd) | € 379 |
Berekening kosten
Je aankoopkosten? Die heb je snel berekend via de knop hieronder.
Bijkomende info
Gebouw
| Bouwjaar | 1930 |
|---|---|
| Bouwcertificaat | Nee |
| Bewoonbaar (m²) | 143 |
| Verdieping | 2 |
| Badkamers | 1 |
| Slaapkamers | 2 |
| Verdiepingen | 0 |
| Garages | 0 |
| Parkeerplaatsen | 0 |
| Toiletten | 2 |
Faciliteiten
| Beglazing | Standaard dubbel |
|---|---|
| Brandstof primaire verwarming | Gas |
| Septische tank | Nee |
Perceel
| Overstromingsgevoelig | Geen |
|---|---|
| P-score | B |
| G-score | B |
| Totale oppervlakte (m²) | 70 |
| Bebouwde oppervlakte (m²) | 0 |
Vergunning
| Verkavelingsvergunning | Geen beschikbaar |
|---|
Uitrusting
| Investeringspand | Nee |
|---|---|
| Parking | Nee |
| Garage | Nee |
| Kelder | Ja |
| Zolder | Ja |
| Lift | Nee |
| Rioolaansluiting | Ja |
| Gasaansluiting | Ja |
| Wateraansluiting | Ja |
| Elektriciteitsaansluiting | Ja |
| Internetaansluiting | Ja |
| Telefoonaansluiting | Nee |
| Zonnepanelen | Nee |
| Zonneboiler | Nee |
| Alarm | Nee |
| Videofoon | Nee |
| Grondwaterput | Nee |
Een pand van
De woonmakers
De Woonmakers Win-win in vastgoed
Bij De Woonmakers staat ervaring centraal. Sinds onze oprichting in 2020 hebben we ons voortdurend ontwikkeld als toonaangevend bedrijf in de vastgoedsector. Gedurende deze periode hebben we waardevolle inzichten verzameld en ons vakmanschap verfijnd om onze klanten een ongeëvenaarde dienstverlening te bieden.
Onze missie is om de perfecte match te creëren tussen individuen en vastgoed, en dit streven we na door onze diepgaande kennis van de markt te combineren met een innovatieve benadering van klantinteractie. Door te luisteren naar uw woonvoorkeuren en -behoeften, zijn we in staat om op maat gemaakte oplossingen te presenteren die naadloos aansluiten op uw levensstijl.
De drijvende krachten achter De Woonmakers, Jan en Krisja, delen een passie voor vastgoed en een toewijding om de klanten te voorzien van een ongeëvenaarde ervaring. Met jarenlange expertise in verschillende facetten van de vastgoedmarkt streven zij ernaar om een service te bieden die verder gaat dan alleen transacties. “Onze klanten kunnen rekenen op een persoonlijke aanpak die gericht is op het creëren van langdurige relaties en het leveren van op maat gemaakte oplossingen die voldoen aan hun specifieke behoeften.”
Statiestraat 2
Leer meer over vastgoed
01 March 2026
Wanneer heb ik een bouwvergunning of omgevingsvergunning nodig?
17 February 2026
Hoe breng ik een bod uit op een woning?
24 November 2025
Uitgezocht voor jouw gemeente: Hoeveel stijgt de waarde van je woning door een renovatie?
22 October 2025


