Nieuw
UNIEKE OPPORTUNITEIT OP 27 ARE IN GINGELOM - RENOVATIE OF PROJECTGROND MET POTENTIEEL VOOR 3 WONINGEN
€ 259.000
Een pand van De woonmakers
Overzicht
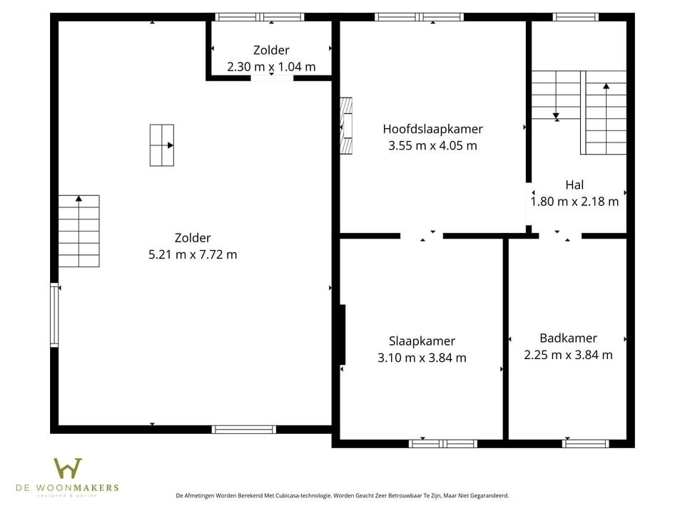
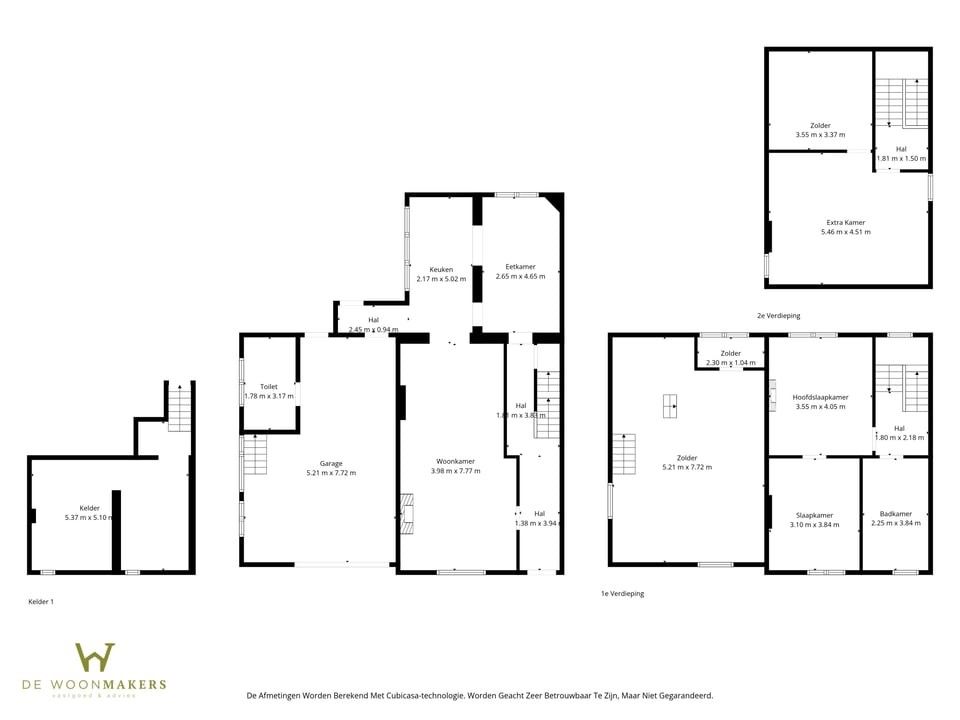
- 160 m² bewoonbaar
- 2685 m² grond
- 2 Slaapkamer(s)
- 1 Badkamer(s)
- 1 Garage(s)
Beschrijving
In de Sint-Trudostraat 9 te Gingelom (3890) vinden we deze woning terug op een uitzonderlijk ruim perceel van maar liefst 27 are. Deze eigendom biedt een zeldzame kans voor wie op zoek is naar een grondige renovatie met veel ruimte, of voor ontwikkelaars die hier het potentieel van een projectgrond willen benutten.
De bestaande woning is volledig te renoveren, waardoor u volledige vrijheid krijgt om het pand naar eigen wensen en hedendaagse normen te hertekenen. Dankzij de royale perceeloppervlakte leent deze eigendom zich bovendien uitstekend tot een verkaveling of herontwikkeling, met mogelijkheid tot het realiseren van 3 wooneenheden (onder voorbehoud van goedkeuring door de bevoegde instanties).
De ligging in Gingelom combineert rust en ruimte met een vlotte bereikbaarheid. Winkels, scholen en verbindingswegen bevinden zich in de nabije omgeving, waardoor dit perceel ook op lange termijn een sterke meerwaarde biedt.
Troeven op een rij:
Bent u op zoek naar een investering met toekomst of een ruim perceel om uw woondroom te realiseren?
Contacteer ons dan snel op het nummer 011/98.88.98 of via info@dewoonmakers.be
De bestaande woning is volledig te renoveren, waardoor u volledige vrijheid krijgt om het pand naar eigen wensen en hedendaagse normen te hertekenen. Dankzij de royale perceeloppervlakte leent deze eigendom zich bovendien uitstekend tot een verkaveling of herontwikkeling, met mogelijkheid tot het realiseren van 3 wooneenheden (onder voorbehoud van goedkeuring door de bevoegde instanties).
De ligging in Gingelom combineert rust en ruimte met een vlotte bereikbaarheid. Winkels, scholen en verbindingswegen bevinden zich in de nabije omgeving, waardoor dit perceel ook op lange termijn een sterke meerwaarde biedt.
Troeven op een rij:
- Zeer ruim perceel van 27 are
- Totale renovatie van de bestaande woning mogelijk
- Projectgrond met potentieel voor 3 woningen (onder voorbehoud)
- Geschikt voor ontwikkelaars, investeerders of particulieren met visie
- Tal van mogelijkheden: renovatie, herbouw of projectontwikkelinG
Bent u op zoek naar een investering met toekomst of een ruim perceel om uw woondroom te realiseren?
Contacteer ons dan snel op het nummer 011/98.88.98 of via info@dewoonmakers.be
In de Sint-Trudostraat 9 te Gingelom (3890) vinden we deze woning terug op een uitzonderlijk ruim perceel van maar liefst 27 are. Deze eigendom biedt een zeldzame kans voor wie op zoek is naar een grondige renovatie met veel ruimte, of voor ontwikkelaars die hier het potentieel van een projectgrond willen benutten.
De bestaande woning is volledig te renoveren, waardoor u volledige vrijheid krijgt om het pand naar eigen wensen en hedendaagse normen te hertekenen. Dankzij de royale perceeloppervlakte leent deze eigendom zich bovendien uitstekend tot een verkaveling of herontwikkeling, met mogelijkheid tot het realiseren van 3 wooneenheden (onder voorbehoud van goedkeuring door de bevoegde instanties).
De ligging in Gingelom combineert rust en ruimte met een vlotte bereikbaarheid. Winkels, scholen en verbindingswegen bevinden zich in de nabije omgeving, waardoor dit perceel ook op lange termijn een sterke meerwaarde biedt.
Troeven op een rij:
Bent u op zoek naar een investering met toekomst of een ruim perceel om uw woondroom te realiseren? Dan is deze eigendom zeker een bezoek waard.
Contacteer ons dan snel op het nummer 011/98.88.98 of via info@dewoonmakers.be
De vermelde oppervlaktes zijn indicatief. De Woonmakers kan niet verantwoordelijk gesteld worden voor de juistheid van de door zijn verstrekte gegevens.
De bestaande woning is volledig te renoveren, waardoor u volledige vrijheid krijgt om het pand naar eigen wensen en hedendaagse normen te hertekenen. Dankzij de royale perceeloppervlakte leent deze eigendom zich bovendien uitstekend tot een verkaveling of herontwikkeling, met mogelijkheid tot het realiseren van 3 wooneenheden (onder voorbehoud van goedkeuring door de bevoegde instanties).
De ligging in Gingelom combineert rust en ruimte met een vlotte bereikbaarheid. Winkels, scholen en verbindingswegen bevinden zich in de nabije omgeving, waardoor dit perceel ook op lange termijn een sterke meerwaarde biedt.
Troeven op een rij:
- Zeer ruim perceel van 27 are
- Totale renovatie van de bestaande woning mogelijk
- Projectgrond met potentieel voor 3 woningen (onder voorbehoud)
- Geschikt voor ontwikkelaars, investeerders of particulieren met visie
- Rustige ligging met goede bereikbaarheid
- Tal van mogelijkheden: renovatie, herbouw of projectontwikkeling
Bent u op zoek naar een investering met toekomst of een ruim perceel om uw woondroom te realiseren? Dan is deze eigendom zeker een bezoek waard.
Contacteer ons dan snel op het nummer 011/98.88.98 of via info@dewoonmakers.be
De vermelde oppervlaktes zijn indicatief. De Woonmakers kan niet verantwoordelijk gesteld worden voor de juistheid van de door zijn verstrekte gegevens.
Energie
![]() |
- EPC Certificaat: 20241113-0003443303-RES-1
- Energieverbruik: 1098 kWh/m²/jaar
- E-peil: E0
- Beglazing: Standaard dubbel
Op de kaart

Financieel
| Prijs | |
|---|---|
| Kadastraal inkomen (niet geïndexeerd) | € 373 |
Berekening kosten
Je aankoopkosten? Die heb je snel berekent via de knop hieronder.
Bijkomende info
Gebouw
| Bouwcertificaat | Nee |
|---|
Perceel
| Overstromingsgevoelig | Geen |
|---|---|
| P-score | A |
| Totale oppervlakte (m²) | 2685 |
Vergunning
| Verkavelingsvergunning | Geen beschikbaar |
|---|
Uitrusting
| Investeringspand | Nee |
|---|---|
| Rioolaansluiting | Nee |
| Gasaansluiting | Nee |
| Wateraansluiting | Nee |
| Elektriciteitsaansluiting | Nee |
| Internetaansluiting | Nee |
| Telefoonaansluiting | Nee |
Een pand van
De woonmakers
De Woonmakers Win-win in vastgoed
Bij De Woonmakers staat ervaring centraal. Sinds onze oprichting in 2020 hebben we ons voortdurend ontwikkeld als toonaangevend bedrijf in de vastgoedsector. Gedurende deze periode hebben we waardevolle inzichten verzameld en ons vakmanschap verfijnd om onze klanten een ongeëvenaarde dienstverlening te bieden.
Onze missie is om de perfecte match te creëren tussen individuen en vastgoed, en dit streven we na door onze diepgaande kennis van de markt te combineren met een innovatieve benadering van klantinteractie. Door te luisteren naar uw woonvoorkeuren en -behoeften, zijn we in staat om op maat gemaakte oplossingen te presenteren die naadloos aansluiten op uw levensstijl.
De drijvende krachten achter De Woonmakers, Jan en Krisja, delen een passie voor vastgoed en een toewijding om de klanten te voorzien van een ongeëvenaarde ervaring. Met jarenlange expertise in verschillende facetten van de vastgoedmarkt streven zij ernaar om een service te bieden die verder gaat dan alleen transacties. “Onze klanten kunnen rekenen op een persoonlijke aanpak die gericht is op het creëren van langdurige relaties en het leveren van op maat gemaakte oplossingen die voldoen aan hun specifieke behoeften.”
Sint-Trudostraat 9C
Leer meer over vastgoed
24 November 2025
Uitgezocht voor jouw gemeente: Hoeveel stijgt de waarde van je woning door een renovatie?
22 October 2025
Hoeveel kan ik lenen om een huis te kopen?
11 June 2025
Huis kopen met bouwovertreding? Dit moet je weten
11 May 2025
