In optie
VERRASSEND RUIME GEZINSWONING MET 3 SLKS IN MONTENAKEN
Een pand van De woonmakers
Overzicht
- 213 m² bewoonbaar
- 251 m² grond
- 3 Slaapkamer(s)
- 1 Badkamer(s)
- 1 Toilet(ten)
- 1 Garage(s)
Beschrijving
In Montenaken een deelgemeente van Gingelom vinden we deze verrassend ruime gezinswoning terug. We bevinden ons op een rustige locatie, toch is er een vlotte verbinding naar het centrum van Gingelom waardoor alle faciliteiten binnen handbereik zijn. Ook zijn omliggende gemeenten zoals Landen en St-Truiden vlot bereikbaar. Bovendien is de oprit naar de E40 slechts op een boogscheut gelegen.
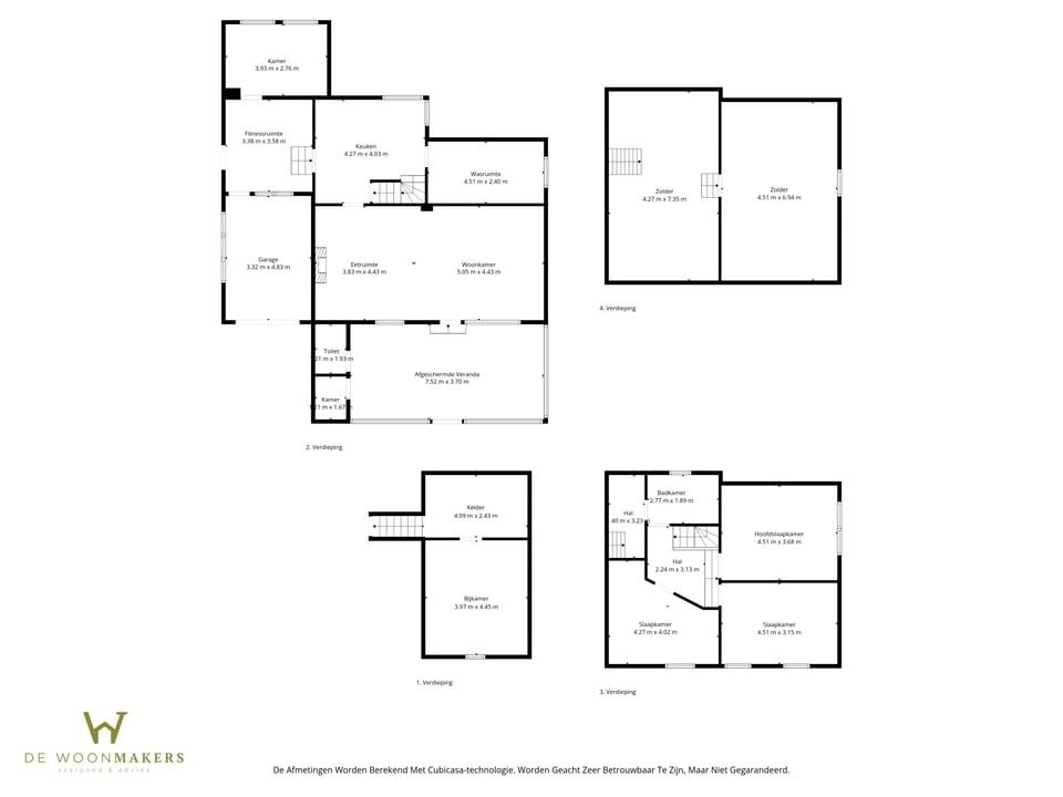
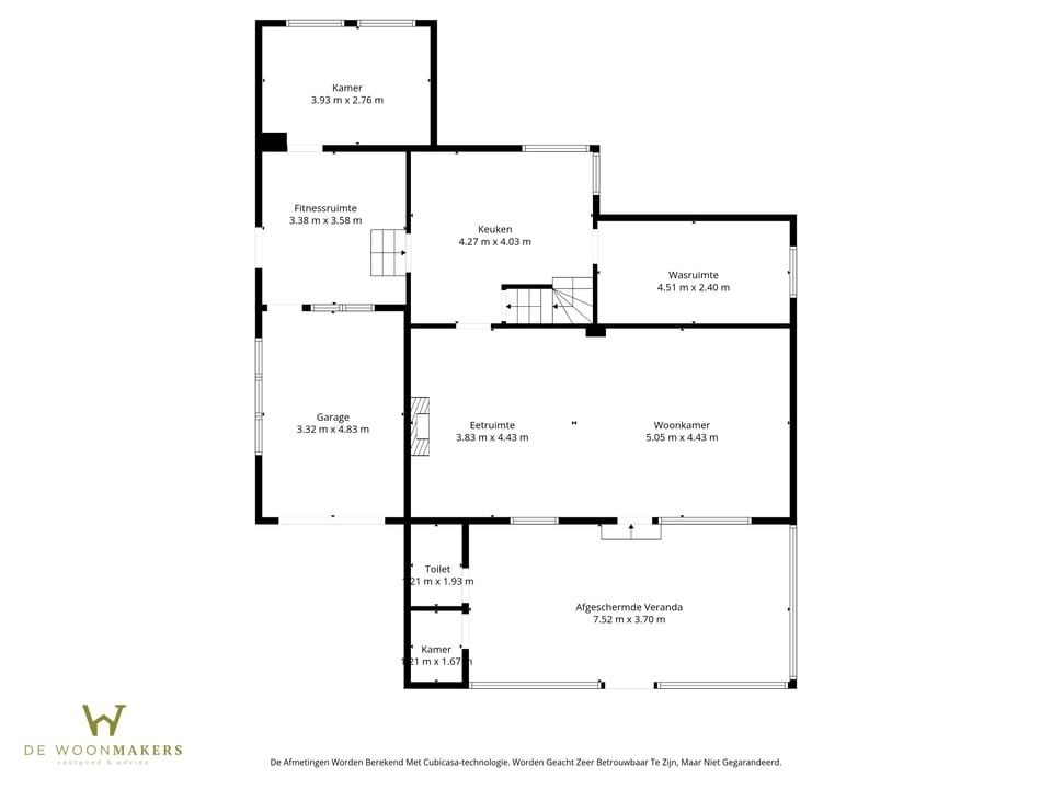
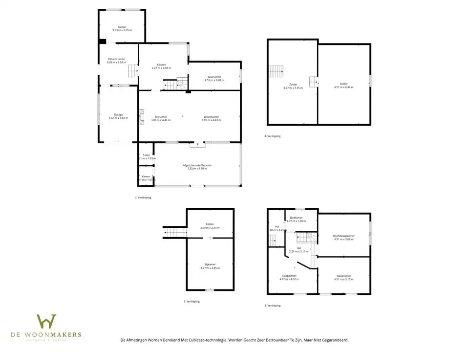
De woning beschikt op het gelijkvloers over een een gezellige leefruimte, een geïnstalleerde keuken, een lichtrijke veranda, een polyvalente ruimte en een berging.
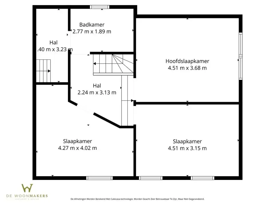
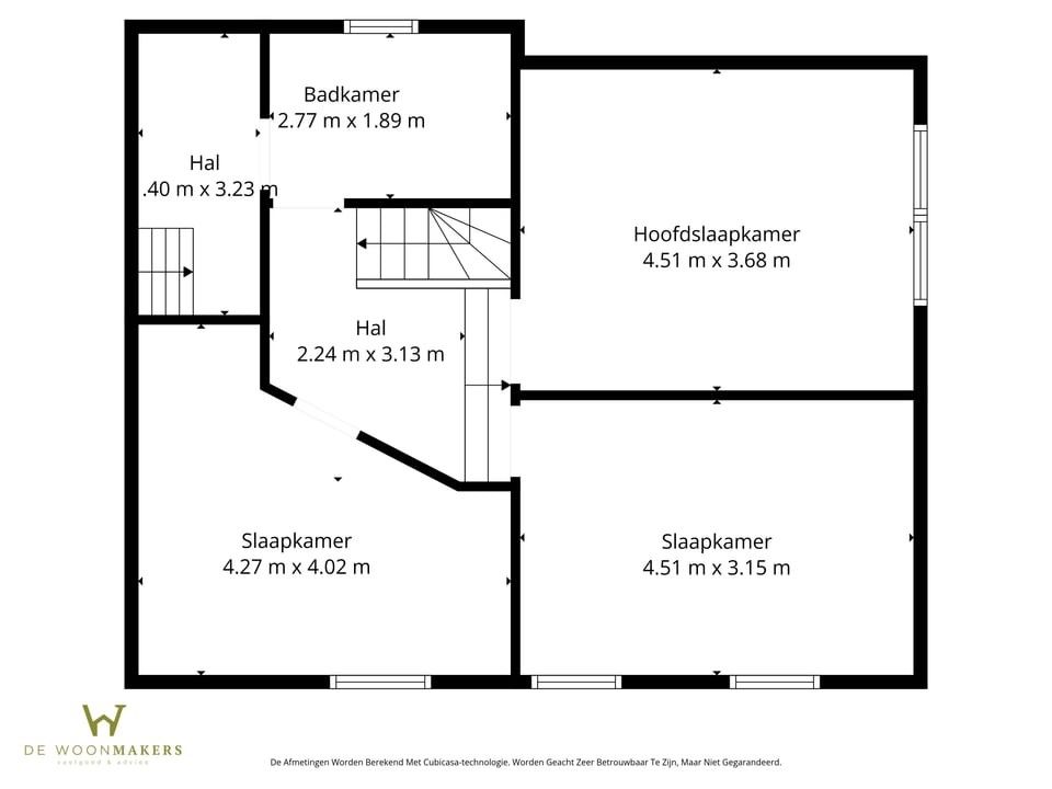
Op het verdiep heeft de woning ons nog drie ruime slaapkamers en een badkamer te bieden. Deze laatste is voorzien van een bad, een toilet en een badkamermeubel met lavabo.
Via een vaste trap bereikt men de zolder. Mits de nodige werken zou je hier perfect een ruime bijkomende slaapkamer kunnen creëren.
Buiten vinden we aansluitend aan de woning een terras waar het heerlijk vertoeven is met familie en vrienden.
Bijkomende troef aan de woning is zonder twijfel de garage! Ideaal voor het parkeren van je wagen alsook extra bergruimte.
Hebben wij uw interesse kunnen wekken? Maak dan snel een afspraak via 011/98.88.98 of via info@dewoonmakers.be
De vermelde oppervlaktes zijn indicatief. De Woonmakers kan niet verantwoordelijk gesteld worden voor de juistheid van de door zijn verstrekte gegevens.
De woning beschikt op het gelijkvloers over een een gezellige leefruimte, een geïnstalleerde keuken, een lichtrijke veranda, een polyvalente ruimte en een berging.
Op het verdiep heeft de woning ons nog drie ruime slaapkamers en een badkamer te bieden. Deze laatste is voorzien van een bad, een toilet en een badkamermeubel met lavabo.
Via een vaste trap bereikt men de zolder. Mits de nodige werken zou je hier perfect een ruime bijkomende slaapkamer kunnen creëren.
Buiten vinden we aansluitend aan de woning een terras waar het heerlijk vertoeven is met familie en vrienden.
Bijkomende troef aan de woning is zonder twijfel de garage! Ideaal voor het parkeren van je wagen alsook extra bergruimte.
Hebben wij uw interesse kunnen wekken? Maak dan snel een afspraak via 011/98.88.98 of via info@dewoonmakers.be
De vermelde oppervlaktes zijn indicatief. De Woonmakers kan niet verantwoordelijk gesteld worden voor de juistheid van de door zijn verstrekte gegevens.
In Montenaken een deelgemeente van Gingelom vinden we deze verrassend ruime gezinswoning terug. We bevinden ons op een rustige locatie, toch is er een vlotte verbinding naar het centrum van Gingelom waardoor alle faciliteiten binnen handbereik zijn. Ook zijn omliggende gemeenten zoals Landen en St-Truiden vlot bereikbaar. Bovendien is de oprit naar de E40 slechts op een boogscheut gelegen.
De woning beschikt op het gelijkvloers over een een gezellige leefruimte, een geïnstalleerde keuken, een lichtrijke veranda, een polyvalente ruimte en een berging.
Op het verdiep heeft de woning ons nog drie ruime slaapkamers en een badkamer te bieden. Deze laatste is voorzien van een bad, een toilet en een badkamermeubel met lavabo.
Via een vaste trap bereikt men de zolder. Mits de nodige werken zou je hier perfect een ruime bijkomende slaapkamer kunnen creëren.
Buiten vinden we aansluitend aan de woning een terras waar het heerlijk vertoeven is met familie en vrienden.
Bijkomende troef aan de woning is zonder twijfel de garage! Ideaal voor het parkeren van je wagen alsook extra bergruimte.
Hebben wij uw interesse kunnen wekken? Maak dan snel een afspraak via 011/98.88.98 of via info@dewoonmakers.be
De vermelde oppervlaktes zijn indicatief. De Woonmakers kan niet verantwoordelijk gesteld worden voor de juistheid van de door zijn verstrekte gegevens.
De woning beschikt op het gelijkvloers over een een gezellige leefruimte, een geïnstalleerde keuken, een lichtrijke veranda, een polyvalente ruimte en een berging.
Op het verdiep heeft de woning ons nog drie ruime slaapkamers en een badkamer te bieden. Deze laatste is voorzien van een bad, een toilet en een badkamermeubel met lavabo.
Via een vaste trap bereikt men de zolder. Mits de nodige werken zou je hier perfect een ruime bijkomende slaapkamer kunnen creëren.
Buiten vinden we aansluitend aan de woning een terras waar het heerlijk vertoeven is met familie en vrienden.
Bijkomende troef aan de woning is zonder twijfel de garage! Ideaal voor het parkeren van je wagen alsook extra bergruimte.
Hebben wij uw interesse kunnen wekken? Maak dan snel een afspraak via 011/98.88.98 of via info@dewoonmakers.be
De vermelde oppervlaktes zijn indicatief. De Woonmakers kan niet verantwoordelijk gesteld worden voor de juistheid van de door zijn verstrekte gegevens.
Energie
![]() |
- EPC Certificaat: 20200306-0002257060-RES-1
- Energieverbruik: 499 kWh/m²/jaar
- E-peil: E0
- Beglazing: Standaard dubbel
Let op, de renovatieverplichting in Vlaanderen verplicht de koper om deze woning na aankoop te renoveren tot een betere energieprestatie. Lees er alles over in dit artikel
Extra budget nodig voor je renovatie?
De overheid helpt je dit pand energetisch te renoveren! Hieronder zie je het premiebedrag dat je mogelijks van de overheid krijgt.
Het huidige EPC-label is:

Op de kaart

Financieel
| Prijs | |
|---|---|
| Kadastraal inkomen (niet geïndexeerd) | € 485 |
Berekening kosten
Je aankoopkosten? Die heb je snel berekend via de knop hieronder.
Bijkomende info
Gebouw
| Bouwjaar | 1918 |
|---|---|
| Bouwcertificaat | Nee |
| Bewoonbaar (m²) | 213 |
| Badkamers | 1 |
| Slaapkamers | 3 |
| Verdiepingen | 0 |
| Garages | 1 |
| Parkeerplaatsen | 0 |
| Toiletten | 1 |
Faciliteiten
| Beglazing | Standaard dubbel |
|---|---|
| Septische tank | Nee |
Perceel
| Overstromingsgevoelig | Geen |
|---|---|
| P-score | A |
| G-score | A |
| Totale oppervlakte (m²) | 251 |
| Bebouwde oppervlakte (m²) | 0 |
Vergunning
| Verkavelingsvergunning | Geen beschikbaar |
|---|
Uitrusting
| Investeringspand | Nee |
|---|---|
| Parking | Nee |
| Garage | Ja |
| Kelder | Ja |
| Zolder | Ja |
| Opslagruimte | Ja |
| Lift | Nee |
| Rioolaansluiting | Nee |
| Gasaansluiting | Nee |
| Wateraansluiting | Nee |
| Elektriciteitsaansluiting | Nee |
| Internetaansluiting | Nee |
| Telefoonaansluiting | Nee |
| Zonnepanelen | Nee |
| Zonneboiler | Nee |
| Alarm | Nee |
| Videofoon | Nee |
| Grondwaterput | Nee |
Een pand van
De woonmakers
De Woonmakers Win-win in vastgoed
Bij De Woonmakers staat ervaring centraal. Sinds onze oprichting in 2020 hebben we ons voortdurend ontwikkeld als toonaangevend bedrijf in de vastgoedsector. Gedurende deze periode hebben we waardevolle inzichten verzameld en ons vakmanschap verfijnd om onze klanten een ongeëvenaarde dienstverlening te bieden.
Onze missie is om de perfecte match te creëren tussen individuen en vastgoed, en dit streven we na door onze diepgaande kennis van de markt te combineren met een innovatieve benadering van klantinteractie. Door te luisteren naar uw woonvoorkeuren en -behoeften, zijn we in staat om op maat gemaakte oplossingen te presenteren die naadloos aansluiten op uw levensstijl.
De drijvende krachten achter De Woonmakers, Jan en Krisja, delen een passie voor vastgoed en een toewijding om de klanten te voorzien van een ongeëvenaarde ervaring. Met jarenlange expertise in verschillende facetten van de vastgoedmarkt streven zij ernaar om een service te bieden die verder gaat dan alleen transacties. “Onze klanten kunnen rekenen op een persoonlijke aanpak die gericht is op het creëren van langdurige relaties en het leveren van op maat gemaakte oplossingen die voldoen aan hun specifieke behoeften.”
Dokter Kempeneersstraat 135
Leer meer over vastgoed
Nieuw
01 March 2026
Wanneer heb ik een bouwvergunning of omgevingsvergunning nodig?
17 February 2026
Hoe breng ik een bod uit op een woning?
24 November 2025
Uitgezocht voor jouw gemeente: Hoeveel stijgt de waarde van je woning door een renovatie?
22 October 2025



