CHARMANTE GEZINSWONING OP EEN RUIM PERCEEL IN BUVINGEN
€ 275.000
Een pand van De woonmakers
Overzicht
- 200 m² grond
- 3 Slaapkamer(s)
- 1 Badkamer(s)
Overstromingsgevaar gebouw
Overstromingsgevaar perceel
Beschrijving
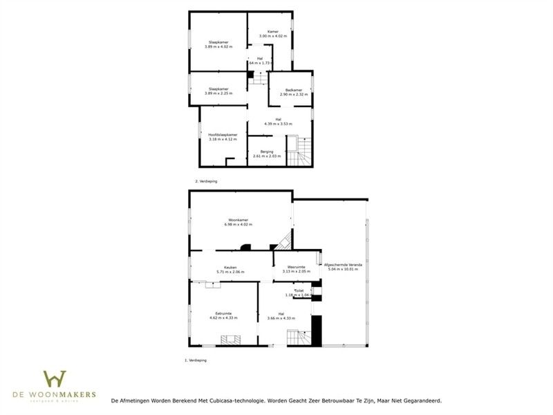
Deze woning werd opgetrokken eind 20ste eeuw en is gelegen op een perceel van 11A3CA. De woning kent een bruto bewoonbare oppervlakte van 200 vierkante meter, verdeeld over de verschillende bouwlagen.
Grote troef is dat de elektrische installatie nog conform het AREI is tot en met 2044!
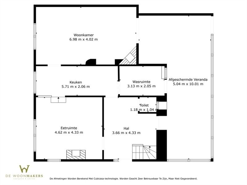
Wanneer we de woning betreden komen we terecht in de imposante inkomhal. Hier is reeds voldoende ruimte voor het creëren van vestiaire ruimte alsook treffen we hier het gastentoilet. De inkomhal leidt ons in eerste instantie naar de gezellige eetkamer. Aansluitend treffen we de volledig geïnstalleerde keuken terug. Deze geeft ons dan weer de toegang tot de knusse leefruimte.
Tot slot kan men op het gelijkvloers nog een praktische wasplaats terugvinden.
Op het verdiep heeft deze woning ons nog 3 slaapkamers te bieden.
Ook kunnen we hier de badkamer terugvinden.
De tweede verdieping zou ook nog omgebouwd kunnen worden voor 1 of 2 bijkomende slaapkamers.
Neem dan snel contact met ons op het nummer 011/98.88.98 of via info@dewoonmakers.be
In het landelijke Buvingen, deelgemeente van Gingelom, houden we halt bij deze ruime gezinswoning gelegen in de Mielenstraat ter hoogte van nummer 3A. We bevinden ons op een rustige locatie maar toch is er een vlotte verbinding naar het centrum van Gingelom waardoor alle faciliteiten binnen handbereik zijn. Ook zijn omliggende gemeenten zoals Landen en Sint-Truiden vlot bereikbaar wat maakt dat dit de ultieme gezinswoning bij uitstek is.
Deze woning werd opgetrokken eind 20ste eeuw en is gelegen op een perceel van 11A3CA. De woning kent een bruto bewoonbare oppervlakte van 200 vierkante meter, verdeeld over de verschillende bouwlagen.
Grote troef is dat de elektrische installatie nog conform het AREI is tot en met 2044!
Wanneer we de woning betreden komen we terecht in de imposante inkomhal. Hier is reeds voldoende ruimte voor het creëren van vestiaire ruimte alsook treffen we hier het gastentoilet. De inkomhal leidt ons in eerste instantie naar de gezellige eetkamer. Aansluitend treffen we de volledig geïnstalleerde keuken terug. Deze geeft ons dan weer de toegang tot de knusse leefruimte.
Tot slot kan men op het gelijkvloers nog een praktische wasplaats terugvinden.
Op het verdiep heeft deze woning ons nog 3 slaapkamers te bieden. Deze hebben een oppervlakte variërende tussen de 9 en 15m².
Ook kunnen we hier de badkamer terugvinden. Deze is voorzien van een knappe inloopdouche, een badkamermeubel met lavabo en een toilet.
De tweede verdieping zou ook nog omgebouwd kunnen worden voor 1 of 2 bijkomende slaapkamers.
Aansluitend aan de woning treffen we de ruime veranda. Hier is het jaar in jaar uit heerlijk vertoeven en dat met een leuk zicht op de tuin.
Voor wie graag de frisse buitenlucht opzoekt kan je terecht in de volledig omheinde tuin. Hier kan je tijdens de zomermaanden heerlijk genieten van een gezellige barbecue met vrienden of familie!
Dankzij het achtergelegen agrarisch gebied, ga je hier altijd kunnen genieten van het prachtig uitzicht.
Hebben wij uw interesse kunnen wekken voor deze charmante gezinswoning? Neem dan snel contact met ons op het nummer 011/98.88.98 of via info@dewoonmakers.be
De vermelde oppervlaktes zijn indicatief. De Woonmakers kan niet verantwoordelijk gesteld worden voor de juistheid van de door zijn verstrekte gegevens.
Energie
![]() |
- EPC Certificaat: 20220416-0002585320-RES-1
- Energieverbruik: 262 kWh/m²/jaar
- E-peil: E0
- Verwarming: Gas
- Beglazing: Standaard dubbel
Op de kaart

Financieel
| Prijs | |
|---|---|
| Kadastraal inkomen (niet geïndexeerd) | € 485 |
Berekening kosten
Je aankoopkosten? Die heb je snel berekent via de knop hieronder.
Bijkomende info
Gebouw
| Bouwjaar | 1984 |
|---|---|
| Staat | Goed onderhouden |
| Verdieping | 0 |
| Badkamers | 1 |
| Slaapkamers | 3 |
| Verdiepingen | 0 |
| Garages | 0 |
| Parkeerplaatsen | 0 |
| Toiletten | 0 |
Faciliteiten
| Keuken uitrusting | Standaard |
|---|---|
| Beglazing | Standaard dubbel |
| Brandstof primaire verwarming | Gas |
| Septische tank | Nee |
Perceel
| Overstromingsgevoelig | Geen |
|---|---|
| P-score | D |
| G-score | D |
| Totale oppervlakte (m²) | 200 |
| Bebouwde oppervlakte (m²) | 0 |
Vergunning
| Verkavelingsvergunning | Geen beschikbaar |
|---|
Uitrusting
| Investeringspand | Nee |
|---|---|
| Parking | Nee |
| Garage | Nee |
| Lift | Nee |
| Rioolaansluiting | Nee |
| Gasaansluiting | Nee |
| Wateraansluiting | Nee |
| Elektriciteitsaansluiting | Nee |
| Internetaansluiting | Nee |
| Telefoonaansluiting | Nee |
| Zonnepanelen | Nee |
| Zonneboiler | Nee |
| Alarm | Nee |
| Videofoon | Nee |
| Grondwaterput | Nee |
