Nieuw
ENERGIEZUINIGE GEZINSWONING MET ZONNEPANELEN EN GARAGE IN MIELEN-BOVEN-AALST
Een pand van De woonmakers
Overzicht
- 157 m² bewoonbaar
- 263 m² grond
- 3 Slaapkamer(s)
- 1 Badkamer(s)
- 2 Toilet(ten)
- 1 Tuin
- 1 Garage(s)
Beschrijving
In het landelijke Mielen-boven-Aalst, langs de Nachtegaalstraat ter hoogte van nummer 10, vinden we deze gezellige en energiezuinige gezinswoning terug. De woning is rustig gelegen, maar geniet tegelijk van een vlotte verbinding naar het centrum van Gingelom, waardoor winkels, scholen en andere faciliteiten zich op korte afstand bevinden. Ook omliggende gemeenten zoals Landen en Sint-Truiden zijn vlot bereikbaar.
Deze woning werd gebouwd in 2016 en is voorzien van hedendaags comfort en energiezuinige technieken.
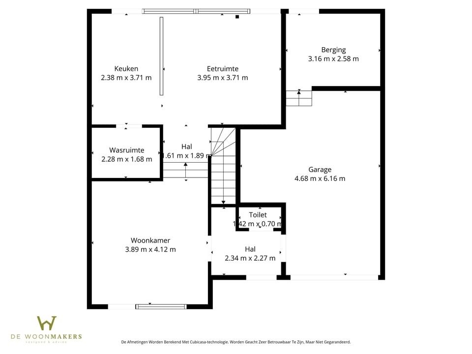
Bij het betreden van de woning komen we in de inkomhal, waar reeds een gastentoilet is voorzien. Van hieruit bereiken we de lichtrijke leefruimte, die naadloos overgaat in de open keuken met eetplaats. De keuken beschikt over voldoende opbergkasten en is uitgerust met alle nodige toestellen, die bovendien tussen 2024 en 2025 volledig vernieuwd werden.
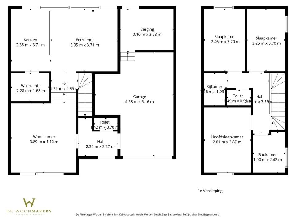
Via de houten trap bereiken we de eerste verdieping, waar de nachthal toegang biedt tot drie slaapkamers en de badkamer.
Een absolute troef van de woning is de inpandige garage.
Technisch is deze woning bijzonder goed uitgerust en onderhouden. Zo beschikt de woning over:
Contacteer ons snel op het nummer 011/98.88.98 of via info@dewoonmakers.be
Deze woning werd gebouwd in 2016 en is voorzien van hedendaags comfort en energiezuinige technieken.
Bij het betreden van de woning komen we in de inkomhal, waar reeds een gastentoilet is voorzien. Van hieruit bereiken we de lichtrijke leefruimte, die naadloos overgaat in de open keuken met eetplaats. De keuken beschikt over voldoende opbergkasten en is uitgerust met alle nodige toestellen, die bovendien tussen 2024 en 2025 volledig vernieuwd werden.
Via de houten trap bereiken we de eerste verdieping, waar de nachthal toegang biedt tot drie slaapkamers en de badkamer.
Een absolute troef van de woning is de inpandige garage.
Technisch is deze woning bijzonder goed uitgerust en onderhouden. Zo beschikt de woning over:
- Zonnepanelen
- Waterverzachter van Minimax
- Moderne pelletkachel
- Ventilatiesysteem type D
- Vliegenramen
- Aluminium vliegendeur achteraan
Contacteer ons snel op het nummer 011/98.88.98 of via info@dewoonmakers.be
In het landelijke Mielen-boven-Aalst, langs de Nachtegaalstraat ter hoogte van nummer 10, vinden we deze gezellige en energiezuinige gezinswoning terug. De woning is rustig gelegen, maar geniet tegelijk van een vlotte verbinding naar het centrum van Gingelom, waardoor winkels, scholen en andere faciliteiten zich op korte afstand bevinden. Ook omliggende gemeenten zoals Landen en Sint-Truiden zijn vlot bereikbaar. Bovendien staat Gingelom bekend om zijn talrijke fiets- en wandelroutes, ideaal voor wie houdt van natuur en ontspanning.
Deze woning werd gebouwd in 2016 en is voorzien van hedendaags comfort en energiezuinige technieken, waardoor je als nieuwe eigenaar meteen kan genieten van een aangename en duurzame woonervaring.
Bij het betreden van de woning komen we in de inkomhal, waar reeds een gastentoilet is voorzien. Van hieruit bereiken we de lichtrijke leefruimte, die naadloos overgaat in de open keuken met eetplaats. De keuken beschikt over voldoende opbergkasten en is uitgerust met alle nodige toestellen, die bovendien tussen 2024 en 2025 volledig vernieuwd werden. Ideaal voor wie graag kookt en houdt van modern comfort.
Achteraan zorgen grote raampartijen voor een mooie lichtinval en een aangenaam zicht op het terras en de tuin.
Via de houten trap bereiken we de eerste verdieping, waar de nachthal toegang biedt tot drie slaapkamers en de badkamer. De badkamer is ingericht met een inloopdouche en een badkamermeubel met dubbele lavabo.
Buiten kan je volop genieten van het terras en de volledig omheinde tuin, perfect om in alle rust te ontspannen of gezellig samen te komen met familie en vrienden.
Een absolute troef van de woning is de inpandige garage, die niet alleen plaats biedt voor het parkeren van een wagen, maar ook extra opbergruimte voorziet.
Technisch is deze woning bijzonder goed uitgerust en onderhouden. Zo beschikt de woning over:
Deze woning combineert rust, comfort en energiezuinigheid en vormt een ideale thuis voor gezinnen of koppels die op zoek zijn naar kwalitatief wonen in een groene omgeving.
Contacteer ons snel op het nummer 011/98.88.98 of via info@dewoonmakers.be voor meer informatie of een bezoek ter plaatse.
De vermelde oppervlaktes zijn indicatief. De Woonmakers kan niet verantwoordelijk gesteld worden voor de juistheid van de door zijn verstrekte gegevens.
Deze woning werd gebouwd in 2016 en is voorzien van hedendaags comfort en energiezuinige technieken, waardoor je als nieuwe eigenaar meteen kan genieten van een aangename en duurzame woonervaring.
Bij het betreden van de woning komen we in de inkomhal, waar reeds een gastentoilet is voorzien. Van hieruit bereiken we de lichtrijke leefruimte, die naadloos overgaat in de open keuken met eetplaats. De keuken beschikt over voldoende opbergkasten en is uitgerust met alle nodige toestellen, die bovendien tussen 2024 en 2025 volledig vernieuwd werden. Ideaal voor wie graag kookt en houdt van modern comfort.
Achteraan zorgen grote raampartijen voor een mooie lichtinval en een aangenaam zicht op het terras en de tuin.
Via de houten trap bereiken we de eerste verdieping, waar de nachthal toegang biedt tot drie slaapkamers en de badkamer. De badkamer is ingericht met een inloopdouche en een badkamermeubel met dubbele lavabo.
Buiten kan je volop genieten van het terras en de volledig omheinde tuin, perfect om in alle rust te ontspannen of gezellig samen te komen met familie en vrienden.
Een absolute troef van de woning is de inpandige garage, die niet alleen plaats biedt voor het parkeren van een wagen, maar ook extra opbergruimte voorziet.
Technisch is deze woning bijzonder goed uitgerust en onderhouden. Zo beschikt de woning over:
- 14 zonnepanelen (6.160 Wp)
- Waterverzachter van Minimax
- Moderne pelletkachel
- Ventilatiesysteem type D
- Vliegenramen op de bovenverdieping (in alle ruimtes behalve de badkamer)
- Vliegenraam aan het klapraam aan de voorzijde op het gelijkvloers
- Aluminium vliegendeur (hor) achteraan
Deze woning combineert rust, comfort en energiezuinigheid en vormt een ideale thuis voor gezinnen of koppels die op zoek zijn naar kwalitatief wonen in een groene omgeving.
Contacteer ons snel op het nummer 011/98.88.98 of via info@dewoonmakers.be voor meer informatie of een bezoek ter plaatse.
De vermelde oppervlaktes zijn indicatief. De Woonmakers kan niet verantwoordelijk gesteld worden voor de juistheid van de door zijn verstrekte gegevens.
Energie
![]() |
- EPC Certificaat: 20251114-0003731538-RES-1
- Energieverbruik: 51 kWh/m²/jaar
- E-peil: E0
- Verwarming: Gas
- Beglazing: Standaard dubbel
Op de kaart

Financieel
| Prijs | |
|---|---|
| Kadastraal inkomen (niet geïndexeerd) | € 493 |
Berekening kosten
Je aankoopkosten? Die heb je snel berekent via de knop hieronder.
Bijkomende info
Gebouw
| Bouwjaar | 2016 |
|---|---|
| Bouwcertificaat | Nee |
| Bewoonbaar (m²) | 157 |
| Badkamers | 1 |
| Slaapkamers | 3 |
| Verdiepingen | 0 |
| Garages | 1 |
| Parkeerplaatsen | 0 |
| Toiletten | 2 |
Faciliteiten
| Beglazing | Standaard dubbel |
|---|---|
| Brandstof primaire verwarming | Gas |
| Septische tank | Nee |
Perceel
| Overstromingsgevoelig | Geen |
|---|---|
| P-score | A |
| G-score | A |
| Totale oppervlakte (m²) | 263 |
| Bebouwde oppervlakte (m²) | 0 |
| Tuin oppervlakte (m²) | 0 |
Vergunning
| Verkavelingsvergunning | Geen beschikbaar |
|---|
Uitrusting
| Investeringspand | Nee |
|---|---|
| Parking | Nee |
| Garage | Ja |
| Opslagruimte | Ja |
| Tuin | Ja |
| Lift | Nee |
| Rioolaansluiting | Nee |
| Gasaansluiting | Nee |
| Wateraansluiting | Nee |
| Elektriciteitsaansluiting | Nee |
| Internetaansluiting | Nee |
| Telefoonaansluiting | Nee |
| Zonnepanelen | Ja |
| Zonneboiler | Nee |
| Alarm | Nee |
| Videofoon | Nee |
| Grondwaterput | Nee |
Een pand van
De woonmakers
De Woonmakers Win-win in vastgoed
Bij De Woonmakers staat ervaring centraal. Sinds onze oprichting in 2020 hebben we ons voortdurend ontwikkeld als toonaangevend bedrijf in de vastgoedsector. Gedurende deze periode hebben we waardevolle inzichten verzameld en ons vakmanschap verfijnd om onze klanten een ongeëvenaarde dienstverlening te bieden.
Onze missie is om de perfecte match te creëren tussen individuen en vastgoed, en dit streven we na door onze diepgaande kennis van de markt te combineren met een innovatieve benadering van klantinteractie. Door te luisteren naar uw woonvoorkeuren en -behoeften, zijn we in staat om op maat gemaakte oplossingen te presenteren die naadloos aansluiten op uw levensstijl.
De drijvende krachten achter De Woonmakers, Jan en Krisja, delen een passie voor vastgoed en een toewijding om de klanten te voorzien van een ongeëvenaarde ervaring. Met jarenlange expertise in verschillende facetten van de vastgoedmarkt streven zij ernaar om een service te bieden die verder gaat dan alleen transacties. “Onze klanten kunnen rekenen op een persoonlijke aanpak die gericht is op het creëren van langdurige relaties en het leveren van op maat gemaakte oplossingen die voldoen aan hun specifieke behoeften.”
Nachtegaalstraat 10
Leer meer over vastgoed
24 November 2025
Uitgezocht voor jouw gemeente: Hoeveel stijgt de waarde van je woning door een renovatie?
22 October 2025
Hoeveel kan ik lenen om een huis te kopen?
11 June 2025
Huis kopen met bouwovertreding? Dit moet je weten
11 May 2025
