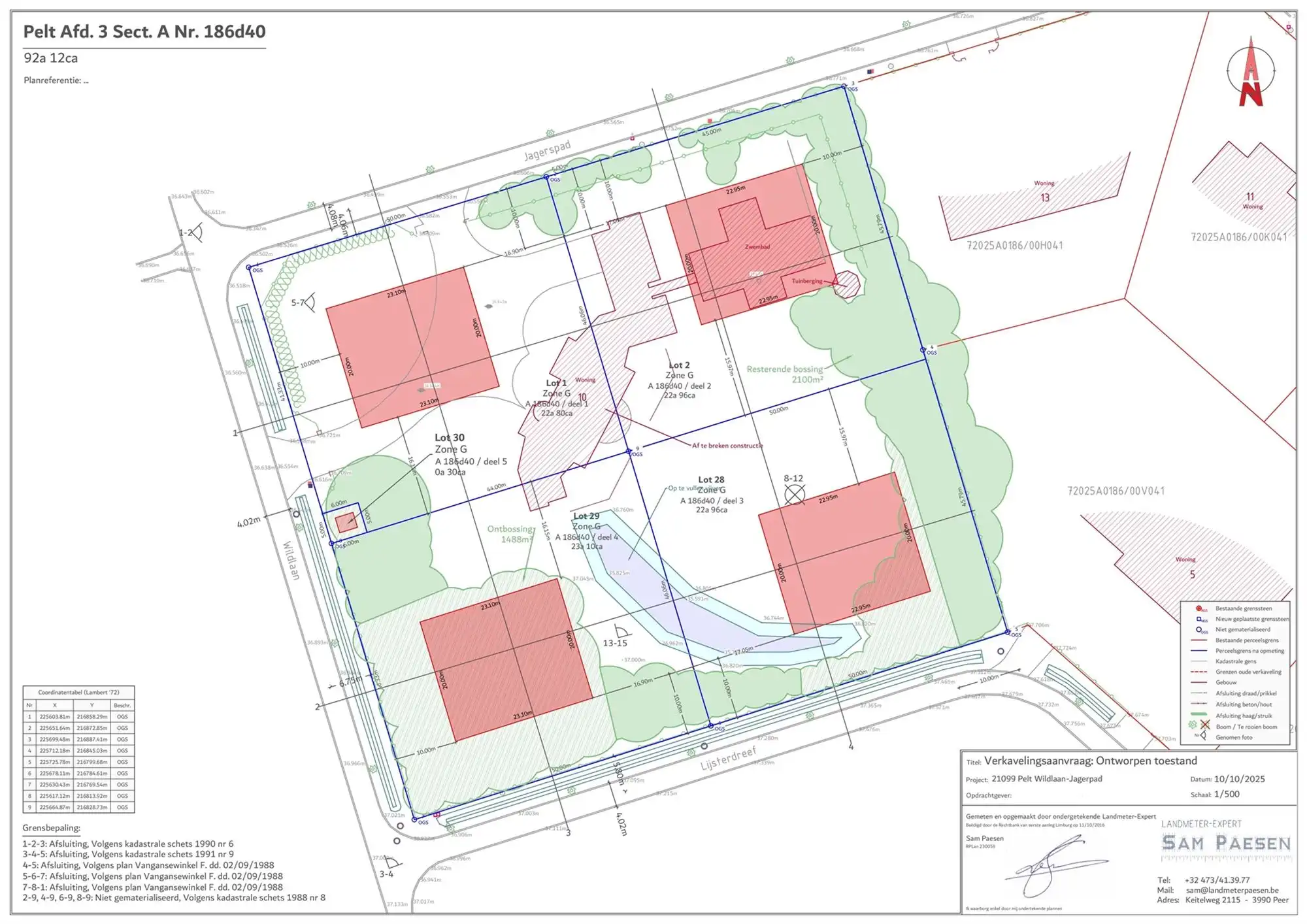
Bouwgrond in de Grote Heide te Pelt
€ 445.000
Een pand van Home-ID Lauwers
Overzicht
- 2296 m² grond
Beschrijving
U bent al lang op zoek naar een ruim villaperceel op een toplocatie in een gegeerde groene residentiële villawijk aan de Nederlandse grensstreek? Opgelet en lees aandachtig deze zeldzame aanbieding.Het betreft een bouwgrond (Lot 28 van bijgevoegd plan) voor een grootse villa in dit villaparkgebied, aan een bosgebied in een grote en volledig door groen omgeven villawijk genaamd "Grote Heide" te Pelt met een perceeloppervlakte van maar liefst ca. 2.296 m². Een straatbreedte van 50 meter en een diepte van 46 meter. Op enkele minuten van het winkelcentrum en openbaar vervoer kan je in deze groene oase toch een ultieme rust ervaren. Straat zelf is een klein en doodlopend straatje. Ideaal dus voor de mensen die van rust houden. Achteraan is er zicht op een beschermd natuurgebied. Deze buurt is zeer in aantrek en er komen vele enthousiaste jonge bewoners bij. Dat zorgt voor een vernieuwing en er is in deze wijk dus veel vraag naar een villaperceel van 1.500 à 2.500 m², maar helaas weinig aanbod. Grijp nu je kans!
Andere opties met de andere percelen zijn ook mogelijk.Infoplicht:- Vg (vergunning uitgereikt)- Wg (gelegen in woongebied)- Gmo (geen rechterlijke herstelmaatregel of bestuurlijke maatregel opgelegd)- Gvkr (geen voorkooprecht)- Gvv (verkavelingsvergunning).Dit is geen aanbod maar een onderhandelingsvoorstel. Alle informatie is onder voorbehoud van materiële vergissingen en/of wijzigingen.
Energie
- E-peil: E0
- Beglazing: Onbekend
Op de kaart

Downloads
Financieel
| Prijs | |
|---|---|
| Kadastraal inkomen (niet geïndexeerd) | € 5.495 |
| Kadastraal inkomen (geïndexeerd) | € 0 |
Berekening kosten
Je aankoopkosten? Die heb je snel berekent via de knop hieronder.
Bijkomende info
Gebouw
| Bouwcertificaat | Nee |
|---|
Perceel
| Diepte (m) | 46 |
|---|---|
| Breedte (m) | 50 |
| Overstromingsgevoelig | Geen |
| Voorkeurrecht | Nee |
| Totale oppervlakte (m²) | 2296 |
Uitrusting
| Investeringspand | Nee |
|---|---|
| Rioolaansluiting | Ja |
| Gasaansluiting | Ja |
| Wateraansluiting | Ja |
| Elektriciteitsaansluiting | Ja |
| TV aansluiting | Nee |
| Internetaansluiting | Nee |
| Telefoonaansluiting | Nee |