Bouwproject met woningvoorstel, realiseer jouw thuis op maat
€ 407.000
Een pand van Nancy Aerts Vastgoed
Overzicht
- 215 m² bewoonbaar
- 1077 m² grond
- 3 Slaapkamer(s)
- 1 Badkamer(s)
- 2 Toilet(ten)
- 1 Tuin
Beschrijving
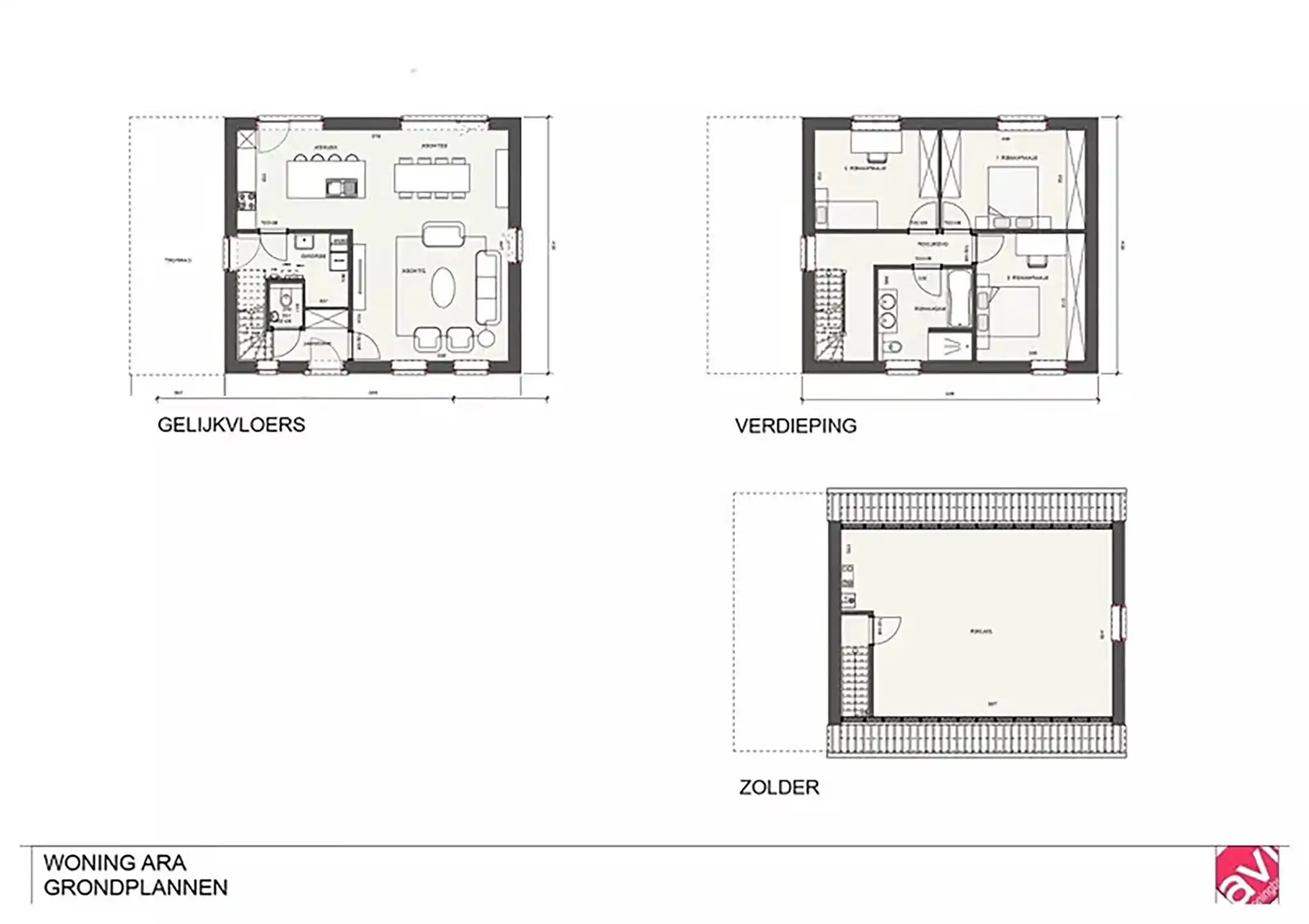
De voorgevel is zuidoost georiënteerd, de tuin noordwest — ideaal voor natuurlijke lichtinval en een zonnige buitenruimte met veel privacy. Het voorgestelde woningontwerp omvat 157 m² woonoppervlakte + 58 m² zolder, met een ruime leefruimte, open keuken met berging, drie slaapkamers en een badkamer met bad/douche. Warmtepomp, vloerverwarming, zonnepanelen en ventilatie D+ zijn inbegrepen. Alle afwerkingen zijn bespreekbaar en het ontwerp kan volledig op maat worden aangepast. Casco of sleutel‑op‑de‑deur is mogelijk.
PRIJS SLEUTEL OP DE DEUR: €407.000
Dit project wordt gerealiseerd in samenwerking met AVL‑woningbouw. Neem gerust contact op voor meer informatie.
Bouwproject met woningvoorstel, realiseer jouw droomwoning op maat
Op een vlot bereikbare locatie langs de Kerkhovensesteenweg in Lommel bevindt zich dit mooie perceel met een oppervlakte van 10a77ca. De ligging combineert een praktische bereikbaarheid met een open en aangename woonomgeving. Winkels, scholen en andere dagelijkse voorzieningen liggen vlakbij.
Het perceel beschikt over een straatbreedte van 17,72 meter en een diepte van 67,70 meter, wat zorgt voor een ruimtelijk gevoel en tal van bouwmogelijkheden. De toegelaten bouwbreedte bedraagt 9,82 meter. Op het gelijkvloers kan er gebouwd worden tot 17 meter diep, met op de verdieping een bouwdiepte tot 12 meter. Zowel een plat dak als een hellend dak zijn toegestaan.
De voorgevel is zuidoost georiënteerd, wat zorgt voor een aangename en natuurlijke lichtinval in de woning. De tuin is noordwest georiënteerd en biedt dankzij de perceeldiepte voldoende ruimte en privacy om een zonnige en groene buitenomgeving te creëren.
De voorgestelde woning heeft een oppervlakte van 157m² + 58m² zolder. Er is een eet- en zithoek voorzien en een ruime keuken met berging. Boven zijn er 3 slaapkamers en een badkamer met bad/douche. Warmtepomp, vloerverwarming, zonnepanelen, ventilatie D+ zijn reeds voorzien. Alle keuzes i.v.m. de afwerking van de woning zijn naar wens bespreekbaar. Ook het ontwerp van de woning is slechts een voorstel en kan volledig met jou op maat uitgewerkt worden. Vanaf casco afwerking biedt de woning je alvast alle zekerheden en garanties en van daaruit kan je zorgeloos verder afwerken. Een volledig afgewerkte woning is natuurlijk ook mogelijk!
PRIJS SLEUTEL OP DE DEUR: € 407 000
€ 407 000 excl. alle kosten op grond en constructie
€ 499 000 incl. alle kosten op grond en constructie
Sleutel op de deur afwerking
- EPB A+
- Vloerverwarming en warmtepomp
- Ventilatiesysteem D+
- 8 zonnepanelen
- PVC buitenschrijnwerk
- Afgewerkte keuken
- Sanitaire toestellen
- Tegelvloeren op het gelijkvloers en in de badkamer
- Binnendeuren
- Voegwerken
- Trap in rubberwood
Meer weten? Neem gerust contact op.
Dit project realiseren we in samenwerking met AVL-woningbouw
Energie
Op de kaart

Financieel
| Prijs |
|---|
Berekening kosten
Je aankoopkosten? Die heb je snel berekend via de knop hieronder.
Bijkomende info
Gebouw
| Staat | Nieuw |
|---|---|
| Bewoonbaar (m²) | 215 |
| Gevels | 4 |
| Badkamers | 1 |
| Slaapkamers | 3 |
| Verdiepingen | 3 |
| Parkeerplaatsen | 0 |
| Doucheruimtes | 1 |
| Toiletten | 2 |
Faciliteiten
| Type vloer | |
|---|---|
| Keuken uitrusting | Luxueus uitgerust |
Perceel
| Overstromingsgevoelig | Geen |
|---|---|
| P-score | A |
| G-score | A |
| Voorkeurrecht | Nee |
| Totale oppervlakte (m²) | 1077 |
| Tuin oppervlakte (m²) | 0 |
| Oriëntatie voorgevel | ZuidOost |
| Oriëntatie terras | Noordwest |
Vergunning
| Vergunning | Geen beschikbaar |
|---|---|
| Verkavelingsvergunning | Geen beschikbaar |
| Bouwovertreding | Geen |
| Bouwovertreding dagvaardiging | Geen |
Uitrusting
| Geschikt voor rolstoelgebruikers | Nee |
|---|---|
| Parking | Ja |
| Garage | Nee |
| Tuin | Ja |
| Terras | Ja |
| Lift | Nee |