Nieuw
Veelzijdige vrijstaande woning met extra appartement
€ 448.500
Een pand van Immovadis
Overzicht
- 287 m² bewoonbaar
- 4 Slaapkamer(s)
- 2 Badkamer(s)
- 1 Toilet(ten)
- 3 Living(s)
Beschrijving
Deze vrijstaande woning kan op verschillende manieren aangewend worden: gezinnen, zelfstandigen of kangoeroewonen.
De hoofdwoning beschikt over drie ruime slaapkamers.
Aansluitend bevindt zich een gelijkvloers appartement met één slaapkamer, perfect geschikt voor een vrij beroep, praktijk, kantoor, kangoeroewonen of opbrengstdoeleinden.
Op het terrein is er ruime parkeergelegenheid, een absolute troef voor bewoners en bezoekers en via de praktische toegangspoort bereik je de achterliggende tuin.
Dankzij de flexibele indeling en de onmiddellijke beschikbaarheid biedt deze goed onderhouden eigendom tal van toekomstmogelijkheden en een uitstekende meerwaarde.
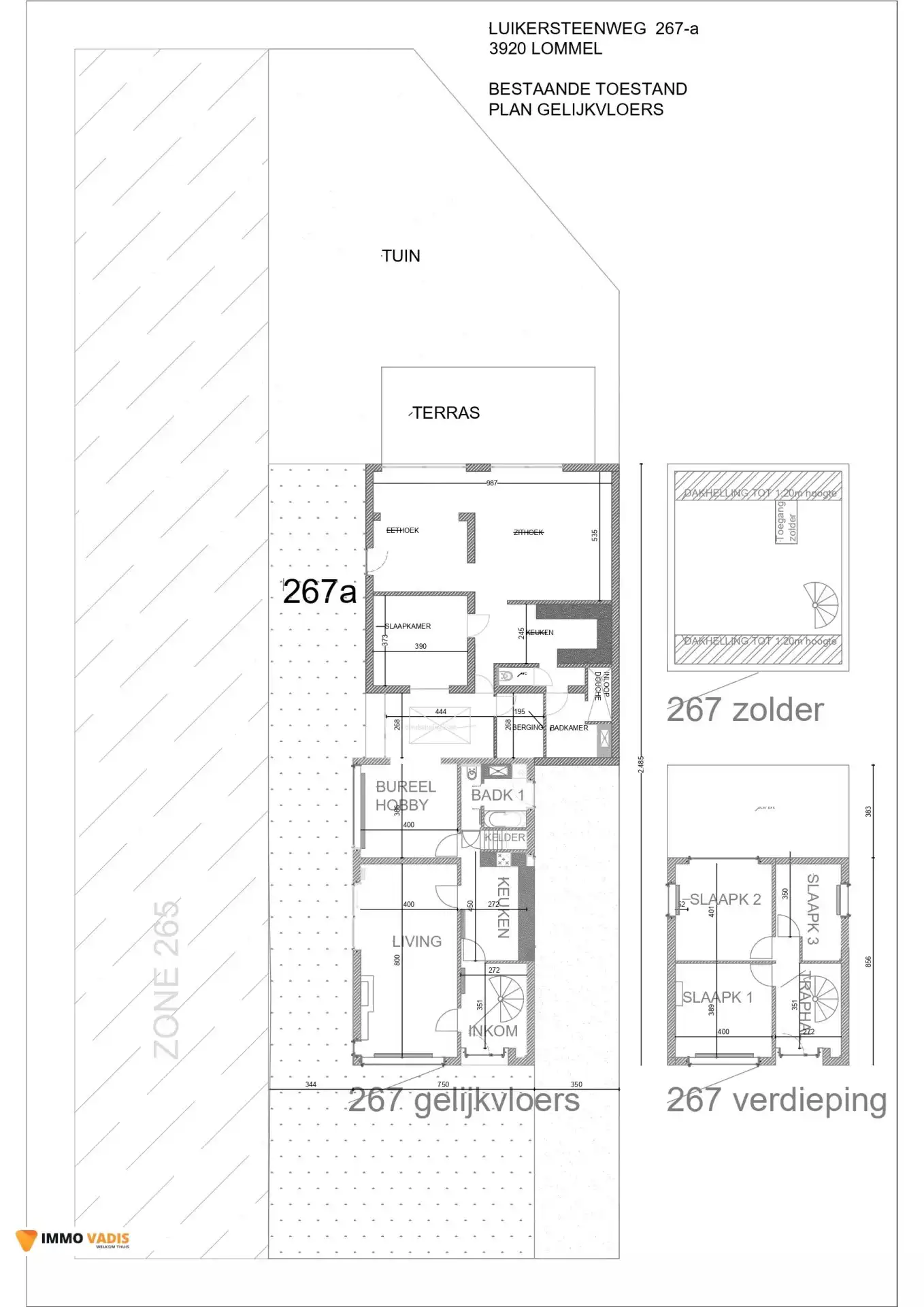
Beschrijving woning:
Bewoonbare oppervlakte 158 m² (volgens EPC)
Gelijkvloers:
- Inkomhal met spiltrap naar verdieping
- Woonkamer met mogelijkheid tot plaatsen van een kachel
- Keuken met keramische kookplaat, combi-oven en koelkast
- Eetkamer
- Badkamer met ligbad, lavabo en toilet
- Toegang naar appartement
Verdieping:
- Nachthal met deurvenster naar terras en zolder
- Drie slaapkamers
Beschrijving gelijkvloers appartement:
Bewoonbare oppervlakte 129m2 (volgens EPC)
- Toegang via de woning of langs buiten
- Berging of bureauruimte
- Inbouwkeuken met keramische kookplaat, combi-oven, koelkast en vriezer
- Tussenhal
- Badkamer met inloopdouche en lavabo
- Toilet
- Slaapkamer met inbouwkasten
- Woonkamer met houtkachel en schuifraam naar de tuin
- Leefruimte met schuifraam naar terras en tuin
Bouwjaar appartement: 1996
EPC: label C-285 kWh/(m2jaar)
Asbestveilig
Voor meer info:
bianca@immovadis.be of 0487/32.19.97
De hoofdwoning beschikt over drie ruime slaapkamers.
Aansluitend bevindt zich een gelijkvloers appartement met één slaapkamer, perfect geschikt voor een vrij beroep, praktijk, kantoor, kangoeroewonen of opbrengstdoeleinden.
Op het terrein is er ruime parkeergelegenheid, een absolute troef voor bewoners en bezoekers en via de praktische toegangspoort bereik je de achterliggende tuin.
Dankzij de flexibele indeling en de onmiddellijke beschikbaarheid biedt deze goed onderhouden eigendom tal van toekomstmogelijkheden en een uitstekende meerwaarde.
Beschrijving woning:
Bewoonbare oppervlakte 158 m² (volgens EPC)
Gelijkvloers:
- Inkomhal met spiltrap naar verdieping
- Woonkamer met mogelijkheid tot plaatsen van een kachel
- Keuken met keramische kookplaat, combi-oven en koelkast
- Eetkamer
- Badkamer met ligbad, lavabo en toilet
- Toegang naar appartement
Verdieping:
- Nachthal met deurvenster naar terras en zolder
- Drie slaapkamers
Beschrijving gelijkvloers appartement:
Bewoonbare oppervlakte 129m2 (volgens EPC)
- Toegang via de woning of langs buiten
- Berging of bureauruimte
- Inbouwkeuken met keramische kookplaat, combi-oven, koelkast en vriezer
- Tussenhal
- Badkamer met inloopdouche en lavabo
- Toilet
- Slaapkamer met inbouwkasten
- Woonkamer met houtkachel en schuifraam naar de tuin
- Leefruimte met schuifraam naar terras en tuin
Bouwjaar appartement: 1996
EPC: label C-285 kWh/(m2jaar)
Asbestveilig
Voor meer info:
bianca@immovadis.be of 0487/32.19.97
Energie
![]() |
- EPC Certificaat: 20231228-0003093172-RES-1
- Energieverbruik: 355 kWh/m²/jaar
- Verwarming: Butaangas
- Beglazing: Standaard dubbel
Extra budget nodig voor je renovatie?
De overheid helpt je dit pand energetisch te renoveren! Hieronder zie je het premiebedrag dat je mogelijks van de overheid krijgt.
Het huidige EPC-label is:

Op de kaart

Financieel
| Prijs |
|---|
Berekening kosten
Je aankoopkosten? Die heb je snel berekent via de knop hieronder.
Bijkomende info
Gebouw
| Bouwjaar | 1968 |
|---|---|
| Staat | Goed onderhouden |
| Is beschermd | Nee |
| Bouwcertificaat | Nee |
| Bewoonbaar (m²) | 287 |
| Verdieping | 0 |
| Gevels | 4 |
| Badkamers | 2 |
| Slaapkamers | 4 |
| Verdiepingen | 0 |
| Keukens | 3 |
| Leefruimtes | 3 |
| Opslagruimtes | 1 |
| Toiletten | 1 |
Ruimtes
| Slaapkamer | 61 m² |
|---|---|
| Leefruimte | 61 m² |
| Keuken | 13 m² |
| Kamer 1 | 15 m² |
| EXTRA_INFO.SPACEDETAILS.KEY.DININGROOM | 16 m² |
| Kamer 2 | 7 m² |
| Opbergruimte | 6 m² |
| Keuken | 21 m² |
| Keuken | 15 m² |
Faciliteiten
| Keuken | EXTRA_INFO.OUTFITTING.VALUE.SEPARATEKITCHEN |
|---|---|
| Materiaal ramenomlijstingen | PVC |
| Beglazing | Standaard dubbel |
| Luiken | Nee |
| Primair verwarmingstype | Decentrale verwarming |
| Primaire verwarmingsbron | Condensatieketel |
| Brandstof primaire verwarming | Butaangas |
| Primaire verwarming | Radiatoren |
| Warm water type | Decentrale verwarming |
| Elektrisch keuringsattest | Ja |
| Septische tank | Nee |
| Beerput | Nee |
Perceel
| Overstromingsgevoelig | Geen |
|---|---|
| Voorkeurrecht | Nee |
| Bebouwde oppervlakte (m²) | 287 |
| Oriëntatie voorgevel | Zuid |
Vergunning
| Vergunning | Vergunning beschikbaar |
|---|
Uitrusting
| Investeringspand | Nee |
|---|---|
| Geschikt als kangoeroewoning | Nee |
| Geschikt voor rolstoelgebruikers | Nee |
| Parking | Nee |
| Garage | Nee |
| Thuiskantoor | Nee |
| Kelder | Nee |
| Zolder | Nee |
| Opslagruimte | Ja |
| Tuin | Nee |
| Terras | Nee |
| Lift | Nee |
| Rioolaansluiting | Nee |
| Gasaansluiting | Ja |
| Wateraansluiting | Ja |
| Elektriciteitsaansluiting | Ja |
| TV aansluiting | Nee |
| Internetaansluiting | Nee |
| Zonnepanelen | Nee |
| Zonneboiler | Nee |
| Thuisbatterij | Nee |
| Alarm | Nee |
| Zwembad | Nee |
| Sauna | Nee |
| Jacuzzi | Nee |
| Videofoon | Nee |
| Domotica | Nee |
| Grondwaterput | Nee |
| Ventilatie | Nee |
Een pand van
Immovadis
Welkom Thuis
Geen alledaagse standaard makelaar!
ImmoVadis staat voor anders durven zijn, maar wel binnen de professionele kaders.
Wij pakken uw vastgoed professioneel, duidelijk (helder) en tijdgericht aan, waarbij u als klant ten allen tijde centraal staat en zich WELKOM THUIS voelt!
ImmoVadis gelooft in 'anders durven denken', samen met een realistische, no-nonsense aanpak. Daarnaast is vertrouwen, passie en een goede relatie met de klant van zeer groot belang.
Wij streven ernaar om onze klanten altijd tevreden te houden. ImmoVadis is dan ook een klantgericht kantoor met een hoogwaardig dienstverleningsniveau.
Team
Immovadis bestaat uit een team van medewerkers en partners, onder leiding van een vat vol ervaring op niveau van makelaardij, Guy Clerinx in samenwerking met een bouwkundig aannemer, Wim Lambrechts (ProMaCon BV).
Door deze samenwerking kunnen we op het vlak van bouwkundigheid een meerwaarde toevoegen aan het gebruikelijk takenpakket van een standaard makelaar.
Als klant krijgt u deze deskundige meerwaarde automatisch mee inbegrepen in onze dienstverlening.
86712860
Leer meer over vastgoed
24 November 2025
Uitgezocht voor jouw gemeente: Hoeveel stijgt de waarde van je woning door een renovatie?
22 October 2025
Hoeveel kan ik lenen om een huis te kopen?
11 June 2025
Huis kopen met bouwovertreding? Dit moet je weten
11 May 2025


