Nieuw
IDEALIS VASTGOED - OVERDRACHT AANDELEN PATRIMONIUMVENNOOTSCHAP MET IN HAAR ACTIEF MEERDERE ONROERENDE GOEDEREN GELEGEN TE STADSWAAG 3, STADSWAAG 5, STAD 1, STAD 3 en GROENSTRAAT 5, ALLEN IN HET CENTRUM VAN HAMONT (HAMONT-ACHEL)! – Geschikt voor zij die zoeken naar een interessante investering met verschillende mogelijkheden waaronder een vernieuwbouw bestaande uit 10 appartementen.
€ 1.750.000
Overzicht
Beschrijving
IDEALIS VASTGOED - OVERDRACHT AANDELEN PATRIMONIUMVENNOOTSCHAP MET IN HAAR ACTIEF MEERDERE ONROERENDE GOEDEREN GELEGEN TE STADSWAAG 3, STADSWAAG 5, STAD 1, STAD 3 en GROENSTRAAT 5, ALLEN IN HET CENTRUM VAN HAMONT (HAMONT-ACHEL)! – Geschikt voor zij die zoeken naar een interessante investering met verschillende mogelijkheden waaronder een vernieuwbouw bestaande uit 10 appartementen.
OMSCHRIJVING:
De patrimoniumvennootschap omvat de volgende onroerende goederen allen gelegen in Hamont (Hamont-Achel):
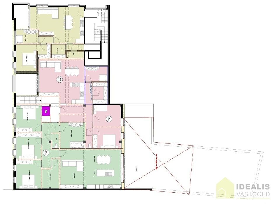
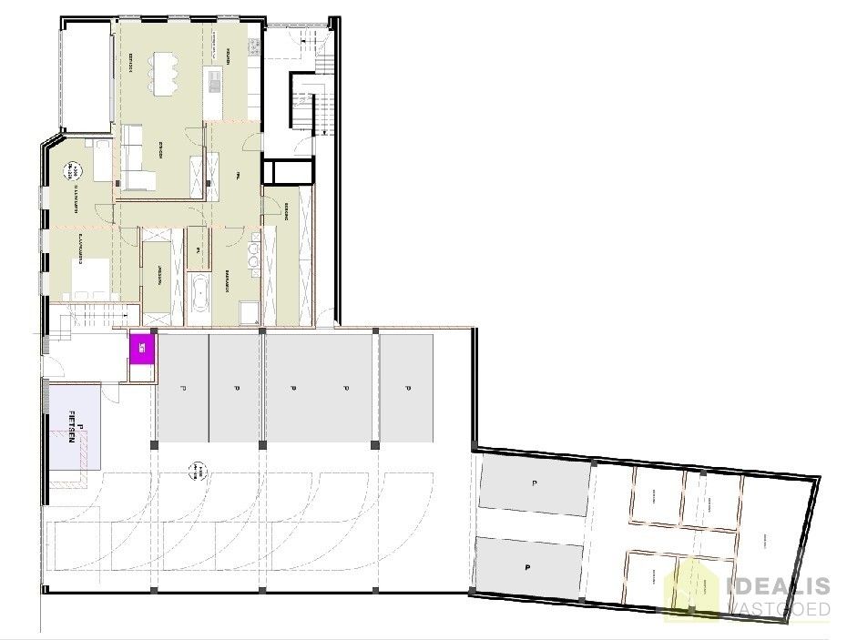
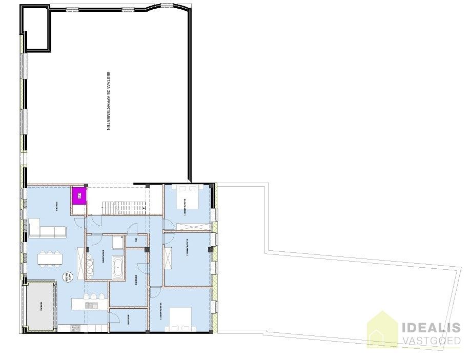
- Op de hoek van Stadswaag en Stad (Stadswaag 5, Stad 1 en Stad 3) een zeer ruim handelspand op de gelijkvloerse- en eerste verdieping. Op de tweede en derde verdieping zijn er in totaal 4 appartementen. Er zijn plannen beschikbaar voor een vernieuwbouw bestaande uit 10 appartementen.
- Stadswaag 3 met op de gelijkvloerse verdieping een handelspand, momenteel verhuurd aan Solidaris en op de eerste en tweede verdieping een zeer ruim duplex appartement.
- Groenstraat 5 een gelijkvloers handelspand momenteel verhuurd als winkel.
LIGGING:
Alle onroerende goederen uit de patrimoniumvennootschap zijn gelegen in de stadskern van Hamont (deelgemeente Hamont-Achel), met toegang tot openbaar vervoer (bus en trein), horeca, supermarkt, sport- en cultuurfaciliteiten en zijn slechts enkele minuten verwijderd van de Nederlandse grens.
Extra informatie zoals Jaarrapport, EPC’s, elektrische keuringen en plannen voor een vernieuwbouw zijn beschikbaar op aanvraag.
Benieuwd naar deze investering?
Wenst U advies in vastgoed? Graag plannen wij vrijblijvend met U een afspraak in om onze expertise met U te delen, steeds tot Uw dienst!!
Neem contact op met IDEALIS VASTGOED op 011/515 565 of mail naar info@idealisvastgoed.be!
OMSCHRIJVING:
De patrimoniumvennootschap omvat de volgende onroerende goederen allen gelegen in Hamont (Hamont-Achel):
- Op de hoek van Stadswaag en Stad (Stadswaag 5, Stad 1 en Stad 3) een zeer ruim handelspand op de gelijkvloerse- en eerste verdieping. Op de tweede en derde verdieping zijn er in totaal 4 appartementen. Er zijn plannen beschikbaar voor een vernieuwbouw bestaande uit 10 appartementen.
- Stadswaag 3 met op de gelijkvloerse verdieping een handelspand, momenteel verhuurd aan Solidaris en op de eerste en tweede verdieping een zeer ruim duplex appartement.
- Groenstraat 5 een gelijkvloers handelspand momenteel verhuurd als winkel.
LIGGING:
Alle onroerende goederen uit de patrimoniumvennootschap zijn gelegen in de stadskern van Hamont (deelgemeente Hamont-Achel), met toegang tot openbaar vervoer (bus en trein), horeca, supermarkt, sport- en cultuurfaciliteiten en zijn slechts enkele minuten verwijderd van de Nederlandse grens.
Extra informatie zoals Jaarrapport, EPC’s, elektrische keuringen en plannen voor een vernieuwbouw zijn beschikbaar op aanvraag.
Benieuwd naar deze investering?
Wenst U advies in vastgoed? Graag plannen wij vrijblijvend met U een afspraak in om onze expertise met U te delen, steeds tot Uw dienst!!
Neem contact op met IDEALIS VASTGOED op 011/515 565 of mail naar info@idealisvastgoed.be!
Energie
![]() |
- EPC Certificaat: 20230227-0002822611-RES-1
- Energieverbruik: 136 kWh/m²/jaar
- E-peil: E0
- Beglazing: Onbekend
Op de kaart

Financieel
| Prijs |
|---|
Berekening kosten
Je aankoopkosten? Die heb je snel berekent via de knop hieronder.
Bijkomende info
Gebouw
| Badkamers | 0 |
|---|---|
| Slaapkamers | 0 |
| Verdiepingen | 0 |
| Garages | 0 |
| Parkeerplaatsen | 0 |
| Toiletten | 0 |
Faciliteiten
| Septische tank | Nee |
|---|
Perceel
| Overstromingsgevoelig | Geen |
|---|---|
| P-score | A |
| G-score | A |
| Bebouwde oppervlakte (m²) | 0 |
Vergunning
| Verkavelingsvergunning | Geen beschikbaar |
|---|
Uitrusting
| Investeringspand | Nee |
|---|---|
| Parking | Nee |
| Garage | Nee |
| Lift | Nee |
| Rioolaansluiting | Nee |
| Gasaansluiting | Ja |
| Wateraansluiting | Ja |
| Elektriciteitsaansluiting | Ja |
| Internetaansluiting | Nee |
| Telefoonaansluiting | Nee |
| Zonnepanelen | Nee |
| Zonneboiler | Nee |
| Alarm | Nee |
| Videofoon | Nee |
| Grondwaterput | Nee |
Appartementsblok
| Lift | Nee |
|---|---|
| Intercom | Nee |
Leer meer over vastgoed
Nieuw
24 November 2025
Uitgezocht voor jouw gemeente: Hoeveel stijgt de waarde van je woning door een renovatie?
22 October 2025
Hoeveel kan ik lenen om een huis te kopen?
11 June 2025
Huis kopen met bouwovertreding? Dit moet je weten
11 May 2025
