In optie
Ruim bouwperceel voor open bebouwing in gunstige ligging te Bocholt!
Prijs op aanvraag
Een pand van Immosign+ BV
Favoriet
Jouw zoektocht
Jouw scoretabel voor dit pand
Aan het laden...
Jouw geplande bezichtigingen
Aan het laden...
Overzicht
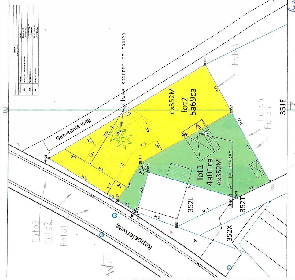
- 569 m² grond
Beschrijving
PLUSPUNTEN
+ totaal perceeloppervlakte: 569 m²
+ geschikt voor open bebouwing
+ gunstige locatie
+ ruime bouwvoorschriften
+ géén bouwverplichting
+ lot 2 van de verkaveling
+ niet vervallen verkaveling
+ totaal perceeloppervlakte: 569 m²
+ geschikt voor open bebouwing
+ gunstige locatie
+ ruime bouwvoorschriften
+ géén bouwverplichting
+ lot 2 van de verkaveling
+ niet vervallen verkaveling
PLUSPUNTEN
+ totaal perceeloppervlakte: 569 m²
+ geschikt voor open bebouwing
+ gunstige locatie
+ ruime bouwvoorschriften
+ géén bouwverplichting
+ lot 2 van de verkaveling
+ niet vervallen verkaveling
ALGEMEEN:
Deze mooi gelegen bouwgrond aan de Reppelerweg 27 in Bocholt biedt een unieke kans voor wie zijn droomwoning wil realiseren. Het perceel, met een totale oppervlakte van 569 m², is geschikt voor een open bebouwing en geniet van een gunstige ligging in een rustige straat, vlak bij het centrum van Bocholt. Dankzij de zuidoostelijke oriëntatie profiteer je van een optimale lichtinval en aangename zon gedurende de dag.
De locatie is bijzonder aantrekkelijk voor wie houdt van het evenwicht tussen rust en bereikbaarheid. Je woont hier in een groene en rustige omgeving, terwijl winkels, scholen, restaurants en openbaar vervoer zich op korte afstand bevinden. Hierdoor combineer je landelijke charme met het gemak van alle voorzieningen in de buurt.
Een bijkomende troef is de flexibiliteit die dit perceel biedt. Er geldt geen bouwverplichting, waardoor je de vrijheid hebt om te bouwen op het moment dat het jou het beste past. Bovendien zijn de bouwvoorschriften ruim en bieden ze veel mogelijkheden voor het ontwerpen van een woning die volledig aansluit bij jouw wensen.
Met zijn combinatie van een gunstige ligging, een royale perceelgrootte, ruime voorschriften en de afwezigheid van een bouwverplichting, is deze bouwgrond de ideale basis om jouw woonplannen te realiseren. Of je nu meteen aan de slag wil met de bouw van je nieuwe thuis of de grond beschouwt als een waardevolle investering voor de toekomst, dit perceel heeft alles in huis om jouw woonwensen waar te maken.
VERKAVELINGSVOORSCHRIFTEN:
+ bouwdiepte gelijkvloers: 17m
+ dakvorm: vrij te bepalen
+ vrijstaande bijgebouwen worden toegelaten max. 40m²
+ voorschriften zie downloads
FINANCIERING:
Opgelet: voor woningen gelegen in België zijn enkel Belgische hypotheken mogelijk. Maak tijdig een afspraak zodat u zich op voorhand kan bevragen over de mogelijkheden.
Kandidaat-kopers die hun financiële plaatje al hebben voorbereid, wekken altijd meer vertrouwen.
SUCCESVOL VERKOPEN?
Dankzij succesvolle transacties zijn wij steeds op zoek naar nieuw aanbod. Overweegt u te verkopen of te verhuren? Informeer vrijblijvend naar onze werkwijze.
HOUD ME OP DE HOOGTE:
Niet gevonden wat u zocht? Schrijf u gratis in op onze website zodat u vrijblijvend op de hoogte wordt gebracht van nieuw aanbod: https://www.immosign-plus.be/nl/hou-me-op-de-hoogte/
CONTACT:
Wilt u graag meer informatie over dit uniek perceel? Contacteer dan Elke voor al uw vragen of voor een vrijblijvende afspraak. Tot binnenkort.
+ totaal perceeloppervlakte: 569 m²
+ geschikt voor open bebouwing
+ gunstige locatie
+ ruime bouwvoorschriften
+ géén bouwverplichting
+ lot 2 van de verkaveling
+ niet vervallen verkaveling
ALGEMEEN:
Deze mooi gelegen bouwgrond aan de Reppelerweg 27 in Bocholt biedt een unieke kans voor wie zijn droomwoning wil realiseren. Het perceel, met een totale oppervlakte van 569 m², is geschikt voor een open bebouwing en geniet van een gunstige ligging in een rustige straat, vlak bij het centrum van Bocholt. Dankzij de zuidoostelijke oriëntatie profiteer je van een optimale lichtinval en aangename zon gedurende de dag.
De locatie is bijzonder aantrekkelijk voor wie houdt van het evenwicht tussen rust en bereikbaarheid. Je woont hier in een groene en rustige omgeving, terwijl winkels, scholen, restaurants en openbaar vervoer zich op korte afstand bevinden. Hierdoor combineer je landelijke charme met het gemak van alle voorzieningen in de buurt.
Een bijkomende troef is de flexibiliteit die dit perceel biedt. Er geldt geen bouwverplichting, waardoor je de vrijheid hebt om te bouwen op het moment dat het jou het beste past. Bovendien zijn de bouwvoorschriften ruim en bieden ze veel mogelijkheden voor het ontwerpen van een woning die volledig aansluit bij jouw wensen.
Met zijn combinatie van een gunstige ligging, een royale perceelgrootte, ruime voorschriften en de afwezigheid van een bouwverplichting, is deze bouwgrond de ideale basis om jouw woonplannen te realiseren. Of je nu meteen aan de slag wil met de bouw van je nieuwe thuis of de grond beschouwt als een waardevolle investering voor de toekomst, dit perceel heeft alles in huis om jouw woonwensen waar te maken.
VERKAVELINGSVOORSCHRIFTEN:
+ bouwdiepte gelijkvloers: 17m
+ dakvorm: vrij te bepalen
+ vrijstaande bijgebouwen worden toegelaten max. 40m²
+ voorschriften zie downloads
FINANCIERING:
Opgelet: voor woningen gelegen in België zijn enkel Belgische hypotheken mogelijk. Maak tijdig een afspraak zodat u zich op voorhand kan bevragen over de mogelijkheden.
Kandidaat-kopers die hun financiële plaatje al hebben voorbereid, wekken altijd meer vertrouwen.
SUCCESVOL VERKOPEN?
Dankzij succesvolle transacties zijn wij steeds op zoek naar nieuw aanbod. Overweegt u te verkopen of te verhuren? Informeer vrijblijvend naar onze werkwijze.
HOUD ME OP DE HOOGTE:
Niet gevonden wat u zocht? Schrijf u gratis in op onze website zodat u vrijblijvend op de hoogte wordt gebracht van nieuw aanbod: https://www.immosign-plus.be/nl/hou-me-op-de-hoogte/
CONTACT:
Wilt u graag meer informatie over dit uniek perceel? Contacteer dan Elke voor al uw vragen of voor een vrijblijvende afspraak. Tot binnenkort.
Energie
- E-peil: E0
- Beglazing: Onbekend
Op de kaart

Financieel
| Kadastraal inkomen (niet geïndexeerd) | € 3 |
|---|
Berekening kosten
Je aankoopkosten? Die heb je snel berekend via de knop hieronder.
Bijkomende info
Gebouw
| Bouwcertificaat | Nee |
|---|
Perceel
| Diepte (m) | 45 |
|---|---|
| Breedte (m) | 19 |
| P-score | A |
| Totale oppervlakte (m²) | 569 |
| Oriëntatie tuin | ZuidOost |
Vergunning
| Verkavelingsvergunning | Vergunning beschikbaar |
|---|
Uitrusting
| Investeringspand | Nee |
|---|---|
| Rioolaansluiting | Nee |
| Gasaansluiting | Nee |
| Wateraansluiting | Nee |
| Elektriciteitsaansluiting | Nee |
| Internetaansluiting | Nee |
| Telefoonaansluiting | Nee |
Een pand van
Immosign+ BV
Immosign+, meerwaarde in vastgoed!
Welkom bij immosign+ BV!
Op zoek naar een professioneel en enthousiast team voor de verkoop of verhuur van uw onroerend goed? Contacteer ons dan voor een vrijblijvende afspraak via +32 89 87 03 67 of mail naar info@immosign-plus.be voor een gratis schatting.
Bij ons staat kwaliteit boven kwantiteit en geniet u van een persoonlijke begeleiding.
Tevens beschikken wij onze BIV-erkenningsnummer - https://www.biv.be.
Passie voor vastgoed en feeling voor verkoop en verhuur
479-REP-27-NIEUW
Leer meer over vastgoed
23 March 2026
Op Spotto zoeken als een pro: 10 slimme tips
21 March 2026
Hoeveel kan ik lenen om een huis te kopen?
01 March 2026
Wanneer heb ik een bouwvergunning of omgevingsvergunning nodig?
17 February 2026