Bouwgrond
€ 90.000
Een pand van Immo Tibo
Overzicht
- 700 m² grond
Beschrijving
Zie ook het filmpje op YouTube : https://youtu.be/UpE2FoWoz10
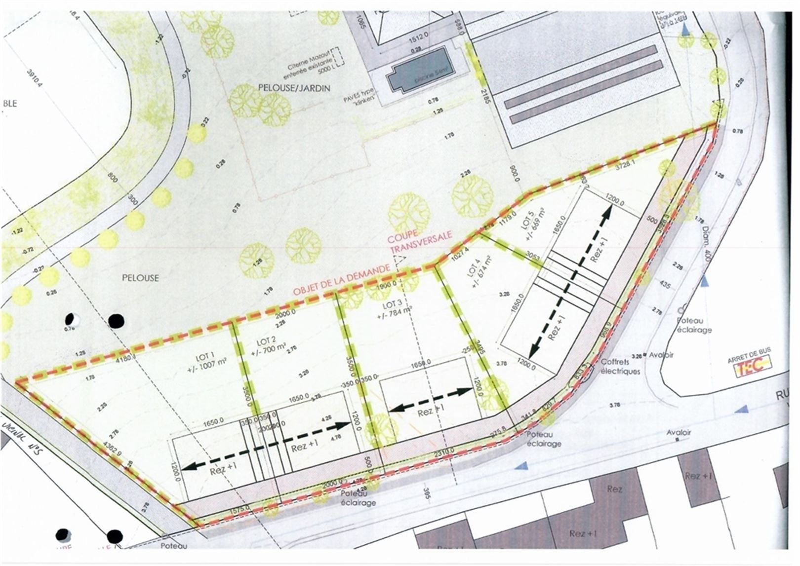
Lot 2 van een verkaveling in het prachtige Petit-Hallet. Dit dorp is ideaal gelegen, dichtbij de E40 richting Leuven en Brussel.
Lot 2 heeft een oppervlakte van 7a, voorzien voor open bebouwing, zie plan.
Energie
- E-peil: E0
- Beglazing: Onbekend
Op de kaart

Financieel
| Prijs | |
|---|---|
| Kadastraal inkomen (niet geïndexeerd) | € 0 |
| Kadastraal inkomen (geïndexeerd) | € 0 |
Berekening kosten
Je aankoopkosten? Die heb je snel berekend via de knop hieronder.
Bijkomende info
Gebouw
| Bouwcertificaat | Nee |
|---|
Perceel
| Overstromingsgevoelig | Geen |
|---|---|
| Voorkeurrecht | Nee |
| Totale oppervlakte (m²) | 700 |
Vergunning
| Vergunning | Vergunning beschikbaar |
|---|---|
| Verkavelingsvergunning | Vergunning beschikbaar |
Uitrusting
| Investeringspand | Nee |
|---|---|
| Rioolaansluiting | Nee |
| Gasaansluiting | Nee |
| Wateraansluiting | Nee |
| Elektriciteitsaansluiting | Nee |
| TV aansluiting | Nee |
| Internetaansluiting | Nee |
| Telefoonaansluiting | Nee |
Een pand van
Immo Tibo
Immo Tibo
Naast professionele begeleiding voor de verkoop en verhuur van uw onroerend goed zijn wij tevens gespecialiseerd in landelijk onroerend goed zoals hoeves, actieve landbouwbedrijven en landbouwgronden
PETIT-HALLET
Leer meer over vastgoed
Nieuw
01 March 2026
Wanneer heb ik een bouwvergunning of omgevingsvergunning nodig?
17 February 2026
Hoe breng ik een bod uit op een woning?
24 November 2025
Uitgezocht voor jouw gemeente: Hoeveel stijgt de waarde van je woning door een renovatie?
22 October 2025