Rue De La Fabrique a Huile 1, 4430 Ans
Prijs op aanvraag
Een pand van DGI
Jouw zoektocht
Overzicht
Beschrijving
--------
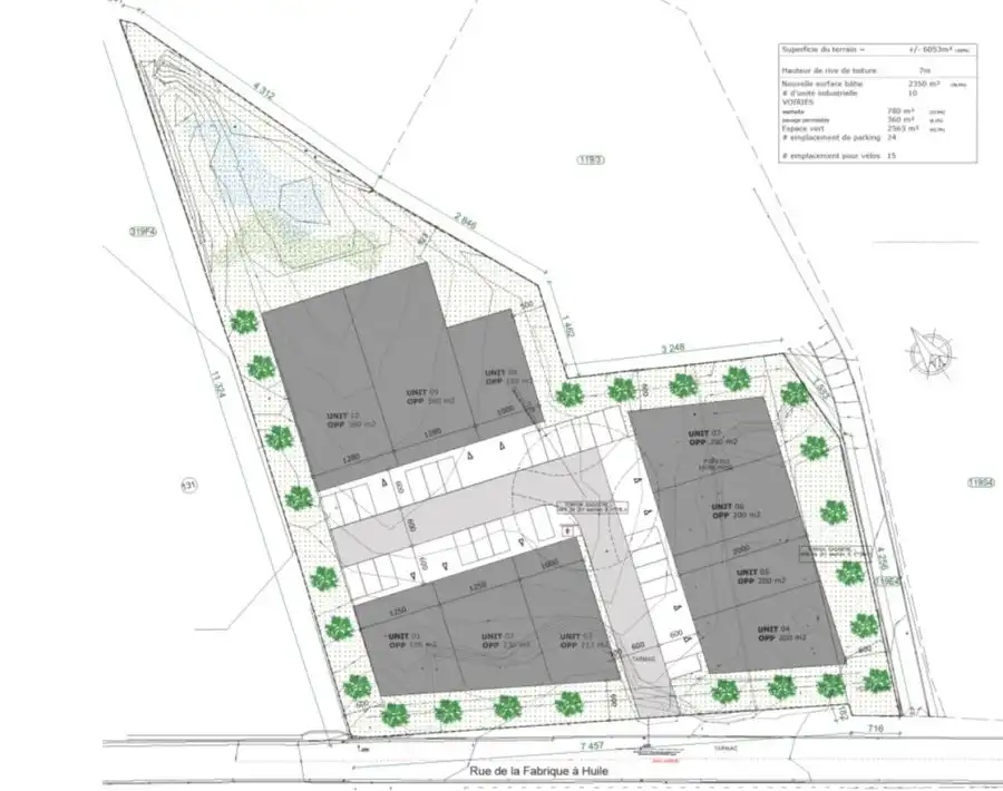
te koop - kantoor (1 unit, 192 m²) - magazijn (2 units, 1026 - 2082 m²) - parking (1 unit, 1 - 24 pl)
--------
Deze veelbelovende locatie in Ans, nabij Luik, maakt de ontwikkeling van tailor-made industriële magazijnen mogelijk, volledig afgestemd op de wensen van jouw onderneming. Je hebt hier de flexibiliteit om te kiezen voor één of twee ruime units, met de mogelijkheid tot integratie van kantoren of een toonzaal. De site is strategisch gelegen direct naast de E25 en nabij een knooppunt met de E42, E40 en E313, wat een uitstekende ontsluiting voor logistiek en distributie garandeert.
Hoogtepunten
- Nieuwbouwproject op maat met units vanaf 1.026 m² (tot 2.082 m²);
- Strategische ligging direct naast de E25 (Luik-Maastricht);
- Uitstekende ontsluiting naar E42, E40 en E313;
- Maatwerkoplossingen mogelijk voor kantoren en toonzaal;
- Flexibele ontwikkeling van laadkades, poorten en ramen;
- Ruime parkeermogelijkheden voor personeel en bezoekers (tot 24 plaatsen);
- Dicht bij Luik Airport (LGG), een van de grootste vrachthubs in Europa.
Locatie & Bereikbaarheid
Het pand is gelegen in Ans, in de directe omgeving van Luik. De site biedt een uitstekende ontsluiting door de directe nabijheid van de E25 en het knooppunt van de E42, E40 en E313, wat de positie als logistieke gateway versterkt.
- Fietsroutes: Toegankelijk via het lokale wegennetwerk;
- Auto Snelweg E25/E42 afrit: Vlakbij, geschatte afstand < 1 km (1 min);
- Goede aansluiting op het regionale wegennet;
- Vrachtwagens: Uitstekend bereikbaar, door de nabijheid van de autosnelwegen;
- Station Ans: 3,5 km (8 min rijden);
- Bushalte: Lijn 175;
- Luik Airport (LGG): 11 km;
- Brussels Airport (BRU): 90 km;
- Haven/waterweg: Maas/Albertkanaal;
- Containerterminal: Haven Genk (40 km).
Het Gebouw
Het project is een flexibele ontwikkeling gericht op nieuwe, moderne industriële units. De focus ligt op het aanbieden van een oplossing op maat die perfect aansluit bij de specifieke bedrijfsactiviteiten van de gebruiker.
Gemeenschappelijke Voorzieningen:
- 1 tot 24 parkeerplaatsen mogelijk, afhankelijk van de indeling en wensen.
Kantoorruimtes
Kantoorruimte is optioneel en bespreekbaar en kan geïntegreerd worden in de unit. De basis is 192 m² kantoor.
Magazijn
Ruime units voor magazijn, logistiek en productie, vanaf 1.026 m² (tot 2.082 m²).
Technische Specs:
- Vrije hoogte: Bespreekbaar (maatwerk);
- Laadkades: Bespreekbaar (maatwerk);
- Sectionaalpoorten: Bespreekbaar (maatwerk).
Retail/Showroom
Een toonzaal kan geïntegreerd worden indien gewenst (maatwerk).
Gebouw op Maat
Het betreft een nieuwbouwproject op maat waarbij de ontwikkeling van de unit volledig afgestemd wordt op de wensen en behoeften van de toekomstige gebruiker. Voorzieningen zoals kantoren, toonzaal, laadkades, poorten en ramen zijn bespreekbaar.
Interesse?
Dit nieuwbouwproject in Ans biedt je een unieke kans om een tailor-made industriële unit (vanaf 1.026 m²) te ontwikkelen op een strategische toplocatie nabij Luik en belangrijke snelwegen. De flexibiliteit in het ontwerp en de nabijheid van de LGG Vracht Hub maken dit de ideale basis voor jouw schaalbare logistieke of productieactiviteiten.
Neem contact op met DGI om de maatwerkoplossingen voor dit project te bespreken.
Energie
Op de kaart

Financieel
| Prijs |
|---|
Berekening kosten
Je aankoopkosten? Die heb je snel berekend via de knop hieronder.