Virtual tour
Karakteristiek wonen in "Le Baptiste"
€ 335.000
Een pand van Zwin Regio Vastgoed
Favoriet
Jouw zoektocht
Jouw scoretabel voor dit pand
Aan het laden...
Jouw geplande bezichtigingen
Aan het laden...
Overzicht
- 66 m² bewoonbaar
- 1 Slaapkamer(s)
- 1 Badkamer(s)
- 1 Toilet(ten)
Beschrijving
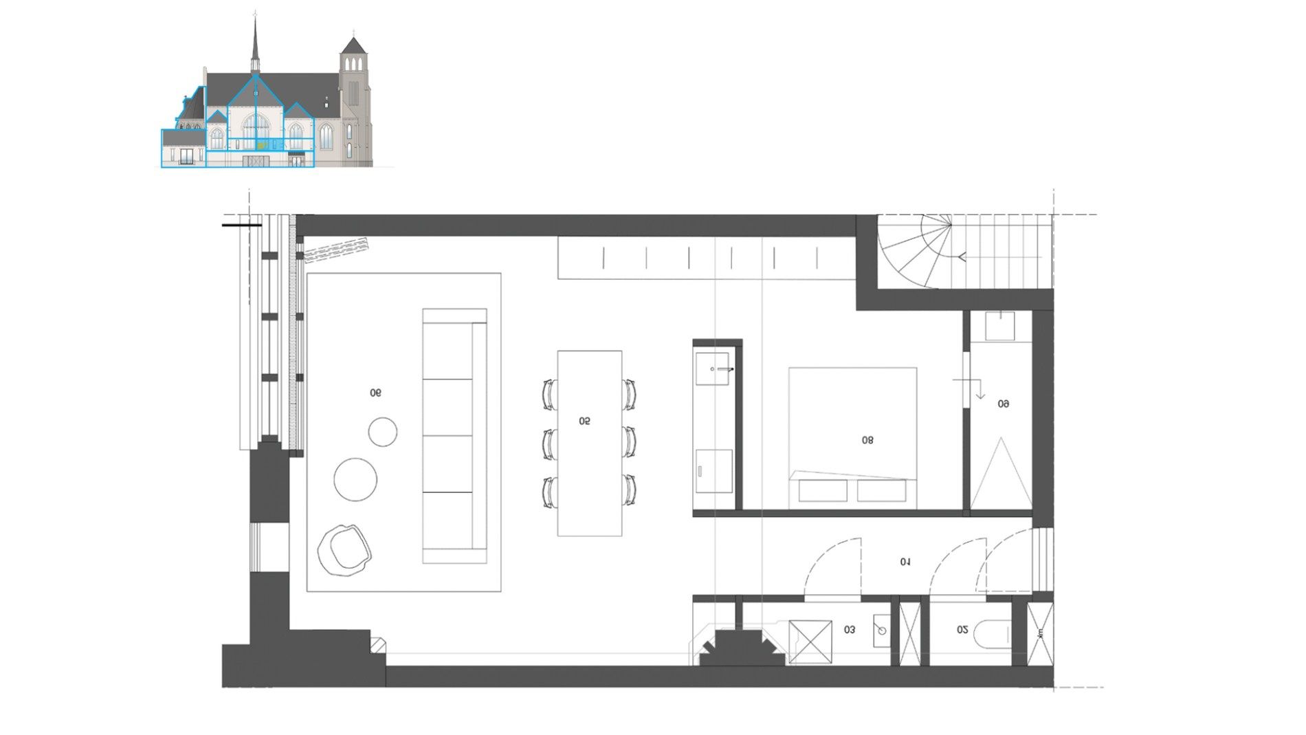
Uniek en karakteristiek wonen in de Johannes de Doperkerk midden in het centrum van Sluis. De huidige kerk is gesplitst in een gedeelte voor de nieuwe kapel met toren en 17 woningen. In deze woningen zijn de sfeer en het karakter van het kerkgebouw behouden.
Het comfort van nu is gecombineerd met de sfeer en het karakter van toen en maken dit appartement van 66 m² een bijzondere plek om te wonen! Deze woning is uitermate geschikt voor een klein huishouden, tweede verblijf of belegging.
Wij bieden u een prachtig één-kamer appartement aan met een royale woonkamer met open keuken, waar u profiteert van een overvloed aan natuurlijk licht dankzij de hoge kerkramen. De woning is voorzien van een schitterende parketvloer en verwarmd middels vloerverwarming.
De woonkamer met open keuken biedt voldoende ruimte voor een royale zithoek en een grote eettafel, waar men kan genieten van heerlijke maaltijden terwijl men tegelijkertijd de prachtige architectuur van de kerk bewondert.
De open keuken is uitgerust met diverse inbouwapparatuur, zoals een inductie kookplaat/fornuis, vaatwasser, koelkast en een enkele spoelbak.
De inkomhal biedt plaats aan het apart toilet en de berging met ruimte voor was/droogmachine en de cv-ketel.
Vanuit de woonkamer bereiken we de ruime slaapkamer met naastgelegen douchekamer met wastafel. Deze ruimte biedt voldoende plaats voor een groot tweepersoonsbed, evenals een grote kastenwand.
Dit appartement kan gebruik maken van de gezamenlijke fietsenberging en een containerruimte in de inpandige parkeergarage.
Eveneens hoort bij dit appartement een parkeerplaats in het gebouw.
Bijzonderheden:
- De woningen voldoen aan het vigerende bouwbesluit door aanbrenging van extra isolatie en
ramen in HR++ isolatieglas.
- De woningen hebben elk een eigen HR combiketel mechanische afzuiging in combinatie met
natuurlijke toevoer.
- Verwarming is individueel en gasgestookt middels vloerverwarming.
Heeft u vragen of interesse in dit appartement? Neem dan contact met ons op of maak een vrijblijvende afspraak
Het comfort van nu is gecombineerd met de sfeer en het karakter van toen en maken dit appartement van 66 m² een bijzondere plek om te wonen! Deze woning is uitermate geschikt voor een klein huishouden, tweede verblijf of belegging.
Wij bieden u een prachtig één-kamer appartement aan met een royale woonkamer met open keuken, waar u profiteert van een overvloed aan natuurlijk licht dankzij de hoge kerkramen. De woning is voorzien van een schitterende parketvloer en verwarmd middels vloerverwarming.
De woonkamer met open keuken biedt voldoende ruimte voor een royale zithoek en een grote eettafel, waar men kan genieten van heerlijke maaltijden terwijl men tegelijkertijd de prachtige architectuur van de kerk bewondert.
De open keuken is uitgerust met diverse inbouwapparatuur, zoals een inductie kookplaat/fornuis, vaatwasser, koelkast en een enkele spoelbak.
De inkomhal biedt plaats aan het apart toilet en de berging met ruimte voor was/droogmachine en de cv-ketel.
Vanuit de woonkamer bereiken we de ruime slaapkamer met naastgelegen douchekamer met wastafel. Deze ruimte biedt voldoende plaats voor een groot tweepersoonsbed, evenals een grote kastenwand.
Dit appartement kan gebruik maken van de gezamenlijke fietsenberging en een containerruimte in de inpandige parkeergarage.
Eveneens hoort bij dit appartement een parkeerplaats in het gebouw.
Bijzonderheden:
- De woningen voldoen aan het vigerende bouwbesluit door aanbrenging van extra isolatie en
ramen in HR++ isolatieglas.
- De woningen hebben elk een eigen HR combiketel mechanische afzuiging in combinatie met
natuurlijke toevoer.
- Verwarming is individueel en gasgestookt middels vloerverwarming.
Heeft u vragen of interesse in dit appartement? Neem dan contact met ons op of maak een vrijblijvende afspraak
Energie
- Beglazing: Hoog efficient dubbel
Op de kaart

Financieel
| Prijs |
|---|
Bijkomende info
Gebouw
| Bouwjaar | 2021 |
|---|---|
| Staat | Goed onderhouden |
| Is beschermd | Ja |
| Bewoonbaar (m²) | 66 |
| Verdieping | 1 |
| Gevelbreedte | 6.35 |
| Badkamers | 1 |
| Slaapkamers | 1 |
| Verdiepingen | 3 |
| Parkeerplaatsen | 1 |
| Toiletten | 1 |
Faciliteiten
| Materiaal ramenomlijstingen | Aluminium |
|---|---|
| Beglazing | Hoog efficient dubbel |
| Luiken | Nee |
| Primair verwarmingstype | Centrale verwarming |
| Primaire verwarming | Vloerverwarming |
| Warm water type | Geen verwarming |
Perceel
| Bebouwde oppervlakte (m²) | 66 |
|---|---|
| Oriëntatie tuin | Zuid |
Uitrusting
| Meerdere eigenaars | Nee |
|---|---|
| Geschikt als kangoeroewoning | Nee |
| Geschikt voor rolstoelgebruikers | Nee |
| Geschikt voor praktijk | Nee |
| Volledig onderkelderd | Nee |
| Parking | Ja |
| Garage | Nee |
| Thuiskantoor | Nee |
| Kelder | Nee |
| Zolder | Nee |
| Opslagruimte | Ja |
| Tuin | Nee |
| Terras | Nee |
| Lift | Ja |
| Rioolaansluiting | Ja |
| Gasaansluiting | Ja |
| Wateraansluiting | Ja |
| Elektriciteitsaansluiting | Ja |
| TV aansluiting | Ja |
| Internetaansluiting | Ja |
| Zonnepanelen | Nee |
| Zonneboiler | Nee |
| Alarm | Nee |
| Zwembad | Nee |
| Jacuzzi | Nee |
| Toonzaal | Nee |
| Ventilatie | Ja |
Appartementsblok
| Aantal verdiepingen | 3 |
|---|---|
| Lift | Ja |
| Intercom | Nee |
Een pand van
Zwin Regio Vastgoed
Vastgoed in België en Nederland
Zwin Regio Vastgoed is een gedegen en innovatief vastgoedkantoor dat zowel actief is in Nederland als in België. Met een bagage van reeds 20 jaar ervaring, staat ons professionele team u graag ter beschikking bij de aankoop, verhuur, verkoop en taxatie van uw eigendom. Bij elke case zorgt ZwinRegio vanzelfsprekend voor een persoonlijke begeleiding en opvolging wat resulteert in een optimaal resultaat!
Studio B11
Leer meer over vastgoed
23 March 2026
Op Spotto zoeken als een pro: 10 slimme tips
21 March 2026
Hoeveel kan ik lenen om een huis te kopen?
01 March 2026
Wanneer heb ik een bouwvergunning of omgevingsvergunning nodig?
17 February 2026