Nieuw Virtual tour
Ruime 3 slpk. duplex met waterzicht nabij centrum Brugge
€ 297.800
Een pand van Altro Vastgoed Brugge
Overzicht
- 109 m² bewoonbaar
- 114 m² grond
- 3 Slaapkamer(s)
- 1 Badkamer(s)
- 2 Toilet(ten)
- 1 Garage(s)
Beschrijving
ALTRO VASTGOED VERKOOPT
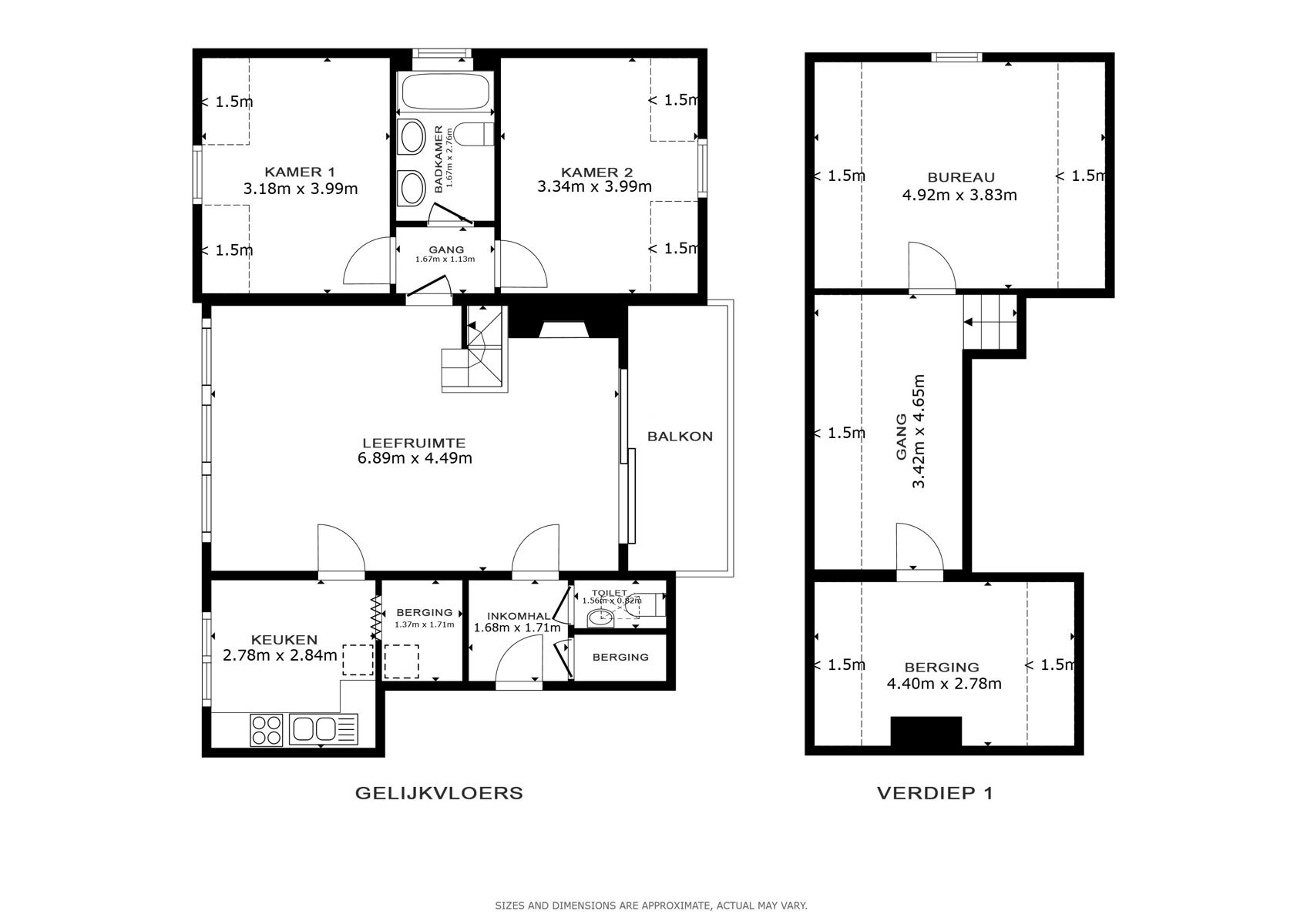
Ontdek dit ruime duplex-appartement met drie slaapkamers in Residentie Cypres, gelegen aan de Bevrijdingslaan 8 te Brugge. Op de 4de en hoogste verdieping geniet je hier van een prachtig uitzicht op het water dat de Vesten met de Steenkaai verbindt – een groene, rustige omgeving op wandelafstand van het centrum.
De inkomhal met afzonderlijk gastentoilet leidt naar een lichtrijke leefruimte met grote raampartijen en een rustgevend zicht op het groen en het water. De afzonderlijke keuken met berging biedt extra praktisch comfort. Verder op dit niveau: twee ruime slaapkamers en een badkamer met ligbad, dubbele wastafel en toilet.
De bovenverdieping is bereikbaar via een vaste trap vanuit de leefruimte en beschikt over een royale overloop met ingemaakte kasten, een derde slaapkamer en een grote berging.
Een ruime kelderberging is inbegrepen in de prijs; een garage kan optioneel (€ 30.000) worden aangekocht.
Een uitzonderlijk rustig gelegen duplex met veel ruimte, licht en een prachtig uitzicht — ideaal voor wie comfortabel wil wonen vlak bij het centrum én de expresweg.
Alle documenten, waaronder het EPC-attest en de elektrische keuring, zijn beschikbaar via de Altro Website.
Interesse? Contacteer vastgoedmakelaar Wim Gevaert via 0473 70 40 71 (7/7) of wim@altro-vastgoed.be
Ontdek dit ruime duplex-appartement met drie slaapkamers in Residentie Cypres, gelegen aan de Bevrijdingslaan 8 te Brugge. Op de 4de en hoogste verdieping geniet je hier van een prachtig uitzicht op het water dat de Vesten met de Steenkaai verbindt – een groene, rustige omgeving op wandelafstand van het centrum.
De inkomhal met afzonderlijk gastentoilet leidt naar een lichtrijke leefruimte met grote raampartijen en een rustgevend zicht op het groen en het water. De afzonderlijke keuken met berging biedt extra praktisch comfort. Verder op dit niveau: twee ruime slaapkamers en een badkamer met ligbad, dubbele wastafel en toilet.
De bovenverdieping is bereikbaar via een vaste trap vanuit de leefruimte en beschikt over een royale overloop met ingemaakte kasten, een derde slaapkamer en een grote berging.
Een ruime kelderberging is inbegrepen in de prijs; een garage kan optioneel (€ 30.000) worden aangekocht.
Een uitzonderlijk rustig gelegen duplex met veel ruimte, licht en een prachtig uitzicht — ideaal voor wie comfortabel wil wonen vlak bij het centrum én de expresweg.
Alle documenten, waaronder het EPC-attest en de elektrische keuring, zijn beschikbaar via de Altro Website.
Interesse? Contacteer vastgoedmakelaar Wim Gevaert via 0473 70 40 71 (7/7) of wim@altro-vastgoed.be
Ontdek dit ruime duplex-appartement met drie slaapkamers in Residentie Cypres, gelegen aan de Bevrijdingslaan 8 te Brugge. Op de 4de en hoogste verdieping geniet je hier van een prachtig uitzicht op het water dat de Vesten met de Steenkaai verbindt – een groene, rustige omgeving op wandelafstand van het centrum.
De inkomhal met afzonderlijk gastentoilet leidt naar een lichtrijke leefruimte met grote raampartijen en een rustgevend zicht op het groen en het water. De afzonderlijke keuken met berging biedt extra praktisch comfort. Verder op dit niveau: twee ruime slaapkamers en een badkamer met ligbad, dubbele wastafel en toilet.
De bovenverdieping is bereikbaar via een vaste trap vanuit de leefruimte en beschikt over een royale overloop met ingemaakte kasten, een derde slaapkamer en een grote berging.
Een ruime kelderberging is inbegrepen in de prijs; een garage kan optioneel (€ 30.000) worden aangekocht.
Een uitzonderlijk rustig gelegen duplex met veel ruimte, licht en een prachtig uitzicht — ideaal voor wie comfortabel wil wonen vlak bij het centrum én de expresweg.
Interesse?
De inkomhal met afzonderlijk gastentoilet leidt naar een lichtrijke leefruimte met grote raampartijen en een rustgevend zicht op het groen en het water. De afzonderlijke keuken met berging biedt extra praktisch comfort. Verder op dit niveau: twee ruime slaapkamers en een badkamer met ligbad, dubbele wastafel en toilet.
De bovenverdieping is bereikbaar via een vaste trap vanuit de leefruimte en beschikt over een royale overloop met ingemaakte kasten, een derde slaapkamer en een grote berging.
Een ruime kelderberging is inbegrepen in de prijs; een garage kan optioneel (€ 30.000) worden aangekocht.
Een uitzonderlijk rustig gelegen duplex met veel ruimte, licht en een prachtig uitzicht — ideaal voor wie comfortabel wil wonen vlak bij het centrum én de expresweg.
Interesse?
Energie
![]() |
- EPC Certificaat: 20251017-0003712549-RES-1
- Energieverbruik: 411 kWh/m²/jaar
Let op, de renovatieverplichting in Vlaanderen verplicht de koper om deze woning na aankoop te renoveren tot een betere energieprestatie. Lees er alles over in dit artikel
Extra budget nodig voor je renovatie?
De overheid helpt je dit pand energetisch te renoveren! Hieronder zie je het premiebedrag dat je mogelijks van de overheid krijgt.
Het huidige EPC-label is:

Op de kaart

Downloads
Financieel
| Prijs | |
|---|---|
| Kadastraal inkomen (niet geïndexeerd) | € 1.023 |
| Kadastraal inkomen (geïndexeerd) | € 1.023 |
Berekening kosten
Je aankoopkosten? Die heb je snel berekent via de knop hieronder.
Bijkomende info
Gebouw
| Bouwjaar | 1980 |
|---|---|
| Staat | Goed onderhouden |
| Bewoonbaar (m²) | 109 |
| Verdieping | 4 |
| Gevels | 2 |
| Gevelbreedte | 10 |
| Badkamers | 1 |
| Slaapkamers | 3 |
| Verdiepingen | 4 |
| Garages | 1 |
| Parkeerplaatsen | 20 |
| Toiletten | 2 |
Faciliteiten
| Type vloer | |
|---|---|
| Keuken uitrusting | Goed uitgerust |
| Elektrisch keuringsattest | Nee |
Perceel
| Overstromingsgevoelig | Geen |
|---|---|
| P-score | B |
| G-score | B |
| Voorkeurrecht | Nee |
| Totale oppervlakte (m²) | 114 |
| Bebouwde oppervlakte (m²) | 114 |
| Tuin oppervlakte (m²) | 0 |
| Oriëntatie terras | Zuidwest |
Vergunning
| Vergunning | Vergunning beschikbaar |
|---|---|
| Verkavelingsvergunning | Geen beschikbaar |
| Bouwovertreding | Geen |
| Bouwovertreding dagvaardiging | Geen |
Uitrusting
| Geschikt voor rolstoelgebruikers | Nee |
|---|---|
| Geschikt voor praktijk | Ja |
| Parking | Ja |
| Garage | Ja |
| Thuiskantoor | Ja |
| Kelder | Ja |
| Tuin | Nee |
| Terras | Ja |
| Lift | Ja |
| Gasaansluiting | Ja |
| Wateraansluiting | Ja |
| Elektriciteitsaansluiting | Ja |
| Telefoonaansluiting | Ja |
| Zwembad | Nee |
| Zwemvijver | Nee |
| Videofoon | Ja |
Een pand van
Altro Vastgoed Brugge
Wij verkopen uw vastgoed, anders én beter!
Bij Altro Vastgoed vinden we een persoonlijke aanpak erg belangrijk, hierbij stellen we de klant steeds centraal en staan we hem/haar bij in het complexe proces van verkopen, aankopen, verhuren en huren van vastgoed. We beschikken over een kwalitatief kantorennetwerk in Vlaanderen en Brussel met een sterke, lokale verankering.
7219989
Leer meer over vastgoed
24 November 2025
Uitgezocht voor jouw gemeente: Hoeveel stijgt de waarde van je woning door een renovatie?
22 October 2025
Hoeveel kan ik lenen om een huis te kopen?
11 June 2025
Huis kopen met bouwovertreding? Dit moet je weten
11 May 2025



