Ruime 3 slpk. duplex met waterzicht nabij centrum Brugge
€ 297.800
Een pand van Altro Vastgoed Brugge
Overzicht
- 109 m² bewoonbaar
- 114 m² grond
- 3 Slaapkamer(s)
- 1 Badkamer(s)
- 2 Toilet(ten)
- 1 Garage(s)
Beschrijving
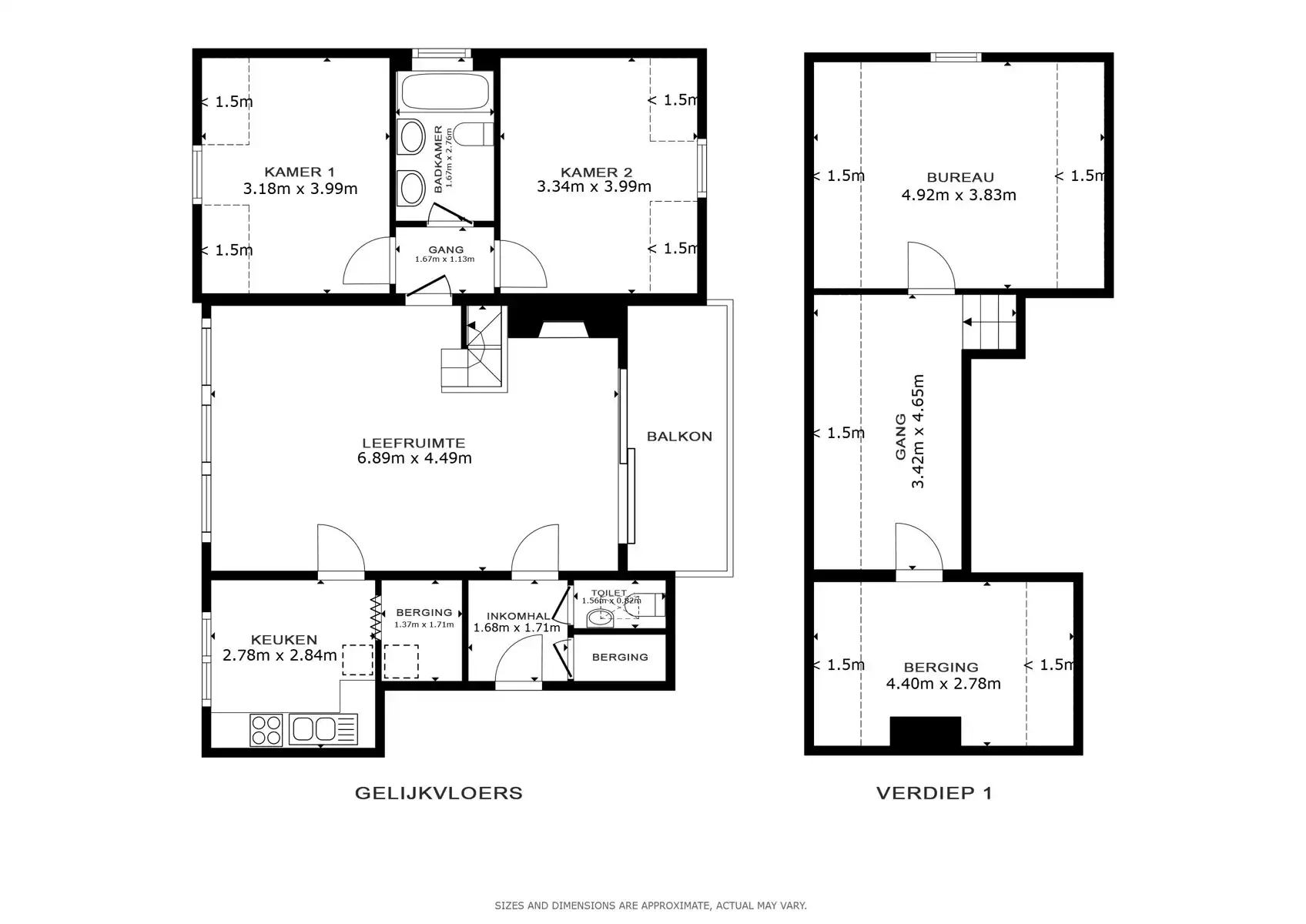
Ontdek dit ruime duplex-appartement met drie slaapkamers in Residentie Cypres, gelegen aan de Bevrijdingslaan 8 te Brugge. Op de 4de en hoogste verdieping geniet je hier van een prachtig uitzicht op het water dat de Vesten met de Steenkaai verbindt – een groene, rustige omgeving op wandelafstand van het centrum.
De inkomhal met afzonderlijk gastentoilet leidt naar een lichtrijke leefruimte met grote raampartijen en een rustgevend zicht op het groen en het water. De afzonderlijke keuken met berging biedt extra praktisch comfort. Verder op dit niveau bevinden zich twee ruime slaapkamers en een badkamer met ligbad, dubbele wastafel en toilet.
De bovenverdieping is bereikbaar via een vaste trap vanuit de leefruimte en beschikt over een royale overloop met ingemaakte kasten, een derde slaapkamer en een grote berging.
Een ruime kelderberging is inbegrepen in de prijs; een garage kan optioneel aangekocht worden (€ 30.000).
Extra troef: in 2026 werden isolatiewerken uitgevoerd aan het dak van het gebouw, wat bijdraagt aan een betere energieprestatie en extra wooncomfort.
Een uitzonderlijk rustig gelegen duplex met veel ruimte, licht en een prachtig uitzicht — ideaal voor wie comfortabel wil wonen vlak bij het centrum én de expresweg.
Alle documenten, waaronder het EPC-attest en de elektrische keuring, zijn beschikbaar via de Altro-website.
Interesse? Contacteer vastgoedmakelaar Wim Gevaert via 0473 70 40 71 (7/7) of wim@altro-vastgoed.be
Ontdek dit ruime duplex-appartement met drie slaapkamers in Residentie Cypres, gelegen aan de Bevrijdingslaan 8 te Brugge. Op de 4de en hoogste verdieping geniet je hier van een prachtig uitzicht op het water dat de Vesten met de Steenkaai verbindt – een groene, rustige omgeving op wandelafstand van het centrum.
De inkomhal met afzonderlijk gastentoilet leidt naar een lichtrijke leefruimte met grote raampartijen en een rustgevend zicht op het groen en het water. De afzonderlijke keuken met berging biedt extra praktisch comfort. Verder op dit niveau bevinden zich twee ruime slaapkamers en een badkamer met ligbad, dubbele wastafel en toilet.
De bovenverdieping is bereikbaar via een vaste trap vanuit de leefruimte en beschikt over een royale overloop met ingemaakte kasten, een derde slaapkamer en een grote berging.
Een ruime kelderberging is inbegrepen in de prijs; een garage kan optioneel aangekocht worden (€ 30.000).
Extra troef: in 2026 werden isolatiewerken uitgevoerd aan het dak van het gebouw, wat bijdraagt aan een betere energieprestatie en extra wooncomfort.
Een uitzonderlijk rustig gelegen duplex met veel ruimte, licht en een prachtig uitzicht — ideaal voor wie comfortabel wil wonen vlak bij het centrum én de expresweg.
Alle documenten, waaronder het EPC-attest en de elektrische keuring, zijn beschikbaar via de Altro-website.
Interesse?
Energie
![]() |
- EPC Certificaat: Certificaat-20260221-0003712549-RES-2
- Energieverbruik: 270 kWh/m²/jaar
Op de kaart

Downloads
Financieel
| Prijs | |
|---|---|
| Kadastraal inkomen (niet geïndexeerd) | € 1.023 |
| Kadastraal inkomen (geïndexeerd) | € 1.023 |
Berekening kosten
Je aankoopkosten? Die heb je snel berekend via de knop hieronder.
Bijkomende info
Gebouw
| Bouwjaar | 1980 |
|---|---|
| Staat | Goed onderhouden |
| Bewoonbaar (m²) | 109 |
| Verdieping | 4 |
| Gevels | 2 |
| Gevelbreedte | 10 |
| Badkamers | 1 |
| Slaapkamers | 3 |
| Verdiepingen | 4 |
| Garages | 1 |
| Parkeerplaatsen | 20 |
| Toiletten | 2 |
Faciliteiten
| Type vloer | |
|---|---|
| Keuken uitrusting | Goed uitgerust |
| Elektrisch keuringsattest | Nee |
Perceel
| Overstromingsgevoelig | Geen |
|---|---|
| P-score | B |
| G-score | B |
| Voorkeurrecht | Nee |
| Totale oppervlakte (m²) | 114 |
| Bebouwde oppervlakte (m²) | 114 |
| Tuin oppervlakte (m²) | 0 |
| Oriëntatie terras | Zuidwest |
Vergunning
| Vergunning | Vergunning beschikbaar |
|---|---|
| Verkavelingsvergunning | Geen beschikbaar |
| Bouwovertreding | Geen |
| Bouwovertreding dagvaardiging | Geen |
Uitrusting
| Geschikt voor rolstoelgebruikers | Nee |
|---|---|
| Geschikt voor praktijk | Ja |
| Parking | Ja |
| Garage | Ja |
| Thuiskantoor | Ja |
| Kelder | Ja |
| Tuin | Nee |
| Terras | Ja |
| Lift | Ja |
| Gasaansluiting | Ja |
| Wateraansluiting | Ja |
| Elektriciteitsaansluiting | Ja |
| Telefoonaansluiting | Ja |
| Zwembad | Nee |
| Zwemvijver | Nee |
| Videofoon | Ja |
