Nieuw Virtual tour
Instapklaar wonen op toplocatie nabij centrum en station
Een pand van Altro Vastgoed Brugge
Overzicht
- 75 m² bewoonbaar
- 80 m² grond
- 1 Slaapkamer(s)
- 1 Badkamer(s)
- 1 Toilet(ten)
Overstromingsgevaar gebouw
Overstromingsgevaar perceel
Beschrijving
ALTRO VASTGOED VERKOOPT
Op zoek naar een zorgeloos stadsappartement waar comfort, licht en locatie samenkomen?
Gelegen op een absolute toplocatie nabij het station van Brugge, met vlotte verbinding naar de Expresweg, E40 en E403, en op wandelafstand van het historisch centrum, combineert dit appartement het gemak van de stad met rust en bereikbaarheid. Winkels, horeca en openbaar vervoer liggen letterlijk om de hoek.
Het appartement werd gebouwd in 2017, bevindt zich op de GLV verdieping en geniet van een westgerichte oriëntatie. Dankzij het energiezuinige A-label woon je hier bovendien met maximale efficiëntie en minimale zorgen.
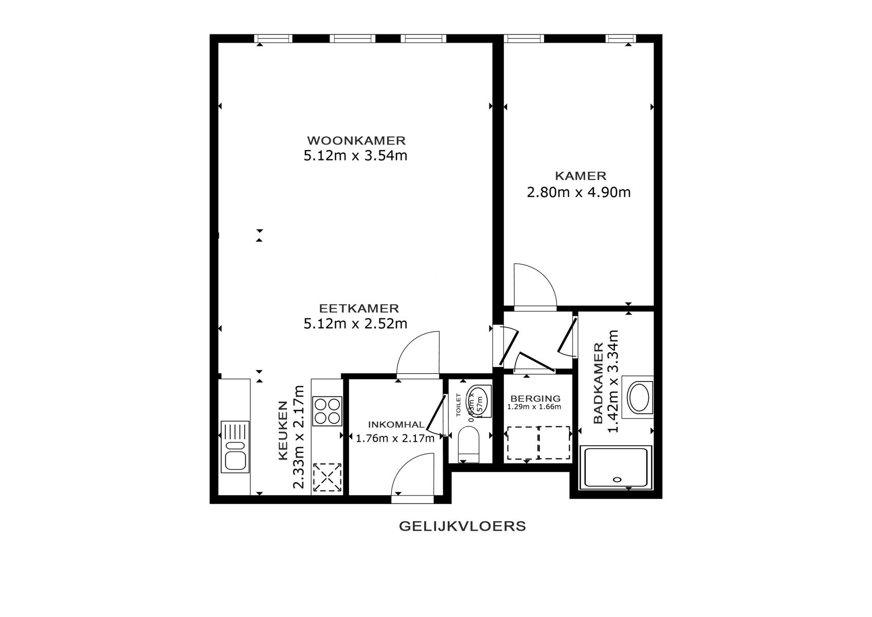
Binnen word je verwelkomd in een ruime inkomhal met veel bergruimte en een afzonderlijk gastentoilet. De lichtrijke leefruimte met grote raampartijen sluit naadloos aan op de open keuken, die is ingericht met veel kastruimte. Verder beschikt het appartement over een grote aparte berging met aansluiting voor wasmachine en droogkast.
De ruime slaapkamer geeft uit op het gunstig georiënteerde terras — een fijne plek om te vertragen na een drukke dag. De badkamer is praktisch en stijlvol ingericht met wastafel en douche.
Dit appartement voelt meteen juist aan voor wie een instapklare thuis zoekt op een strategische locatie, maar ook voor wie een duurzame investering wil in een stad waar vraag en kwaliteit hand in hand gaan.
Interesse? Contacteer vastgoedmakelaar Wim Gevaert via 0473 70 40 71 (7/7) of wim@altro-vastgoed.be
Op zoek naar een zorgeloos stadsappartement waar comfort, licht en locatie samenkomen?
Gelegen op een absolute toplocatie nabij het station van Brugge, met vlotte verbinding naar de Expresweg, E40 en E403, en op wandelafstand van het historisch centrum, combineert dit appartement het gemak van de stad met rust en bereikbaarheid. Winkels, horeca en openbaar vervoer liggen letterlijk om de hoek.
Het appartement werd gebouwd in 2017, bevindt zich op de GLV verdieping en geniet van een westgerichte oriëntatie. Dankzij het energiezuinige A-label woon je hier bovendien met maximale efficiëntie en minimale zorgen.
Binnen word je verwelkomd in een ruime inkomhal met veel bergruimte en een afzonderlijk gastentoilet. De lichtrijke leefruimte met grote raampartijen sluit naadloos aan op de open keuken, die is ingericht met veel kastruimte. Verder beschikt het appartement over een grote aparte berging met aansluiting voor wasmachine en droogkast.
De ruime slaapkamer geeft uit op het gunstig georiënteerde terras — een fijne plek om te vertragen na een drukke dag. De badkamer is praktisch en stijlvol ingericht met wastafel en douche.
Dit appartement voelt meteen juist aan voor wie een instapklare thuis zoekt op een strategische locatie, maar ook voor wie een duurzame investering wil in een stad waar vraag en kwaliteit hand in hand gaan.
Interesse? Contacteer vastgoedmakelaar Wim Gevaert via 0473 70 40 71 (7/7) of wim@altro-vastgoed.be
Op zoek naar een zorgeloos stadsappartement waar comfort, licht en locatie samenkomen?
Dan nodigt dit recente appartement aan de Frank Van Ackerpromenade 10 bus 1 je uit om verder te kijken.
Gelegen op een absolute toplocatie nabij het station van Brugge, met vlotte verbinding naar de Expresweg, E40 en E403, en op wandelafstand van het historisch centrum, combineert dit appartement het gemak van de stad met rust en bereikbaarheid. Winkels, horeca en openbaar vervoer liggen letterlijk om de hoek.
Het appartement werd gebouwd in 2017, bevindt zich op de GLV verdieping en geniet van een westgerichte oriëntatie, wat zorgt voor aangenaam licht en een open gevoel doorheen de dag. Dankzij het energiezuinige A-label woon je hier bovendien met maximale efficiëntie en minimale zorgen.
Binnen word je verwelkomd in een ruime inkomhal met veel bergruimte en een afzonderlijk gastentoilet. De lichtrijke leefruimte met grote raampartijen sluit naadloos aan op de open keuken, die is ingericht met veel kastruimte. Verder beschikt het appartement over een grote aparte berging met aansluiting voor wasmachine en droogkast.
De ruime slaapkamer geeft uit op het gunstig georiënteerde terras — een fijne plek om te vertragen na een drukke dag. De badkamer is praktisch en stijlvol ingericht met wastafel en douche.
Dit appartement voelt meteen juist aan voor wie een instapklare thuis zoekt op een strategische locatie, maar ook voor wie een duurzame investering wil in een stad waar vraag en kwaliteit hand in hand gaan.
Interesse?
Dan nodigt dit recente appartement aan de Frank Van Ackerpromenade 10 bus 1 je uit om verder te kijken.
Gelegen op een absolute toplocatie nabij het station van Brugge, met vlotte verbinding naar de Expresweg, E40 en E403, en op wandelafstand van het historisch centrum, combineert dit appartement het gemak van de stad met rust en bereikbaarheid. Winkels, horeca en openbaar vervoer liggen letterlijk om de hoek.
Het appartement werd gebouwd in 2017, bevindt zich op de GLV verdieping en geniet van een westgerichte oriëntatie, wat zorgt voor aangenaam licht en een open gevoel doorheen de dag. Dankzij het energiezuinige A-label woon je hier bovendien met maximale efficiëntie en minimale zorgen.
Binnen word je verwelkomd in een ruime inkomhal met veel bergruimte en een afzonderlijk gastentoilet. De lichtrijke leefruimte met grote raampartijen sluit naadloos aan op de open keuken, die is ingericht met veel kastruimte. Verder beschikt het appartement over een grote aparte berging met aansluiting voor wasmachine en droogkast.
De ruime slaapkamer geeft uit op het gunstig georiënteerde terras — een fijne plek om te vertragen na een drukke dag. De badkamer is praktisch en stijlvol ingericht met wastafel en douche.
Dit appartement voelt meteen juist aan voor wie een instapklare thuis zoekt op een strategische locatie, maar ook voor wie een duurzame investering wil in een stad waar vraag en kwaliteit hand in hand gaan.
Interesse?
Energie
![]() |
- EPC Certificaat: 31005-G-2013228/EP1278/A0001/D01/SD005
Op de kaart

Downloads
- BruggeFrankVanAckerpromenade10Bus1_we7cin792bf0cy2f2k7g6ubyb.jpg (jpg)
- 480.bodemattest.pdf (pdf)
- 480.watertoets.pdf (pdf)
- EK.pdf (pdf)
- plan kadaster.pdf (pdf)
- Reglement van interne orde - AV 23.11.2021.pdf (pdf)
- verkavelingsakte 21-04-2015.pdf (pdf)
- Verbeterende BA 23-06-2015.pdf (pdf)
- BOD TOT AANKOOP (document Altro Vastgoed) definitief.docx (docx)
- Energieprestatiecertificaat A202.pdf (pdf)
Financieel
| Prijs | |
|---|---|
| Kadastraal inkomen (niet geïndexeerd) | € 603 |
| Kadastraal inkomen (geïndexeerd) | € 603 |
Berekening kosten
Je aankoopkosten? Die heb je snel berekent via de knop hieronder.
Bijkomende info
Gebouw
| Bouwjaar | 2017 |
|---|---|
| Staat | Goed onderhouden |
| Bewoonbaar (m²) | 75 |
| Verdieping | 0 |
| Gevels | 2 |
| Badkamers | 1 |
| Slaapkamers | 1 |
| Verdiepingen | 6 |
| Garages | 0 |
| Parkeerplaatsen | 0 |
| Toiletten | 1 |
Faciliteiten
| Type vloer | |
|---|---|
| Keuken uitrusting | Goed uitgerust |
| Elektrisch keuringsattest | Ja |
Perceel
| Overstromingsgevoelig | Geen |
|---|---|
| P-score | D |
| G-score | D |
| Voorkeurrecht | Nee |
| Totale oppervlakte (m²) | 80 |
| Bebouwde oppervlakte (m²) | 80 |
| Tuin oppervlakte (m²) | 0 |
| Oriëntatie terras | West |
Vergunning
| Vergunning | Vergunning beschikbaar |
|---|---|
| Verkavelingsvergunning | Vergunning beschikbaar |
| Bouwovertreding | Geen |
| Bouwovertreding dagvaardiging | Geen |
Uitrusting
| Geschikt voor rolstoelgebruikers | Nee |
|---|---|
| Geschikt voor praktijk | Ja |
| Parking | Nee |
| Garage | Nee |
| Tuin | Nee |
| Terras | Ja |
| Lift | Ja |
| Gasaansluiting | Ja |
| Wateraansluiting | Ja |
| Elektriciteitsaansluiting | Ja |
| Telefoonaansluiting | Ja |
| Zwembad | Nee |
| Zwemvijver | Nee |
| Videofoon | Ja |
Een pand van
Altro Vastgoed Brugge
Wij verkopen uw vastgoed, anders én beter!
Bij Altro Vastgoed vinden we een persoonlijke aanpak erg belangrijk, hierbij stellen we de klant steeds centraal en staan we hem/haar bij in het complexe proces van verkopen, aankopen, verhuren en huren van vastgoed. We beschikken over een kwalitatief kantorennetwerk in Vlaanderen en Brussel met een sterke, lokale verankering.
Leer meer over vastgoed

Nieuw
24 November 2025
Uitgezocht voor jouw gemeente: Hoeveel stijgt de waarde van je woning door een renovatie?
22 October 2025
Hoeveel kan ik lenen om een huis te kopen?
11 June 2025
Huis kopen met bouwovertreding? Dit moet je weten
11 May 2025
