Beschikbaar vanaf 1 mei 2026
Nieuw
Hoekwoning met uitweg
€ 250.000
Een pand van De Smet & Poupeye
Overzicht
- 64 m² bewoonbaar
- 49 m² grond
- 2 Slaapkamer(s)
- 1 Toilet(ten)
Beschrijving
De woning is gelegen op enkele stappen van 't station en 't Zand en heeft 2 slaapkamers en een praktische koer met uitweg voor fietsen. Ideaal voor wie graag in de Brugse binnenstad wil wonen, centraal bij de winkels, het openbaar vervoer en de Brugse vesten rond de stad. (wche, gvg, gvv, gmo, gvkr)
www.desmetpoupeyebrugge.be
Voor meer info of een bezoek, contacteer ons 050 47 00 00 of kom langs op ons kantoor te Hoefijzerlaan 1 ('t Zand) Brugge.
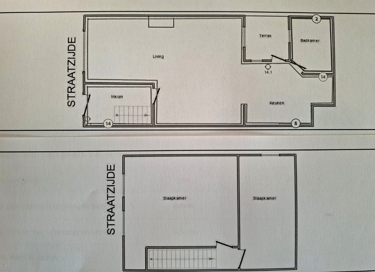
- inkom met bergkasten onder de trap
- living (tegels) met gaskachel
- halfopen ingerichte keuken : dampkap, gaskookplaat, oven, frigo en aansluiting voor was/vaatwasmachine
- badkamer : lavabo, ligbad-douche en toilet
* koer : 5m² met uitweg voor fietsen
1e verdieping
- 2 slaapkamers (vinyl) : 1 pers. en 2 pers.
2e verdieping
- zoldertje (geen trap) : nieuw dak sedert 2013, voorzien van onderdak (geen isolatie)
* ramen vernieuwd in 2013
www.desmetpoupeyebrugge.be
Voor meer info of een bezoek, contacteer ons 050 47 00 00 of kom langs op ons kantoor te Hoefijzerlaan 1 ('t Zand) Brugge.
- inkom met bergkasten onder de trap
- living (tegels) met gaskachel
- halfopen ingerichte keuken : dampkap, gaskookplaat, oven, frigo en aansluiting voor was/vaatwasmachine
- badkamer : lavabo, ligbad-douche en toilet
* koer : 5m² met uitweg voor fietsen
1e verdieping
- 2 slaapkamers (vinyl) : 1 pers. en 2 pers.
2e verdieping
- zoldertje (geen trap) : nieuw dak sedert 2013, voorzien van onderdak (geen isolatie)
* ramen vernieuwd in 2013
Energie
![]() |
- EPC Certificaat: 20251018-0003712809-RES-1
- Beglazing: Standaard dubbel
Let op, de renovatieverplichting in Vlaanderen verplicht de koper om deze woning na aankoop te renoveren tot een betere energieprestatie. Lees er alles over in dit artikel
Extra budget nodig voor je renovatie?
De overheid helpt je dit pand energetisch te renoveren! Hieronder zie je het premiebedrag dat je mogelijks van de overheid krijgt.
Het huidige EPC-label is:

Op de kaart

Financieel
| Prijs | |
|---|---|
| Kadastraal inkomen (niet geïndexeerd) | € 299 |
Berekening kosten
Je aankoopkosten? Die heb je snel berekent via de knop hieronder.
Bijkomende info
Gebouw
| Is beschermd | Nee |
|---|---|
| Bewoonbaar (m²) | 64 |
| Slaapkamers | 2 |
| Toiletten | 1 |
Ruimtes
| Terras | 5 m² |
|---|
Faciliteiten
| Keuken uitrusting | Goed uitgerust |
|---|---|
| Materiaal ramenomlijstingen | Hout |
| Beglazing | Standaard dubbel |
| Luiken | Nee |
| Primaire verwarmingsbron | EXTRA_INFO.OUTFITTING.VALUE.STOVE |
| Primaire verwarming | Alleenstaande kachel |
| Warm water type | Geen verwarming |
Perceel
| Totale oppervlakte (m²) | 49 |
|---|---|
| Oppervlakte terras (m²) | 5 |
Uitrusting
| Meerdere eigenaars | Nee |
|---|---|
| Geschikt als kangoeroewoning | Nee |
| Geschikt voor rolstoelgebruikers | Nee |
| Geschikt voor praktijk | Nee |
| Volledig onderkelderd | Nee |
| Parking | Nee |
| Garage | Nee |
| Thuiskantoor | Nee |
| Kelder | Nee |
| Zolder | Nee |
| Opslagruimte | Nee |
| Tuin | Nee |
| Terras | Ja |
| Lift | Nee |
| Rioolaansluiting | Nee |
| Gasaansluiting | Nee |
| Wateraansluiting | Nee |
| Elektriciteitsaansluiting | Nee |
| TV aansluiting | Nee |
| Internetaansluiting | Nee |
| Zonnepanelen | Nee |
| Zonneboiler | Nee |
| Alarm | Nee |
| Zwembad | Nee |
| Jacuzzi | Nee |
| Toonzaal | Nee |
| Ventilatie | Nee |
Een pand van
De Smet & Poupeye
De Smet & Poupeye Brugge
Al 3 generaties lang
uw vertrouwde Brugse vastgoedmakelaar.
De Smet & Poupeye is niet zomaar een vastgoedkantoor tussen vele anderen.
Al 3 generaties lang verkopen en verhuren wij vastgoed in Brugge en omstreken. Samen met ons gedreven team bundelen we onze passie en expertise om u een kwaliteitsvolle dienstverlening te bieden van (ver)koop over (ver)huur tot beheer van uw vastgoed….
Bel vandaag nog met de zaakvoerder Patrick De Smet voor een waardebepaling van uw eigendom. 050 47 00 00 of kom langs naar ons kantoor te Brugge, Hoefijzerlaan 1.
TK/2025/1015
Leer meer over vastgoed
24 November 2025
Uitgezocht voor jouw gemeente: Hoeveel stijgt de waarde van je woning door een renovatie?
22 October 2025
Hoeveel kan ik lenen om een huis te kopen?
11 June 2025
Huis kopen met bouwovertreding? Dit moet je weten
11 May 2025



