Nieuw
Zeer ruime te renoveren burgerwoning in Brugge!
€ 448.000
Een pand van Altro Vastgoed Brugge
Overzicht
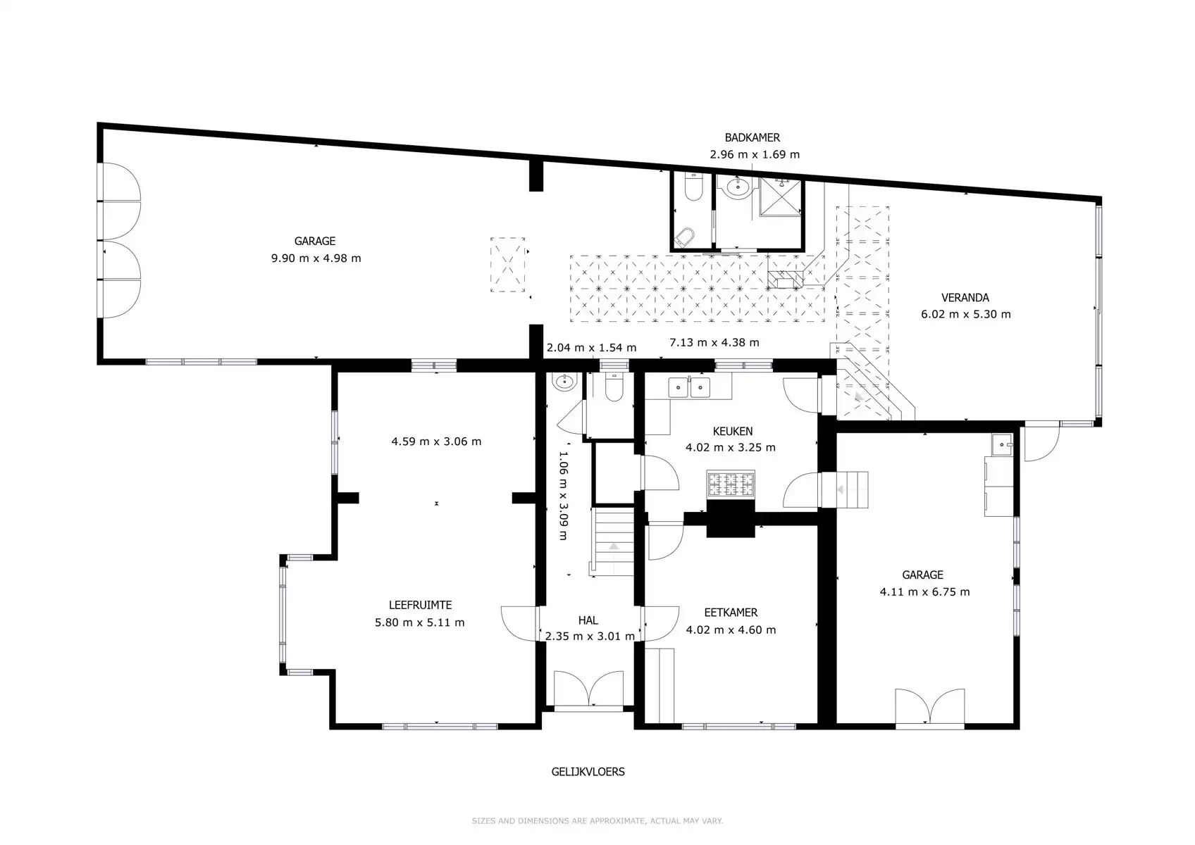
- 364 m² bewoonbaar
- 450 m² grond
- 4 Slaapkamer(s)
- 1 Badkamer(s)
- 3 Toilet(ten)
- 1 Tuin
- 2 Garage(s)
Beschrijving
ALTRO VASTGOED VERKOOPT
Ontdek deze statige en bijzonder ruime burgerwoning aan de rand van Brugge. Een unieke woning vol karakter en authentieke charme. De klassieke houten vloeren, hoge plafonds, een ingebouwde speksteenkachel en klassieke houten trap ademen geschiedenis en geven het pand een warme uitstraling vol geschiedenis.
Met vier volwaardige slaapkamers, een aparte bureauruimte, twee badkamers en een royale leefruimte biedt deze woning alle ruimte voor wie op zoek is naar comfort en veelzijdigheid. Daarnaast beschikt de woning een praktische tuin.
Met twee grote inpandige garages, waarvan voor één de benaming magazijn beter past, beschikt deze eigendom over parkeerplaats voor meerdere wagens of extra stockage mogelijkheden, alsook in de kelder of op de ruime zolder.
Hoewel de woning renovatie vereist (EPC-label F), vormt dit een unieke kans om deze karaktervolle villa naar eigen smaak en moderne standaarden te transformeren. De elektriciteit is niet conform en het asbestattest wijst op de aanwezigheid van asbest — maar met de juiste ingrepen bouwt u hier aan een toekomstgerichte thuis met een ziel en veel karakter.
Alle relevante documenten, waaronder het elektriciteitsverslag, asbestattest en EPC, zijn te downloaden via de website van Altro Vastgoed.
Bent u op zoek naar een ruime, charmante woning met potentieel op een bereikbare locatie in Brugge? Dan is dit het ideale renovatieproject voor u.
Contacteer vastgoedmakelaar Wim Gevaert, 0473 70 40 71 (7/7), wim@altro-vastgoed.be, en plan een bezoek.
Ontdek deze statige en bijzonder ruime burgerwoning aan de rand van Brugge. Een unieke woning vol karakter en authentieke charme. De klassieke houten vloeren, hoge plafonds, een ingebouwde speksteenkachel en klassieke houten trap ademen geschiedenis en geven het pand een warme uitstraling vol geschiedenis.
Met vier volwaardige slaapkamers, een aparte bureauruimte, twee badkamers en een royale leefruimte biedt deze woning alle ruimte voor wie op zoek is naar comfort en veelzijdigheid. Daarnaast beschikt de woning een praktische tuin.
Met twee grote inpandige garages, waarvan voor één de benaming magazijn beter past, beschikt deze eigendom over parkeerplaats voor meerdere wagens of extra stockage mogelijkheden, alsook in de kelder of op de ruime zolder.
Hoewel de woning renovatie vereist (EPC-label F), vormt dit een unieke kans om deze karaktervolle villa naar eigen smaak en moderne standaarden te transformeren. De elektriciteit is niet conform en het asbestattest wijst op de aanwezigheid van asbest — maar met de juiste ingrepen bouwt u hier aan een toekomstgerichte thuis met een ziel en veel karakter.
Alle relevante documenten, waaronder het elektriciteitsverslag, asbestattest en EPC, zijn te downloaden via de website van Altro Vastgoed.
Bent u op zoek naar een ruime, charmante woning met potentieel op een bereikbare locatie in Brugge? Dan is dit het ideale renovatieproject voor u.
Contacteer vastgoedmakelaar Wim Gevaert, 0473 70 40 71 (7/7), wim@altro-vastgoed.be, en plan een bezoek.
Ontdek deze statige en bijzonder ruime burgerwoning aan de rand van Brugge. Een unieke woning vol karakter en authentieke charme. De klassieke houten vloeren, hoge plafonds, een ingebouwde speksteenkachel en klassieke houten trap ademen geschiedenis en geven het pand een warme uitstraling vol geschiedenis.
Met vier volwaardige slaapkamers, een aparte bureauruimte, twee badkamers en een royale leefruimte biedt deze woning alle ruimte voor wie op zoek is naar comfort en veelzijdigheid. Daarnaast beschikt de woning een praktische tuin.
Met twee grote inpandige garages, waarvan voor één de benaming magazijn beter past, beschikt deze eigendom over parkeerplaats voor meerdere wagens of extra stockage mogelijkheden, alsook in de kelder of op de ruime zolder.
Hoewel de woning renovatie vereist (EPC-label F), vormt dit een unieke kans om deze karaktervolle villa naar eigen smaak en moderne standaarden te transformeren. De elektriciteit is niet conform en het asbestattest wijst op de aanwezigheid van asbest — maar met de juiste ingrepen bouwt u hier aan een toekomstgerichte thuis met een ziel en veel karakter.
Alle relevante documenten, waaronder het elektriciteitsverslag, asbestattest en EPC, zijn te downloaden via de website van Altro Vastgoed.
Bent u op zoek naar een ruime, charmante woning met potentieel op een bereikbare locatie in Brugge? Dan is dit het ideale renovatieproject voor u.
Met vier volwaardige slaapkamers, een aparte bureauruimte, twee badkamers en een royale leefruimte biedt deze woning alle ruimte voor wie op zoek is naar comfort en veelzijdigheid. Daarnaast beschikt de woning een praktische tuin.
Met twee grote inpandige garages, waarvan voor één de benaming magazijn beter past, beschikt deze eigendom over parkeerplaats voor meerdere wagens of extra stockage mogelijkheden, alsook in de kelder of op de ruime zolder.
Hoewel de woning renovatie vereist (EPC-label F), vormt dit een unieke kans om deze karaktervolle villa naar eigen smaak en moderne standaarden te transformeren. De elektriciteit is niet conform en het asbestattest wijst op de aanwezigheid van asbest — maar met de juiste ingrepen bouwt u hier aan een toekomstgerichte thuis met een ziel en veel karakter.
Alle relevante documenten, waaronder het elektriciteitsverslag, asbestattest en EPC, zijn te downloaden via de website van Altro Vastgoed.
Bent u op zoek naar een ruime, charmante woning met potentieel op een bereikbare locatie in Brugge? Dan is dit het ideale renovatieproject voor u.
Energie
![]() |
- EPC Certificaat: 20250409-0003573714-RES-1
- Energieverbruik: 936 kWh/m²/jaar
Let op, de renovatieverplichting in Vlaanderen verplicht de koper om deze woning na aankoop te renoveren tot een betere energieprestatie. Lees er alles over in dit artikel
Extra budget nodig voor je renovatie?
De overheid helpt je dit pand energetisch te renoveren! Hieronder zie je het premiebedrag dat je mogelijks van de overheid krijgt.
Het huidige EPC-label is:

Op de kaart

Financieel
| Prijs | |
|---|---|
| Kadastraal inkomen (niet geïndexeerd) | € 1.492 |
| Kadastraal inkomen (geïndexeerd) | € 1.492 |
Berekening kosten
Je aankoopkosten? Die heb je snel berekend via de knop hieronder.
Bijkomende info
Gebouw
| Bouwjaar | 1952 |
|---|---|
| Staat | Te renoveren |
| Bewoonbaar (m²) | 364 |
| Gevels | 3 |
| Gevelbreedte | 18 |
| Badkamers | 1 |
| Slaapkamers | 4 |
| Verdiepingen | 2 |
| Garages | 2 |
| Parkeerplaatsen | 3 |
| Doucheruimtes | 2 |
| Toiletten | 3 |
Faciliteiten
| Type vloer | |
|---|---|
| Keuken uitrusting | Standaard |
| Elektrisch keuringsattest | Nee |
Perceel
| Overstromingsgevoelig | Geen |
|---|---|
| P-score | A |
| G-score | A |
| Voorkeurrecht | Nee |
| Totale oppervlakte (m²) | 450 |
| Bebouwde oppervlakte (m²) | 240 |
| Tuin oppervlakte (m²) | 450 |
| Oriëntatie terras | Oost |
Vergunning
| Vergunning | Vergunning beschikbaar |
|---|---|
| Verkavelingsvergunning | Geen beschikbaar |
| Bouwovertreding | Geen |
| Bouwovertreding dagvaardiging | Geen |
Uitrusting
| Geschikt voor rolstoelgebruikers | Nee |
|---|---|
| Parking | Ja |
| Garage | Ja |
| Thuiskantoor | Ja |
| Tuin | Ja |
| Terras | Ja |
| Lift | Nee |
| Wateraansluiting | Ja |
| Elektriciteitsaansluiting | Ja |
| TV aansluiting | Ja |
| Zwembad | Nee |
| Zwemvijver | Nee |
| Regenwaterput | Ja |
Een pand van
Altro Vastgoed Brugge
Wij verkopen uw vastgoed, anders én beter!
Bij Altro Vastgoed vinden we een persoonlijke aanpak erg belangrijk, hierbij stellen we de klant steeds centraal en staan we hem/haar bij in het complexe proces van verkopen, aankopen, verhuren en huren van vastgoed. We beschikken over een kwalitatief kantorennetwerk in Vlaanderen en Brussel met een sterke, lokale verankering.
7307469
Leer meer over vastgoed
24 November 2025
Uitgezocht voor jouw gemeente: Hoeveel stijgt de waarde van je woning door een renovatie?
22 October 2025
Hoeveel kan ik lenen om een huis te kopen?
11 June 2025
Huis kopen met bouwovertreding? Dit moet je weten
11 May 2025



