Instapklaar duplexappartement zonder syndic
€ 224.800
Patersonstraat 92/3 - 8020 Oostkamp
Een pand van Altro Vastgoed Brugge
Jouw zoektocht
Overzicht
- 99 m² bewoonbaar
- 99 m² grond
- 1 Slaapkamer(s)
- 1 Badkamer(s)
- 1 Toilet(ten)
- 1 Living(s)
Beschrijving
ALTRO VASTGOED VERKOOPT
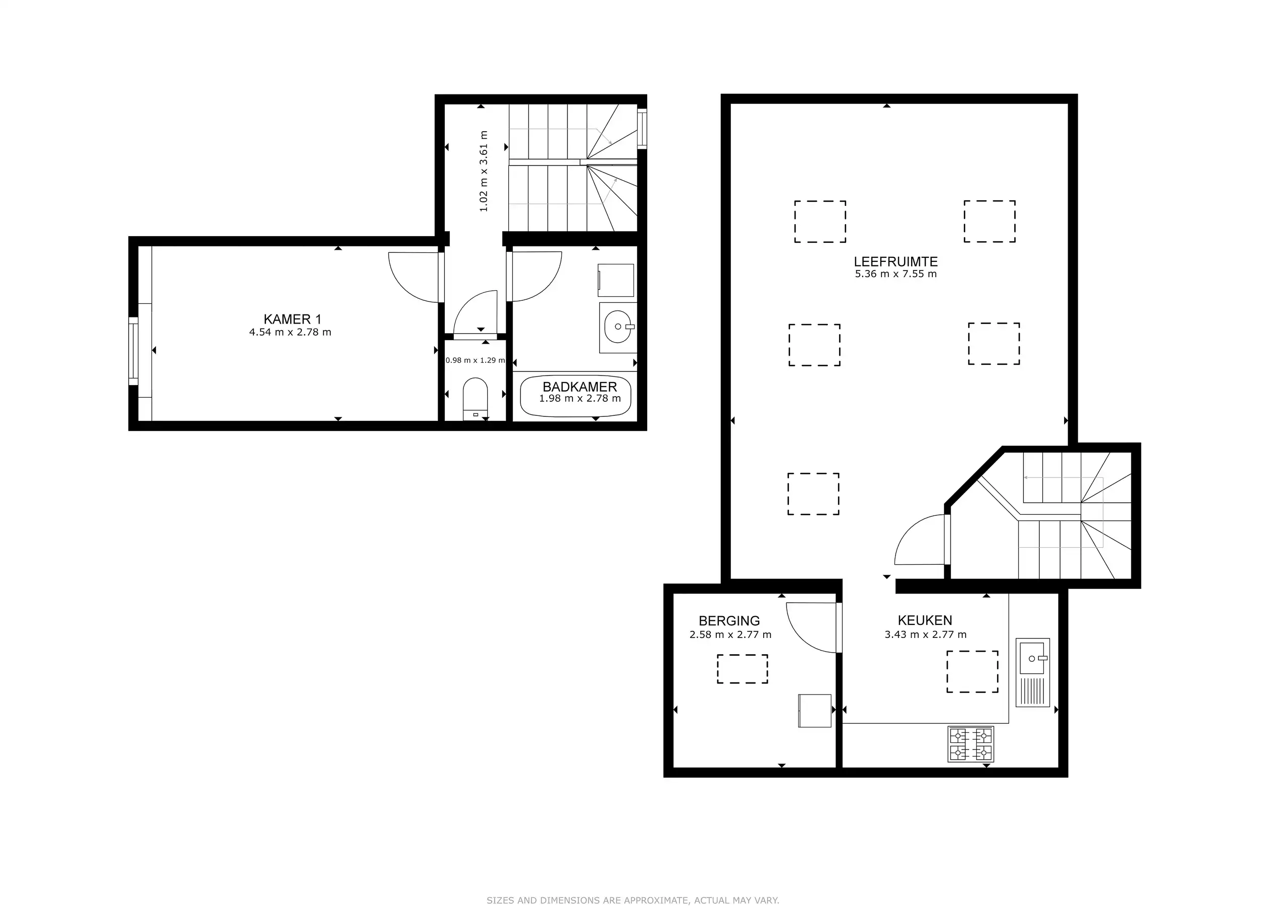
In een rustige en vlot bereikbare omgeving te Oostkamp (Moerbrugge) bevindt zich dit instapklare duplexappartement zonder syndic, waar u geniet van maximale privacy en geen gemeenschappelijke kosten.
Via uw private inkom op het gelijkvloers komt u binnen in de inkomhal met praktische berging en trap naar de verdieping. Op de eerste verdieping vindt u een ruime slaapkamer, een onderhouden badkamer met ligbad en wastafel, evenals een apart toilet.
De tweede verdieping vormt het hart van het appartement: een opvallend ruime en lichtrijke leefruimte (ca. 40 m²) met aansluitend een recent vernieuwde keuken en een extra berging voor technieken en stockage. De open indeling en de dakstructuur zorgen hier voor een aangenaam ruimtegevoel.
De voorbije jaren werd het appartement grondig aangepakt: elektriciteit werd vernieuwd en is conform , er werd een nieuwe condensatieketel geplaatst, de keuken werd vernieuwd (Dovy) en alle veluxramen (8 stuks) werden vervangen met aandacht voor comfort en isolatie.
Met een EPC-label C (239 kWh/m² jaar) biedt dit appartement een degelijke energieprestatie .
De ligging combineert rust met een uitstekende bereikbaarheid: station, winkels, scholen en de E40 bevinden zich op korte afstand.
Een ideale opportuniteit voor starters of wie zorgeloos wil wonen zonder syndickosten.
Interesse? Contacteer vastgoedmakelaar Wim Gevaert via 0473 70 40 71 (7/7) of wim@altro-vastgoed.be
In een rustige en vlot bereikbare omgeving te Oostkamp (Moerbrugge) bevindt zich dit instapklare duplexappartement zonder syndic, waar u geniet van maximale privacy en geen gemeenschappelijke kosten.
Via uw private inkom op het gelijkvloers komt u binnen in de inkomhal met praktische berging en trap naar de verdieping. Op de eerste verdieping vindt u een ruime slaapkamer, een onderhouden badkamer met ligbad en wastafel, evenals een apart toilet.
De tweede verdieping vormt het hart van het appartement: een opvallend ruime en lichtrijke leefruimte (ca. 40 m²) met aansluitend een recent vernieuwde keuken en een extra berging voor technieken en stockage. De open indeling en de dakstructuur zorgen hier voor een aangenaam ruimtegevoel.
De voorbije jaren werd het appartement grondig aangepakt: elektriciteit werd vernieuwd en is conform , er werd een nieuwe condensatieketel geplaatst, de keuken werd vernieuwd (Dovy) en alle veluxramen (8 stuks) werden vervangen met aandacht voor comfort en isolatie.
Met een EPC-label C (239 kWh/m² jaar) biedt dit appartement een degelijke energieprestatie .
De ligging combineert rust met een uitstekende bereikbaarheid: station, winkels, scholen en de E40 bevinden zich op korte afstand.
Een ideale opportuniteit voor starters of wie zorgeloos wil wonen zonder syndickosten.
Interesse?
Energie
![]() |
- EPC Certificaat: 20201204-000603229-RES-2
- Energieverbruik: 239 kWh/m²/jaar
- Verwarming: Gas
- Beglazing: Standaard dubbel
Downloads
- OVAM (pdf)
- Stedenbouw (pdf)
- Elektrische keuring (pdf)
- EPC (pdf)
- BOD TOT AANKOOP (document Altro Vastgoed) definitief.docx (docx)
- Plan.jpg (jpg)
- Maatregelenregister uittreksel (pdf)
- Risicokaart waterbeheerder (pdf)
- ActaMaps (pdf)
- Watertoets (pdf)
- RVV (pdf)
- Kadastraal plan (pdf)
Financieel
| Prijs | |
|---|---|
| Kadastraal inkomen (niet geïndexeerd) | € 391 |
Berekening kosten
Je aankoopkosten? Die heb je snel berekend via de knop hieronder.
Bijkomende info
Gebouw
| Bouwjaar | 1918 |
|---|---|
| Renovatie jaar | 2020 |
| Staat | Goed onderhouden |
| Is beschermd | Nee |
| Bewoonbaar (m²) | 99 |
| Verdieping | 0 |
| Gevelbreedte | 10 |
| Zolder | 0 |
| Kelder | 0 |
| Badkamers | 1 |
| Slaapkamers | 1 |
| Verdiepingen | 0 |
| Garages | 0 |
| Keukens | 1 |
| Leefruimtes | 1 |
| Kantoorruimtes | 0 |
| Parkeerplaatsen | 0 |
| Opslagruimtes | 1 |
| Toiletten | 1 |
Ruimtes
| Slaapkamer | 12.5 m² |
|---|---|
| Leefruimte | 40 m² |
| Opbergruimte | 7 m² |
| Keuken | 9.5 m² |
Faciliteiten
| Beglazing | Standaard dubbel |
|---|---|
| Luiken | Nee |
| Brandstof primaire verwarming | Gas |
| Primaire verwarming | Radiatoren |
| Brandstof type | Geen |
| Elektrisch keuringsattest | Ja |
| Septische tank | Nee |
Perceel
| Breedte (m) | 10 |
|---|---|
| Overstromingsgevoelig | Geen |
| P-score | A |
| G-score | A |
| Voorkeurrecht | Ja |
| Totale oppervlakte (m²) | 99 |
| Administrative bestuursmaatregelen | Nee |
Vergunning
| Vergunning | Vergunning beschikbaar |
|---|---|
| Verkavelingsvergunning | Geen beschikbaar |
Uitrusting
| Parking | Nee |
|---|---|
| Garage | Nee |
| Kelder | Nee |
| Zolder | Nee |
| Opslagruimte | Ja |
| Tuin | Nee |
| Terras | Nee |
| Lift | Nee |
| Rioolaansluiting | Ja |
| Gasaansluiting | Ja |
| Wateraansluiting | Ja |
| Elektriciteitsaansluiting | Ja |
| Zonnepanelen | Nee |
| Zonneboiler | Nee |
| Thuisbatterij | Nee |
| Alarm | Nee |
| Zwembad | Nee |
| Sauna | Nee |
| Jacuzzi | Nee |
| Videofoon | Nee |
| Domotica | Nee |
| Regenwaterput | Nee |
| Ventilatie | Nee |
Appartementsblok
| Lift | Nee |
|---|---|
| Ondergrondse parking | Nee |
| Intercom | Nee |
