Instapklare open bebouwing met 4 slaapkamers
€ 548.800
Mostvijver 8 - 8020 Ruddervoorde-Oostkamp
Een pand van Altro Vastgoed Brugge
Jouw zoektocht
Overzicht
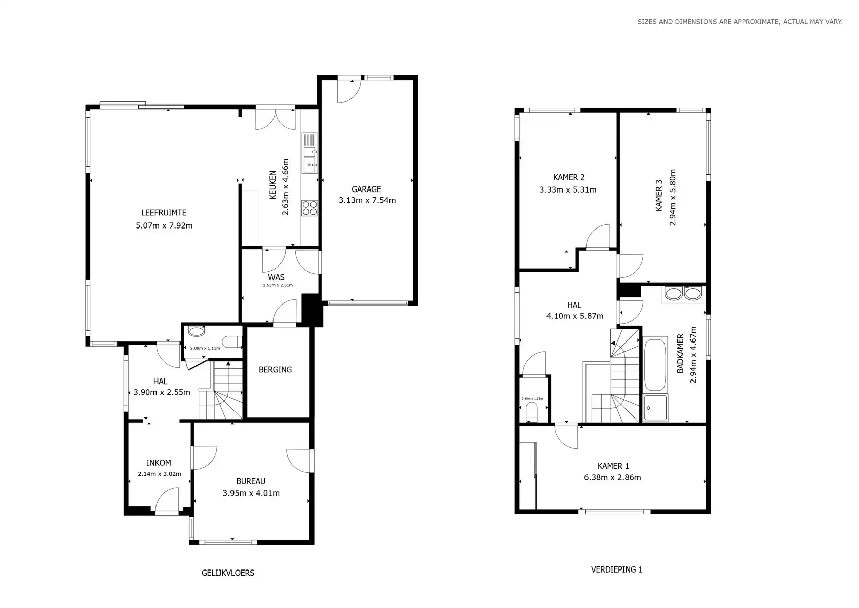
- 251 m² bewoonbaar
- 450 m² grond
- 4 Slaapkamer(s)
- 1 Badkamer(s)
- 2 Toilet(ten)
- 1 Living(s)
- 1 Tuin
- 1 Garage(s)
Beschrijving
ALTRO VASTGOED VERKOOPT
Bent u op zoek naar een recente woning waar ruimte, comfort en energiezuinig wonen samenkomen? Dan kan deze open bebouwing in Ruddervoorde (Oostkamp) perfect aansluiten bij wat u zoekt. Gebouwd in 2012 en gelegen op een perceel van 450 m², biedt deze woning een bewoonbare oppervlakte van maar liefst 251 m² en een doordachte indeling die meteen aanvoelt als thuiskomen.
Via de inkomhal bereikt u de lichtrijke leefruimte met een aangename combinatie van zit- en eetplaats, die naadloos aansluit op de keuken en uitkijkt op de tuin en het terras. Op het gelijkvloers bevindt zich bovendien een extra kamer die vandaag dienstdoet als bureau, maar perfect kan ingericht worden als slaapkamer, ideaal voor wie gelijkvloers wil wonen of een zelfstandige activiteit overweegt.
Op de verdieping vindt u drie volwaardige slaapkamers en een ruime badkamer met dubbele wastafel, ligbad en douche. De woning is uitgerust met rolluiken, conforme elektriciteit en een gunstig EPC-label B (132 kWh/m²), wat zorgt voor een comfortabele en energiezuinige woonervaring.
De tuin met terras en de aanwezigheid van een garage maken het geheel compleet.
Bent u op zoek naar een woning waar u zonder zorgen kan intrekken en die tegelijk voldoende ruimte biedt voor uw gezin of plannen?
Contacteer vastgoedmakelaar Wim Gevaert via 0473 70 40 71 (7/7) of wim@altro-vastgoed.be
Bent u op zoek naar een recente woning waar ruimte, comfort en energiezuinig wonen samenkomen? Dan kan deze open bebouwing in Ruddervoorde (Oostkamp) perfect aansluiten bij wat u zoekt. Gebouwd in 2012 en gelegen op een perceel van 450 m², biedt deze woning een bewoonbare oppervlakte van maar liefst 251 m² en een doordachte indeling die meteen aanvoelt als thuiskomen.
Via de inkomhal bereikt u de lichtrijke leefruimte met een aangename combinatie van zit- en eetplaats, die naadloos aansluit op de keuken en uitkijkt op de tuin en het terras. Op het gelijkvloers bevindt zich bovendien een extra kamer die vandaag dienstdoet als bureau, maar perfect kan ingericht worden als slaapkamer, ideaal voor wie gelijkvloers wil wonen of een zelfstandige activiteit overweegt.
Op de verdieping vindt u drie volwaardige slaapkamers en een ruime badkamer met dubbele wastafel, ligbad en douche. De woning is uitgerust met rolluiken, conforme elektriciteit en een gunstig EPC-label B (132 kWh/m²), wat zorgt voor een comfortabele en energiezuinige woonervaring.
De tuin met terras en de aanwezigheid van een garage maken het geheel compleet.
Bent u op zoek naar een woning waar u zonder zorgen kan intrekken en die tegelijk voldoende ruimte biedt voor uw gezin of plannen?
Energie
![]() |
- EPC Certificaat: 20250529-0003613284-RES-1
- Energieverbruik: 132 kWh/m²/jaar
- Verwarming: Gas
- Beglazing: Standaard dubbel
Downloads
- OVAM (pdf)
- Stedenbouw (pdf)
- Kadastraal plan (pdf)
- EPC (pdf)
- Elektrische keuring (pdf)
- Plannetjes.jpg (jpg)
- BOD TOT AANKOOP (document Altro Vastgoed) definitief.docx (docx)
- RVV (pdf)
Financieel
| Prijs | |
|---|---|
| Kadastraal inkomen (niet geïndexeerd) | € 738 |
| Kadastraal inkomen (geïndexeerd) | € 738 |
Berekening kosten
Je aankoopkosten? Die heb je snel berekend via de knop hieronder.
Bijkomende info
Gebouw
| Bouwjaar | 2012 |
|---|---|
| Staat | Goed onderhouden |
| Is beschermd | Nee |
| Bewoonbaar (m²) | 251 |
| Verdieping | 0 |
| Gevels | 4 |
| Gevelbreedte | 7 |
| Zolder | 1 |
| Kelder | 0 |
| Badkamers | 1 |
| Slaapkamers | 4 |
| Verdiepingen | 3 |
| Garages | 1 |
| Keukens | 1 |
| Leefruimtes | 1 |
| Kantoorruimtes | 1 |
| Parkeerplaatsen | 1 |
| Opslagruimtes | 1 |
| Toiletten | 2 |
Ruimtes
| Slaapkamer | 18 m² |
|---|---|
| Slaapkamer | 18 m² |
| Slaapkamer | 16 m² |
| Slaapkamer | 16 m² |
| Leefruimte | 40 m² |
| Keuken | 12 m² |
| Opbergruimte | 6 m² |
| Tuin | 450 m² |
| Terras | 20 m² |
Faciliteiten
| Type vloer | |
|---|---|
| Keuken uitrusting | Goed uitgerust |
| Beglazing | Standaard dubbel |
| Luiken | Ja |
| Primair verwarmingstype | Decentrale verwarming |
| Brandstof primaire verwarming | Gas |
| Brandstof type | Geen |
| Elektrisch keuringsattest | Ja |
| Septische tank | Ja |
Perceel
| Diepte (m) | 30 |
|---|---|
| Breedte (m) | 14 |
| Overstromingsgevoelig | Geen |
| P-score | A |
| G-score | A |
| Voorkeurrecht | Nee |
| Totale oppervlakte (m²) | 450 |
| Tuin oppervlakte (m²) | 450 |
| Oppervlakte terras (m²) | 20 |
| Oriëntatie tuin | Noordwest |
| Oriëntatie terras | Noordwest |
Vergunning
| Vergunning | Vergunning beschikbaar |
|---|---|
| Verkavelingsvergunning | Vergunning beschikbaar |
| Type gebied | Landelijk |
Uitrusting
| Parking | Ja |
|---|---|
| Garage | Ja |
| Kelder | Nee |
| Zolder | Ja |
| Opslagruimte | Ja |
| Tuin | Ja |
| Terras | Ja |
| Lift | Nee |
| Rioolaansluiting | Ja |
| Gasaansluiting | Ja |
| Wateraansluiting | Ja |
| Elektriciteitsaansluiting | Ja |
| Zonnepanelen | Ja |
| Zonneboiler | Nee |
| Thuisbatterij | Nee |
| Alarm | Nee |
| Zwembad | Nee |
| Sauna | Nee |
| Jacuzzi | Nee |
| Videofoon | Nee |
| Domotica | Nee |
| Regenwaterput | Nee |
| Ventilatie | Ja |
