Nieuw Virtual tour
De ideale gezinswoning in Sint-Michiels!
Een pand van Altro Vastgoed Brugge
Overzicht
- 204 m² bewoonbaar
- 368 m² grond
- 3 Slaapkamer(s)
- 1 Badkamer(s)
- 2 Toilet(ten)
- 1 Tuin
- 1 Garage(s)
Beschrijving
Altro Vastgoed verkoopt
Ben je op zoek naar een instapklare gezinswoning in één van de meest gegeerde woonwijken rondBrugge? Dan zal Blijdenburg 6 in Sint-Michiels precies zijn wat je in gedachten hebt.
Deze halfopen bebouwing uit 2005 ligt discreet verscholen in een doodlopende straat, op een zuid-georiënteerd perceel van 368 m². Hier woon je rustig, met weinig verkeer, en tegelijk vlak bij alle voorzieningen zoals station, snelwegen, expresweg, bibliotheek, enz...
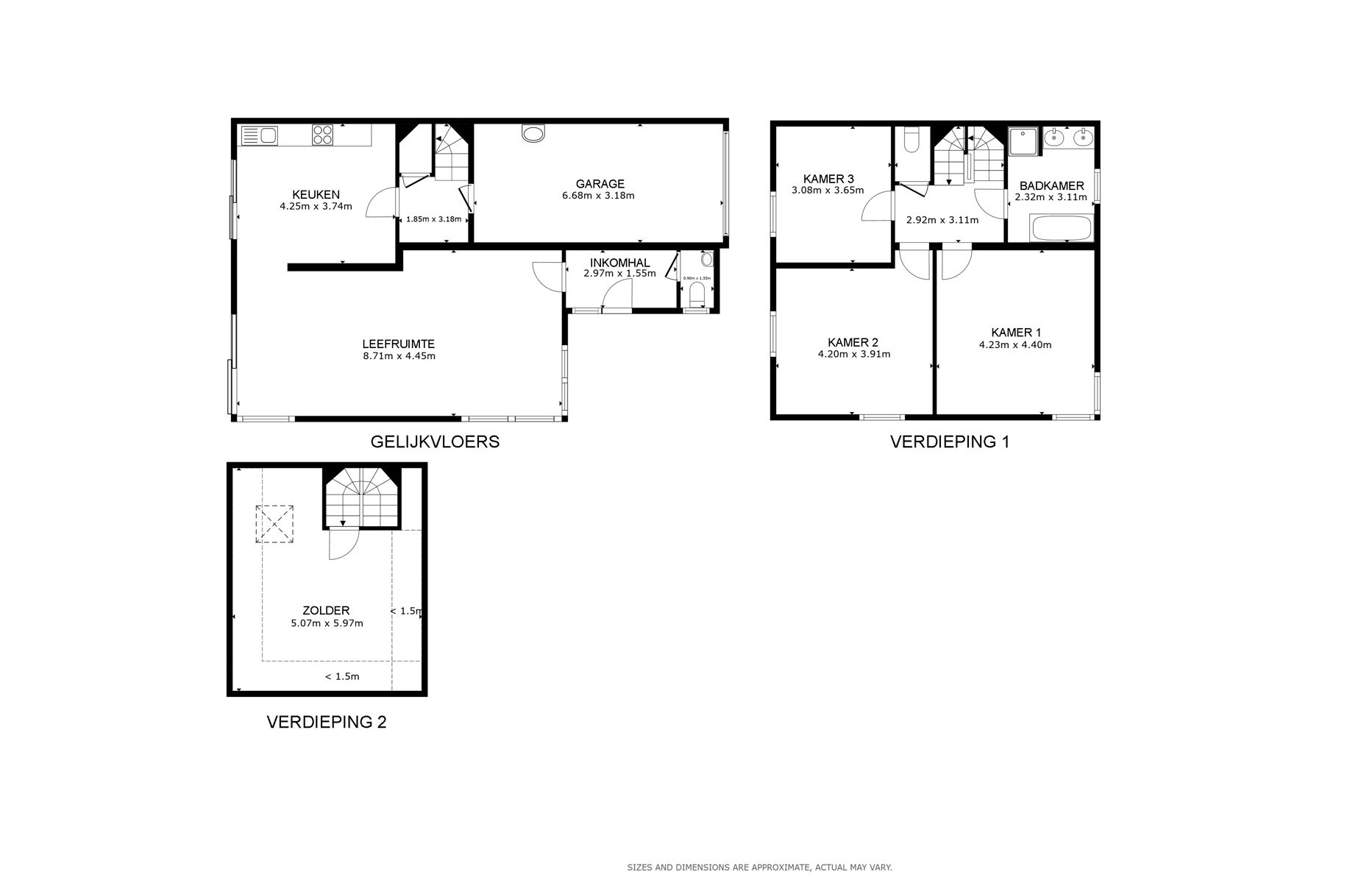
Op het gelijkvloers kom je binnen via de inkomhal met gastentoilet. De ruime, lichtrijke leefruimte biedt een mooi zicht op de zuidgerichte tuin – een fijne plek om te ontspannen of gasten te ontvangen. De halfopen keuken sluit hier naadloos op aan en staat in verbinding met de trappenhal en de grote inpandige garage: praktisch in het dagelijks gebruik, zeker bij aankopen of met kinderen.
Op de eerste verdieping vind je drie volwaardige slaapkamers, een afzonderlijk toilet op de nachthal en een ruime badkamer met ligbad, douche en dubbele wastafel. Via een vaste trap bereik je de afgewerkte zolder, perfect als vierde slaapkamer, bureau of hobbyruimte – net wat jouw gezin nodig heeft.
De woning is tijdloos, goed onderhouden en staat leeg, waardoor je hier zonder vertraging kan intrekken en meteen je eigen stempel kan drukken.
Voel je dat deze ligging en ruimte goed aansluiten bij wat je zoekt? Plan dan vandaag nog jouw bezoek met vastgoedmakelaar Wim Gevaert via 0473 70 40 71 (7/7) of wim@altro-vastgoed.be
Ben je op zoek naar een instapklare gezinswoning in één van de meest gegeerde woonwijken rondBrugge? Dan zal Blijdenburg 6 in Sint-Michiels precies zijn wat je in gedachten hebt.
Deze halfopen bebouwing uit 2005 ligt discreet verscholen in een doodlopende straat, op een zuid-georiënteerd perceel van 368 m². Hier woon je rustig, met weinig verkeer, en tegelijk vlak bij alle voorzieningen zoals station, snelwegen, expresweg, bibliotheek, enz...
Op het gelijkvloers kom je binnen via de inkomhal met gastentoilet. De ruime, lichtrijke leefruimte biedt een mooi zicht op de zuidgerichte tuin – een fijne plek om te ontspannen of gasten te ontvangen. De halfopen keuken sluit hier naadloos op aan en staat in verbinding met de trappenhal en de grote inpandige garage: praktisch in het dagelijks gebruik, zeker bij aankopen of met kinderen.
Op de eerste verdieping vind je drie volwaardige slaapkamers, een afzonderlijk toilet op de nachthal en een ruime badkamer met ligbad, douche en dubbele wastafel. Via een vaste trap bereik je de afgewerkte zolder, perfect als vierde slaapkamer, bureau of hobbyruimte – net wat jouw gezin nodig heeft.
De woning is tijdloos, goed onderhouden en staat leeg, waardoor je hier zonder vertraging kan intrekken en meteen je eigen stempel kan drukken.
Voel je dat deze ligging en ruimte goed aansluiten bij wat je zoekt? Plan dan vandaag nog jouw bezoek met vastgoedmakelaar Wim Gevaert via 0473 70 40 71 (7/7) of wim@altro-vastgoed.be
Ben je op zoek naar een instapklare gezinswoning in één van de meest gegeerde woonwijken rondBrugge? Dan zal Blijdenburg 6 in Sint-Michiels precies zijn wat je in gedachten hebt.
Deze halfopen bebouwing uit 2005 ligt discreet verscholen in een doodlopende straat, op een zuid-georiënteerd perceel van 368 m². Hier woon je rustig, met weinig verkeer, en tegelijk vlak bij alle voorzieningen zoals station, snelwegen, expresweg, bibliotheek, enz...
Op het gelijkvloers kom je binnen via de inkomhal met gastentoilet. De ruime, lichtrijke leefruimte biedt een mooi zicht op de zuidgerichte tuin – een fijne plek om te ontspannen of gasten te ontvangen. De halfopen keuken sluit hier naadloos op aan en staat in verbinding met de trappenhal en de grote inpandige garage: praktisch in het dagelijks gebruik, zeker bij aankopen of met kinderen.
Op de eerste verdieping vind je drie volwaardige slaapkamers, een afzonderlijk toilet op de nachthal en een ruime badkamer met ligbad, douche en dubbele wastafel. Via een vaste trap bereik je de afgewerkte zolder, perfect als vierde slaapkamer, bureau of hobbyruimte – net wat jouw gezin nodig heeft.
De woning is tijdloos, goed onderhouden en staat leeg, waardoor je hier zonder vertraging kan intrekken en meteen je eigen stempel kan drukken.
Voel je dat deze ligging en ruimte goed aansluiten bij wat je zoekt?
Deze halfopen bebouwing uit 2005 ligt discreet verscholen in een doodlopende straat, op een zuid-georiënteerd perceel van 368 m². Hier woon je rustig, met weinig verkeer, en tegelijk vlak bij alle voorzieningen zoals station, snelwegen, expresweg, bibliotheek, enz...
Op het gelijkvloers kom je binnen via de inkomhal met gastentoilet. De ruime, lichtrijke leefruimte biedt een mooi zicht op de zuidgerichte tuin – een fijne plek om te ontspannen of gasten te ontvangen. De halfopen keuken sluit hier naadloos op aan en staat in verbinding met de trappenhal en de grote inpandige garage: praktisch in het dagelijks gebruik, zeker bij aankopen of met kinderen.
Op de eerste verdieping vind je drie volwaardige slaapkamers, een afzonderlijk toilet op de nachthal en een ruime badkamer met ligbad, douche en dubbele wastafel. Via een vaste trap bereik je de afgewerkte zolder, perfect als vierde slaapkamer, bureau of hobbyruimte – net wat jouw gezin nodig heeft.
De woning is tijdloos, goed onderhouden en staat leeg, waardoor je hier zonder vertraging kan intrekken en meteen je eigen stempel kan drukken.
Voel je dat deze ligging en ruimte goed aansluiten bij wat je zoekt?
Energie
![]() |
- EPC Certificaat: 20250514-00036013035-RES-1
- Energieverbruik: 175 kWh/m²/jaar
Op de kaart

Downloads
- ActaMaps Overstromingsrapport (31512B049500L004) (1).pdf (pdf)
- Kadastraal plan (11).pdf (pdf)
- EPC.pdf (pdf)
- Plannen.jpg (jpg)
- ActaMaps Overstromingsrapport (31512B049500L004) (1).pdf (pdf)
- ActaMaps Perceelrapport Onroerend Erfgoed (31512B049500L004) (1).pdf (pdf)
- Kadastraal plan (11).pdf (pdf)
- VLM rapport_29102025 (1) (1).pdf (pdf)
- EK report_202511003728_nl.pdf (pdf)
- EK Offerte 2354.pdf (pdf)
Financieel
| Prijs | |
|---|---|
| Kadastraal inkomen (niet geïndexeerd) | € 989 |
| Kadastraal inkomen (geïndexeerd) | € 989 |
Berekening kosten
Je aankoopkosten? Die heb je snel berekent via de knop hieronder.
Bijkomende info
Gebouw
| Bouwjaar | 2005 |
|---|---|
| Staat | Goed onderhouden |
| Bewoonbaar (m²) | 204 |
| Gevels | 3 |
| Badkamers | 1 |
| Slaapkamers | 3 |
| Verdiepingen | 3 |
| Garages | 1 |
| Parkeerplaatsen | 2 |
| Doucheruimtes | 1 |
| Toiletten | 2 |
Faciliteiten
| Type vloer | |
|---|---|
| Keuken uitrusting | Luxueus uitgerust |
| Elektrisch keuringsattest | Nee |
Perceel
| Overstromingsgevoelig | Geen |
|---|---|
| P-score | C |
| G-score | C |
| Voorkeurrecht | Nee |
| Totale oppervlakte (m²) | 368 |
| Bebouwde oppervlakte (m²) | 95 |
| Tuin oppervlakte (m²) | 368 |
| Oriëntatie terras | Noordwest |
Vergunning
| Vergunning | Vergunning beschikbaar |
|---|---|
| Verkavelingsvergunning | Vergunning beschikbaar |
| Bouwovertreding | Geen |
| Bouwovertreding dagvaardiging | Geen |
Uitrusting
| Geschikt voor rolstoelgebruikers | Nee |
|---|---|
| Parking | Ja |
| Garage | Ja |
| Zolder | Ja |
| Tuin | Ja |
| Terras | Ja |
| Lift | Nee |
| Gasaansluiting | Ja |
| Wateraansluiting | Ja |
| Elektriciteitsaansluiting | Ja |
| TV aansluiting | Ja |
| Zwembad | Nee |
| Zwemvijver | Nee |
| Regenwaterput | Ja |
Een pand van
Altro Vastgoed Brugge
Wij verkopen uw vastgoed, anders én beter!
Bij Altro Vastgoed vinden we een persoonlijke aanpak erg belangrijk, hierbij stellen we de klant steeds centraal en staan we hem/haar bij in het complexe proces van verkopen, aankopen, verhuren en huren van vastgoed. We beschikken over een kwalitatief kantorennetwerk in Vlaanderen en Brussel met een sterke, lokale verankering.
Leer meer over vastgoed
22 October 2025
Hoeveel kan ik lenen om een huis te kopen?
11 June 2025
Huis kopen met bouwovertreding? Dit moet je weten
11 May 2025
Renoveren? Vraag je Mijn VerbouwPremie aan
22 April 2025
