Wonen met ruimte, zichtbaarheid en potentieel!
€ 398.800
Koning Albert I laan 201 - 8200 Sint Michiels
Een pand van Altro Vastgoed Brugge
Jouw zoektocht
Overzicht
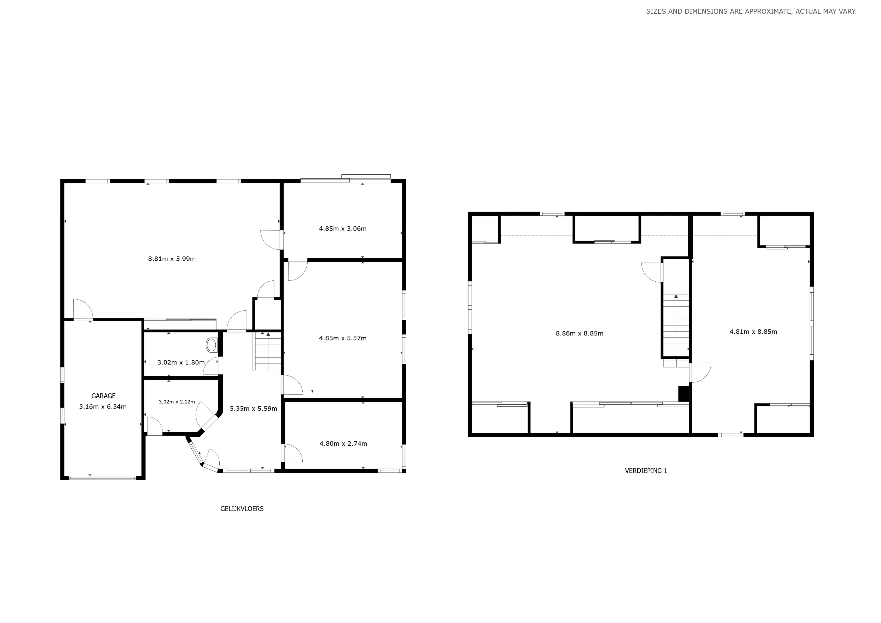
- 308 m² bewoonbaar
- 458 m² grond
- 4 Slaapkamer(s)
- 1 Badkamer(s)
- 1 Tuin
- 1 Garage(s)
Beschrijving
ALTRO VASTGOED VERKOOPT
Op zoek naar een eigendom die je volledig naar jouw hand kan zetten, op een strategische en vlot bereikbare locatie? Deze woning aan de Koning Albert I-laan 201 in Sint-Michiels biedt maar liefst 308 m² bruikbare oppervlakte en vormt de ideale basis voor wie ruimte en mogelijkheden zoekt.
De indeling vandaag omvat een ruime inkom met wachtruimtes, meerdere bureauruimtes, sanitair en een grote archiefruimte op de verdieping. Deze structuur laat zich perfect herdenken naar een volwaardige, ruime gezinswoning of een combinatie van wonen en werken (max. 100 m² kantoor/commercieel mogelijk volgens de bestemming).
Dankzij de grote raampartijen geniet je van een aangename lichtinval doorheen de volledige woning. Extra troeven zijn de inpandige garage, zolderruimte en de 3 private parkeerplaatsen vooraan, aangevuld met bijkomende parkeermogelijkheden in de directe omgeving.
Dit is geen standaard woning, maar een opportuniteit voor wie visie heeft en waarde wil creëren op een topligging met uitstekende bereikbaarheid en visibiliteit.
Interesse om deze eigendom verder te ontdekken en de mogelijkheden te bekijken? Contacteer vastgoedmakelaar Wim Gevaert via 0473 70 40 71 (7/7) of wim@altro-vastgoed.be
Op zoek naar een eigendom die je volledig naar jouw hand kan zetten, op een strategische en vlot bereikbare locatie? Deze woning aan de Koning Albert I-laan 201 in Sint-Michiels biedt maar liefst 308 m² bruikbare oppervlakte en vormt de ideale basis voor wie ruimte en mogelijkheden zoekt.
De indeling vandaag omvat een ruime inkom met wachtruimtes, meerdere bureauruimtes, sanitair en een grote archiefruimte op de verdieping. Deze structuur laat zich perfect herdenken naar een volwaardige, ruime gezinswoning of een combinatie van wonen en werken (max. 100 m² kantoor/commercieel mogelijk volgens de bestemming).
Dankzij de grote raampartijen geniet je van een aangename lichtinval doorheen de volledige woning. Extra troeven zijn de inpandige garage, zolderruimte en de 3 private parkeerplaatsen vooraan, aangevuld met bijkomende parkeermogelijkheden in de directe omgeving.
Dit is geen standaard woning, maar een opportuniteit voor wie visie heeft en waarde wil creëren op een topligging met uitstekende bereikbaarheid en visibiliteit.
Interesse om deze eigendom verder te ontdekken en de mogelijkheden te bekijken?
Energie
![]() |
- EPC Certificaat: 20241130-0003460897-KNR-3
- Energieverbruik: 245 kWh/m²/jaar
- Verwarming: Gas
- Beglazing: Standaard dubbel
Downloads
- Elektrische keuring (pdf)
- Asbest inventaris (pdf)
- Plan Sint-Michiels Koning Albert I laan 201.jpg (jpg)
- OVAM (pdf)
- Stedenbouw (pdf)
- Kadastraal plan (pdf)
- RVV (pdf)
- Watertoets (pdf)
- ActaMaps (pdf)
- Risicokaart waterbeheerder (pdf)
- BOD TOT AANKOOP (document Altro Vastgoed) definitief.docx (docx)
- EPC (pdf)
Financieel
| Prijs | |
|---|---|
| Kadastraal inkomen (niet geïndexeerd) | € 1.482 |
Berekening kosten
Je aankoopkosten? Die heb je snel berekend via de knop hieronder.
Bijkomende info
Gebouw
| Bouwjaar | 1993 |
|---|---|
| Staat | Goed onderhouden |
| Is beschermd | Nee |
| Bewoonbaar (m²) | 308 |
| Verdieping | 0 |
| Gevels | 4 |
| Zolder | 0 |
| Kelder | 0 |
| Badkamers | 1 |
| Slaapkamers | 4 |
| Verdiepingen | 2 |
| Garages | 1 |
| Keukens | 0 |
| Leefruimtes | 0 |
| Kantoorruimtes | 0 |
| Parkeerplaatsen | 0 |
| Opslagruimtes | 0 |
| Toiletten | 0 |
Ruimtes
| Tuin | 458 m² |
|---|---|
| Terras | 12 m² |
Faciliteiten
| Beglazing | Standaard dubbel |
|---|---|
| Luiken | Nee |
| Primair verwarmingstype | Decentrale verwarming |
| Brandstof primaire verwarming | Gas |
| Brandstof type | Geen |
| Elektrisch keuringsattest | Nee |
| Septische tank | Nee |
Perceel
| Overstromingsgevoelig | Geen |
|---|---|
| P-score | B |
| G-score | A |
| Voorkeurrecht | Nee |
| Totale oppervlakte (m²) | 458 |
| Tuin oppervlakte (m²) | 458 |
| Oppervlakte terras (m²) | 12 |
| Oriëntatie tuin | ZuidOost |
| Oriëntatie terras | ZuidOost |
Vergunning
| Vergunning | Vergunning beschikbaar |
|---|---|
| Verkavelingsvergunning | Vergunning beschikbaar |
Uitrusting
| Parking | Nee |
|---|---|
| Garage | Ja |
| Kelder | Nee |
| Zolder | Nee |
| Opslagruimte | Nee |
| Tuin | Ja |
| Terras | Ja |
| Lift | Nee |
| Rioolaansluiting | Ja |
| Gasaansluiting | Ja |
| Wateraansluiting | Ja |
| Elektriciteitsaansluiting | Ja |
| Zonnepanelen | Nee |
| Zonneboiler | Nee |
| Thuisbatterij | Nee |
| Alarm | Nee |
| Zwembad | Nee |
| Sauna | Nee |
| Jacuzzi | Nee |
| Videofoon | Nee |
| Domotica | Nee |
| Regenwaterput | Nee |
| Ventilatie | Nee |
