Handelshuis met woonst op sterke locatie in Sint-Kruis
€ 398.800
Karel van Manderstraat 18 - 8310 Brugge
Een pand van Altro Vastgoed Brugge
Jouw zoektocht
Overzicht
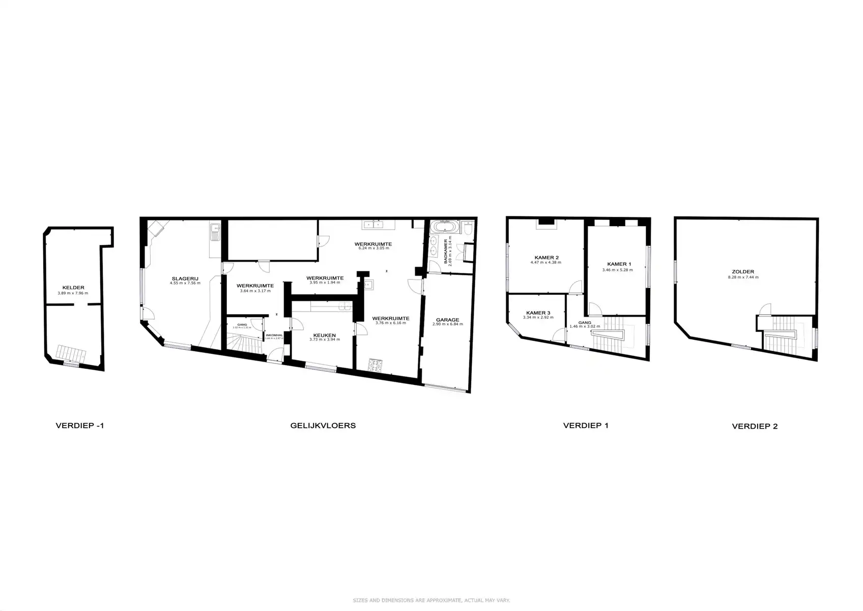
- 288 m² bewoonbaar
- 172 m² grond
- 3 Slaapkamer(s)
- 1 Badkamer(s)
- 1 Toilet(ten)
- 1 Garage(s)
Beschrijving
ALTRO VASTGOED VERKOOPT
In een authentieke Brugse buurt met sterke lokale verankering bevindt zich dit veelzijdige handelshuis met woonst, gelegen in de Karel Van Manderstraat 18 te Sint-Kruis. Een interessante opportuniteit voor wie wonen en werken wil combineren op één locatie.
Het handelspand wordt momenteel uitgebaat als slagerij en beschikt over een ingerichte winkelruimte met toonbank, diverse werkruimtes, koelcellen en een ruim atelier. Daarnaast zijn er verschillende stockageruimtes, een praktische kelder en een afzonderlijke privéruimte, wat zorgt voor een functionele en efficiënte indeling voor handelsactiviteiten.
Een bijkomende troef is de aanwezigheid van een garage, ideaal voor leveringen of privégebruik.
Boven de handelsruimte bevindt zich de woonst met drie slaapkamers, een badkamer op het glv. en een ruime zolder die bereikbaar is via een vaste trap. Deze zolder biedt extra mogelijkheden zoals een hobbyruimte, bureau of bijkomende slaapkamers.
De ligging vormt een belangrijke meerwaarde. Alle straten in deze volkswijk werden recent volledig vernieuwd, wat zorgt voor een verzorgde en aangename omgeving. Bovendien bevindt het pand zich in een levendige buurt waar lokale handel en buurtcontact nog centraal staan.
Interesse? Contacteer vastgoedmakelaar Wim via 0473 70 40 71 (7/7) of wim@altro-vastgoed.be voor meer informatie of een bezoek ter plaatse. Bezoeken zijn enkel mogelijk op woensdag.
In een authentieke Brugse buurt met sterke lokale verankering bevindt zich dit veelzijdige handelshuis met woonst, gelegen in de Karel Van Manderstraat 18 te Sint-Kruis. Een interessante opportuniteit voor wie wonen en werken wil combineren op één locatie.
Het handelspand wordt momenteel uitgebaat als slagerij en beschikt over een ingerichte winkelruimte met toonbank, diverse werkruimtes, koelcellen en een ruim atelier. Daarnaast zijn er verschillende stockageruimtes, een praktische kelder en een afzonderlijke privéruimte, wat zorgt voor een functionele en efficiënte indeling voor handelsactiviteiten.
Een bijkomende troef is de aanwezigheid van een garage, ideaal voor leveringen of privégebruik.
Boven de handelsruimte bevindt zich de woonst met drie slaapkamers, een badkamer op het glv. en een ruime zolder die bereikbaar is via een vaste trap. Deze zolder biedt extra mogelijkheden zoals een hobbyruimte, bureau of bijkomende slaapkamers.
De ligging vormt een belangrijke meerwaarde. Alle straten in deze volkswijk werden recent volledig vernieuwd, wat zorgt voor een verzorgde en aangename omgeving. Bovendien bevindt het pand zich in een levendige buurt waar lokale handel en buurtcontact nog centraal staan.
Interesse? Bezoeken zijn enkel mogelijk op woensdag.
Energie
![]() |
- EPC Certificaat: 20260220-0003807354-RES-1
- Energieverbruik: 492 kWh/m²/jaar
- Verwarming: Gas
- Beglazing: Standaard dubbel
Extra budget nodig voor je renovatie?

Downloads
- BOD TOT AANKOOP (document Altro Vastgoed) definitief.docx (docx)
- Plan - Sint-Kruis Karel Van Manderstraat 18.jpg (jpg)
- Brugge - Karel van Manderstraat 18.jpg (jpg)
- Asbest inventaris (pdf)
- EPC (pdf)
- PFAS Geopunt _ Digitaal Vlaanderen nihil.pdf (pdf)
- Erfgoed.pdf (pdf)
- Watertoets (pdf)
- RVV (pdf)
- Kadastraal plan (pdf)
- Stedenbouw (pdf)
- OVAM (pdf)
Financieel
| Prijs | |
|---|---|
| Kadastraal inkomen (niet geïndexeerd) | € 1.006 |
| Kadastraal inkomen (geïndexeerd) | € 1.006 |
Berekening kosten
Je aankoopkosten? Die heb je snel berekend via de knop hieronder.
Bijkomende info
Gebouw
| Bouwjaar | 1937 |
|---|---|
| Staat | Op te frissen |
| Is beschermd | Nee |
| Bewoonbaar (m²) | 288 |
| Verdieping | 0 |
| Gevels | 3 |
| Gevelbreedte | 8 |
| Zolder | 0 |
| Kelder | 1 |
| Badkamers | 1 |
| Slaapkamers | 3 |
| Verdiepingen | 3 |
| Garages | 1 |
| Keukens | 1 |
| Leefruimtes | 0 |
| Kantoorruimtes | 0 |
| Parkeerplaatsen | 0 |
| Opslagruimtes | 0 |
| Toiletten | 1 |
Faciliteiten
| Beglazing | Standaard dubbel |
|---|---|
| Luiken | Ja |
| Brandstof primaire verwarming | Gas |
| Brandstof type | Geen |
| Elektrisch keuringsattest | Nee |
| Septische tank | Nee |
Perceel
| Diepte (m) | 19 |
|---|---|
| Breedte (m) | 8 |
| Overstromingsgevoelig | Geen |
| P-score | A |
| G-score | A |
| Voorkeurrecht | Nee |
| Totale oppervlakte (m²) | 172 |
Vergunning
| Vergunning | Vergunning beschikbaar |
|---|---|
| Verkavelingsvergunning | Geen beschikbaar |
Uitrusting
| Parking | Nee |
|---|---|
| Garage | Ja |
| Kelder | Ja |
| Zolder | Nee |
| Opslagruimte | Nee |
| Tuin | Nee |
| Terras | Nee |
| Lift | Nee |
| Rioolaansluiting | Ja |
| Gasaansluiting | Ja |
| Wateraansluiting | Ja |
| Elektriciteitsaansluiting | Ja |
| Zonnepanelen | Ja |
| Zonneboiler | Nee |
| Thuisbatterij | Nee |
| Alarm | Nee |
| Zwembad | Nee |
| Sauna | Nee |
| Jacuzzi | Nee |
| Videofoon | Nee |
| Domotica | Nee |
| Regenwaterput | Nee |
| Ventilatie | Nee |



