Halfopen woning op een mooi perceel te Zwankendamme
Een pand van Willem Cauwels Real Estate
Overzicht
- 172 m² bewoonbaar
- 314 m² grond
- 3 Slaapkamer(s)
- 2 Badkamer(s)
- 2 Toilet(ten)
- 1 Tuin
- 1 Garage(s)
Beschrijving
Interessante woning met ontzettend veel potentieel, rustig gelegen te Zwankendamme (naast Lissewege). Deze grote halfopen woning beschikt over een omgevingsvergunning voor een volledige verbouwing met uitbouw en de oprichting van een gesloten garage met tuinberging.
De ruwbouwwerken zijn grotendeels gedaan. Als koper kunt u de woning volledig naar eigen wens en smaak afwerken. Vergunde plannen beschikbaar via ons kantoor.
Mogelijkheid tot het creëren van een prachtige halfopen woning met een zonnige tuin en een grote garage achteraan. De garage is te bereiken via een achterliggende wegel. Een enorme troef van deze woning.
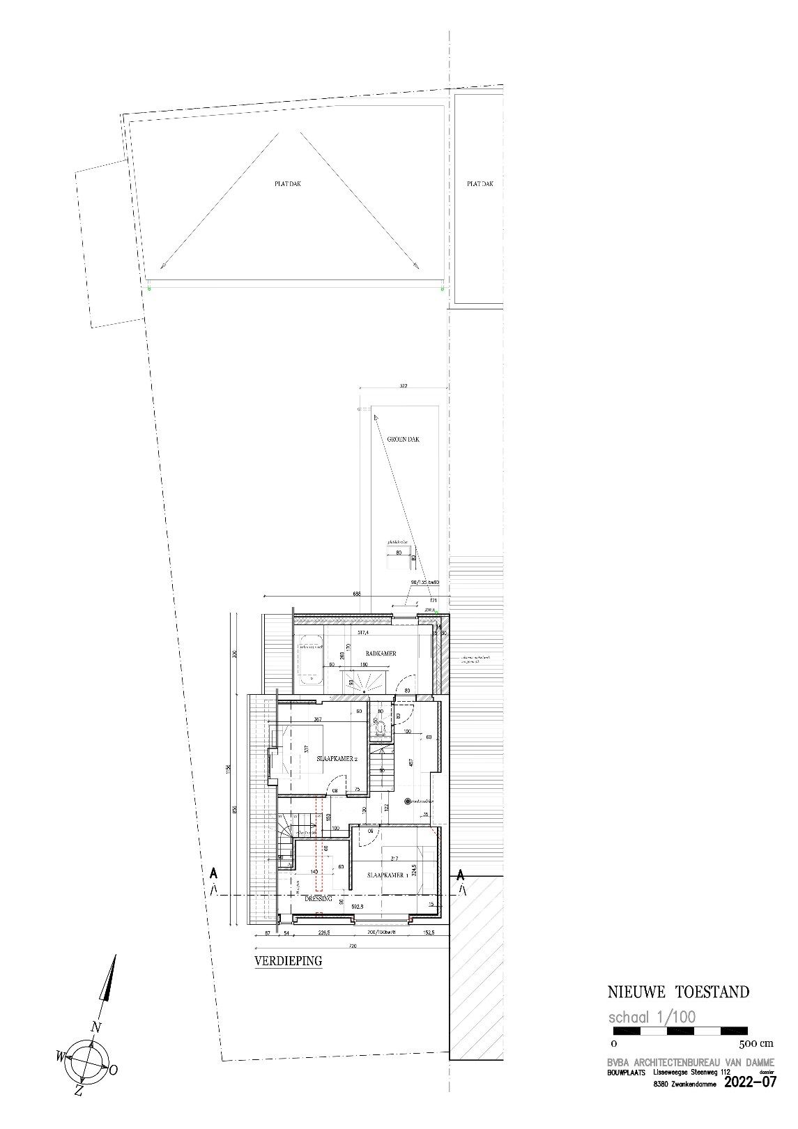
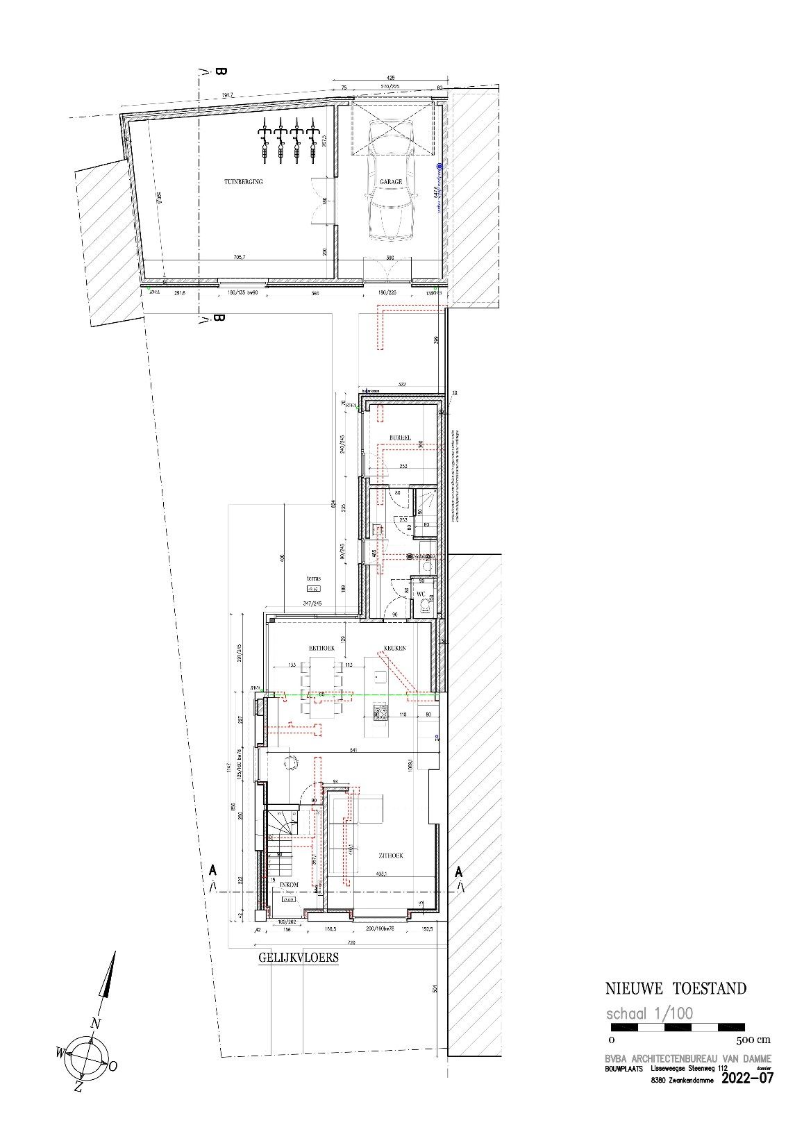
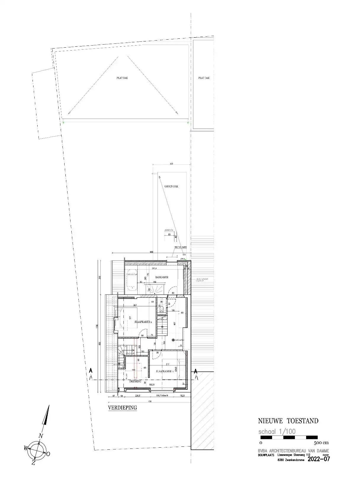
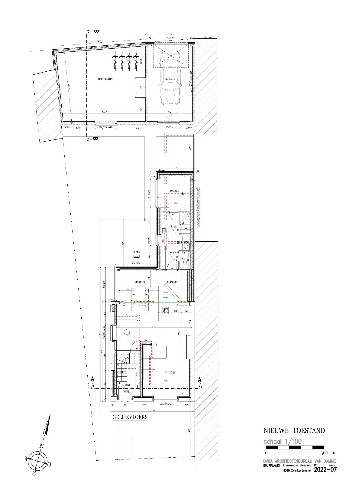
Indeling volgens de vergunde plannen:
Inkomhal met trap, een schitterende leefruimte met een zithoek en een enorme leefkeuken met eiland. In de keuken een groot schuifraam met toegang naar de tuin. Verder op het gelijkvloers nog een apart toilet, een wasplaats, een douchekamer en een apart bureau met zicht op de tuin.
Op de eerste verdieping een masterbedroom met ensuite dressing, een tweede slaapkamer en een grote badkamer met douche en ligbad. Op de nachthall een vaste trap naar de zolderverdieping waar u nog beschikt over een derde kamer en een opbergruimte.
Mooi perceel van 314 m² met een ongelooflijk potentieel.
Gevel opgenomen in de lijst van vastgesteld bouwkundig erfgoed.
Bezoeken of meer informatie?
Contacteer Sacha Vanrafelghem op GSM 0487/43.79.10.
De ruwbouwwerken zijn grotendeels gedaan. Als koper kunt u de woning volledig naar eigen wens en smaak afwerken. Vergunde plannen beschikbaar via ons kantoor.
Mogelijkheid tot het creëren van een prachtige halfopen woning met een zonnige tuin en een grote garage achteraan. De garage is te bereiken via een achterliggende wegel. Een enorme troef van deze woning.
Indeling volgens de vergunde plannen:
Inkomhal met trap, een schitterende leefruimte met een zithoek en een enorme leefkeuken met eiland. In de keuken een groot schuifraam met toegang naar de tuin. Verder op het gelijkvloers nog een apart toilet, een wasplaats, een douchekamer en een apart bureau met zicht op de tuin.
Op de eerste verdieping een masterbedroom met ensuite dressing, een tweede slaapkamer en een grote badkamer met douche en ligbad. Op de nachthall een vaste trap naar de zolderverdieping waar u nog beschikt over een derde kamer en een opbergruimte.
Mooi perceel van 314 m² met een ongelooflijk potentieel.
Gevel opgenomen in de lijst van vastgesteld bouwkundig erfgoed.
Bezoeken of meer informatie?
Contacteer Sacha Vanrafelghem op GSM 0487/43.79.10.
Energie
![]() |
- EPC Certificaat: 20220331-0002575115-RES-1
- Verwarming: Geen
- Beglazing: Onbekend
Let op, de renovatieverplichting in Vlaanderen verplicht de koper om deze woning na aankoop te renoveren tot een betere energieprestatie. Lees er alles over in dit artikel
Extra budget nodig voor je renovatie?
De overheid helpt je dit pand energetisch te renoveren! Hieronder zie je het premiebedrag dat je mogelijks van de overheid krijgt.
Het huidige EPC-label is:

Op de kaart

Financieel
| Prijs | |
|---|---|
| Kadastraal inkomen (niet geïndexeerd) | € 0 |
| Kadastraal inkomen (geïndexeerd) | € 0 |
Berekening kosten
Je aankoopkosten? Die heb je snel berekend via de knop hieronder.
Bijkomende info
Gebouw
| Bouwjaar | 1930 |
|---|---|
| Staat | Te renoveren |
| Is beschermd | Nee |
| Bewoonbaar (m²) | 172 |
| Gevelbreedte | 7.9 |
| Badkamers | 2 |
| Slaapkamers | 3 |
| Verdiepingen | 3 |
| Garages | 1 |
| Toiletten | 2 |
Faciliteiten
| Keuken | Open keuken |
|---|---|
| Keuken uitrusting | Goed uitgerust |
| Luiken | Nee |
| Primair verwarmingstype | Geen verwarming |
| Brandstof primaire verwarming | Geen |
| Warm water type | Geen verwarming |
Perceel
| Overstromingsgevoelig | Geen |
|---|---|
| P-score | C |
| G-score | B |
| Voorkeurrecht | Nee |
| Totale oppervlakte (m²) | 314 |
| Bebouwde oppervlakte (m²) | 175 |
| Oriëntatie tuin | West |
Vergunning
| Vergunning | Vergunning beschikbaar |
|---|---|
| Verkavelingsvergunning | Geen beschikbaar |
| Bouwovertreding dagvaardiging | Geen |
| Type gebied | Stedelijk |
Uitrusting
| Meerdere eigenaars | Nee |
|---|---|
| Geschikt als kangoeroewoning | Nee |
| Geschikt voor rolstoelgebruikers | Nee |
| Geschikt voor praktijk | Ja |
| Volledig onderkelderd | Nee |
| Parking | Nee |
| Garage | Ja |
| Thuiskantoor | Ja |
| Kelder | Nee |
| Zolder | Ja |
| Opslagruimte | Ja |
| Tuin | Ja |
| Terras | Ja |
| Lift | Nee |
| Rioolaansluiting | Ja |
| Gasaansluiting | Ja |
| Wateraansluiting | Ja |
| Elektriciteitsaansluiting | Ja |
| TV aansluiting | Ja |
| Internetaansluiting | Ja |
| Zonnepanelen | Nee |
| Zonneboiler | Nee |
| Alarm | Nee |
| Zwembad | Nee |
| Jacuzzi | Nee |
| Toonzaal | Nee |
| Ventilatie | Nee |
Een pand van
Willem Cauwels Real Estate
Willem Cauwels Real Estate
Willem Cauwels Real Estate
2770
Leer meer over vastgoed
Nieuw
01 March 2026
Wanneer heb ik een bouwvergunning of omgevingsvergunning nodig?
17 February 2026
Hoe breng ik een bod uit op een woning?
24 November 2025
Uitgezocht voor jouw gemeente: Hoeveel stijgt de waarde van je woning door een renovatie?
22 October 2025



