Ruime benedenwoning met garage, polyvalente ruimte, terras, badkamer en 1 slpk te koop te Klemskerke (De Haan)
€ 375.000
Een pand van Residentie Vastgoed
Favoriet
Jouw zoektocht
Jouw scoretabel voor dit pand
Aan het laden...
Jouw geplande bezichtigingen
Aan het laden...
Overzicht
- 195 m² bewoonbaar
- 344 m² grond
Beschrijving
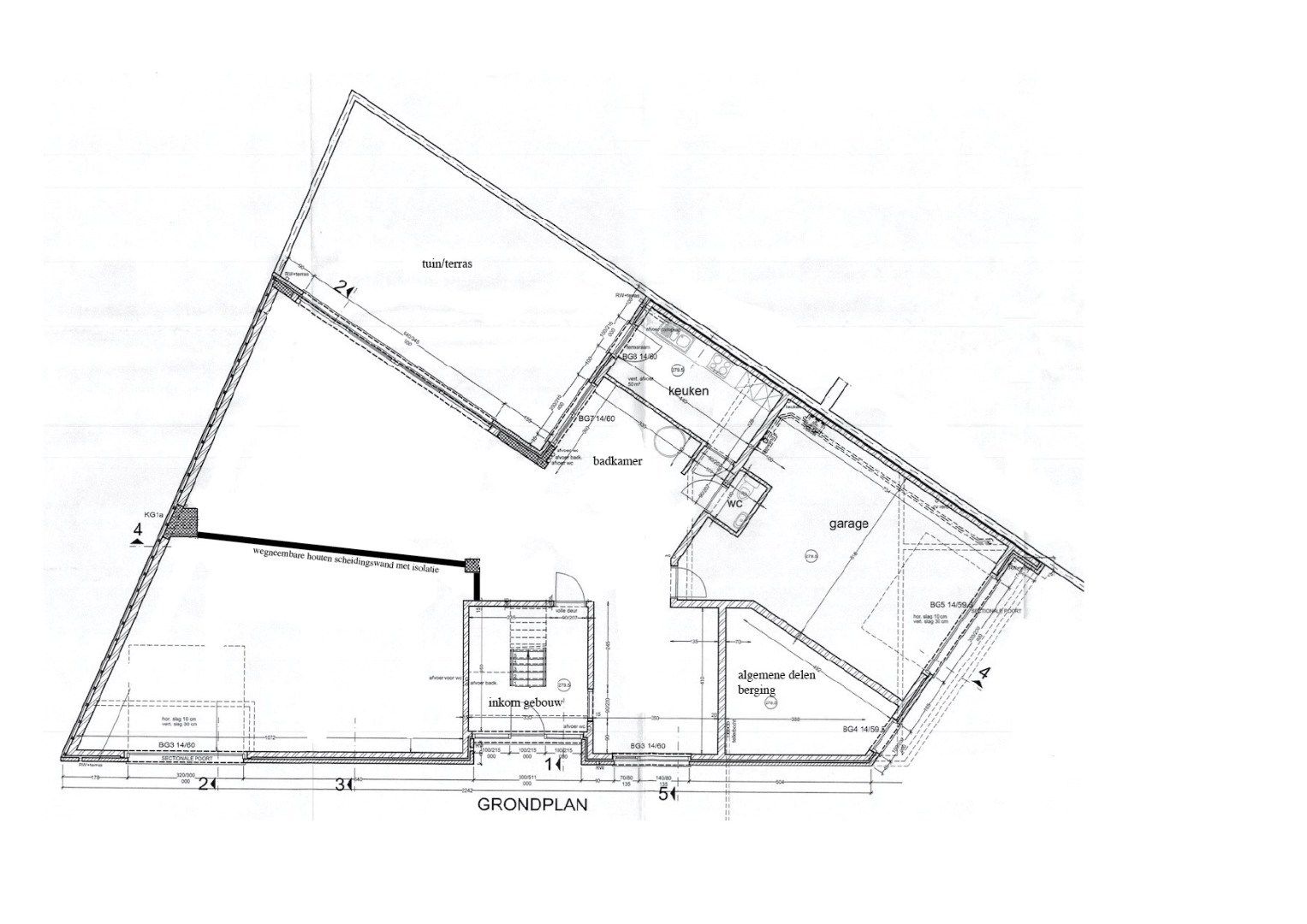
Bent u op zoek naar een benedenwoning met tal van mogelijkheden?
Momenteel is het pand gekend als een handelsgelijkvloers van 195m², gelegen in het rustige Klemskerke bij De Haan, maar door een eenvoudige functiewijziging te wijzigen naar volledige woonst of woonst in combi met een zelfstandige activiteit, atelier, kind, dokterspraktijk, opslagruimte, loods…
Het gelijkvloers is opgedeeld met eenvoudig wegneembare houten wand. Deze afscheiding kan zeer eenvoudig weggenomen worden zodat de ruimte opnieuw 1 ruim geheel wordt.
Ruimte vooraan is voorzien van afzonderlijke garagepoort, elektriciteit, verwarming en gietvloer.
Achter deze houten wand bevindt zich een lichtrijke ruimte met grote raampartijen, voorzien van een gietvloer, ingebouwde spots, airco, centrale verwarming en alarm. Bovendien is er een ruime slaapkamer (+ mogelijkheid om extra slaapkamers te creëren), keuken uitgerust met o.a. koelkast, keramische kookplaat en microgolf combioven. De badkamer met een inloopdouche met dubbele regendouche en stijlvol lavabomeubel. Er is een apart bureel met een gastentoilet.
Bijkomend is er een tweede grote garage met automatische poort, cv-ketel (Vaillant), regenwaterpomp en wasmachineaansluiting.
Ruim terras en gemeenschappelijke voorzieningen.
Het terras van 48 m² is volledig betegeld en zuidgericht. In het gebouw is een gemeenschappelijke (fiets)berging met een ontkalkingssysteem.
Met een eenvoudige functiewijziging kan je dit pand ombouwen naar een volledige woonst of handelsgelijkvloers met woonst.
Technische info:
- Aluminium ramen met dubbel glas (isolerend)
- Verwarming op aardgas + warmtepomp
- EPC: B-label
- Alarmsysteem
- Regenwaterpomp
Een bezoek gewenst? Maak snel je afspraak via 059 250 590
Momenteel is het pand gekend als een handelsgelijkvloers van 195m², gelegen in het rustige Klemskerke bij De Haan, maar door een eenvoudige functiewijziging te wijzigen naar volledige woonst of woonst in combi met een zelfstandige activiteit, atelier, kind, dokterspraktijk, opslagruimte, loods…
Het gelijkvloers is opgedeeld met eenvoudig wegneembare houten wand. Deze afscheiding kan zeer eenvoudig weggenomen worden zodat de ruimte opnieuw 1 ruim geheel wordt.
Ruimte vooraan is voorzien van afzonderlijke garagepoort, elektriciteit, verwarming en gietvloer.
Achter deze houten wand bevindt zich een lichtrijke ruimte met grote raampartijen, voorzien van een gietvloer, ingebouwde spots, airco, centrale verwarming en alarm. Bovendien is er een ruime slaapkamer (+ mogelijkheid om extra slaapkamers te creëren), keuken uitgerust met o.a. koelkast, keramische kookplaat en microgolf combioven. De badkamer met een inloopdouche met dubbele regendouche en stijlvol lavabomeubel. Er is een apart bureel met een gastentoilet.
Bijkomend is er een tweede grote garage met automatische poort, cv-ketel (Vaillant), regenwaterpomp en wasmachineaansluiting.
Ruim terras en gemeenschappelijke voorzieningen.
Het terras van 48 m² is volledig betegeld en zuidgericht. In het gebouw is een gemeenschappelijke (fiets)berging met een ontkalkingssysteem.
Met een eenvoudige functiewijziging kan je dit pand ombouwen naar een volledige woonst of handelsgelijkvloers met woonst.
Technische info:
- Aluminium ramen met dubbel glas (isolerend)
- Verwarming op aardgas + warmtepomp
- EPC: B-label
- Alarmsysteem
- Regenwaterpomp
Een bezoek gewenst? Maak snel je afspraak via 059 250 590
Energie
![]() |
- EPC Certificaat: 20240513-0003242345-RES-1
- Verwarming: Gas
- Beglazing: Standaard dubbel
Op de kaart

Financieel
| Prijs | |
|---|---|
| Kadastraal inkomen (niet geïndexeerd) | € 0 |
| Kadastraal inkomen (geïndexeerd) | € 0 |
Berekening kosten
Je aankoopkosten? Die heb je snel berekend via de knop hieronder.
Bijkomende info
Gebouw
| Bouwjaar | 2009 |
|---|---|
| Staat | Goed onderhouden |
| Is beschermd | Nee |
| Bewoonbaar (m²) | 195 |
| Parkeerplaatsen | 2 |
Faciliteiten
| Materiaal ramenomlijstingen | Aluminium |
|---|---|
| Beglazing | Standaard dubbel |
| Luiken | Nee |
| Primair verwarmingstype | Centrale verwarming |
| Primaire verwarmingsbron | Bodemwater warmtepomp (geothermisch) |
| Brandstof primaire verwarming | Gas |
| Warm water type | Geen verwarming |
Perceel
| Overstromingsgevoelig | Geen |
|---|---|
| P-score | B |
| G-score | B |
| Voorkeurrecht | Nee |
| Totale oppervlakte (m²) | 344 |
Vergunning
| Vergunning | Vergunning beschikbaar |
|---|---|
| Verkavelingsvergunning | Geen beschikbaar |
| Bouwovertreding dagvaardiging | Geen |
| Type gebied | Landelijk |
Uitrusting
| Meerdere eigenaars | Nee |
|---|---|
| Geschikt als kangoeroewoning | Nee |
| Geschikt voor rolstoelgebruikers | Nee |
| Geschikt voor praktijk | Nee |
| Volledig onderkelderd | Nee |
| Parking | Ja |
| Garage | Nee |
| Thuiskantoor | Nee |
| Kelder | Nee |
| Zolder | Nee |
| Opslagruimte | Nee |
| Tuin | Nee |
| Terras | Nee |
| Lift | Nee |
| Rioolaansluiting | Ja |
| Gasaansluiting | Ja |
| Wateraansluiting | Ja |
| Elektriciteitsaansluiting | Ja |
| TV aansluiting | Ja |
| Internetaansluiting | Ja |
| Zonnepanelen | Nee |
| Zonneboiler | Nee |
| Alarm | Ja |
| Zwembad | Nee |
| Jacuzzi | Nee |
| Toonzaal | Nee |
| Ventilatie | Nee |
Appartementsblok
| Lift | Nee |
|---|---|
| Intercom | Ja |
Een pand van
Residentie Vastgoed
Wij stellen jouw woning voorop!
Residentie Vastgoed heeft tot doel u op een deskundige en correcte manier te helpen bij het vinden van een gepaste woning. U, als eigenaar, helpen wij om uw eigendom aan een eerlijke en juiste prijs te verkopen. Binnen onze site ontdekt u een waaier van diensten die Residentie Vastgoed aanbiedt. www.residentievastgoed.be
DE24434
Leer meer over vastgoed
23 March 2026
Op Spotto zoeken als een pro: 10 slimme tips
21 March 2026
Hoeveel kan ik lenen om een huis te kopen?
01 March 2026
Wanneer heb ik een bouwvergunning of omgevingsvergunning nodig?
17 February 2026
