RESIDENTIE SKYFALL
Een pand van Dermul Vastgoed en Beheer NV
Favoriet
Jouw zoektocht
Jouw scoretabel voor dit pand
Aan het laden...
Jouw geplande bezichtigingen
Aan het laden...
Overzicht
- 48.32 m² bewoonbaar
- 52 m² grond
- 1 Badkamer(s)
- 1 Garage(s)
Beschrijving
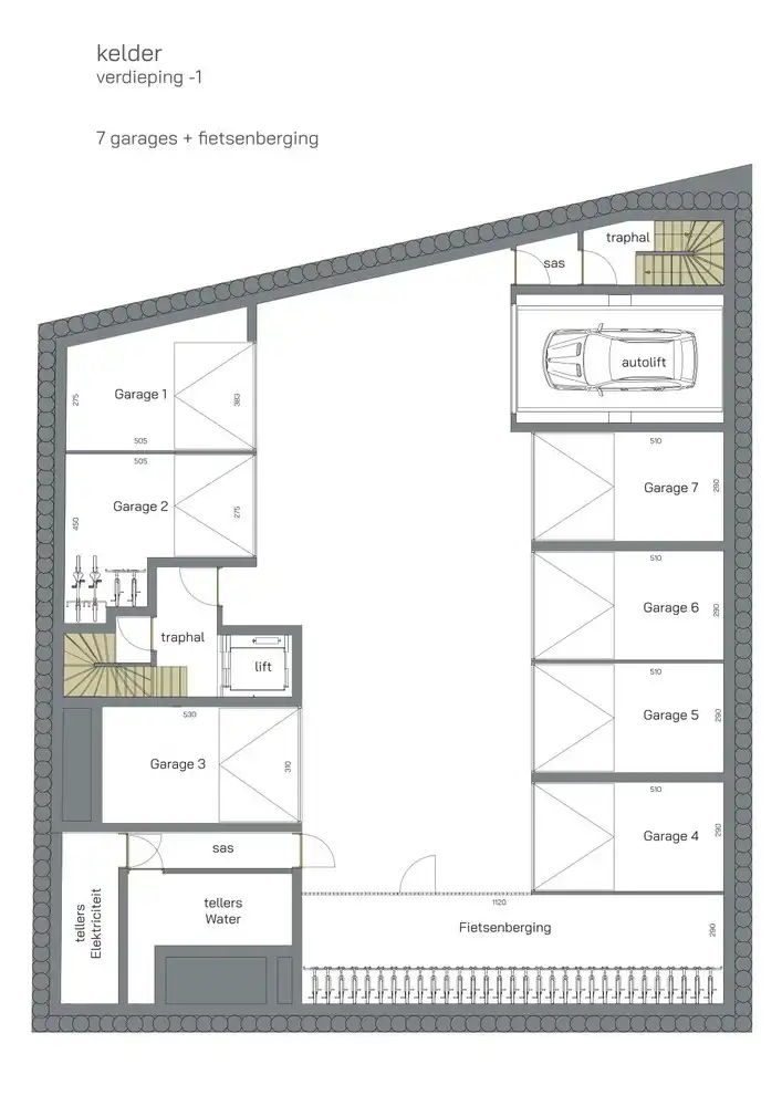
Met trots stellen wij Residentie “Skyfall” voor, een stijlvol en eigentijds woonproject gelegen op de hoek van de Koninginnelaan en de Duinenweg in Middelkerke. Dit modern vormgegeven gebouw onderscheidt zich door zijn hedendaagse architectuur en doordachte indeling. Ondergronds bevindt zich een ruime kelderverdieping van twee niveaus, toegankelijk via een autolift, met plaats voor zestien garages en een praktische fietsenberging. Ook op het gelijkvloers werd een gemeenschappelijke fietsenberging voorzien, wat het comfort voor bewoners extra verhoogt. Dankzij de uitstekende ligging bevindt u zich op wandelafstand van het centrum én in de onmiddellijke nabijheid van de Zeedijk, waardoor u optimaal geniet van zowel rust als levendigheid. Deze studio is gelegen op het gelijkvloers. Mis deze unieke kans niet om te investeren of te wonen in een hedendaags project op toplocatie.
Energie
- EPC Certificaat: EPB in opmaak
- E-peil: E0
- Beglazing: Standaard dubbel
Op de kaart

Financieel
| Prijs |
|---|
Berekening kosten
Je aankoopkosten? Die heb je snel berekend via de knop hieronder.
Bijkomende info
Gebouw
| Bouwjaar | 2026 |
|---|---|
| Staat | Zo goed als nieuw |
| Bouwcertificaat | Nee |
| Bewoonbaar (m²) | 48.32 |
| Verdieping | 0 |
| Badkamers | 1 |
| Slaapkamers | 0 |
| Verdiepingen | 0 |
| Garages | 1 |
| Parkeerplaatsen | 0 |
| Toiletten | 0 |
Faciliteiten
| Beglazing | Standaard dubbel |
|---|---|
| Septische tank | Nee |
Perceel
| Overstromingsgevoelig | Geen |
|---|---|
| Totale oppervlakte (m²) | 52 |
| Bebouwde oppervlakte (m²) | 0 |
| Oppervlakte terras (m²) | 4 |
Vergunning
| Verkavelingsvergunning | Geen beschikbaar |
|---|
Uitrusting
| Investeringspand | Nee |
|---|---|
| Parking | Nee |
| Garage | Ja |
| Opslagruimte | Ja |
| Terras | Ja |
| Lift | Ja |
| Rioolaansluiting | Ja |
| Gasaansluiting | Nee |
| Wateraansluiting | Ja |
| Elektriciteitsaansluiting | Ja |
| Internetaansluiting | Ja |
| Telefoonaansluiting | Ja |
| Zonnepanelen | Ja |
| Zonneboiler | Nee |
| Alarm | Nee |
| Videofoon | Ja |
| Grondwaterput | Nee |
Appartementsblok
| Lift | Ja |
|---|---|
| Intercom | Nee |
Een pand van
Dermul Vastgoed en Beheer NV
Dermul Vastgoed en Beheer NV
Uw vastgoed in de omgeving van Oostende is een woonst, een tweede woonst, een investering. Het is persoonlijk. En het is financieel een belangrijke transactie.
Dit verdient een professionaliteit aanpak.
Beter nog: met een team van mensen die persoonlijke en professionele service bieden.
Deze meer dan 60 jaar ervaring van de lokale vastgoedmarkt zorgt voor de kennis van de juiste marktwaarde.
Wij kennen Oostende en omstreken als geen ander. We vertellen u het verhaal van de mensen in de Oostendse woonwijken.
SKYFALL 00.02
Leer meer over vastgoed
23 March 2026
Op Spotto zoeken als een pro: 10 slimme tips
21 March 2026
Hoeveel kan ik lenen om een huis te kopen?
01 March 2026
Wanneer heb ik een bouwvergunning of omgevingsvergunning nodig?
17 February 2026