Nieuw
RESIDENTIE SKYFALL
Een pand van Dermul Vastgoed en Beheer NV
Overzicht
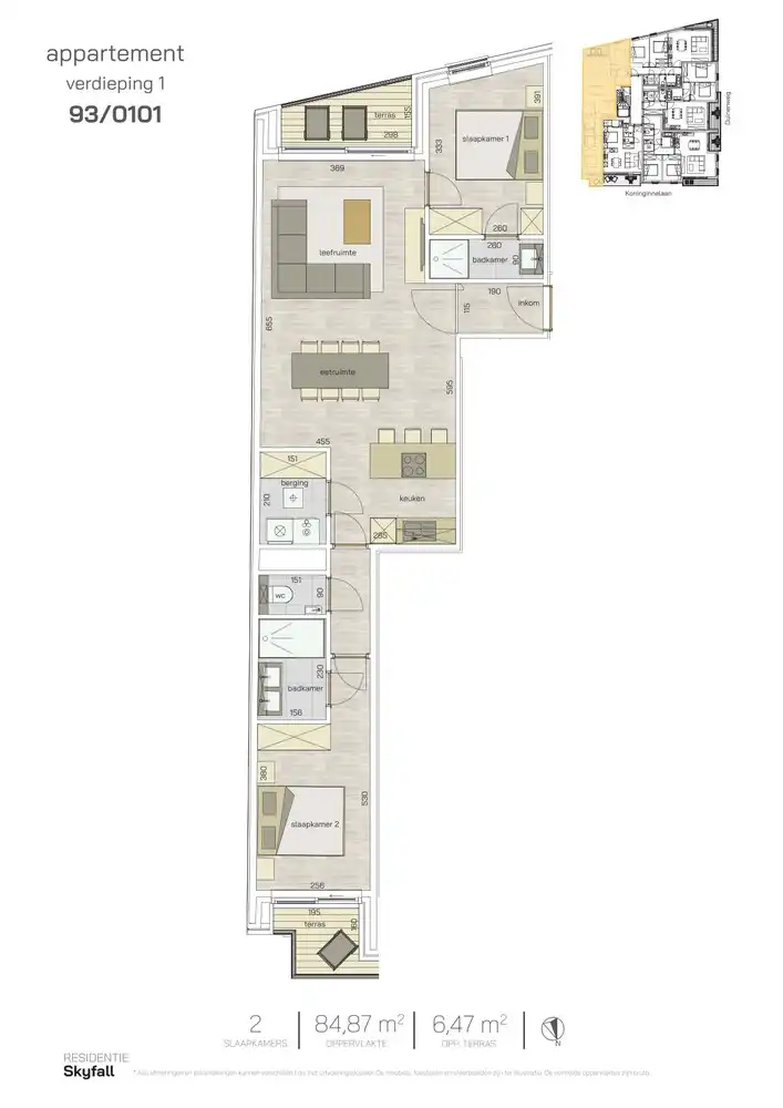
- 84.87 m² bewoonbaar
- 91 m² grond
- 2 Slaapkamer(s)
- 2 Badkamer(s)
- 1 Toilet(ten)
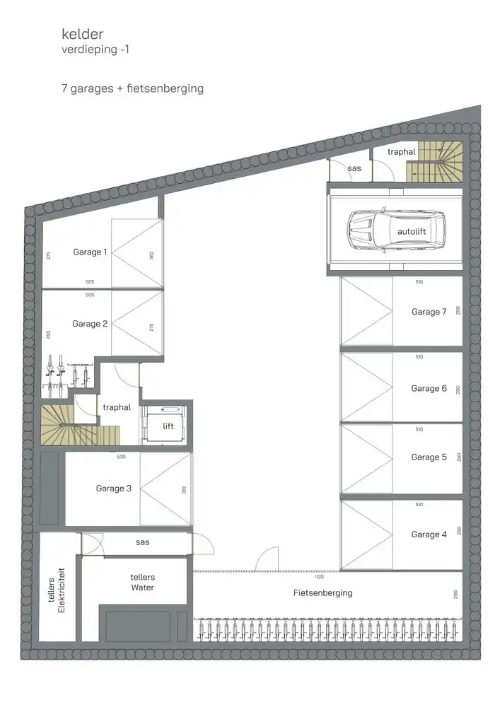
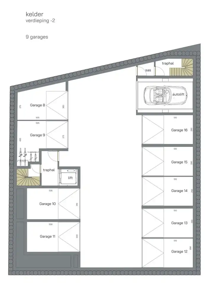
- 1 Garage(s)
Beschrijving
Met trots stellen wij Residentie “Skyfall” voor, een stijlvol en eigentijds woonproject gelegen op de hoek van de Koninginnelaan en de Duinenweg in Middelkerke. Dit modern vormgegeven gebouw onderscheidt zich door zijn hedendaagse architectuur en doordachte indeling. Ondergronds bevindt zich een ruime kelderverdieping van twee niveaus, toegankelijk via een autolift, met plaats voor zestien garages en een praktische fietsenberging. Ook op het gelijkvloers werd een gemeenschappelijke fietsenberging voorzien, wat het comfort voor bewoners extra verhoogt. Dankzij de uitstekende ligging bevindt u zich op wandelafstand van het centrum én in de onmiddellijke nabijheid van de Zeedijk, waardoor u optimaal geniet van zowel rust als levendigheid. Dit appartement met 2 slaapkamers is gelegen op de eerste verdieping. Mis deze unieke kans niet om te investeren of te wonen in een hedendaags project op toplocatie.
Energie
- EPC Certificaat: EPB in opmaak
- E-peil: E0
- Beglazing: Standaard dubbel
Op de kaart

Financieel
| Prijs |
|---|
Berekening kosten
Je aankoopkosten? Die heb je snel berekend via de knop hieronder.
Bijkomende info
Gebouw
| Bouwjaar | 2026 |
|---|---|
| Staat | Zo goed als nieuw |
| Bouwcertificaat | Nee |
| Bewoonbaar (m²) | 84.87 |
| Verdieping | 1 |
| Badkamers | 2 |
| Slaapkamers | 2 |
| Verdiepingen | 0 |
| Garages | 1 |
| Parkeerplaatsen | 0 |
| Toiletten | 1 |
Faciliteiten
| Beglazing | Standaard dubbel |
|---|---|
| Septische tank | Nee |
Perceel
| Overstromingsgevoelig | Geen |
|---|---|
| Totale oppervlakte (m²) | 91 |
| Bebouwde oppervlakte (m²) | 0 |
| Oppervlakte terras (m²) | 0 |
Vergunning
| Verkavelingsvergunning | Geen beschikbaar |
|---|
Uitrusting
| Investeringspand | Nee |
|---|---|
| Parking | Nee |
| Garage | Ja |
| Opslagruimte | Ja |
| Terras | Ja |
| Lift | Ja |
| Rioolaansluiting | Ja |
| Gasaansluiting | Nee |
| Wateraansluiting | Ja |
| Elektriciteitsaansluiting | Ja |
| Internetaansluiting | Ja |
| Telefoonaansluiting | Ja |
| Zonnepanelen | Ja |
| Zonneboiler | Nee |
| Alarm | Nee |
| Videofoon | Ja |
| Grondwaterput | Nee |
Appartementsblok
| Lift | Ja |
|---|---|
| Intercom | Nee |
Een pand van
Dermul Vastgoed en Beheer NV
Dermul Vastgoed en Beheer NV
Uw vastgoed in de omgeving van Oostende is een woonst, een tweede woonst, een investering. Het is persoonlijk. En het is financieel een belangrijke transactie.
Dit verdient een professionaliteit aanpak.
Beter nog: met een team van mensen die persoonlijke en professionele service bieden.
Deze meer dan 60 jaar ervaring van de lokale vastgoedmarkt zorgt voor de kennis van de juiste marktwaarde.
Wij kennen Oostende en omstreken als geen ander. We vertellen u het verhaal van de mensen in de Oostendse woonwijken.
SKYFALL 01.01
Leer meer over vastgoed
24 November 2025
Uitgezocht voor jouw gemeente: Hoeveel stijgt de waarde van je woning door een renovatie?
22 October 2025
Hoeveel kan ik lenen om een huis te kopen?
11 June 2025
Huis kopen met bouwovertreding? Dit moet je weten
11 May 2025