RESIDENTIE DUNES
€ 410.000
Een pand van Dermul Vastgoed en Beheer NV
Favoriet
Jouw zoektocht
Jouw scoretabel voor dit pand
Aan het laden...
Jouw geplande bezichtigingen
Aan het laden...
Overzicht
- 74.65 m² bewoonbaar
- 82 m² grond
- 2 Slaapkamer(s)
- 1 Badkamer(s)
- 1 Toilet(ten)
Beschrijving
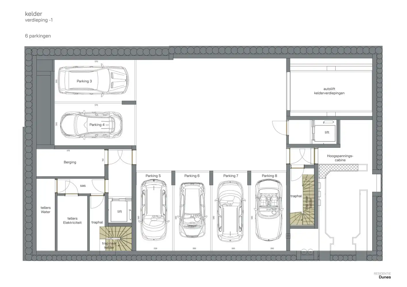
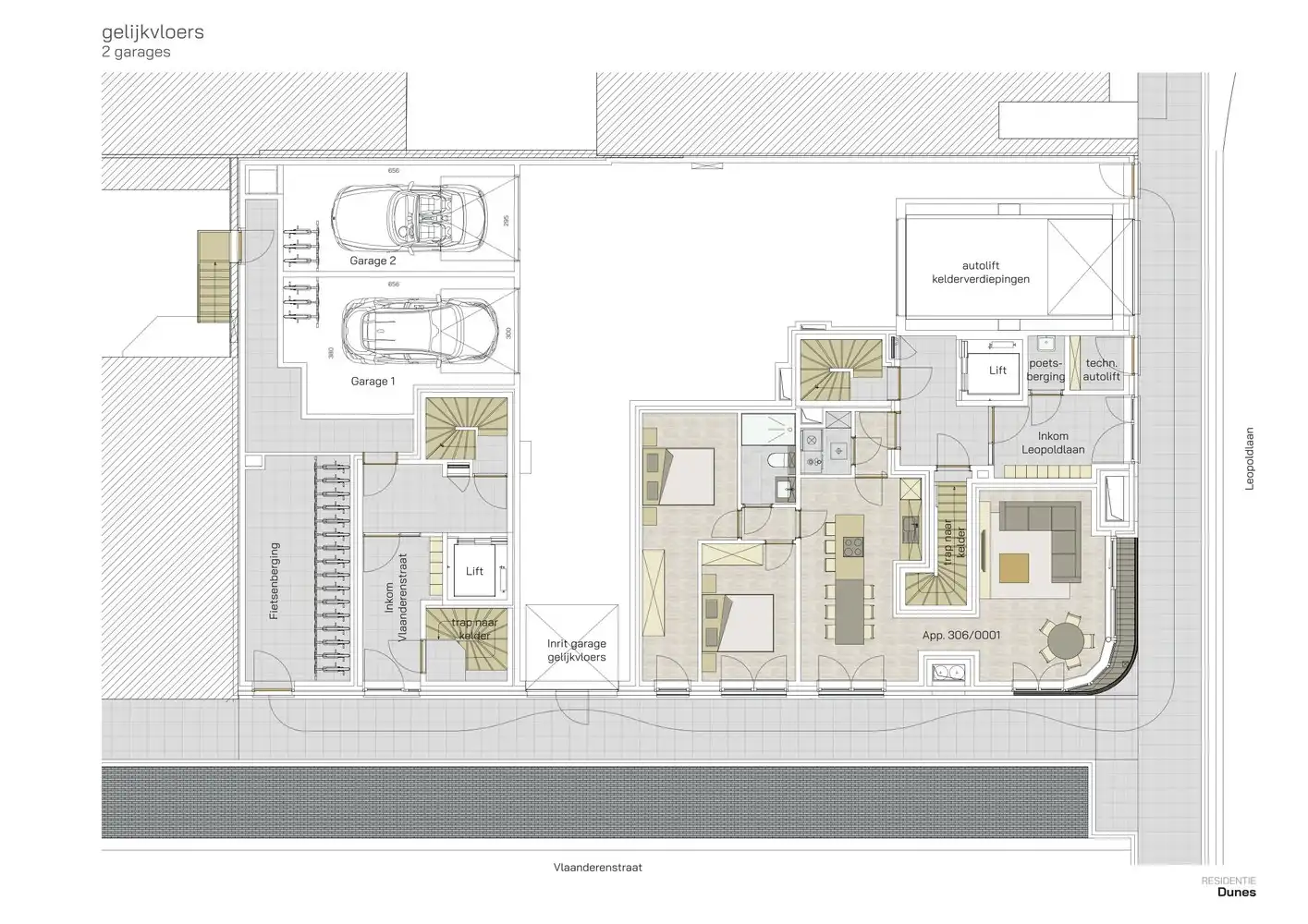
Met trots stellen wij Residentie “Dunes” voor, een stijlvol en hedendaags woonproject op een toplocatie in Middelkerke, op de hoek van de Vlaanderenstraat en de Leopoldlaan. Hier woont u in alle rust, op wandelafstand van het bruisende centrum én vlak bij de Zeedijk en het strand. Residentie Dunes omvat één elegant vormgegeven gebouw met twee afzonderlijke inkomhallen, wat zorgt voor extra comfort en privacy voor de bewoners. Ondergronds bevindt zich een ruime kelderverdieping over twee niveaus met twee afgesloten garages en twaalf parkeerplaatsen. Daarnaast is er een gemeenschappelijke fietsenberging voorzien, ideaal voor wie graag de kust per fiets verkent. De uitstekende ligging combineert een vlotte bereikbaarheid met de charme van het kustleven. Winkels, horeca en openbaar vervoer bevinden zich in de onmiddellijke omgeving, terwijl de nabijheid van de Zeedijk garant staat voor ontspannende wandelingen en frisse zeelucht. Dit appartement met 2 slaapkamers is gelegen op de 3° verdieping. Grote raampartijen zorgen voor een overvloed aan natuurlijk licht en creëren een aangename woonbeleving in elk appartement. Residentie Dunes biedt een harmonieuze mix van elegantie, functionaliteit en topligging, een ideale investering of een perfecte thuis aan zee.
Energie
- EPC Certificaat: EPB in opmaak
- E-peil: E0
- Beglazing: Standaard dubbel
Op de kaart

Financieel
| Prijs |
|---|
Berekening kosten
Je aankoopkosten? Die heb je snel berekend via de knop hieronder.
Bijkomende info
Gebouw
| Bouwjaar | 2027 |
|---|---|
| Staat | Zo goed als nieuw |
| Bouwcertificaat | Nee |
| Bewoonbaar (m²) | 74.65 |
| Verdieping | 3 |
| Badkamers | 1 |
| Slaapkamers | 2 |
| Verdiepingen | 0 |
| Garages | 0 |
| Parkeerplaatsen | 1 |
| Toiletten | 1 |
Faciliteiten
| Keuken uitrusting | Goed uitgerust |
|---|---|
| Beglazing | Standaard dubbel |
| Septische tank | Nee |
Perceel
| Overstromingsgevoelig | Geen |
|---|---|
| Totale oppervlakte (m²) | 82 |
| Bebouwde oppervlakte (m²) | 0 |
| Oppervlakte terras (m²) | 8 |
Vergunning
| Verkavelingsvergunning | Geen beschikbaar |
|---|
Uitrusting
| Investeringspand | Nee |
|---|---|
| Parking | Ja |
| Garage | Nee |
| Opslagruimte | Ja |
| Terras | Ja |
| Lift | Ja |
| Rioolaansluiting | Ja |
| Gasaansluiting | Nee |
| Wateraansluiting | Ja |
| Elektriciteitsaansluiting | Ja |
| Internetaansluiting | Ja |
| Telefoonaansluiting | Ja |
| Zonnepanelen | Nee |
| Zonneboiler | Nee |
| Alarm | Nee |
| Videofoon | Ja |
| Grondwaterput | Nee |
Appartementsblok
| Lift | Ja |
|---|---|
| Intercom | Nee |
Een pand van
Dermul Vastgoed en Beheer NV
Dermul Vastgoed en Beheer NV
Uw vastgoed in de omgeving van Oostende is een woonst, een tweede woonst, een investering. Het is persoonlijk. En het is financieel een belangrijke transactie.
Dit verdient een professionaliteit aanpak.
Beter nog: met een team van mensen die persoonlijke en professionele service bieden.
Deze meer dan 60 jaar ervaring van de lokale vastgoedmarkt zorgt voor de kennis van de juiste marktwaarde.
Wij kennen Oostende en omstreken als geen ander. We vertellen u het verhaal van de mensen in de Oostendse woonwijken.
DUNES 306 - 03.02
Leer meer over vastgoed
23 March 2026
Op Spotto zoeken als een pro: 10 slimme tips
21 March 2026
Hoeveel kan ik lenen om een huis te kopen?
01 March 2026
Wanneer heb ik een bouwvergunning of omgevingsvergunning nodig?
17 February 2026