Nieuw 
Renovatieproject: 3 slpk woning in het centrum van Leffinge
Een pand van Altro Vastgoed Brugge
Overzicht
- 140 m² bewoonbaar
 - 78 m² grond
 - 3 Slaapkamer(s)
 - 1 Badkamer(s)
 - 1 Toilet(ten)
 
Beschrijving
ALTRO VASTGOED VERKOOPT
In het hart van Leffinge, op wandelafstand van winkels, school en het dorpsplein, vind je deze volledig te renoveren woning met veel mogelijkheden. Ideaal voor wie op zoek is naar een betaalbaar renovatieproject waarin je je eigen woonideeën tot leven kunt brengen.
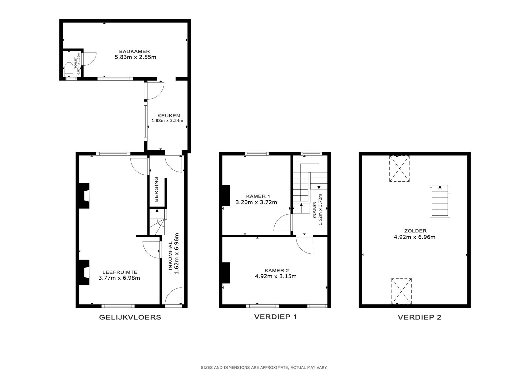
Op het gelijkvloers beschik je over een leefruimte, keuken, berging, badkamer en een afzonderlijk toilet. Achteraan is er een koer, perfect voor wie een compact buitenplekje wenst. Op de eerste verdieping bevinden zich twee ruime slaapkamers, en via de vaste trap bereik je de grote zolderverdieping, die perfect kan worden ingericht als derde slaapkamer of hobbyruimte.
Dankzij de centrale ligging in het dorpscentrum van Leffinge en de vlotte verbinding richting Middelkerke en Oostende, vormt deze woning een interessante opportuniteit voor zowel starters, investeerders als doe-het-zelvers.
Een woning met karakter en mogelijkheden, klaar voor wie een nieuw hoofdstuk wil schrijven in een authentiek dorpse omgeving.
Interesse? Contacteer vastgoedmakelaar Wim Gevaert via 0473 70 40 71 (7/7) of wim@altro-vastgoed.be
In het hart van Leffinge, op wandelafstand van winkels, school en het dorpsplein, vind je deze volledig te renoveren woning met veel mogelijkheden. Ideaal voor wie op zoek is naar een betaalbaar renovatieproject waarin je je eigen woonideeën tot leven kunt brengen.
Op het gelijkvloers beschik je over een leefruimte, keuken, berging, badkamer en een afzonderlijk toilet. Achteraan is er een koer, perfect voor wie een compact buitenplekje wenst. Op de eerste verdieping bevinden zich twee ruime slaapkamers, en via de vaste trap bereik je de grote zolderverdieping, die perfect kan worden ingericht als derde slaapkamer of hobbyruimte.
Dankzij de centrale ligging in het dorpscentrum van Leffinge en de vlotte verbinding richting Middelkerke en Oostende, vormt deze woning een interessante opportuniteit voor zowel starters, investeerders als doe-het-zelvers.
Een woning met karakter en mogelijkheden, klaar voor wie een nieuw hoofdstuk wil schrijven in een authentiek dorpse omgeving.
Interesse? Contacteer vastgoedmakelaar Wim Gevaert via 0473 70 40 71 (7/7) of wim@altro-vastgoed.be
In het hart van Leffinge, op wandelafstand van winkels, school en het dorpsplein, vind je deze volledig te renoveren woning met veel mogelijkheden. Ideaal voor wie op zoek is naar een betaalbaar renovatieproject waarin je je eigen woonideeën tot leven kunt brengen.
Op het gelijkvloers beschik je over een leefruimte, keuken, berging, badkamer en een afzonderlijk toilet. Achteraan is er een koer, perfect voor wie een compact buitenplekje wenst. Op de eerste verdieping bevinden zich twee ruime slaapkamers, en via de vaste trap bereik je de grote zolderverdieping, die perfect kan worden ingericht als derde slaapkamer of hobbyruimte.
Dankzij de centrale ligging in het dorpscentrum van Leffinge en de vlotte verbinding richting Middelkerke en Oostende, vormt deze woning een interessante opportuniteit voor zowel starters, investeerders als doe-het-zelvers.
Een woning met karakter en mogelijkheden, klaar voor wie een nieuw hoofdstuk wil schrijven in een authentiek dorpse omgeving.
Interesse?
Op het gelijkvloers beschik je over een leefruimte, keuken, berging, badkamer en een afzonderlijk toilet. Achteraan is er een koer, perfect voor wie een compact buitenplekje wenst. Op de eerste verdieping bevinden zich twee ruime slaapkamers, en via de vaste trap bereik je de grote zolderverdieping, die perfect kan worden ingericht als derde slaapkamer of hobbyruimte.
Dankzij de centrale ligging in het dorpscentrum van Leffinge en de vlotte verbinding richting Middelkerke en Oostende, vormt deze woning een interessante opportuniteit voor zowel starters, investeerders als doe-het-zelvers.
Een woning met karakter en mogelijkheden, klaar voor wie een nieuw hoofdstuk wil schrijven in een authentiek dorpse omgeving.
Interesse?
Energie
![]()  | 
- EPC Certificaat: 20251013-0003708521-RES-1
 - Energieverbruik: 1004 kWh/m²/jaar
 
 Let op, de renovatieverplichting in Vlaanderen verplicht de koper om deze woning na aankoop te renoveren tot een betere energieprestatie.  Lees er alles over in dit artikel
Extra budget nodig voor je renovatie?
 De overheid helpt je dit pand energetisch te renoveren! Hieronder zie je het premiebedrag dat je mogelijks van de overheid krijgt. 
Het huidige EPC-label is:

Op de kaart

Downloads
- ActaMaps Overstromingsrapport (35008B039800A000).pdf (pdf)
 - asbestattest.pdf (pdf)
 - Bodemattest.pdf (pdf)
 - EK.pdf (pdf)
 - EPC Certificaat-20251013-0003708521-RES-1.pdf (pdf)
 - Kadastraal plan.pdf (pdf)
 - Stedenbouw.pdf (pdf)
 - LeffingeGroenhagestraat20_0di848ghs0bxs6ggga7xihwya.jpg (jpg)
 - BOD TOT AANKOOP (document Altro Vastgoed) definitief.docx (docx)
 
Financieel
| Prijs | |
|---|---|
| Kadastraal inkomen (niet geïndexeerd) | € 356 | 
| Kadastraal inkomen (geïndexeerd) | € 356 | 
Berekening kosten
Je aankoopkosten? Die heb je snel berekent via de knop hieronder.
Bijkomende info
Gebouw
| Bouwjaar | 1938 | 
|---|---|
| Staat | Te renoveren | 
| Bewoonbaar (m²) | 140 | 
| Gevels | 2 | 
| Badkamers | 1 | 
| Slaapkamers | 3 | 
| Verdiepingen | 3 | 
| Garages | 0 | 
| Parkeerplaatsen | 0 | 
| Doucheruimtes | 1 | 
| Toiletten | 1 | 
Faciliteiten
| Type vloer | |
|---|---|
| Keuken uitrusting | Basis | 
| Elektrisch keuringsattest | Ja | 
Perceel
| Overstromingsgevoelig | Geen | 
|---|---|
| P-score | A | 
| G-score | A | 
| Voorkeurrecht | Nee | 
| Totale oppervlakte (m²) | 78 | 
| Bebouwde oppervlakte (m²) | 65 | 
| Tuin oppervlakte (m²) | 0 | 
| Oriëntatie terras | Zuidwest | 
Vergunning
| Vergunning | Geen beschikbaar | 
|---|---|
| Verkavelingsvergunning | Geen beschikbaar | 
| Bouwovertreding | Geen | 
| Bouwovertreding dagvaardiging | Geen | 
Uitrusting
| Geschikt voor rolstoelgebruikers | Nee | 
|---|---|
| Parking | Nee | 
| Garage | Nee | 
| Kelder | Ja | 
| Zolder | Ja | 
| Tuin | Nee | 
| Terras | Ja | 
| Lift | Nee | 
| Gasaansluiting | Ja | 
| Wateraansluiting | Ja | 
| Elektriciteitsaansluiting | Ja | 
| Zwembad | Nee | 
| Zwemvijver | Nee | 
Een pand van
Altro Vastgoed Brugge
 Wij verkopen uw vastgoed, anders én beter! 
 Bij Altro Vastgoed vinden we een persoonlijke aanpak erg belangrijk, hierbij stellen we de klant steeds centraal en staan we hem/haar bij in het complexe proces van verkopen, aankopen, verhuren en huren van vastgoed. We beschikken over een kwalitatief kantorennetwerk in Vlaanderen en Brussel met een sterke, lokale verankering. 
Leer meer over vastgoed
 Nieuw 
 22 October 2025 
Hoeveel kan ik lenen om een huis te kopen?
 11 June 2025 
Huis kopen met bouwovertreding? Dit moet je weten
 11 May 2025 
Renoveren? Vraag je Mijn VerbouwPremie aan
 22 April 2025 



