Grond te koop
€ 157.000
Een pand van Immo de Kaai
Overzicht
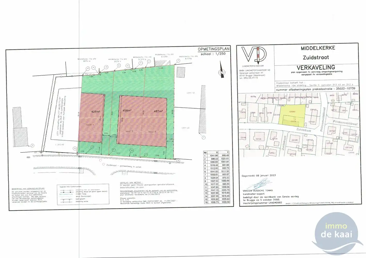
- 487 m² grond
Beschrijving
Perceel bouwgrond voor half-open bebouwing (kavel 3) - met een oppervlakte van 487m².
Rustige ligging in Lombardsijde-dorp. Kortbij verschillende invalswegen richting autosnelweg, Oostende en bij het openbaar vervoer.
Supermarkt en verschillende scholen op wandelafstand. Woning te voorzien van plat dak met 1 bouwlaag en 20m bouwdiepte gelijkvloers en 15m op 1e verdieping.
Rustige ligging in Lombardsijde-dorp. Kortbij verschillende invalswegen richting autosnelweg, Oostende en bij het openbaar vervoer.
Supermarkt en verschillende scholen op wandelafstand. Woning te voorzien van plat dak met 1 bouwlaag en 20m bouwdiepte gelijkvloers en 15m op 1e verdieping.
Energie
- E-peil: E0
- Beglazing: Onbekend
Op de kaart

Financieel
| Prijs |
|---|
Berekening kosten
Je aankoopkosten? Die heb je snel berekent via de knop hieronder.
Bijkomende info
Perceel
| P-score | C |
|---|---|
| Totale oppervlakte (m²) | 487 |
Vergunning
| Verkavelingsvergunning | Vergunning beschikbaar |
|---|
Uitrusting
| Investeringspand | Nee |
|---|---|
| Rioolaansluiting | Nee |
| Gasaansluiting | Nee |
| Wateraansluiting | Nee |
| Elektriciteitsaansluiting | Nee |
| Internetaansluiting | Nee |
| Telefoonaansluiting | Nee |
Een pand van
Immo de Kaai
Immo de kaai - verkoop en verhuur
Immo de Kaai reeds 8 jaar tot uw dienst aan de Kaai in Nieuwpoort-stad.
Wij helpen u graag verder met de verhuur of verkoop van uw eigendom of zoektocht naar uw nieuwe woonst.
U bent steeds welkom bij ons op kantoor!
Zuidstraat kavel 3
Leer meer over vastgoed
24 November 2025
Uitgezocht voor jouw gemeente: Hoeveel stijgt de waarde van je woning door een renovatie?
22 October 2025
Hoeveel kan ik lenen om een huis te kopen?
11 June 2025
Huis kopen met bouwovertreding? Dit moet je weten
11 May 2025