appartement
Een pand van AGENCE SISSAU
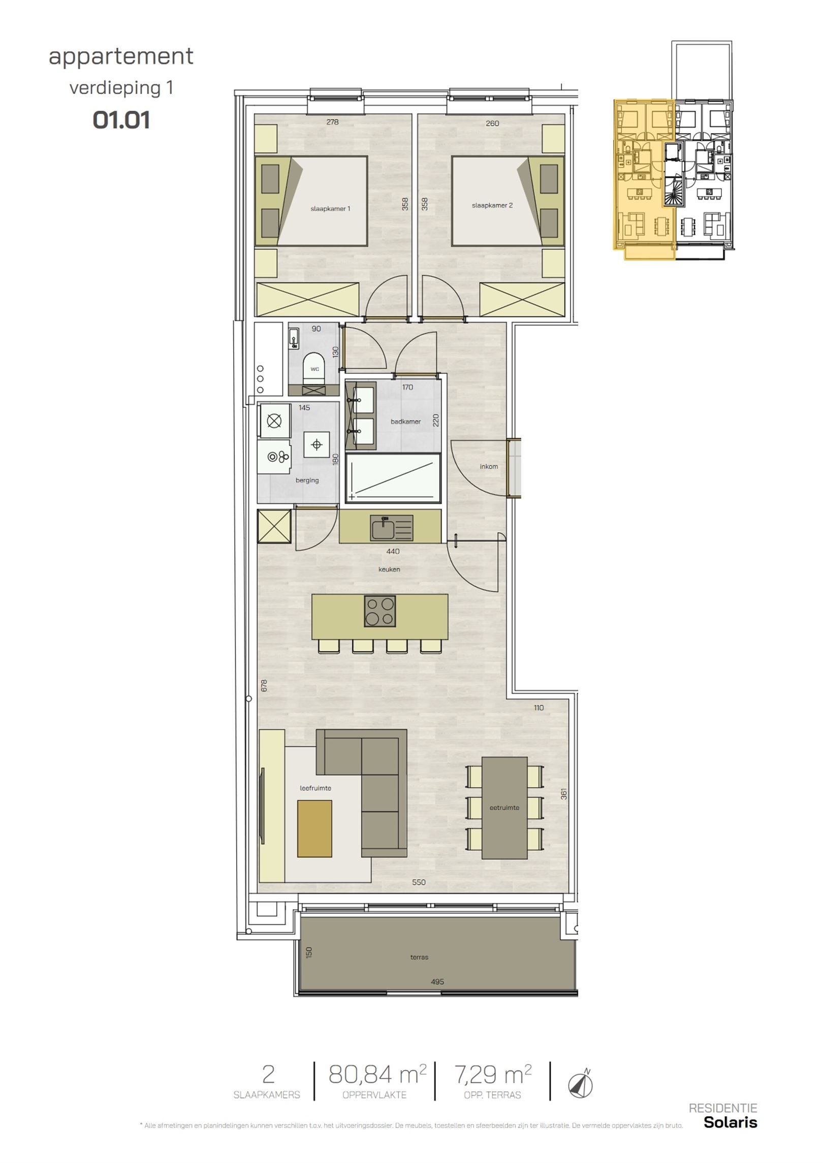
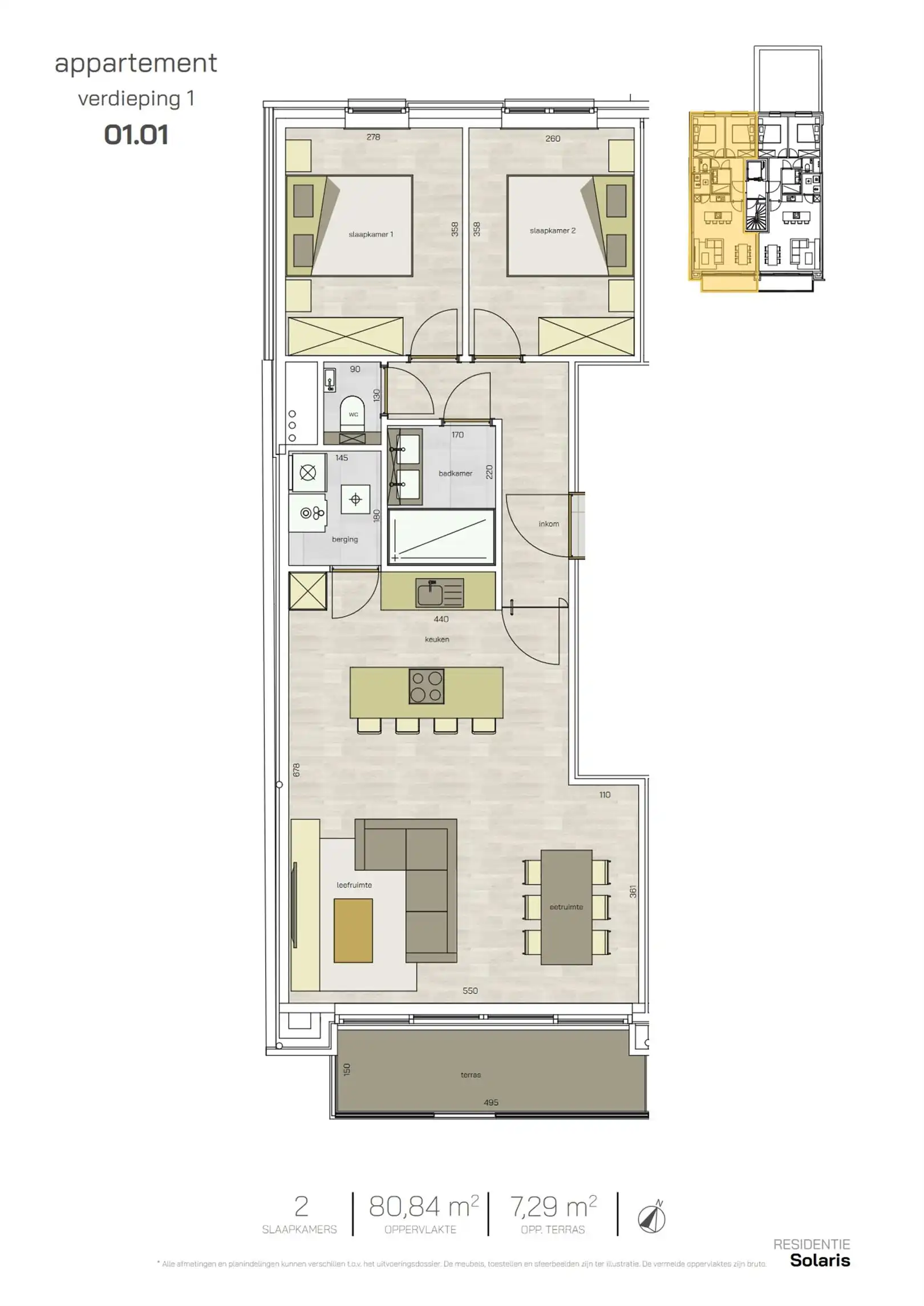
Overzicht
- 80.84 m² bewoonbaar
- 2 Slaapkamer(s)
- 1 Badkamer(s)
- 1 Toilet(ten)
Beschrijving
Bij het ontwerpen van de appartementen wordt de nadruk gelegd op kwaliteit en comfort, met veel aandacht voor een praktische indeling en privacy. Dankzij voldoende glaspartijen genieten de bewoners van een overvloed aan natuurlijk licht, wat het wooncomfort aanzienlijk verhoogt. De architectuur is tijdloos en opvallend, met strakke ruime terrassen en interessante contrasten. De gebruikte gevelmaterialen dragen bij aan een karaktervol en modern uiterlijk dat perfect integreert in de omgeving. Bovendien wordt er gebruik gemaakt van hoogwaardige materialen. Deze energiezuinige nieuwbouwappartementen zijn een waardevolle toevoeging aan het hoogwaardige nieuwbouwaanbod in de regio van Middelkerke/Westende
Energie
- E-peil: E30
- Beglazing: Standaard dubbel
Op de kaart

Financieel
| Prijs | |
|---|---|
| Kadastraal inkomen (niet geïndexeerd) | € 0 |
| Kadastraal inkomen (geïndexeerd) | € 0 |
Berekening kosten
Je aankoopkosten? Die heb je snel berekent via de knop hieronder.
Bijkomende info
Gebouw
| Bouwjaar | 2026 |
|---|---|
| Bouwcertificaat | Nee |
| Bewoonbaar (m²) | 80.84 |
| Verdieping | 1 |
| Badkamers | 1 |
| Slaapkamers | 2 |
| Verdiepingen | 4 |
| Garages | 0 |
| Parkeerplaatsen | 0 |
| Doucheruimtes | 0 |
| Toiletten | 1 |
Faciliteiten
| Keuken uitrusting | Luxueus uitgerust |
|---|---|
| Materiaal ramenomlijstingen | PVC |
| Beglazing | Standaard dubbel |
| Elektrisch keuringsattest | Ja |
Perceel
| Overstromingsgevoelig | Geen |
|---|---|
| Voorkeurrecht | Ja |
| Bebouwde oppervlakte (m²) | 0 |
| Tuin oppervlakte (m²) | 0 |
| Oppervlakte terras (m²) | 7 |
| Oriëntatie tuin | Zuid |
Vergunning
| Vergunning | Geen beschikbaar |
|---|---|
| Verkavelingsvergunning | Geen beschikbaar |
Uitrusting
| Investeringspand | Nee |
|---|---|
| Geschikt voor praktijk | Nee |
| Parking | Nee |
| Garage | Nee |
| Thuiskantoor | Nee |
| Kelder | Nee |
| Zolder | Nee |
| Tuin | Nee |
| Terras | Ja |
| Lift | Ja |
| Rioolaansluiting | Nee |
| Gasaansluiting | Nee |
| Wateraansluiting | Nee |
| Elektriciteitsaansluiting | Nee |
| TV aansluiting | Nee |
| Internetaansluiting | Nee |
| Telefoonaansluiting | Nee |
Appartementsblok
| Naam residentie | Solaris 0101 |
|---|---|
| Aantal verdiepingen | 4 |
| Lift | Ja |
Een pand van
AGENCE SISSAU
Agence Sissau
Agence Sissau heeft een voortdurend geactualiseerd aanbod van kooppanden: appartementen, studio's, villa's, winkels, garages... Wij bieden een zeer ruime keuze en garanderen u deskundig advies en een persoonlijke, klantgerichte service. Wat ook uw budget is, bij ons bent u zeker dat u kwaliteit krijgt. Zo bent u zeker van een doordachte, winstgevende belegging.
Solaris 0101
Leer meer over vastgoed
24 November 2025
Uitgezocht voor jouw gemeente: Hoeveel stijgt de waarde van je woning door een renovatie?
22 October 2025
Hoeveel kan ik lenen om een huis te kopen?
11 June 2025
Huis kopen met bouwovertreding? Dit moet je weten
11 May 2025