Volledig kantoorgebouw te koop of te huur
€ 800.000
Een pand van CEUSTERS
Overzicht
- 267 m² bewoonbaar
Beschrijving
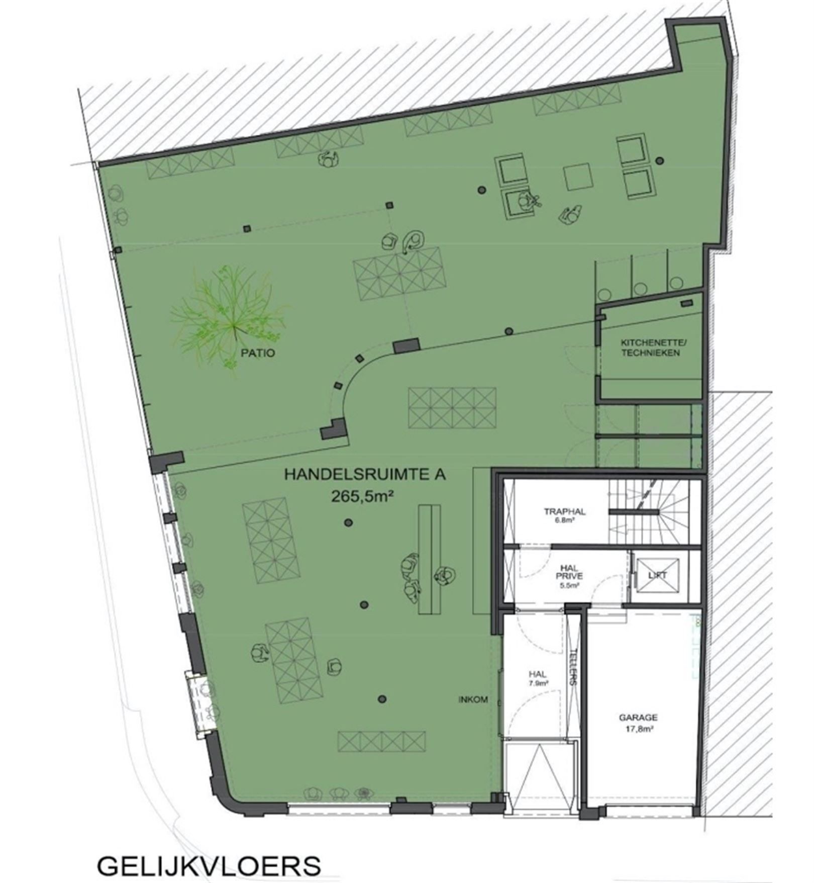
Ceusters is aangesteld voor de commercialisatie van een klassevol, historisch pand dat zich situeert op de hoek van de Groeningestraat en de Guido Gezellestraat te Kortrijk. We bieden een casco commerciële ruimte aan die enerzijds een handelsfunctie kan bekleden, maar evengoed als kantoor/praktijk kan ingevuld worden.
De totale oppervlakte bedraagt 531m² en deze is opgedeeld over twee verdiepingen: een gelijkvloers verdieping van 267 m² en een eerste verdieping van 264m².
Men kan zowel opgesplitst als in totaliteit huren/kopen.
Graag vestigen we de aandacht op de royale raampartijen en de uitzonderlijke plafondhoogtes die voor een sterk natuurlijk lichtinval en een ruimtelijk gevoel zorgen. De ontwikkelaar koos voor een perfecte balans tussen authenticiteit en vernieuwing, met respect voor de directe omgeving. Wie zich hier vestigt, kan meegenieten van het bruisende Kortrijkse stadsleven omwille van de centrale locatie, doch in alle rust haar klanten ontvangen en groeien als ondernemer.
Tot slot geven we nog mee dat de unit(s) nog een afzonderlijke ondergrondse archief/bergruimte hebben en er ook een fietsenstalling aanwezig is.
De koper/huurder heeft carte blanche in keuze van inrichting en indeling.
Energie
- E-peil: E0
- Beglazing: Onbekend
Op de kaart

Financieel
Prijs | |
---|---|
Kadastraal inkomen (niet geïndexeerd) | € 0 |
Kadastraal inkomen (geïndexeerd) | € 0 |
Berekening kosten
Je aankoopkosten? Die heb je snel berekent via de knop hieronder.
Bijkomende info
Gebouw
Bouwcertificaat | Nee |
---|---|
Bewoonbaar (m²) | 267 |
Verdieping | 0 |
Badkamers | 0 |
Slaapkamers | 0 |
Verdiepingen | 0 |
Garages | 0 |
Parkeerplaatsen | 0 |
Doucheruimtes | 0 |
Toiletten | 0 |
Faciliteiten
Elektrisch keuringsattest | Nee |
---|
Perceel
Overstromingsgevoelig | Mogelijk overstromingsgevoelig |
---|---|
P-score | C |
G-score | C |
Voorkeurrecht | Nee |
Bebouwde oppervlakte (m²) | 0 |
Tuin oppervlakte (m²) | 0 |
Oppervlakte terras (m²) | 0 |
Vergunning
Vergunning | Vergunning beschikbaar |
---|
Uitrusting
Investeringspand | Nee |
---|---|
Geschikt voor praktijk | Nee |
Parking | Nee |
Garage | Nee |
Thuiskantoor | Nee |
Kelder | Nee |
Zolder | Nee |
Tuin | Nee |
Terras | Nee |
Lift | Nee |
Rioolaansluiting | Ja |
Gasaansluiting | Ja |
Wateraansluiting | Ja |
Elektriciteitsaansluiting | Ja |
TV aansluiting | Ja |
Internetaansluiting | Ja |
Telefoonaansluiting | Ja |
Appartementsblok
Naam residentie | GROENINGENSTRAAT 1 A KORTRIJK |
---|---|
Lift | Nee |