Ruim 2-slaapkamerappartement op het 1ste verdiep – Res. Sint Amandus
€ 389.318
Een pand van Morpho vastgoed
Favoriet
Jouw zoektocht
Jouw scoretabel voor dit pand
Aan het laden...
Jouw geplande bezichtigingen
Aan het laden...
Overzicht
- 109 m² bewoonbaar
- 123 m² grond
- 2 Slaapkamer(s)
- 1 Badkamer(s)
- 1 Toilet(ten)
Beschrijving
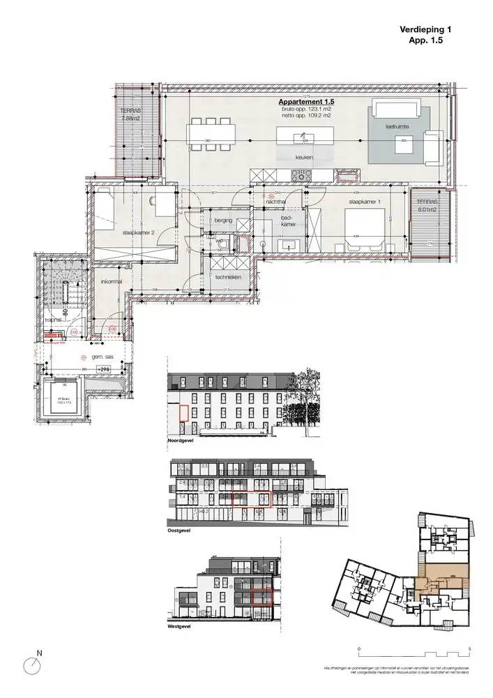
In het nieuwbouwproject Residentie Sint Amandus in het centrum van Zwevegem bevindt zich dit casco appartement op de eerste verdieping, met twee ruime terrassen (13,89 m²) en een bewoonbare oppervlakte van 109 m². Een uitstekende opportuniteit voor wie ruimte, flexibiliteit en een centrale ligging wil combineren met volledige afwerkingsvrijheid.
Het appartement wordt casco opgeleverd, waardoor u de volledige binnenafwerking zelf kan bepalen volgens uw eigen smaak en budget. U kiest zelf de keuken, badkamer, vloeren en materialen, zodat u het appartement volledig naar uw persoonlijke woonwensen kan vormgeven.
De indeling voorziet een ruime leefruimte met plaats voor een open keuken en eetgedeelte, twee volwaardige slaapkamers en de mogelijkheid om badkamer en sanitair volledig naar eigen voorkeur in te richten.
Gelegen in een recente residentie met meerdere toegangen, ondergrondse parking en fietsenstalling woont u hier centraal, op wandelafstand van alle voorzieningen.
Troeven
• 109 m² bewoonbare oppervlakte
• Twee terrassen van 13,89 m²
• Gelegen op de eerste verdieping
• Casco oplevering met volledige afwerkingsvrijheid
• 2 volwaardige slaapkamers
• Centrale ligging in Zwevegem
• Ondergrondse staanplaatsen beschikbaar – afzonderlijk aan te kopen
Interesse? Bel ons via 050 50 12 12 voor meer informatie of een bezoek.
Het appartement wordt casco opgeleverd, waardoor u de volledige binnenafwerking zelf kan bepalen volgens uw eigen smaak en budget. U kiest zelf de keuken, badkamer, vloeren en materialen, zodat u het appartement volledig naar uw persoonlijke woonwensen kan vormgeven.
De indeling voorziet een ruime leefruimte met plaats voor een open keuken en eetgedeelte, twee volwaardige slaapkamers en de mogelijkheid om badkamer en sanitair volledig naar eigen voorkeur in te richten.
Gelegen in een recente residentie met meerdere toegangen, ondergrondse parking en fietsenstalling woont u hier centraal, op wandelafstand van alle voorzieningen.
Troeven
• 109 m² bewoonbare oppervlakte
• Twee terrassen van 13,89 m²
• Gelegen op de eerste verdieping
• Casco oplevering met volledige afwerkingsvrijheid
• 2 volwaardige slaapkamers
• Centrale ligging in Zwevegem
• Ondergrondse staanplaatsen beschikbaar – afzonderlijk aan te kopen
Interesse? Bel ons via 050 50 12 12 voor meer informatie of een bezoek.
Energie
- E-peil: E0
- Beglazing: Onbekend
Op de kaart

Financieel
| Prijs |
|---|
Bijkomende info
Gebouw
| Staat | Nieuw |
|---|---|
| Bewoonbaar (m²) | 109 |
| Verdieping | 1 |
| Badkamers | 1 |
| Slaapkamers | 2 |
| Verdiepingen | 0 |
| Garages | 0 |
| Parkeerplaatsen | 0 |
| Toiletten | 1 |
Faciliteiten
| Septische tank | Nee |
|---|
Perceel
| Totale oppervlakte (m²) | 123 |
|---|---|
| Bebouwde oppervlakte (m²) | 0 |
| Oppervlakte terras (m²) | 0 |
| Oriëntatie tuin | Zuid |
Vergunning
| Verkavelingsvergunning | Geen beschikbaar |
|---|
Uitrusting
| Investeringspand | Nee |
|---|---|
| Parking | Nee |
| Garage | Nee |
| Opslagruimte | Ja |
| Terras | Ja |
| Lift | Nee |
| Rioolaansluiting | Nee |
| Gasaansluiting | Ja |
| Wateraansluiting | Ja |
| Elektriciteitsaansluiting | Ja |
| Internetaansluiting | Nee |
| Telefoonaansluiting | Nee |
| Zonnepanelen | Nee |
| Zonneboiler | Nee |
| Alarm | Nee |
| Videofoon | Nee |
| Grondwaterput | Nee |
Appartementsblok
| Lift | Nee |
|---|---|
| Intercom | Ja |
Een pand van
Morpho vastgoed
Uw regionale vastgoedmakelaar met een verrassend aanpak !
Een woning huren, kopen of verkopen in regio Brugge? Met een doorgedreven service begeleidt Morpho Vastgoedboetiek jou doorheen heel je vastgoedavontuur. Bij ons geen gedoe, wel to the point advies, vakkennis en een stevige portie enthousiasme!
Een woning bezichtigen, de waarde ervan bepalen, adverteren en verkopen … het zijn de basisskills van elke makelaar. Wat ons vastgoedkantoor dan uniek maakt?
Wij zien elke vastgoedtransactie als een metamorfose. Net zoals een rups een vlinder wordt, ontpopt een nieuwe thuis zich als een fris begin om mooie herinneringen te creëren. Onze naam Morpho werd immers niet zomaar gekozen.
App 1.5
Leer meer over vastgoed
23 March 2026
Op Spotto zoeken als een pro: 10 slimme tips
21 March 2026
Hoeveel kan ik lenen om een huis te kopen?
01 March 2026
Wanneer heb ik een bouwvergunning of omgevingsvergunning nodig?
17 February 2026