Ruim afgewerkt 3-slaapkamerappartement van in Residentie Sint Amandus, Zwevegem
€ 425.997
Een pand van Morpho vastgoed
Favoriet
Jouw zoektocht
Jouw scoretabel voor dit pand
Aan het laden...
Jouw geplande bezichtigingen
Aan het laden...
Overzicht
- 104 m² bewoonbaar
- 122 m² grond
- 3 Slaapkamer(s)
- 1 Badkamer(s)
- 2 Toilet(ten)
Beschrijving
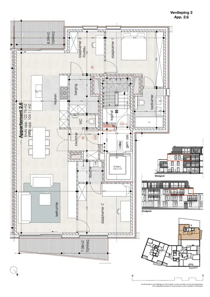
In het nieuwbouwproject Residentie Sint Amandus in het centrum van Zwevegem bevindt zich dit mooie appartement op de tweede verdieping, met twee ruime terrassen (samen 14,95 m²) en een bewoonbare oppervlakte van 104,11 m². Een ideale opportuniteit voor wie ruimte wil combineren met volledige afwerkingsvrijheid.
Het appartement wordt casco opgeleverd, waardoor u de afwerking volledig naar eigen smaak, budget en woonstijl kunt bepalen. U kiest zelf de materialen, keuken, badkamer en vloeren. Perfect voor wie persoonlijk wil afwerken of doelgericht wil investeren zonder standaardafwerking.
De indeling omvat een ruime leefruimte met plaats voor een open keuken en eetgedeelte, drie volwaardige slaapkamers, twee badkamers en voldoende mogelijkheden voor praktische bergruimte.
Gelegen in een recente residentie met ondergrondse parking, fietsenstalling en meerdere toegangen woont u hier centraal én comfortabel.
Troeven
• 104,11 m² bewoonbare oppervlakte
• Twee terrassen (14,95 m²)
• Gelegen op de tweede verdieping
• Casco oplevering met volledige afwerkingsvrijheid
• 3 volwaardige slaapkamers
• Centrale ligging in Zwevegem
• Ondergrondse autostaanplaatsen beschikbaar – afzonderlijk aan te kopen
Interesse? Bel ons via 050 50 12 12 voor meer informatie of een bezoek.
Het appartement wordt casco opgeleverd, waardoor u de afwerking volledig naar eigen smaak, budget en woonstijl kunt bepalen. U kiest zelf de materialen, keuken, badkamer en vloeren. Perfect voor wie persoonlijk wil afwerken of doelgericht wil investeren zonder standaardafwerking.
De indeling omvat een ruime leefruimte met plaats voor een open keuken en eetgedeelte, drie volwaardige slaapkamers, twee badkamers en voldoende mogelijkheden voor praktische bergruimte.
Gelegen in een recente residentie met ondergrondse parking, fietsenstalling en meerdere toegangen woont u hier centraal én comfortabel.
Troeven
• 104,11 m² bewoonbare oppervlakte
• Twee terrassen (14,95 m²)
• Gelegen op de tweede verdieping
• Casco oplevering met volledige afwerkingsvrijheid
• 3 volwaardige slaapkamers
• Centrale ligging in Zwevegem
• Ondergrondse autostaanplaatsen beschikbaar – afzonderlijk aan te kopen
Interesse? Bel ons via 050 50 12 12 voor meer informatie of een bezoek.
Energie
- E-peil: E0
- Beglazing: Onbekend
Op de kaart

Financieel
| Prijs |
|---|
Bijkomende info
Gebouw
| Staat | Nieuw |
|---|---|
| Bewoonbaar (m²) | 104 |
| Verdieping | 2 |
| Badkamers | 1 |
| Slaapkamers | 3 |
| Verdiepingen | 0 |
| Garages | 0 |
| Parkeerplaatsen | 0 |
| Toiletten | 2 |
Faciliteiten
| Septische tank | Nee |
|---|
Perceel
| Overstromingsgevoelig | Geen |
|---|---|
| Totale oppervlakte (m²) | 122 |
| Bebouwde oppervlakte (m²) | 0 |
| Oppervlakte terras (m²) | 0 |
| Oriëntatie tuin | Zuid |
Vergunning
| Verkavelingsvergunning | Geen beschikbaar |
|---|
Uitrusting
| Investeringspand | Nee |
|---|---|
| Parking | Nee |
| Garage | Nee |
| Opslagruimte | Ja |
| Terras | Ja |
| Lift | Nee |
| Rioolaansluiting | Nee |
| Gasaansluiting | Ja |
| Wateraansluiting | Ja |
| Elektriciteitsaansluiting | Ja |
| Internetaansluiting | Nee |
| Telefoonaansluiting | Nee |
| Zonnepanelen | Nee |
| Zonneboiler | Nee |
| Alarm | Nee |
| Videofoon | Nee |
| Grondwaterput | Nee |
Appartementsblok
| Lift | Nee |
|---|---|
| Intercom | Ja |
Een pand van
Morpho vastgoed
Uw regionale vastgoedmakelaar met een verrassend aanpak !
Een woning huren, kopen of verkopen in regio Brugge? Met een doorgedreven service begeleidt Morpho Vastgoedboetiek jou doorheen heel je vastgoedavontuur. Bij ons geen gedoe, wel to the point advies, vakkennis en een stevige portie enthousiasme!
Een woning bezichtigen, de waarde ervan bepalen, adverteren en verkopen … het zijn de basisskills van elke makelaar. Wat ons vastgoedkantoor dan uniek maakt?
Wij zien elke vastgoedtransactie als een metamorfose. Net zoals een rups een vlinder wordt, ontpopt een nieuwe thuis zich als een fris begin om mooie herinneringen te creëren. Onze naam Morpho werd immers niet zomaar gekozen.
App 2.6
Leer meer over vastgoed
23 March 2026
Op Spotto zoeken als een pro: 10 slimme tips
21 March 2026
Hoeveel kan ik lenen om een huis te kopen?
01 March 2026
Wanneer heb ik een bouwvergunning of omgevingsvergunning nodig?
17 February 2026